Miesięcznik Murator ONLINE

Skocz do zawartości
  • wpisów
    149
  • komentarzy
    0
  • odsłon
    785

Entries in this blog

ES1719504777

Deszczowe dni zwolniły nieco bieg wydarzeń, ale ścianę frontową udało się wyprowadzić ponad nadproża. Przypominamy jedynie innym selenowiczom, że z kotłownią wyszliśmy do przodu zmniejszając ganek wejściowy.

 


Pojawił się dzisiaj mały wątek odnośnie wjazdu do garażu. Czy wjazd samochodem przez 15cm ocieplenie ze styropminu nie uszkodzi izolacji? No właśnie, czy kostkę ułożyć na ociepleniu, czy trzeba jakoś próg pod bramą garażową wzmocnić? Wspomóżcie komentarzem, please.

 

 


Tak prezentuje się już domknięty obrys budynku. :)

 

 


http://lh4.ggpht.com/_iA2SFq8K5Uc/SiA3avaRYPI/AAAAAAAAAPE/PPGGY671MBQ/s512/Front%20002.jpg

ES1719504777

Dziś kilka wieści graficznych pod zagadkowym tytułem "ściana wschodnia"

 


W naszej selene II - tak dla przypomnienia - na ścianie wschodniej są tylko dwa okna, ale znacznie większe, niż w projekcie. Jedno w garażu i jedno w łazience.

 


Pewnie baczni obserwatorzy trzech postawionych ścian zewnętrznych słusznie już przypuszczają, że mamy małego hopla na punkcie.. symetrii

 


Nastąpił postęp w ociepleniu fundamentów :) pojawiła się siatka.. jutro reszta, choć nie obiecuję, że zdążę dojechać przed "zasypką".

 


Aha, nie robimy drenażu opaskowego. Grunt jest bardzo piaszczysty, a działka z dużym spadkiem w kierunku rowu melioracyjnego, więc nie powinno być problemu z wodą w gruncie. Sam fundament jest dobrze zaizolowany antykapilarnie.. Tak się pocieszam :)

 

 


http://lh3.ggpht.com/_iA2SFq8K5Uc/Sh2WVAzRu-I/AAAAAAAAAOE/X-NeaV7vOZ0/s512/%C5%9Aciana%20wschodnia%20001.jpg

 


http://lh6.ggpht.com/_iA2SFq8K5Uc/Sh2WWD5sYmI/AAAAAAAAAOI/_f7vGAIrYz0/s512/%C5%9Aciana%20wschodnia%20004.jpg

 


a tutaj rzut na gabinet narożny.. tam będzie najbardziej zadumana część domku

 

 


http://lh5.ggpht.com/_iA2SFq8K5Uc/Sh2WWxYIjhI/AAAAAAAAAOM/ovj2wo0Rhlw/s512/%C5%9Aciana%20wschodnia%20007.jpg

 


tak więc, jutro ściana frontowa i zamykamy obrys :)

 

 


http://lh3.ggpht.com/_iA2SFq8K5Uc/Sh2WXYKIUQI/AAAAAAAAAOQ/raxhIFiSRlE/s512/%C5%9Aciana%20wschodnia%20010.jpg

ES1719504777

Po dwóch dniach oddelegowania służbowego i nieobecności w kraju odwiedziny na działce po prostu siłą rzeczy musiały skutkować jakimś zaskoczeniem.

 


Ściany południowa i zachodnia osiągnęły swoją docelową wysokość :).. jakby to inaczej ująć.. dorosły.. :)

 


Przy czym, mniejszym zaskoczeniem było nieskończone ciągle ocieplenie i izolacja fundamentu :) Mam nadzieję, że to nie jakieś zawahanie koncepcyjne baumeistrów :)

 


Zanim przejdziemy do części graficznej, kilka uwag technicznych:

 


- wysokość pomieszczeń utrzymujemy z projektu, co oznacza, że drzwi balkonowe w salonie będą wykonywane "na zamówienie". Jest tam podobno dość niestandardowy wymiar 205 cm.

 


- nadproża w technologii "wylewane na budowie" :), z frontem porotherm;

 


- cokół będzie miał 30 cm (co sądzicie? )

 

 


no to fotki..

 

 


http://lh5.ggpht.com/_iA2SFq8K5Uc/ShxLmy0B7CI/AAAAAAAAANo/jQXw2F7zNck/s512/2_1%20008.jpg

 


http://lh4.ggpht.com/_iA2SFq8K5Uc/ShxLmNuvSPI/AAAAAAAAANk/ZhQtpbnVni0/s512/2_1%20005.jpg

 


http://lh6.ggpht.com/_iA2SFq8K5Uc/ShxLlSBERxI/AAAAAAAAANg/XvZRbUs6wj8/s512/2_1%20003.jpg

 


ależ oczywiście, że dzisiaj też będzie rzut wysokościowy

 

 


http://lh4.ggpht.com/_iA2SFq8K5Uc/ShxLkL5b6_I/AAAAAAAAANc/6HqoGPeKEKw/s512/2_1%20019.jpg

ES1719504777

dziś krótko.. mamy dużo pracy, więc szybko wklejamy aktualny rzut. Będzie korekta podestu wokół kolumny (jest o 15 cm za niski). Widać już zarysy umiejscowienia okien i drzwi wejściowych i bramy garażowej. Ganek trzeba jeszcze wydysperbitować :) No i czekamy ciągle na izolację fundamentu.. coś z tym ociepleniem, jak z Godotem.. :)

 

 


http://lh6.ggpht.com/_iA2SFq8K5Uc/Shb4eiQVqqI/AAAAAAAAAMk/tk3ahInzZ5w/s512/Po%C5%82owa%20%C5%9Bcian%20001.jpg

 


a tak dla odmiany... Poniżej pierwsza reklama w naszym dzienniku. Szanowny producencie, w sprawie należności za reklamę zapraszamy do wpłat na rachunek 00 0000 ..., prowadzony w banku.. uppss.. tu bym się wygadał, a trwa przecież jeszcze konkurs.. :)

 

 


http://lh4.ggpht.com/_iA2SFq8K5Uc/Shb4fWp4dxI/AAAAAAAAAMo/tCElRse7ERU/s512/Po%C5%82owa%20%C5%9Bcian%20006.jpg

ES1719504777

Zapowiadaliśmy start porothermem w górę. Obietnica spełniona, choć przy całkiem pokaźnym obrysie 'selene II' tempo zamurowywania przestrzeni powietrznej nie będzie chyba imponujące :)

 


Ale nie marudząc, pochwalę wykonawców za trzymanie się linii i wymiarów - co do centymetra. A na naszej budowie, wbrew polskim przysłowiom, chodzi o każdy centymetr :)

 


Pęcherzyki powietrza na "mądrym drzewie" ładnie wypośrodkowane. Jest więc dobra podstawa i duże szanse dobrnięcia we właściwych kątach aż do murłaty :)

 


Tylko ciągle czekamy na rzecz dla nas istotną - hydro- i termoizolację zewnętrzną fundamentu. Ale cierpliwości.. powinno to nastąpić jeszcze w tym tygodniu. Po prostu w sieci aż pełno rad, sugestii i rozwiązań co do tego etapu, więc chcemy się uspokoić, że "nasi" nie odstają na gruncie technologii :)

 

 


To zapraszamy do fotek. Przy okazji, to jedna z ostatnich chwil kiedy można obserwować całość obrysu. Nie wiem, czy pięciometrowej górki humusu starczy na uchwycenie całości układanki, kiedy wymurujemy parter. W razie czego zrobię dla was kochani kibice kilka zdjątek z samolotu :)

 

 


http://lh5.ggpht.com/_iA2SFq8K5Uc/ShRawb3D7SI/AAAAAAAAALk/z66JC2XLfcY/s400/Start%20porothermu%20%281%29.jpg

 


http://lh3.ggpht.com/_iA2SFq8K5Uc/ShRazGWuIsI/AAAAAAAAALs/QN7l1OOcNl4/s400/Start%20porothermu%20%285%29.jpg

 


http://lh6.ggpht.com/_iA2SFq8K5Uc/ShRazgMLAWI/AAAAAAAAALw/-Vf8hM4Ohm4/s512/Start%20porothermu.jpg

 


http://lh3.ggpht.com/_iA2SFq8K5Uc/ShRaye-RQII/AAAAAAAAALo/qnS5kJRpiVo/s512/Start%20porothermu%20%284%29.jpg

 


hej..

ES1719504777

Fundament zalany! To tak w ramach wtorkowego otwarcia po niby-takim poniedziałku. Kapryśna pogoda akurat pomaga i nie powinno być wielu pęknięć. Po wykonaniu pierwszej "schichty" porothermu będzie można ocieplić fundament i zaizolować pionowo przeciwwilgociowo. Wtedy to już tylko jeden kierunek: w górę! :)

 

 


Cały dowcip polega na tym, że powoli - co było chyba nieuniknione - zaczyna nam się rozmijać harmonogram kredytowy z wydarzeniami na budowie. Dalej wyprzedzamy bank o kilka tygodni, ale bufor się z każdym dniem zmniejsza i niewykluczone, że przy kolejnych transzach zbliżymy się do marginesu napięć. A bufor czasowy był i jest potrzebny do tego, żeby mieć możliwość balansowania terminem uruchomienia transz w zależności od kursu CHF/PLN. W przeciwnym wypadku bank będzie miał karetę w kartach, a my zostaniemy co najwyżej z parą. :) Ciekaw jestem, jak inni inwestorzy to "rozgrywają". Wszelkie tricki oczekiwane w Komentarzach :)

 

 


http://lh6.ggpht.com/_iA2SFq8K5Uc/ShMAXbHhd6I/AAAAAAAAAKs/JdfRk4nalwA/s512/Zalany%20fundament%20001.jpg

 


http://lh4.ggpht.com/_iA2SFq8K5Uc/ShMAX7F9i8I/AAAAAAAAAKw/P2RhdUrQZk4/s512/Zalany%20fundament%20002.jpg

 


a taras prezentuje się całkiem, całkiem :)

 

 


http://lh6.ggpht.com/_iA2SFq8K5Uc/ShMAYWt1jXI/AAAAAAAAAK0/QzufDw_cMk4/s400/Zalany%20fundament%20004.jpg

 


http://lh3.ggpht.com/_iA2SFq8K5Uc/ShMAZG03dlI/AAAAAAAAAK4/yyVue9tD5qc/s512/Zalany%20fundament%20005.jpg

 


http://lh3.ggpht.com/_iA2SFq8K5Uc/ShMAaIcbAlI/AAAAAAAAAK8/6ZRcRha66Qk/s512/Zalany%20fundament%20006.jpg

 


już niedługo.. niedługo.. zaprosimy tymi właśnie schodami

 

 


http://lh6.ggpht.com/_iA2SFq8K5Uc/ShMAarj8IiI/AAAAAAAAALA/J8ASPh2QCMs/s512/Zalany%20fundament%20007.jpg

 


no i na koniec.. tradycyjnie :)

 

 


http://lh5.ggpht.com/_iA2SFq8K5Uc/ShMAbqmfXYI/AAAAAAAAALI/0Xo5m6Ga2nE/s512/Zalany%20fundament%20008.jpg

 


no i jak? równo jest..?

ES1719504777

Dziś krótko :)

 

 


tydzień rozpoczęliśmy od uzbrojenia i izolacji tarasu. Jest przygotowany do "zalania". Druga fotka to ganek wejściowy "zaszalowany" (<- dobrze? ).

 


Zgodnie z projektem będą dwa stopnie - zarówno do ganku i tarasu - od tej samej, północnej strony.

 

 


Dziś nastrój na budowie mniej oszałamiający. No cóż, nikt "nie lubi poniedziałku".. :)

 

 


http://lh6.ggpht.com/_iA2SFq8K5Uc/ShGw7ulmmDI/AAAAAAAAAJ0/F-sBOygzpF0/s400/Zbrojenie%20taras%C3%B3w%20001_dobre.JPG

 


http://lh3.ggpht.com/_iA2SFq8K5Uc/ShGyIT_k-9I/AAAAAAAAAKQ/FtcRySZbjIc/s512/Zbrojenie%20taras%C3%B3w%20003.jpg

ES1719504777

wylewka-amatorka pod ścianki działowe :) już widać zarys drzwi a'la Twin Peaks

 

 


http://lh6.ggpht.com/_iA2SFq8K5Uc/Sg28kJgEPMI/AAAAAAAAAJM/w5RrBd9mM90/s400/1_1%20005_2.jpg

 


wylot kominkowy w salonie:

 

 


http://lh3.ggpht.com/_iA2SFq8K5Uc/Sg28lpWXImI/AAAAAAAAAJU/C0144Z1hR70/s400/1_1%20007_2.jpg

 


i na koniec, standardowo, rzut 3D na aktualny state of play, wykonany z pięciometrowej hałdy humusu (ciągle tej samej):

 

 


http://lh6.ggpht.com/_iA2SFq8K5Uc/Sg28iTRvO3I/AAAAAAAAAJE/opuPBbtSRYQ/s512/1_1%20001_2.jpg

 


P.S. Mamy też już zarys ganku wejściowego i uzbrojenie kolumny.. :)

ES1719504777

Budowlanka to taka dziedzina, w której, żeby coś zrobić, trzeba najpierw zaburzyć czasoprzestrzeń.. i mimo włożonego wcześniej wysiłku popsuć to, co się już zrobiło... A mówiąc wprost - najpierw ubity został piach w fundamencie, by następnie rozkopać go na nowo i rozłożyć kanalizę

 

 


http://lh4.ggpht.com/_iA2SFq8K5Uc/Sg28hgks-1I/AAAAAAAAAJA/JaZnOwkIzmo/s512/1_1%20018_2.jpg

 


a tak prezentuje się kotłownia z wyprowadzeniem do kratki ściekowej:

 

 


http://lh5.ggpht.com/_iA2SFq8K5Uc/Sg28i2oEKbI/AAAAAAAAAJI/FPgd_vwSpus/s400/1_1%20004_2.jpg

 


troszkę długa i wąska ('tramwaj' znaczy się )

ES1719504777

Skoro już jesteśmy przy izolacji. Wzdłuż salonu mistrzowie zrobili izolację o zbyt małej grubości.. inwestor zgłosił uwagę, no i mamy podwójne ocieplenie wzdłuż salonu z podwójną warstwą dysperbitu :) no cóż.. ważne, że atmosfera jest dobra.. (puk, puk..)

 

 


http://lh4.ggpht.com/_iA2SFq8K5Uc/Sg28gkPUGsI/AAAAAAAAAI8/-ylJEe2fDrE/s400/1_1%20004.jpg

 


z każdym też przyjazdem na budowę coraz większe wrażenie robi na nas taras, a dokładniej jego imponujące rozmiary (zmieniane nota bene do ostatniej chwili).. dzisiaj stwierdziliśmy, że suma powierzchni salonu i tarasu pozwoli na stworzenie naprawdę komfortowej strefy wypoczynku.. :)

 

 


ale póki co do wypoczynku jeszcze daleko , bo oto jesteśmy dopiero na takim etapie tworzenia owej strefy:

 

 


http://lh3.ggpht.com/_iA2SFq8K5Uc/Sg3I1HrN1uI/AAAAAAAAAJY/irZvddALD_U/s400/1_1%20005.jpg

ES1719504777

Ostatnią serię postów zamykała informacja o sprawach bankowych. Dziś zatem - dla odmiany - rozpoczniemy od.. spraw finansowych. Bank przysłał już harmonogram spłat kredytu po uruchomieniu pierwszej transzy. I tu kolejna ciekawostka, bo zarówno wysokość raty, jak i system spłat nie odpowiada postanowieniom umownym. Nieprawidłowości dotyczą daty rozpoczęcia naliczania odsetek (bank rozpoczął naliczanie odsetek od dnia zawarcia umowy, a nie od dnia wypłaty kredytu. Różnica jest dość znaczna i sięga kilkudziesięciu franków.) oraz spłaty w ratach równych (bank w harmonogramie wykreował raty malejące, czyli pierwsze w kosmicznej wysokości).

 

 


To może - w stylu dawnego teleturnieju Miliard w rozumie (pamiętacie? :)..) - przerwę historię w tym miejscu i zadam pytanie, czy ktoś już wie z tych informacji o jaki bank chodzi. Można typować w komentarzach (za 3 punkty).

 


Historię będziemy z pewnością "odsłaniać" w kolejnych postach. Ale wtedy, to już tylko 2 punkty, 1 punkt itd. :)

 

 


Tylko w ramach wskazówki podam bankowy dowcip z życia wzięty. 'Doradca' z oddziału poinformował, że "proszę się nie przejmować, system z pewnością naliczy poprawną wysokość rat".

 

 


:)

 

 


Z innych spraw biurokratycznych, otrzymaliśmy już umowę finalną z zakładu energetycznego. Dziwne, bo prąd mamy już od jakiegoś czasu. Niesamowity ten nasz wykonawca..

 

 


To tyle z informacji tekstowych. Teraz przejdźmy do odsłony graficznej. Trochę się pozmieniało. Gdzieniegdzie wtrącę coś - mam nadzieję ciekawego - celem wyjaśnień, objaśnień itp.

ES1719504777

Ze spraw finansowych, to po trzech miesiącach negocjacji i zmagania się z bardziej lub mniej (to drugie częściej) zorientowanymi doradcami banku dostaliśmy kredyt.

 

 


Pomyśleć tylko, że nazwa banku sugeruje, że powinien w nim być porządek, a tu taka niespodzianka. Polska jakość obsługi zdolna jest wypaczyć najsolidniejsze nawet struktury finansowe :)

 

 


Ale jak to bywa w każdym procesie budowlanym, grunt to nieprzerwane źródło finansowania. Tylko koledzy budowlańcy i tak podobno już się między sobą zakładają "kiedy im (tj. nam) skończy się kasa, przy łazience, czy na etapie ogrodzenia.."

 

 


P.S. Informacja dla Prezesa Sądu: Panie Prezesie, szybciej z tym wpisem hipoteki do KW.

 

 


ES1719504777

a dziś już całkiem okazale prezentuje się wieniec fundamentowy :)

 

 


there we go..

 

 


http://lh4.ggpht.com/_iA2SFq8K5Uc/SgSO3dVmaHI/AAAAAAAAAH4/cryfuFPYYmQ/s640/1_1%20011.jpg

 


http://lh3.ggpht.com/_iA2SFq8K5Uc/SgSO34lXC7I/AAAAAAAAAH8/aXhcp8rfy1s/s640/1_1%20014.jpg

 


http://lh3.ggpht.com/_iA2SFq8K5Uc/SgSO4t-g7TI/AAAAAAAAAIA/NfOEgn09F98/s640/1_1%20016.jpg

 


jak widać, bolid tak od razu jakoś ustawił się przed garażem :) pewnie nie może się doczekać nowej stajni :]

 

 


http://lh3.ggpht.com/_iA2SFq8K5Uc/SgSO5VuZeqI/AAAAAAAAAIE/WyJzOX9vHhg/s640/1_1%20018.jpg

ES1719504777

Weekend majowy już za nami, więc pora zaktualizować postępy prac na budowie. Jak na razie ciągle siedzimy "w ziemi", choć w zasadzie to już 102 cm ponad poziom ławy fundamentowej :)

 

 


dziś pierwsza fotka sygnalizująca zarys tarasu przy salonie. Zdjęcie zrobiono od strony południowej, tj. z rogu tarasu przeciwległego do kuchni :) To takie info dla prawdziwych fanów selene II ;]

 

 


ów zarys to taka mini-ława pod bloczki..

 

 


w tle dla dalekowidzów bodaj jedno z najważniejszych urządzeń na placu budowy i bynajmniej nie chodzi mi o betoniarkę

 

 


http://lh6.ggpht.com/_iA2SFq8K5Uc/SgSO2FltgmI/AAAAAAAAAH0/_sEbtxXiiak/s400/1%20004.jpg

ES1719504777

Dziś świątecznie, 1-wszo-majowo!

 

 


święto pracy uczciliśmy... pracą

 

 


z nowości pojawiły się ścianki fundamentowe (nie wszystkie), ale obrys jest już kompletny. Dziś było też dużo decyzji do podjęcia w stylu: "wysoko to mamy robić?", "a wjazd do garażu, to na jakim poziomie?", "a cokół to zrobimy tak odtąd, czy inaczej?"

 

 


zrobiliśmy trochę kilometrów wokół działki biegając (dotyczy tej mobilnej połowy inwestorskiej ) wokół i sprawdzając położenie względem innych działek, drogi wewnętrznej, gminnej plus "żeby było ładnie"

 

 


poniżej część graficzna.. kolejne fotki będą już z wieńcem i obrysem tarasu, może uda się już też zasypać fundamenty i zaizolować..

 

 


http://lh4.ggpht.com/_iA2SFq8K5Uc/SfsbYnZm4OI/AAAAAAAAAG0/0KKpQ38fNOo/s640/1%20010_fundamenty%20%283%29.jpg

 


http://lh3.ggpht.com/_iA2SFq8K5Uc/SfsbZpLZpZI/AAAAAAAAAG8/og3hdGqhpuY/s640/1%20010_fundamenty%20%285%29.jpg

ES1719504777

Witamy po dłuższej przerwie.. spowodowanej wodą roztopową w gruncie na głębokości 50 cm.. po prostu nie chciała zejść, więc istniała realna obawa, że wykopy pod ławy będą się osuwać, wodę będzie trzeba odpompowywać na bieżąco itd.

 


Koniec końców, tuż po świętach nie było już na co czekać i nastąpił desant budowlańców na działkę..

 

 


w tzw. międzyczasie doszło jeszcze kilka formalności z mediami, tzn. z podpisaniem umów do wykonania przyłączy. Podkreślamy, "wykonania", umowa o wydanie warunków to coś innego.. inwestorzy to pewnie wiedzą

 

 


Przejdźmy do części graficznej postu :-]

 

 


poniżej dwie fotki z zalewania ław.. z uwagi na osunięcia wyszło szeeerookooo.. trzeba było dodatkowo przywieźć 5m sześc. betonu B-20, więc jest mocne podłoże..

 

 


z ciekawostek inwestorskich.. spóźniłem się z wizytacją zbrojenia ław o 15 min. W pracy zadyma, a ekipa nie czekała, bo "deszcz wisiał w powietrzu".. to się nazywa wymuszone zaufanie inwestorskie.. :)) ale świadomość tego, że za chwilę przyjedzie wredny inwestor wystarczyła ;-]

 

 


http://lh3.ggpht.com/_iA2SFq8K5Uc/SfNnbuy9ACI/AAAAAAAAAFc/pHIy5kd1bIA/s512/1%20005.jpg

 


http://lh6.ggpht.com/_iA2SFq8K5Uc/SfNnc3prREI/AAAAAAAAAFk/DIN68S94F7c/s640/1%20008.jpg

 


a poniżej sytuacja z kolejnego tygodnia.. humus sprzątnięty, ławy odkryte i pomalowane hydroizolacyjnie w poziomie.. z technikaliów, to woda "wjechała" już do kotłowni, a prąd jest już w działce (trzeba było go kopać pod drogą).. w poniedziałek ruszamy z bloczkami.. miłego oglądania..

 

 


http://lh5.ggpht.com/_iA2SFq8K5Uc/SfNneDKZfBI/AAAAAAAAAFs/8T3raPfndbk/s640/1%20026.jpg

 


a to zdjęcie zrobiono z 5-metrowej pryzmy piachu )

 

 


http://lh3.ggpht.com/_iA2SFq8K5Uc/SfNnfQNab-I/AAAAAAAAAF0/NTYawEsHICg/s640/1%20001.jpg

 


http://lh6.ggpht.com/_iA2SFq8K5Uc/SfNngazJSAI/AAAAAAAAAF8/AZEOpZsEu3Q/s640/1%20030.jpg

ES1719504777

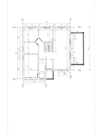
Zgodnie z obietnicą, poniżej rzut parteru ze zmianami w wymiarowaniu okien i ścian, które wprowadziliśmy do projektu. Podstawowa przesłanka dla tych zmian to dostosowanie usytuowania budynku do kierunków nasłonecznienia i 'pasywności' budynku. Jak widać, ocieplenie 20cm. Poza tym, widoczne na rzucie jest również powiększenie kotłowni i przeniesienie tarasu wzdłuż salonu.

 

 


A z nowości w naszym dzienniku, to pojawił się już link do "Komentarzy". Tam też zapraszamy do opiniowania naszych poczynań

 

 


no to rzut'em na forum..

 

 


http://lh5.ggpht.com/_iA2SFq8K5Uc/SbvvQQ6IRRI/AAAAAAAAAE4/yvmiQZrmDcY/s512/Selene%20II_rozstaw%20okien.jpg

ES1719504777

Naturalnie, że owe czekanie jest tylko pozorne. :) Kiedyś lądując w Kijowie kolega siedzący obok w samolocie, cytując przewodnik po Ukrainie, obniżył poziom zadowolenia na pokładzie tekstem: "formalności przywozowe na lotnisku: do 3 godzin".. ciekaw jestem jak to by brzmiało w przewodniku po Polsce w odniesieniu do pozwolenia na budowę :)

 

 


mówiąc wprost. Czekanie upływa zawsze na bieganiu po urzędach. W naszym przypadku maraton biurokratyczny rozpoczęliśmy pod koniec listopada. "Już" w drugiej połowie lutego uzyskaliśmy pozwolenie na budowę.. i to było niezłe tempo, jak usłyszeliśmy tu i tam..

 

 


problemów nie było.. może poza - i tu niespodzianka - problemami z.. Pocztą Polską :), która zgubiła nam na parę tygodni warunki techniczne z zakładu energetycznego. Koniec końców się znalazły. A jak już jesteśmy przy zakładzie energetycznym, to może warto wspomnieć, że to właśnie ta "firma" powoduje najwięcej opóźnień, choć trzeba im najwięcej zapłacić . W naszym przypadku trwało to dwa miesiące. Urzędy, gminne przedsiębiorstwa, spółki wodne i inspektoraty działały naprawdę szybciej. Chwała naszym Urzędom. Naprawdę!

 

 


Ok, to tyle z formalności. Potem już tylko drafting umowy z wykonawcą i bankiem i ruszamy..

 

 


Aha, co do zmian wprowadzonych do projektu (nota bene: pracownia zgadza się na większość zmian, stąd też polecamy, choć wadą pracowni jest brak wsparcia inwestora w postaci wizualizacji 3d i podejmowaniu decyzji typu: podnieść "kolankową", czy nie.. :)

 

 


Zanim wypunktujemy zmiany, winni jesteśmy drobne doprecyzowanie. Stawiamy "Selene II - lustrzane odbicie" (wersja z poddaszem użytkowym).

 

 


A teraz, co do zmian (nie ma ich wiele, bo projekt dobrze dobraliśmy do potrzeb, układu geopołożeniowego działki, energooszczędności itd.):

 


1. likwidacja pergoli;

 


2. przeniesienie tarasu na stronę południowo-zachodnią (tj. wzdłuż linii zewnętrznej salonu);

 


3. zmiana okien w salonie (dodanie dwóch dużych drzwi dwuskrzydłowych prowadzących na taras);

 


4. powiększenie kotłowni (tj. wyjście ze ścianą zewnętrzną do linii garażu - tak, by zmieścić się z piecem na paliwo stałe - pelety, ekogroszek, zboże i drewno);

 


5. "doświetlenie" poddasza większą liczbą okien połaciowych;

 

 


tak więc, jak widać, to raczej taka kosmetyka dostosowawcza, bez większej ingerencji w projekt. (obiecujemy później wkleić rysunek techniczny z wprowadzonymi zmianami)

 

 


no dobrze, czas na kolejną fotkę.. coś słoneczko wyszło zza zimowej chmurki..

ES1719504777

Niniejszym dziennik budowy projektu Selene II uważamy za otwarty..

 

 


To tyle z formalności..

 

 


pewnego słonecznego dnia zrodziła się myśl wybudowania obiektu budowlanego w obszarze ewidencyjnym.. wróć.. naszego domku na naszej super działce :)

 

 


nie za dużego, nie za małego, lecz w sam raz.. :)

 

 


Po wielu (naprawdę wielu) próbach, przymiarkach i poszukiwaniach tego jedynego, właściwego projektu wybór padł ostatecznie na Selene II z pracowni białostockiej 'Domowe klimaty'..

 

 


to co..

 

 


zapraszamy do aktywnego wsparcia techniczno-sugestywnego naszej inwestycji :).. ruszamy z łopatą za 9 dni :]

 

 


E&S



×
×
  • Dodaj nową pozycję...