Dzień dobry,
dawno nie zaglądałam a u nas mała rewolucja (właściwie to nie taka mała)
ZMIENIAMY PROJEKT I TECHNOLOGIĘ!! Całkowicie.
Opowiem w telegraficznym skrócie jak do tego doszło:
Otóż nie ufając naszemu architektowi (podejrzany typ-spotykał się z nami w restauracji-a właściwie w knajpce- bo jego biuro w remoncie -ponad rok-dużo by o nim mozna mówic:-? ) skonsultowaliśmy się z naszymi zaprzyjaźnionymi architektami. Okazało się, ze żeby wprowadzić zmiany, które planowalismy od początku( a nasz architekt mówił, ze wprowadzi się je później) trzeba by od nowa składać podanie o pozwolenie na budowę. Poza tym budynek wrysował tak,że ściana z oknami byłaby 3m od granicy działki (przeszło to w urzedzie bo architekt nasz ma tam znajomości) a nie chciałabym, żeby kazano mi je zamurować. Było jeszcze kilka innych szczegółów. Ale nie przedłużając. Delikatnie mówiąc zdenerwowaliśmy się. Chcemy zrezygnować z jego usług i tym samym z Eleny.
Po dokładnym przemyśleniu sprawy stwierdziliśmy, że może lepiej nie pakować się w kredyt 500 000 - 600 000 do końca życia tudzież liczyć na wygraną w lotka.
Stwierdziliśmy, że wystarczy nam dużo mniejszy domek- ciasny ale własny za dużo mniejsze pieniądze. Rozglądając się po internecie znaleźliśmy Larę i to była miłość od pierwszego wejrzenia. Jest malutka bo 96m2 ale dla nas idealna.
proszę państwa oto Lara
http://www.domywstylu.eu/projekty/jednorodzinne_parterowe/lara/index.php#rzuty" rel="external nofollow">http://www.domywstylu.eu/projekty/jednorodzinne_parterowe/lara/index.php#rzuty
To jej bok i tył(tyl taras z sypialni)
http://www.fotosik.pl" rel="external nofollow">http://images35.fotosik.pl/83/2b7efe3108d19594.jpg
Ładniejsza wizualizacja
http://www.fotosik.pl" rel="external nofollow">http://images42.fotosik.pl/140/80f3389af93d9212med.jpg
Bok i kawałek przodu(wszystkie okna to salon a to całkiem przeszklone-oranżeria)
http://www.fotosik.pl" rel="external nofollow">http://images35.fotosik.pl/83/d347e5856f1756eamed.jpg
Drugi bok
http://www.fotosik.pl" rel="external nofollow">http://images41.fotosik.pl/224/6ad0682cd966240dmed.jpg
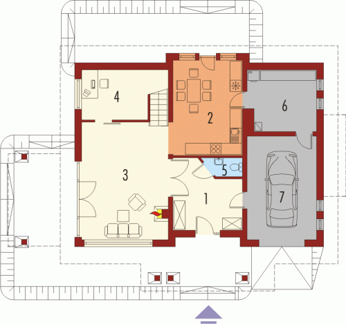
rzut
http://www.fotosik.pl" rel="external nofollow">http://images36.fotosik.pl/115/cf9bbd9b229a2de8med.gif
Chcemy ją wybudowć w technologi drewnianej. Zmiany, które na pewno chcemy wprowadzić to połączenie łazienki z toaletą i zrobienie tam okna. Mamy pewien pomysł na zmianę, która dałaby nam dodatkową sporą powierzchnię bez zmiany kształtu bryły i układu pomieszczeń ale zdradzę co to jak architekt powie, że da się to zrobić. O i bym zapomniała nad salonem jest wysoko bo ok 6m czyli coś w podobie pustki nad salonem jak w Elenie,która nam się podobała.
Lara jest projektem energooszczędnym.Wstępna wycena budowy to 295 000 + vat bez fundamentów ( fundamenty robi inna firma) za stan deweloperski. Czas budowy ok 3 miesiące.
Czekam z niecierpliwością na wasze opinie na temat projektu i pomysłu. Jak będę miała chwilę czasu to napiszę co mi się w projekcie podoba a co mniej:)
A pod linkiem jest adres strony, na której można odbyć wirtualny spacer po Larze. http://www.domywstylu.eu/wirtualny_spacer/lara/" rel="external nofollow">http://www.domywstylu.eu/wirtualny_spacer/lara/
- Czytaj więcej..
-
- 0 komentarzy
- 1 296 wyświetleń
