Sobota 23 stycznia 2016 - geodeta.Do projektu potrzebna jest mapa do celów projektowych. Zgodnie z prawem mapa ważna jest bezterminowo, a dokładnie tak długo, jak nie zajdą zmiany na danej działce. A praktyka podobno mówi co innego: starostwo akceptujące projekt może sobie zażyczyć mapy nie starszej niż dwa lata, rok, trzy miesiące. Ciekawe jak to traktuje starostwo mińskie? Zobaczymy...
Trafił się przesympatyczny geodeta, przyjechał od razu na drugi dzień, pomierzył co trzeba w try miga, i obiecał mapkę w dwa tygodnie.
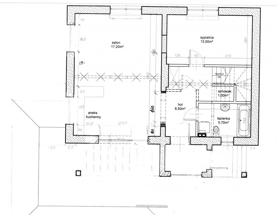
Ogrzewanie domu.
Po długiej analizie będzie to kocioł gazowy, gaz ciekły, niestety bez szans na gaz ziemny w najbliższych latach.
Analiza była długa, od:
- eko-groszku - wymaga za dużo miejsca, brudzi się, za dużo obsługi, nie da się zostawić domu na dwa tygodnie, choć tanio
- przez elektryczne grzejniki - bardzo wygodne, bardzo tania inwestycja, ale za drogie w eksploatacji
- promienniki - ogrzewanie podczerwienią - to ciekawe, ale tylko jako wspomaganie głównego źródła energii;
- pompy ciepła - eksploatacja nie do pobicia, jeśli chodzi o niskie koszty, chyba, że serwis będzie potrzebny serwis, ale inwestycja początkowa w okolicach 40.000 zamyka temat
- olej odpada od razu - bo zapachy i wymagana przestrzeń to przekreśla
- zostaje gaz ciekły - nie będzie tanio w eksploatacji, ale super wygodnie, a sam kocioł zmieści się albo w łazience, albo w schowku (tam raczej tylko zasobnik)
Dojdzie do tego zbiornik na gaz 2700l, który można elegancko zakopać pod ziemią na tak dużej działce (ogrodzone niecałe 2.000 m kw., i dalej hektar łąki)
- Czytaj więcej..
-
- 0 komentarzy
- 336 wyświetleń




