- Czytaj więcej..
-
- 0 komentarzy
- 636 wyświetleń
-
wpisów
94 -
komentarzy
0 -
odsłon
1 018
Entries in this blog
- Czytaj więcej..
-
- 0 komentarzy
- 631 wyświetleń
I tak to nastały czasy wyboru projektu, przerabiania projektu, zmian w zmianach... uzgodnień i papierkologii w urzędach.
O tym raczej za dużo nie będę pisać - wszyscy znają Naszych "kochanych" urzędników i Nasze "kochane" przepisy.
Dodam tylko tyle, że na szczęście moja działka należy pod miejscowy plan zagospodarowania przestrzennego.
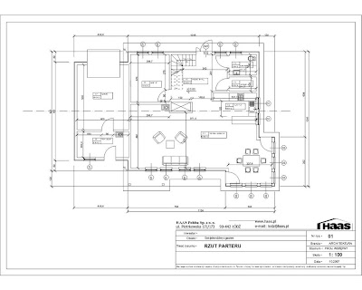
Co do projektu - ostatecznie zdecydowałam się na dom "la grande" z domów gotowych firmy Haas. Troszkę naniosłam w nim zmian.
Oto projekt podstawowy a poniżej mój (rzuty i elewacje).
Zgadnijcie czym się obrazki różnią co do ostatecznego wyglądu??
http://lh5.ggpht.com/_1jUQ0Zt0A10/SnrdHbKZkYI/AAAAAAAAAOA/eS5X_k3LzLs/93cb561e.jpg" rel="external nofollow">http://lh5.ggpht.com/_1jUQ0Zt0A10/SnrdHbKZkYI/AAAAAAAAAOA/eS5X_k3LzLs/93cb561e.jpg
http://lh6.ggpht.com/_1jUQ0Zt0A10/SnrdLL3nwrI/AAAAAAAAAOE/ryfowszJK8c/62760cc9.jpg" rel="external nofollow">http://lh6.ggpht.com/_1jUQ0Zt0A10/SnrdLL3nwrI/AAAAAAAAAOE/ryfowszJK8c/62760cc9.jpg
Ponieważ jeden z rzutów (poddasze) nie chce "zadziałać" poniżej link do projektu.
http://www.haas-fertigbau.pl/wariant_podstawowya.php" rel="external nofollow">http://www.haas-fertigbau.pl/wariant_podstawowya.php
- Czytaj więcej..
-
- 0 komentarzy
- 583 wyświetleń
I tak to nastały czasy wyboru projektu, przerabiania projektu, zmian w zmianach... uzgodnień i papierkologii w urzędach.
O tym raczej za dużo nie będę pisać - wszyscy znają Naszych "kochanych" urzędników i Nasze "kochane" przepisy.
Dodam tylko tyle, że na szczęście moja działka należy pod miejscowy plan zagospodarowania przestrzennego.
Co do projektu - ostatecznie zdecydowałam się na dom "la grande" z domów gotowych firmy Haas. Troszkę naniosłam w nim zmian.
Oto projekt podstawowy a poniżej mój (rzuty i elewacje).
Zgadnijcie czym się obrazki różnią co do ostatecznego wyglądu??
http://lh5.ggpht.com/_1jUQ0Zt0A10/SnrdHbKZkYI/AAAAAAAAAOA/eS5X_k3LzLs/93cb561e.jpg" rel="external nofollow">http://lh5.ggpht.com/_1jUQ0Zt0A10/SnrdHbKZkYI/AAAAAAAAAOA/eS5X_k3LzLs/93cb561e.jpg
http://lh6.ggpht.com/_1jUQ0Zt0A10/SnrdLL3nwrI/AAAAAAAAAOE/ryfowszJK8c/62760cc9.jpg" rel="external nofollow">http://lh6.ggpht.com/_1jUQ0Zt0A10/SnrdLL3nwrI/AAAAAAAAAOE/ryfowszJK8c/62760cc9.jpg
Ponieważ jeden z rzutów (poddasze) nie chce "zadziałać" poniżej link do projektu.
http://www.haas-fertigbau.pl/wariant_podstawowya.php" rel="external nofollow">http://www.haas-fertigbau.pl/wariant_podstawowya.php
- Czytaj więcej..
-
- 0 komentarzy
- 555 wyświetleń
Moje za:
- pomoc firmy w załatwieniu wszelkich formalności związanych z pozwoleniem na budowę.
- szybki czas budowy do stanu deweloperskiego ( 80 dni )
- użyte wysokiej klasy materiały
- technologia enerooszczędna U=0,17 - to podobno dobry współczynnik ścian :)
- późniejsze koszty eksploatacji domu (ogrzewania) - teraz potwierdzam
- duuuży wybór projektów
- duuża możliwość zmiany tych projektów
- firma z tradycją od tysiąc osiemset którego roku
- gwarancja na konstrukcję domu na 25 lat ( a później i tak się wyprowadzę do Toskanii ) - to był duży plus, bo która z Polskich firm budująca tzw metodą gospodarczą daje taką gwarancję ( max dwa lub trzy lata rękojmi)
- z pretensjami będę dzwonić tylko do jednej osoby, a nie do kilku - a znając "fachowców" to każdy zwala winę na innego
Moje przeciw:
- zbyt szybka technologia budowy - wszystkie instalacje muszą być ustalone na etapie projektu - aż takiej dobrej wyobraźni to ja nie mam !!!!
- mało realizacji na terenie Polski
- niestety wyższa cena niż budowa tradycyjna
Więc, zdając się na intuicję i więcej plusów dodatnich niż ujemnych - w dniu 27.08.2007 podpisałam umowę z firmą Haas - wpłaciłam zaliczkę i .... nie ma wyjścia. Mam nadzieję, że to dobra decyzja
- Czytaj więcej..
-
- 0 komentarzy
- 607 wyświetleń
Moje za:
- pomoc firmy w załatwieniu wszelkich formalności związanych z pozwoleniem na budowę.
- szybki czas budowy do stanu deweloperskiego ( 80 dni )
- użyte wysokiej klasy materiały
- technologia enerooszczędna U=0,17 - to podobno dobry współczynnik ścian :)
- późniejsze koszty eksploatacji domu (ogrzewania) - teraz potwierdzam
- duuuży wybór projektów
- duuża możliwość zmiany tych projektów
- firma z tradycją od tysiąc osiemset którego roku
- gwarancja na konstrukcję domu na 25 lat ( a później i tak się wyprowadzę do Toskanii ) - to był duży plus, bo która z Polskich firm budująca tzw metodą gospodarczą daje taką gwarancję ( max dwa lub trzy lata rękojmi)
- z pretensjami będę dzwonić tylko do jednej osoby, a nie do kilku - a znając "fachowców" to każdy zwala winę na innego
Moje przeciw:
- zbyt szybka technologia budowy - wszystkie instalacje muszą być ustalone na etapie projektu - aż takiej dobrej wyobraźni to ja nie mam !!!!
- mało realizacji na terenie Polski
- niestety wyższa cena niż budowa tradycyjna
Więc, zdając się na intuicję i więcej plusów dodatnich niż ujemnych - w dniu 27.08.2007 podpisałam umowę z firmą Haas - wpłaciłam zaliczkę i .... nie ma wyjścia. Mam nadzieję, że to dobra decyzja
- Czytaj więcej..
-
- 0 komentarzy
- 598 wyświetleń
- Czytaj więcej..
-
- 0 komentarzy
- 642 wyświetleń
- Czytaj więcej..
-
- 0 komentarzy
- 631 wyświetleń
Niestety, za dużo osób to nawet na tym forum nie buduje w tej technologii, więc nikt nie chciał się ze mną podzielić swoimi doświadczeniami Ale zaufałam sobie i danym w prasie i portalach "fachowych"
Poszukałam i znalazłam kilka firm na terenie Polski. Powysyłałam zapytania ze stronek internetowych, dzwoniłam do przedstawicieli - i......
Pamiętam, że firma Wolf nawet nie raczyła odpowiedzieć na moje pytania, a umówienie się z przedstawicielem graniczyło z cudem. Oj, nieładnie, nieładnie
Znalazłam również firmę Haas. Na szczęście pani z biura w Łodzi była bardzo miła, skierowała mnie do najbliższego przedstawiciela - niestety do Krakowa, ale co tam - autostradą (jak to można tak nazywać?? ) 47 km w 1,5 godziny. Na początku lipca 2007 roku pojechałam do Krakowa. Pan Robert z żoną mieszkali w domu modelowym i również byli przedstawicielami. Mogłam pooglądać "na żywo" jak te domy wyglądają - moje zaskoczenie - nie różnią się w wyglądzie zewnętrznym od domu tradycyjnego.
Dostałam cały wykład dotyczący energooszczędności takiego typu budownictwa - szczerze - to nic mi to nie mówiło. Ale wierzyłam na słowo.
Rozmawialiśmy na temat projektów, warunków umowy i realizacji budowy. Wyjechałam z jeszcze większą ilością pytań niż przyjechałam. Musiałam to wszystko "przetrawić".
Za tydzień pojechałam znów z całą dłuuugą listą pytań. Podobno jestem specjalistką od zadawania bardzo trudnych pytań . Niestety nie na wszystkie od razu otrzymałam odpowiedź. Jednak warunki realizacji budowy odpowiadały mi najbardziej, z tych które przedstawiły mi inne firmy.
A moje argumenty za i przeciw następnym razem.....
- Czytaj więcej..
-
- 0 komentarzy
- 607 wyświetleń
Niestety, za dużo osób to nawet na tym forum nie buduje w tej technologii, więc nikt nie chciał się ze mną podzielić swoimi doświadczeniami Ale zaufałam sobie i danym w prasie i portalach "fachowych"
Poszukałam i znalazłam kilka firm na terenie Polski. Powysyłałam zapytania ze stronek internetowych, dzwoniłam do przedstawicieli - i......
Pamiętam, że firma Wolf nawet nie raczyła odpowiedzieć na moje pytania, a umówienie się z przedstawicielem graniczyło z cudem. Oj, nieładnie, nieładnie
Znalazłam również firmę Haas. Na szczęście pani z biura w Łodzi była bardzo miła, skierowała mnie do najbliższego przedstawiciela - niestety do Krakowa, ale co tam - autostradą (jak to można tak nazywać?? ) 47 km w 1,5 godziny. Na początku lipca 2007 roku pojechałam do Krakowa. Pan Robert z żoną mieszkali w domu modelowym i również byli przedstawicielami. Mogłam pooglądać "na żywo" jak te domy wyglądają - moje zaskoczenie - nie różnią się w wyglądzie zewnętrznym od domu tradycyjnego.
Dostałam cały wykład dotyczący energooszczędności takiego typu budownictwa - szczerze - to nic mi to nie mówiło. Ale wierzyłam na słowo.
Rozmawialiśmy na temat projektów, warunków umowy i realizacji budowy. Wyjechałam z jeszcze większą ilością pytań niż przyjechałam. Musiałam to wszystko "przetrawić".
Za tydzień pojechałam znów z całą dłuuugą listą pytań. Podobno jestem specjalistką od zadawania bardzo trudnych pytań . Niestety nie na wszystkie od razu otrzymałam odpowiedź. Jednak warunki realizacji budowy odpowiadały mi najbardziej, z tych które przedstawiły mi inne firmy.
A moje argumenty za i przeciw następnym razem.....
- Czytaj więcej..
-
- 0 komentarzy
- 608 wyświetleń
Więc moje przemyślenia wyglądały następująco (ależ ja się nawymyślałam i naczytałam ):
- technologia "tradycyjna" cegła, pustak, porotherm, ytong - obojętnie co ale zasada moim zdaniem ta sama czyt. "technologia podaj cegłę" - czyli system gospodarczy - koszty budowy niskie, ale.... no właśnie, poszukiwanie ekipy na każdą robotę z osobna, pilnowanie dostaw materiałów, pilnowanie ilości zużytego materiału ( aby nóg nie dostał z placu budowy), codzienna moja bytność na budowie, szukanie najtańszych materiałów, jazda po hurtowniach budowlanych, użeranie się z wykonawcami..... i duuużo innych problemów - to chyba nie dla mnie.
- j.w. technologia "tradycyjna" - ale zatrudnienie jednej firmy.... zapewne to co powyżej - może tylko użeranie się z jednym wykonawcą.
- technologie domów gotowych - to już coś bardziej dla mnie.
- domy tzw. "kanadyjskie" - nie dziękuję, byłam w wiosce modelowej pod Warszawą - był tam jeden, który jeszcze nie zbudowany a drewno już zaczęło gnić. Nie ma to jak budowa ze świeżo ściętego drzewa. No i dom jest składany na placu budowy.
- a może ładny domek z bali, który wybudują mi górale?? Super, ale nie w tej okolicy - pasowałby jak pięść do oka ( tak chyba się to mówi ?)
- wtedy odkryłam technologię domów prefabrykowanych. To jeszcze bardziej pomysł dla mnie.
I to był mój wybór.
- Czytaj więcej..
-
- 0 komentarzy
- 596 wyświetleń
Więc moje przemyślenia wyglądały następująco (ależ ja się nawymyślałam i naczytałam ):
- technologia "tradycyjna" cegła, pustak, porotherm, ytong - obojętnie co ale zasada moim zdaniem ta sama czyt. "technologia podaj cegłę" - czyli system gospodarczy - koszty budowy niskie, ale.... no właśnie, poszukiwanie ekipy na każdą robotę z osobna, pilnowanie dostaw materiałów, pilnowanie ilości zużytego materiału ( aby nóg nie dostał z placu budowy), codzienna moja bytność na budowie, szukanie najtańszych materiałów, jazda po hurtowniach budowlanych, użeranie się z wykonawcami..... i duuużo innych problemów - to chyba nie dla mnie.
- j.w. technologia "tradycyjna" - ale zatrudnienie jednej firmy.... zapewne to co powyżej - może tylko użeranie się z jednym wykonawcą.
- technologie domów gotowych - to już coś bardziej dla mnie.
- domy tzw. "kanadyjskie" - nie dziękuję, byłam w wiosce modelowej pod Warszawą - był tam jeden, który jeszcze nie zbudowany a drewno już zaczęło gnić. Nie ma to jak budowa ze świeżo ściętego drzewa. No i dom jest składany na placu budowy.
- a może ładny domek z bali, który wybudują mi górale?? Super, ale nie w tej okolicy - pasowałby jak pięść do oka ( tak chyba się to mówi ?)
- wtedy odkryłam technologię domów prefabrykowanych. To jeszcze bardziej pomysł dla mnie.
I to był mój wybór.
- Czytaj więcej..
-
- 0 komentarzy
- 596 wyświetleń
- Czytaj więcej..
-
- 0 komentarzy
- 599 wyświetleń
- Czytaj więcej..
-
- 0 komentarzy
- 581 wyświetleń
Więc po kupnie działki chwilowo musiałam przystopować - minęło kilka miesięcy. Przez ten czas kupowałam katalogi, zamawiałam katalogi wszystkiego co związane z budownictwem i ogólnie rzecz biorąc przygotowywałam się merytorycznie do budowy
Największym problemem było dla mnie znalezienie sposobu jak najbardziej bezproblemowo przejść przez tą budowę.
Oczywiście intensywnie czytałam forum muratora i wraz z czytaniem Waszych przeżyć z urzędnikami a później z wykonawcami byłam coraz bardziej przerażona. Czy ja na głowę upadłam?? Na co ja się porywam?? Coraz więcej takich wątpliwości przychodziło mi do głowy.
Po obejrzeniu z 20 katalogów z domami, nadal zostałam przy pierwszym, który wpadł mi w oko tzn Dom w truskawkach.
Założenia co do projektu domu było takie: dom musi mieć na parterze dużą otwartą przestrzeń z dużą ilością okien. Poddasze użytkowe z duuużą łazienką i trzema pokojami. Nie chciałam żadnego domu w stylu "polskiego dworku" - tego pełno w okolicy. Myślałam bardziej o czymś troszkę nowocześniejszym, ale tradycyjnym.
Ale projekt - to nie problem, najwyżej będzie indywidualny. Dla mnie największa zgryzotą była technika w jakiej dom ma zostać zbudowany.
Kilka wymagań, które musiała spełnić technologia, czy też firma budowlana:
1. Budowa musiała być szybka
2. Nie mogła pochłaniać zbyt wiele mojego czasu
3. Dom w użytkowaniu musiał być tani
4. Oczywiście koszty budowy również nie mogły być horendalne
5. Chciałam mieć wpływ na każdy detal w domu
7. Najlepiej aby jedna firma wykonywała dom od fundamentów aż do wykończeniówki.
Troszkę wygórowane marzenia??? Wtedy tak mi się nie wydawało.....
- Czytaj więcej..
-
- 0 komentarzy
- 629 wyświetleń
Więc po kupnie działki chwilowo musiałam przystopować - minęło kilka miesięcy. Przez ten czas kupowałam katalogi, zamawiałam katalogi wszystkiego co związane z budownictwem i ogólnie rzecz biorąc przygotowywałam się merytorycznie do budowy
Największym problemem było dla mnie znalezienie sposobu jak najbardziej bezproblemowo przejść przez tą budowę.
Oczywiście intensywnie czytałam forum muratora i wraz z czytaniem Waszych przeżyć z urzędnikami a później z wykonawcami byłam coraz bardziej przerażona. Czy ja na głowę upadłam?? Na co ja się porywam?? Coraz więcej takich wątpliwości przychodziło mi do głowy.
Po obejrzeniu z 20 katalogów z domami, nadal zostałam przy pierwszym, który wpadł mi w oko tzn Dom w truskawkach.
Założenia co do projektu domu było takie: dom musi mieć na parterze dużą otwartą przestrzeń z dużą ilością okien. Poddasze użytkowe z duuużą łazienką i trzema pokojami. Nie chciałam żadnego domu w stylu "polskiego dworku" - tego pełno w okolicy. Myślałam bardziej o czymś troszkę nowocześniejszym, ale tradycyjnym.
Ale projekt - to nie problem, najwyżej będzie indywidualny. Dla mnie największa zgryzotą była technika w jakiej dom ma zostać zbudowany.
Kilka wymagań, które musiała spełnić technologia, czy też firma budowlana:
1. Budowa musiała być szybka
2. Nie mogła pochłaniać zbyt wiele mojego czasu
3. Dom w użytkowaniu musiał być tani
4. Oczywiście koszty budowy również nie mogły być horendalne
5. Chciałam mieć wpływ na każdy detal w domu
7. Najlepiej aby jedna firma wykonywała dom od fundamentów aż do wykończeniówki.
Troszkę wygórowane marzenia??? Wtedy tak mi się nie wydawało.....
- Czytaj więcej..
-
- 0 komentarzy
- 621 wyświetleń
wiem, wiem... miałam napisać dopiero jutro, ale jest niedziela i nie mam co robić - więc jak już zaczęłam pisać ten dziennik to mnie to wciągnęło i znów siadłam przy komputerze.
Jeszcze powinnam się usprawiedliwić i przeprosić czytających - nigdy nie pisałam za dobrze - więc w porównaniu z innymi piszącymi tu Paniami i Panami nie ma o czy w ogóle mówić wypadam blado, ale mam nadzieję, że Was to nie zniechęci i nadal będziecie czytać o moich bojach z rzeczywistością :) :) :) .
- Czytaj więcej..
-
- 0 komentarzy
- 648 wyświetleń
wiem, wiem... miałam napisać dopiero jutro, ale jest niedziela i nie mam co robić - więc jak już zaczęłam pisać ten dziennik to mnie to wciągnęło i znów siadłam przy komputerze.
Jeszcze powinnam się usprawiedliwić i przeprosić czytających - nigdy nie pisałam za dobrze - więc w porównaniu z innymi piszącymi tu Paniami i Panami nie ma o czy w ogóle mówić wypadam blado, ale mam nadzieję, że Was to nie zniechęci i nadal będziecie czytać o moich bojach z rzeczywistością :) :) :) .
- Czytaj więcej..
-
- 0 komentarzy
- 621 wyświetleń
Na pomysł budowy domu wpadłam całkiem przypadkowo. Robiąc zakupy w Castoramie z półki uśmiechnął się do mnie katalog projektów domów z Archonu . I niestety kupiłam go . Oglądając przy kawie w knajpce obok śliczne domki z katologu przyszła mi do głowy myśl, że własny dom i ogódek to było by coś niezastąpionego.
Aktualnie mieszkałam w mieszkaniu po babci, które niestety wymagało sporego remontu. Zastanawiałam się czy warto inwestować w to mieszkanie czy też kupić inne. O budowie domu nie śmiałam nawet marzyć. Ale tak to jest z abstrakcyjnymi pomysłami, zaczynają kiełkować w głowie i rosną, rosną coraz bardziej nie dając o sobie zapomnieć.
Szalę przeważyli nowi sąsiedzi, którzy wprowadzili się z trójką dzieci w wieku kilku lat. Oczywiście na początku musiał być remont - ale dlaczego genialny sąsiad uwielbiał wiercić dziury w ścianie w sobotę i niedzielę po południu?? To do dzisiaj jest dla mnie zagadką. Dzieciaki oczywiście też dodały swoje tzn. rano o 6 miałam za ścianą pobudkę - koszmar.
Więc podjęta decyzja - wyprowadzam się !!!
Czas zacząć poszukiwania.
W 2006 roku w Katowicach do wyboru znalazłam:
- inne mieszkania ( znów sąsiedzi ?? )
- domy szeregowe ( tak samo jak w bloku + 100m2 ogródka - znów bliscy sąsiedzi)
- domy z lat 60 ( konieczny remont)
- domy na osiedlach strzeżonych ( chyba musiałabym upaść na głowę aby zapłacić taką cenę )
więc nic z powyższych opcji mi nie odpowiadało.
Dlatego wrócił pomysł z budową domu takiego jak sobie wymyśliłam. Poszukałam w szafie wcześniej kupiony katalog i zaczęłam poważnie zastanawiać się nad tym pomysłem.
Ponieważ jestem osobą, która jak sobie postawi przed sobą jakiś cel - to robi wszystko aby do niego dotrzeć, więc nie zrażały mnie żadne przyszłe trudności.
Jak już wcześniej wspominałam w 2006 roku nabyłam powyższą śliczną działkę, którą zaprezentowałam wam powyżej.
To na dzisiaj na razie koniec - jutro napiszę co było po zakupie działki.... czyli tzw papierkologia
- Czytaj więcej..
-
- 0 komentarzy
- 639 wyświetleń
Na pomysł budowy domu wpadłam całkiem przypadkowo. Robiąc zakupy w Castoramie z półki uśmiechnął się do mnie katalog projektów domów z Archonu . I niestety kupiłam go . Oglądając przy kawie w knajpce obok śliczne domki z katologu przyszła mi do głowy myśl, że własny dom i ogódek to było by coś niezastąpionego.
Aktualnie mieszkałam w mieszkaniu po babci, które niestety wymagało sporego remontu. Zastanawiałam się czy warto inwestować w to mieszkanie czy też kupić inne. O budowie domu nie śmiałam nawet marzyć. Ale tak to jest z abstrakcyjnymi pomysłami, zaczynają kiełkować w głowie i rosną, rosną coraz bardziej nie dając o sobie zapomnieć.
Szalę przeważyli nowi sąsiedzi, którzy wprowadzili się z trójką dzieci w wieku kilku lat. Oczywiście na początku musiał być remont - ale dlaczego genialny sąsiad uwielbiał wiercić dziury w ścianie w sobotę i niedzielę po południu?? To do dzisiaj jest dla mnie zagadką. Dzieciaki oczywiście też dodały swoje tzn. rano o 6 miałam za ścianą pobudkę - koszmar.
Więc podjęta decyzja - wyprowadzam się !!!
Czas zacząć poszukiwania.
W 2006 roku w Katowicach do wyboru znalazłam:
- inne mieszkania ( znów sąsiedzi ?? )
- domy szeregowe ( tak samo jak w bloku + 100m2 ogródka - znów bliscy sąsiedzi)
- domy z lat 60 ( konieczny remont)
- domy na osiedlach strzeżonych ( chyba musiałabym upaść na głowę aby zapłacić taką cenę )
więc nic z powyższych opcji mi nie odpowiadało.
Dlatego wrócił pomysł z budową domu takiego jak sobie wymyśliłam. Poszukałam w szafie wcześniej kupiony katalog i zaczęłam poważnie zastanawiać się nad tym pomysłem.
Ponieważ jestem osobą, która jak sobie postawi przed sobą jakiś cel - to robi wszystko aby do niego dotrzeć, więc nie zrażały mnie żadne przyszłe trudności.
Jak już wcześniej wspominałam w 2006 roku nabyłam powyższą śliczną działkę, którą zaprezentowałam wam powyżej.
To na dzisiaj na razie koniec - jutro napiszę co było po zakupie działki.... czyli tzw papierkologia
- Czytaj więcej..
-
- 0 komentarzy
- 612 wyświetleń
- Czytaj więcej..
-
- 0 komentarzy
- 610 wyświetleń
- Czytaj więcej..
-
- 0 komentarzy
- 598 wyświetleń
- Czytaj więcej..
-
- 0 komentarzy
- 525 wyświetleń
- Czytaj więcej..
-
- 0 komentarzy
- 511 wyświetleń
- Czytaj więcej..
-
- 0 komentarzy
- 535 wyświetleń
- Poprzednia
- 2
- 3
- 4
- 5
- 6
- 7
- 8
- Dalej
- Strona 7 z 8
