Rzuty i ciąg dalszy
Uwielbiam analizować rzuty domów jednorodzinnych. Nabawiłem się tego przy okazji moich wyjątkowo długich bojów projektowych. Teraz niemal codziennie, przeglądając http://archiweb.cz" rel="external nofollow">http://archiweb.cz" rel="external nofollow">http://archiweb.cz" rel="external nofollow">http://archiweb.cz albo http://www.homedsgn.com" rel="external nofollow">http://www.homedsgn.com" rel="external nofollow">http://www.homedsgn.com" rel="external nofollow">http://www.homedsgn.com zaczynam od rzutów. Tak samo na forum szukam najpierw rzutów i od nich zaczynam lekturę dzienników budowy.
Podobają mi się szczególnie te, które są "oszczędne", w przypadku których funkcje pomieszczeń udało się zrealizować niewielką ilością ścian i linii. Bez załamań, dziwnych kątów i nadmiaru płaszczyzn. Coś takiego udało się mojemu architektowi z parterem. Wygląda on tak (tu czytelniejszy rysunek z wersji koncepcyjnej, niewiele różniącej się od ostatecznej):
Natomiast z poddaszem były problemy. Do pozwolenia na budowę został zgłoszony rzut, stanowiący zgniły kompromis pomiędzy tym, co ja chciałem, a tym, co chciał architekt. Wyglądało to mniej więcej tak (znów rysunek z koncepcji):
Takie rozwiązanie nie było zachwycające z kilku powodów. Generalnie sposób poprowadzenia korytarza (po północnej stronie kalenicy) powodował, że łazienka i pomieszczenie techniczne/pralnia (dół rzutu) były małe i niezbyt ustawne, bo ze względu na wymogi miejscowego planu zagospodarowania przestrzennego nie mogę zrobić zbyt wysokiej ścianki kolankowej. Stwierdziliśmy też, że sypialnia z dużym przeszkleniem od strony wschodniej, które w dodatku trudno zasłonić, bo to trójkątne okno, nie jest najlepszym pomysłem.
Oczywiście najlepiej było zostawić swobodę architektowi. Po wyjaśnieniu, co i jak, wymyślił coś takiego:
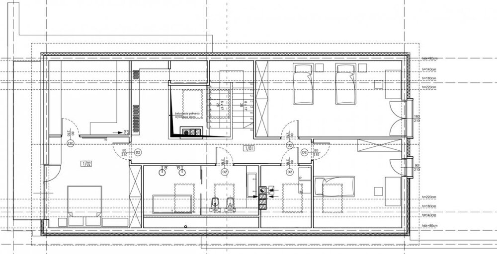
Z ważniejszych rzeczy główna sypialnia zmieniła lokalizację (i nabrała nieco korzystniejszego kształtu. Na wygląd poddasza miała natomiast w największym stopniu wpływać otwarta przestrzeń robocza z balustradą będącą jednocześnie biblioteczką. Projekt bardzo mi się spodobał (i nadal mi się podoba). Ale niestety był nie do końca praktyczny - jednak czasem pracując potrzebuję się zamknąć i odizolować od świata, więc otwarta przestrzeń robocza nie zdałaby egzaminu. Łazienka (chciałem taką ) byłaby też zbyt duża. Ostatecznie zbudowane zostało więc coś takiego:
Gabinet został zamknięty, biblioteko-balustrada raczej się nie pojawi, z łazienki wydzieliłem małą garderobę do sypialni i miejsce na łaźnię parową. Trudno - sztuka musi ustąpić przed potrzebami szarej codzienności. Choć muszę powiedzieć, że miałem pewne wyrzuty sumienia.

0 komentarzy
Rekomendowane komentarze
Brak komentarzy do wyświetlenia