Miesięcznik Murator ONLINE

Skocz do zawartości

bubes

Użytkownicy
  • Liczba zawartości

    1
  • Rejestracja

O bubes

  • Urodziny 19.02.1989

Informacje osobiste

  • Płeć
    Mężczyzna
  • Mój klub zainteresowań
    Budowa - wymiana doświadczeń

Dane osobowe

  • Miejscowość
    szczecin
  • Województwo
    zachodniopomorskie

Profil płatny

  • Kategoria
    usługi

Converted

  • Tytuł
    WITAJ, tu znajdziesz opowiedzi na swoje pytania

bubes's Achievements

WITAJ, czytaj i pytaj... :)

WITAJ, czytaj i pytaj... :) (1/9)

10

Reputacja

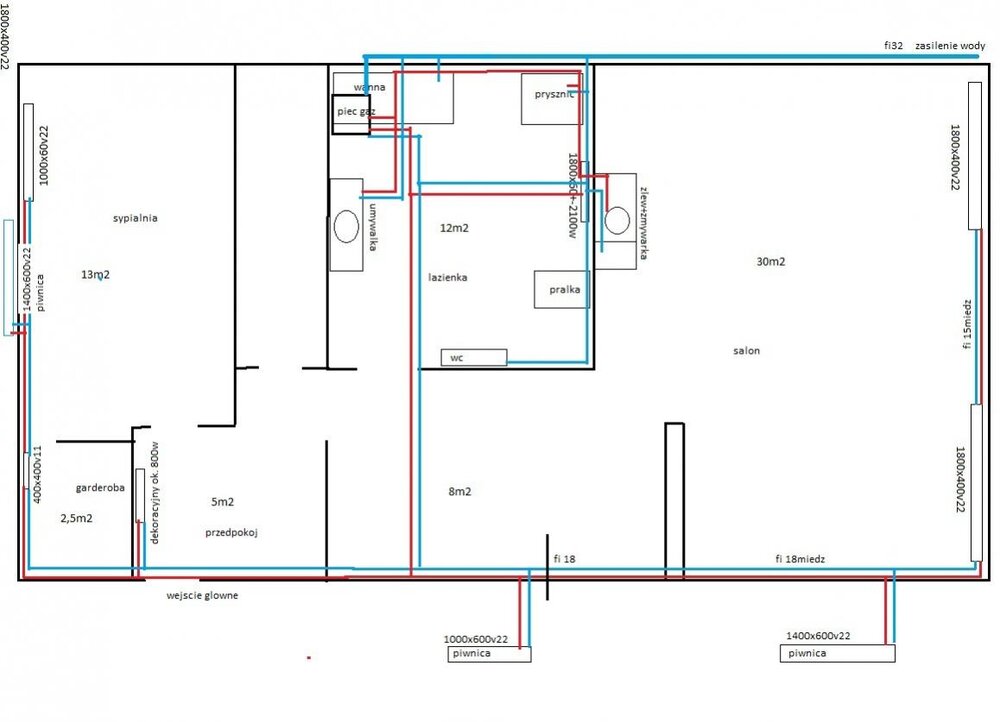
  1. Dzień dobry. To moj pierwszy post. Jestem samoukiem=samorobem. Przeprowadzam właśnie kapitalny remont byłego sklepu- przerabiam go na swoje mieszkanie właściwie zostało samo CO I CWU. Narysowałem jak wyglądają pomieszczenia i gdzie znajdują się grzejniki oraz punkty wody. Piwnica, która ma taka sama powierzchnie taką samą co góra będzie kiedyś zaadoptowana, narazie nic tam nie ma. Łazienka i kuchnia jest zrobiona tzn z każdego punktu poschodziłem do piwnicy rurkami PP fi 20. Wybrałem system zgrzewany gdyż jest tani i szybki w montażu, ze zgrzewaniem jak i lutowaniem nie ma problemu z mojej strony. cala instalacja będzie w piwnicy tzn CO I CWU a kotłownia centralnie pod łazienka. tam gdzie jest napisane fi 15,18 tam jest już pociągnięta instalacja,tam gdzie nie ma to tak jak planuje ją pociągnąć. Nie bardzo wiem jak dobrać odpowiednie średnice rur do CO I CWU a na hydraulika mnie nie stać. Jeśli chodzi o ogrzewanie to mam w planach gazówkę i piec na paliwo stale plus jakiś zasobnik 200-250l (być może z automatyką sterującą). budynek nie ocieplony-jeszcze w tym roku to zrobię. Bardzo bym prosił forumowiczów o poradę odnośnie doboru średnicy rur do wody oraz centralnego. Pozdrawiam
×
×
  • Dodaj nową pozycję...