Miesięcznik Murator ONLINE

Skocz do zawartości

krzywywdz

Użytkownicy
  • Liczba zawartości

    4
  • Rejestracja

Zawartość dodana przez krzywywdz

  1. Ok likwiduję wywiew na korytarzu na rzecz łazienki. Czy nawiew na antresoli wypadałoby zrobić na dyszach dalekiego zasięgu żeby ładnie mi się mieszało na parterze ? Jeżeli dałbym centralę w kotłowni to musiałbym też i tak się przebić przez dwa stropy do góry żeby puścić kanały do zasilania piętra na poddaszu nieużytkowym ( nie będzie obniżanych sufitów ). Na chwilę obecną wyobrażam to sobie tylko tak, że mogę to zrobić w linii prostej za pomocą skrzynek przelotowych ...ale w miejscu gdzie ewentualnie mógłbym zamontować centralą to centralnie nad mam prawie środek sypialni ....więc skrzynkę parteru zasilę ale już nie zrobić odejścia w pionie do góry przez środek pokoju a na bok też nie odejdę np gdzieś zeby szacht zrobić bo mam tylko 16 cm na gotowo podłogi... mielibyście jakis pomysł jak to rozegrać ? Umiejscowienie kotłowni widac na załącznikach z pierwszego posta.
  2. Właśnie z antresolą mam problem bo nad stropem mam bardzo mało miejsca ze względu na konstrukcje dachu i musiałbym wejść tam na czworaka żeby coś zamontować, przekuć się wiertnicą itd...ale jak będzie trzeba to się wcisnę. Nie będzie sufitów podwieszanych. Właśnie zastanawiałem się tez czy nie dać całego wywiewu z piętra w łazience ale pomyślałem, że może za bardzo hulać powietrze i chciałem to jakos rozbić właśnie poprzez ten wywiew w korytarzu. Co do umiejscowienia centrali to ciągle bije się z myślami ale mam bardzo mało miejsca w kotłowni i musiałbym tam to bardzo upychać i chyba ostatecznie jednak zostanie poddasze i skupie się na porządnej izolacji. Zastanawiam się jaki dobrać rekuperator bo w zasadzie kubatura domu to prawie 700 m3 ale z obliczeń ilość powietrza potrzebna do wentylacji to 300 m3/h. Czym się tutaj sugerować ?
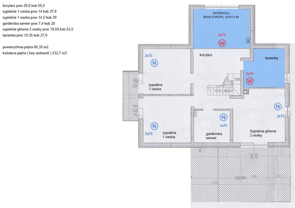
  3. Witam Zerknijcie proszę na ten projekt. Dom parter, piętro, poddasze nieużytkowe. Powierzchnia 218 m2, cała kubatura parter + piętro 670 m3. Poddasze na stropie monolit. Otwarta przestrzeń kuchnia, jadalnia, korytarz + salon z antresolą ( sufit 6 m ). Centrala zaplanowana na poddaszu nieocieplonym. Planuję wykonać zabudowę dla rekuperatora z odpowiednią izolacją. Skrzynka i kanały ułożone na podłodze poddasza w warstwie izolacji z wełny mineralnej. Przejście ze skrzynki przelotowej kanałami spiro na piętro i układam kanały zasilające parter w styropianie ( tutaj akurat mam tylko 8-9 styropianu więc dla 75 pex na styk ? ). Ogrzewanie podłogowe. Mam kilka pytań ale może ktoś ogólnie najpierw zerknie czy koncepcja jest poprawna. Dzięki
×
×
  • Dodaj nową pozycję...