78mysz 29.01.2009 21:02 Autor Zgłoś naruszenie Udostępnij Napisano 29 Stycznia 2009 pożyjemy, zobaczymy. Tylko Ty Wusiu masz juz pozamawiane tyle rzeczy, a ja ciagle nie wiem jakie okna, gdzie sciany. Wusia a Ty zamawiasz bloczki silikatowe zamiast betonowych na fundamenty?Bo sie gdzies doczytałam ze niby tak sie powinno, a praktyka praktyką Cytuj Odnośnik do komentarza https://forum.murator.pl/topic/108788-komentarze-do-mysiego-domu/page/101/#findComment-2988855 Udostępnij na innych stronach Więcej opcji udostępniania
78mysz 29.01.2009 21:04 Autor Zgłoś naruszenie Udostępnij Napisano 29 Stycznia 2009 Sciany mi tu szybko trzeba ustawiac teraz na papierze Cytuj Odnośnik do komentarza https://forum.murator.pl/topic/108788-komentarze-do-mysiego-domu/page/101/#findComment-2988861 Udostępnij na innych stronach Więcej opcji udostępniania
wu 29.01.2009 21:09 Zgłoś naruszenie Udostępnij Napisano 29 Stycznia 2009 Mysia co do okien to ja byłam zdecydowana na firmę a jak weszłam do sprzedawcy to już było po dyskusji ściany dalej mam nie zamówione bo sie waham Ciz internetu to nawet teraz by chyba nie dowieźli bo cóś miętko na działce i mogliby nie wyjechać na fundamenty tradycyjne bloczki betonowe bo coś tam mi się kojarzy że gdzieś czytałam że na fundamenty silikaty to nie teges są więc normalny beton a co z tymi ścianami Cytuj Odnośnik do komentarza https://forum.murator.pl/topic/108788-komentarze-do-mysiego-domu/page/101/#findComment-2988880 Udostępnij na innych stronach Więcej opcji udostępniania
78mysz 29.01.2009 21:13 Autor Zgłoś naruszenie Udostępnij Napisano 29 Stycznia 2009 hm ciekawe czeg nie teges Cytuj Odnośnik do komentarza https://forum.murator.pl/topic/108788-komentarze-do-mysiego-domu/page/101/#findComment-2988894 Udostępnij na innych stronach Więcej opcji udostępniania
wu 29.01.2009 21:16 Zgłoś naruszenie Udostępnij Napisano 29 Stycznia 2009 tak mi się kojarzy że jak doczytywałam wątek o silikatach to że chyba za bardzo pijące wodę są ale głowy nie dam po prostu jakoś tak bloczki betonowe i bloczki betonowe to nie zastanawiałam sie nad silikatami na fundament Cytuj Odnośnik do komentarza https://forum.murator.pl/topic/108788-komentarze-do-mysiego-domu/page/101/#findComment-2988905 Udostępnij na innych stronach Więcej opcji udostępniania
78mysz 29.01.2009 21:28 Autor Zgłoś naruszenie Udostępnij Napisano 29 Stycznia 2009 a moze i pijaceno to chluphttp://www.goniec.com/upload/Archive/art-1386.jpg Cytuj Odnośnik do komentarza https://forum.murator.pl/topic/108788-komentarze-do-mysiego-domu/page/101/#findComment-2988940 Udostępnij na innych stronach Więcej opcji udostępniania
wu 29.01.2009 21:31 Zgłoś naruszenie Udostępnij Napisano 29 Stycznia 2009 nie mogę Mysia to przez te prochy Cytuj Odnośnik do komentarza https://forum.murator.pl/topic/108788-komentarze-do-mysiego-domu/page/101/#findComment-2988953 Udostępnij na innych stronach Więcej opcji udostępniania
78mysz 30.01.2009 08:32 Autor Zgłoś naruszenie Udostępnij Napisano 30 Stycznia 2009 pij jak dają, prochy po wódce lepiej działają Cytuj Odnośnik do komentarza https://forum.murator.pl/topic/108788-komentarze-do-mysiego-domu/page/101/#findComment-2989599 Udostępnij na innych stronach Więcej opcji udostępniania
Guzmanka 30.01.2009 09:04 Zgłoś naruszenie Udostępnij Napisano 30 Stycznia 2009 O super, gratuluje PnB!!! Cytuj Odnośnik do komentarza https://forum.murator.pl/topic/108788-komentarze-do-mysiego-domu/page/101/#findComment-2989737 Udostępnij na innych stronach Więcej opcji udostępniania
Gość justyna_m 30.01.2009 09:05 Zgłoś naruszenie Udostępnij Napisano 30 Stycznia 2009 pij jak dają, prochy po wódce lepiej działają taaaa działają ... od rau albo postawi na nogi albo padnie nam Cytuj Odnośnik do komentarza https://forum.murator.pl/topic/108788-komentarze-do-mysiego-domu/page/101/#findComment-2989744 Udostępnij na innych stronach Więcej opcji udostępniania
ghost34 30.01.2009 09:10 Zgłoś naruszenie Udostępnij Napisano 30 Stycznia 2009 uff dotarłem i tu ale sie jeden dzien na impre spozniłem..czyli jak masz posfolenie to budhofać bydziesz?? Cytuj Odnośnik do komentarza https://forum.murator.pl/topic/108788-komentarze-do-mysiego-domu/page/101/#findComment-2989769 Udostępnij na innych stronach Więcej opcji udostępniania
78mysz 30.01.2009 09:35 Autor Zgłoś naruszenie Udostępnij Napisano 30 Stycznia 2009 ano bede bede Duszku. Wiec musze dupe spiąc i zdecydowac w koncu co chce i jak, zeby potem nie bylo nieszczescia arch-bud-energ i ogolnego koszmaru Cytuj Odnośnik do komentarza https://forum.murator.pl/topic/108788-komentarze-do-mysiego-domu/page/101/#findComment-2989908 Udostępnij na innych stronach Więcej opcji udostępniania
78mysz 30.01.2009 09:43 Autor Zgłoś naruszenie Udostępnij Napisano 30 Stycznia 2009 O super, gratuluje PnB!!! o dzieki Guzmanko. Nie bede proponowac tak z rana alkoholu ale ciacho a i owszem: http://www2.olympus.pl/consumer/images/cake_1_6_gr.jpg Cytuj Odnośnik do komentarza https://forum.murator.pl/topic/108788-komentarze-do-mysiego-domu/page/101/#findComment-2989938 Udostępnij na innych stronach Więcej opcji udostępniania
Gość justyna_m 30.01.2009 09:57 Zgłoś naruszenie Udostępnij Napisano 30 Stycznia 2009 i jak tu się odchudzać normalnie zaraz do cukierni polecę Cytuj Odnośnik do komentarza https://forum.murator.pl/topic/108788-komentarze-do-mysiego-domu/page/101/#findComment-2990017 Udostępnij na innych stronach Więcej opcji udostępniania
78mysz 30.01.2009 10:01 Autor Zgłoś naruszenie Udostępnij Napisano 30 Stycznia 2009 no dobra koniec slodkosci. ja nabylam ksiazke o pilates i zamierzam sie troche dostosowac... Cytuj Odnośnik do komentarza https://forum.murator.pl/topic/108788-komentarze-do-mysiego-domu/page/101/#findComment-2990039 Udostępnij na innych stronach Więcej opcji udostępniania
braza 30.01.2009 10:10 Zgłoś naruszenie Udostępnij Napisano 30 Stycznia 2009 Przyszłam namieszać Dzień dobry, witam wszystkich, widzę parę znajomych twarzy Mysza, gdzie masz jakieś wymiarowane rzuty tego swojego piętra???? Widzę, ze w ArConie pracujesz, też na nim dużo rzeczy robię Cytuj Odnośnik do komentarza https://forum.murator.pl/topic/108788-komentarze-do-mysiego-domu/page/101/#findComment-2990098 Udostępnij na innych stronach Więcej opcji udostępniania
78mysz 30.01.2009 10:14 Autor Zgłoś naruszenie Udostępnij Napisano 30 Stycznia 2009 he he he he to nie arcon to kitchen draw. zamiast łóżka stoi stół z obcietymi nogamia rzuty za 5-10 minut - musze sie jednak przemiescic do drugiego kompa. Cytuj Odnośnik do komentarza https://forum.murator.pl/topic/108788-komentarze-do-mysiego-domu/page/101/#findComment-2990127 Udostępnij na innych stronach Więcej opcji udostępniania
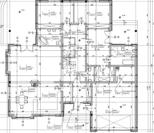
78mysz 30.01.2009 10:29 Autor Zgłoś naruszenie Udostępnij Napisano 30 Stycznia 2009 prosze bardzo:aneks sypialnyhttp://lh3.ggpht.com/_81jLH965IWA/SYLWDTJPeOI/AAAAAAAABms/qzAFKkDykIs/s512/aneks%20sypialny%20wymiary.JPG parter:http://lh4.ggpht.com/_81jLH965IWA/SYLWadVMiqI/AAAAAAAABm0/314Qjp-tLkI/s512/parter%20rzut.JPG Cytuj Odnośnik do komentarza https://forum.murator.pl/topic/108788-komentarze-do-mysiego-domu/page/101/#findComment-2990219 Udostępnij na innych stronach Więcej opcji udostępniania
Gość justyna_m 30.01.2009 10:39 Zgłoś naruszenie Udostępnij Napisano 30 Stycznia 2009 Myszka co teraz kombinujesz??? mamy ścianki przestawiać??? Cytuj Odnośnik do komentarza https://forum.murator.pl/topic/108788-komentarze-do-mysiego-domu/page/101/#findComment-2990272 Udostępnij na innych stronach Więcej opcji udostępniania
Guzmanka 30.01.2009 10:42 Zgłoś naruszenie Udostępnij Napisano 30 Stycznia 2009 O ciacho wygląda smakowicie, nawet bardzo...A też próbuję się odchudzić, brrr Dziewczyny a skąd macie dodatkowe bibloteki do tych programów, tzn. w defaultowych programach nie mam takich ładnym mebli. Siedzę też nad kuchnią.Mam i KichenDraw i i ArCona i nie ma tam takich ładnym mebelków. Cokolwiek sobie "buduje" nie wychodzi ładnie. Cytuj Odnośnik do komentarza https://forum.murator.pl/topic/108788-komentarze-do-mysiego-domu/page/101/#findComment-2990293 Udostępnij na innych stronach Więcej opcji udostępniania
Recommended Posts
Dołącz do dyskusji
Możesz dodać zawartość już teraz a zarejestrować się później. Jeśli posiadasz już konto, zaloguj się aby dodać zawartość za jego pomocą.