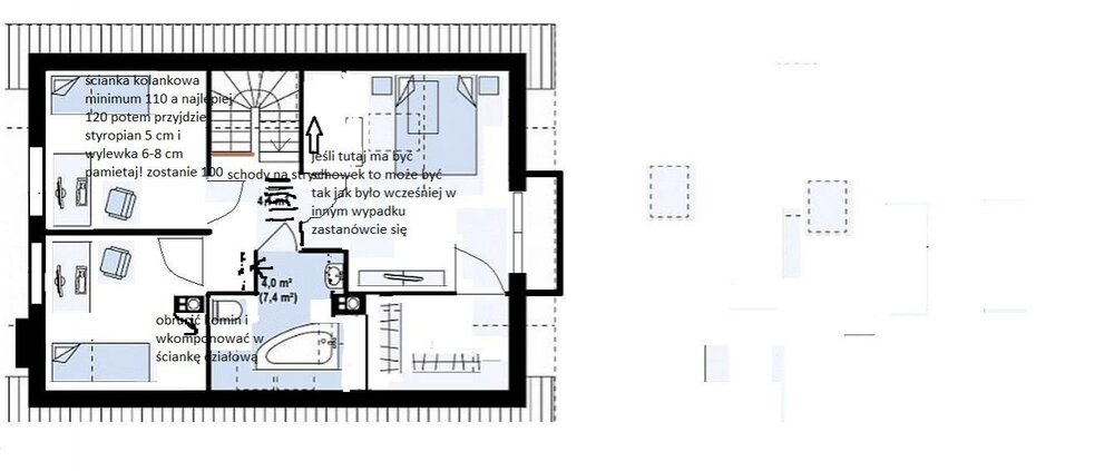
Delphion1 17.11.2012 23:51 Zgłoś naruszenie Udostępnij Napisano 17 Listopada 2012 (edytowane) Że przepłaciliśmy to chodzi o adaptację i załatwienie dokumentów na PNB.... Oj tam nie przejmuj się przepłacicie jeszcze nie raz To widzę że przepłaciliśmy..... Co do okna w łazience-oczywiście go nie będzie;) Projekt rysowałam jeszcze bez przekonania o wiacie. A ja bym się zastanowił nad tym oknem i jesli wiata byłaby nie od czoła tylko cofnieta aby okna nie zasłaniała to okno bym zostawił.Zawsze to jasno w łazience. kasinta123 poświęciłem troszkę czasu na przeróbke Twojego projektu obejrzyj i się zastanów co zostawisz a co nie z moich uwag. Może inni forumowicze też dorzuca jakieś uwagi Edytowane 18 Listopada 2012 przez Delphion1 Cytuj Odnośnik do komentarza https://forum.murator.pl/topic/131920-projekt-z34-pracownia-studio-z500/page/70/#findComment-5593567 Udostępnij na innych stronach Więcej opcji udostępniania
Tino1 22.11.2012 20:57 Zgłoś naruszenie Udostępnij Napisano 22 Listopada 2012 Czy ktoś ogrzewa Z34 gazem np. przy podłogówce? Ciekaw jestem ile kosztuje ogrzanie naszego domku na mies. w okresie grzewczym. Czy nie lepszy jest kocioł na paliwo stałe ( ekogroszek), choc napewno trzeba poświęcic mu więcej czasu. "junkersik" wygodniejszy. Cytuj Odnośnik do komentarza https://forum.murator.pl/topic/131920-projekt-z34-pracownia-studio-z500/page/70/#findComment-5602261 Udostępnij na innych stronach Więcej opcji udostępniania
Delphion1 25.11.2012 08:39 Zgłoś naruszenie Udostępnij Napisano 25 Listopada 2012 (edytowane) Coś ostatnio cicho na forum.Chyba zima idzie Tino1 spotkałem sie z opiniami,że lepiej gaz zakładać bo wygoda czysto...(znajomi,projektant) Ale sadzę ,że koszty przede wszystkim przyłącza, niektórych inwestorów zniechęcają w tym i mnie. Moim zdaniem jeśli zależy Ci na wygodzie i nie chcesz się babrać węglem to myśl o gazie. Jeśli chcesz taniej, ale za to trzeba się czasem upaprać i zbierać opał na zimę, to wtedy kociołek.Zdziwisz się,jak potrafi być przyjemna obsługa nowoczesnych kotłów. Coś w tym musi być,że użytkownicy kociołków gazowych po kilku sezonach przerzucają się na węgiel itp. Najlepiej jakby się wypowiedziała osoba która użytkuje kocioł gazowy. Wybór jest tak ogromny ,że warto przy tym posiedzieć i określić czego się chce. Edytowane 25 Listopada 2012 przez Delphion1 Cytuj Odnośnik do komentarza https://forum.murator.pl/topic/131920-projekt-z34-pracownia-studio-z500/page/70/#findComment-5606044 Udostępnij na innych stronach Więcej opcji udostępniania
marekmagda1 25.11.2012 17:54 Zgłoś naruszenie Udostępnij Napisano 25 Listopada 2012 Czy ktoś ogrzewa Z34 gazem np. przy podłogówce? Ciekaw jestem ile kosztuje ogrzanie naszego domku na mies. w okresie grzewczym. Czy nie lepszy jest kocioł na paliwo stałe ( ekogroszek), choc napewno trzeba poświęcic mu więcej czasu. "junkersik" wygodniejszy. Na chwilę obecną korzystamy z kotła dwufunkcyjnego Vaillant w starej, nieocieplonej kamienicy, powierzchnia ok 50m2, mieszkanie rogowe. Koszty to niecałe 350 zl co drugi miesiąc (płacimy ryczałtowo). Temperatura w mroźne dni nie jest oszałamiająca, bo ok 19 - 20 oC. W naszym Z34 też planujemy ogrzewanie gazem a rachunki powinny być niższe niż do tej pory (jako dodatkowe ogrzewanie planujemy kominek). Co do komfortu to nowe kotły są praktycznie bezobsługowe, tzn. na sterowniku określa się odpowiednią temp. w danej porze dnia i to wszystko . Co do kosztów to mamy szczęście, gdyż rurociąg z gazem biegnie praktycznie pod naszym płotem, więc koszty to tylko 1900 zł za przyłącze. Cytuj Odnośnik do komentarza https://forum.murator.pl/topic/131920-projekt-z34-pracownia-studio-z500/page/70/#findComment-5606610 Udostępnij na innych stronach Więcej opcji udostępniania
miłek 26.11.2012 10:14 Zgłoś naruszenie Udostępnij Napisano 26 Listopada 2012 Coś ostatnio cicho na forum.Chyba zima idzie Jak kurczę zima ? U mnie dopiero strop zalali , a mnie zalewa krew bo budowa ciągnie się od sierpnia. Trochę długo jak na dom który podobno stawia się 6-8 tygodni.Nie wiem już jak rozmawiać z moimi budowlańcami . ekipa niby sprawdzona i wszyscy zadowoleni tylko na mnie trafiło jakoś tak dziwnie, że nabrali robót z których nie potrafią się wywiązać. Nie straszne im są żadne kary , nie działają prośby. Jak tak dalej pójdzie to chyba sama zacznę murować, tylko kto za mnie będzie chodził do pracy:( Liczę na jakieś pocieszenie z waszej strony i pozdrawiam. Cytuj Odnośnik do komentarza https://forum.murator.pl/topic/131920-projekt-z34-pracownia-studio-z500/page/70/#findComment-5607606 Udostępnij na innych stronach Więcej opcji udostępniania
Delphion1 26.11.2012 19:49 Zgłoś naruszenie Udostępnij Napisano 26 Listopada 2012 Coś ostatnio cicho na forum.Chyba zima idzie Jak kurczę zima ? U mnie dopiero strop zalali , a mnie zalewa krew bo budowa ciągnie się od sierpnia. Trochę długo jak na dom który podobno stawia się 6-8 tygodni.Nie wiem już jak rozmawiać z moimi budowlańcami . ekipa niby sprawdzona i wszyscy zadowoleni tylko na mnie trafiło jakoś tak dziwnie, że nabrali robót z których nie potrafią się wywiązać. Nie straszne im są żadne kary , nie działają prośby. Jak tak dalej pójdzie to chyba sama zacznę murować, tylko kto za mnie będzie chodził do pracy:( Liczę na jakieś pocieszenie z waszej strony i pozdrawiam. Wiem co zadziała.Powiedz , że nie zapłacisz To zawsze działa. A tak na poważnie ,pilnuj aby zrobili robote dobrze a czasem się za bardzo nie stresuj bo i tak w zimie nic nie podziałasz niech tylko z dachem zdążą przed śniegami, wiosną czekamy na relacje z budowy. Cytuj Odnośnik do komentarza https://forum.murator.pl/topic/131920-projekt-z34-pracownia-studio-z500/page/70/#findComment-5608729 Udostępnij na innych stronach Więcej opcji udostępniania
krssli 27.11.2012 18:25 Zgłoś naruszenie Udostępnij Napisano 27 Listopada 2012 Witam jestem nowy na forum ja do pana Irka czy dało by rade przesłac zestawienie materiałow oraz gdzie zamawiane były płyty na strop i jaka była ich ilosc i wymiary z góry dziekuje Cytuj Odnośnik do komentarza https://forum.murator.pl/topic/131920-projekt-z34-pracownia-studio-z500/page/70/#findComment-5610368 Udostępnij na innych stronach Więcej opcji udostępniania
Delphion1 27.11.2012 20:36 Zgłoś naruszenie Udostępnij Napisano 27 Listopada 2012 Pewnie by mógł ale kontaktu nie podałeś. Cytuj Odnośnik do komentarza https://forum.murator.pl/topic/131920-projekt-z34-pracownia-studio-z500/page/70/#findComment-5610723 Udostępnij na innych stronach Więcej opcji udostępniania
krssli 28.11.2012 15:47 Zgłoś naruszenie Udostępnij Napisano 28 Listopada 2012 Mój meil [email protected] Cytuj Odnośnik do komentarza https://forum.murator.pl/topic/131920-projekt-z34-pracownia-studio-z500/page/70/#findComment-5612631 Udostępnij na innych stronach Więcej opcji udostępniania
swirek100 28.11.2012 18:39 Zgłoś naruszenie Udostępnij Napisano 28 Listopada 2012 Mój meil [email protected] już Cytuj Odnośnik do komentarza https://forum.murator.pl/topic/131920-projekt-z34-pracownia-studio-z500/page/70/#findComment-5612964 Udostępnij na innych stronach Więcej opcji udostępniania
swirek100 28.11.2012 18:50 Zgłoś naruszenie Udostępnij Napisano 28 Listopada 2012 Coś ostatnio cicho na forum.Chyba zima idzie Tino1 spotkałem sie z opiniami,że lepiej gaz zakładać bo wygoda czysto...(znajomi,projektant) . witam jaka zima ? :D jak na razie w tę jesień i zimę poszło mi 150 kg miału i troszkę sosny na rozpałkę pozdrawiam Cytuj Odnośnik do komentarza https://forum.murator.pl/topic/131920-projekt-z34-pracownia-studio-z500/page/70/#findComment-5613004 Udostępnij na innych stronach Więcej opcji udostępniania
krssli 28.11.2012 19:29 Zgłoś naruszenie Udostępnij Napisano 28 Listopada 2012 Dzieki Irek:) Cytuj Odnośnik do komentarza https://forum.murator.pl/topic/131920-projekt-z34-pracownia-studio-z500/page/70/#findComment-5613144 Udostępnij na innych stronach Więcej opcji udostępniania
krssli 28.11.2012 20:55 Zgłoś naruszenie Udostępnij Napisano 28 Listopada 2012 Czyli solbetu 24x24x59 potrzeba 900szt a na sciany działowe 12 ile trzeba oraz bloczków 24x38x12na fundament jesli bedzie 9 warstw ? Cytuj Odnośnik do komentarza https://forum.murator.pl/topic/131920-projekt-z34-pracownia-studio-z500/page/70/#findComment-5613436 Udostępnij na innych stronach Więcej opcji udostępniania
Delphion1 29.11.2012 18:41 Zgłoś naruszenie Udostępnij Napisano 29 Listopada 2012 W zasadzie poważniejsze wydatki zaczną Ci się na etapie instalacji i wykończenia więc głowy bym sobie za bardzo nie zawracał iloscią pustaków bo to akurat jeden z mniejszych wydatków podczas budowy Cytuj Odnośnik do komentarza https://forum.murator.pl/topic/131920-projekt-z34-pracownia-studio-z500/page/70/#findComment-5615697 Udostępnij na innych stronach Więcej opcji udostępniania
krssli 29.11.2012 18:59 Zgłoś naruszenie Udostępnij Napisano 29 Listopada 2012 No napewno ale od czegos trzeba zaczac a ceny teraz sa raczej niskie wiec chciał bym juz cos zaczac inwestowac na tyle ile mnie stac:D Cytuj Odnośnik do komentarza https://forum.murator.pl/topic/131920-projekt-z34-pracownia-studio-z500/page/70/#findComment-5615765 Udostępnij na innych stronach Więcej opcji udostępniania
Delphion1 30.11.2012 14:44 Zgłoś naruszenie Udostępnij Napisano 30 Listopada 2012 No napewno ale od czegos trzeba zaczac a ceny teraz sa raczej niskie wiec chciał bym juz cos zaczac inwestowac na tyle ile mnie stac:D No cóż sezon budowlany się kończy a producent chce sprzedać.Jak znajdziesz skład który Ci sprzeda teraz taniej a przetrzyma do wiosny to kupuj.Mysle,że ceny jeszcze spadną z 2 powodów zima i załamanie rynku w branży budowlanej.Pozdrawiam Cytuj Odnośnik do komentarza https://forum.murator.pl/topic/131920-projekt-z34-pracownia-studio-z500/page/70/#findComment-5617683 Udostępnij na innych stronach Więcej opcji udostępniania
igorko 30.11.2012 18:23 Zgłoś naruszenie Udostępnij Napisano 30 Listopada 2012 Nie wiem, polski (tłumaczenia są w http://polish-russian.translate.ua), ale chcę zapytać krytyków. czy można budować dom Z34 na fundamencie pala technologia samodzielnie zrobił ręczny bor? tu można popatrzeć foto wykonania takiego fundamentu: http://picasaweb.google.com/P37r0vi4/VCtNIJ# Emm... panstvo zwłaszcza nie znęcajcie się lecz u nas rzeczywiście taniej zrobić taki fundament samemu plus grunt bardzo głęboko przemarza Cytuj Odnośnik do komentarza https://forum.murator.pl/topic/131920-projekt-z34-pracownia-studio-z500/page/70/#findComment-5617987 Udostępnij na innych stronach Więcej opcji udostępniania
Delphion1 30.11.2012 20:23 Zgłoś naruszenie Udostępnij Napisano 30 Listopada 2012 Nie wiem, polski (tłumaczenia są w http://polish-russian.translate.ua), ale chcę zapytać krytyków. czy można budować dom Z34 na fundamencie pala technologia samodzielnie zrobił ręczny bor? tu można popatrzeć foto wykonania takiego fundamentu: http://picasaweb.google.com/P37r0vi4/VCtNIJ# Emm... panstvo zwłaszcza nie znęcajcie się lecz u nas rzeczywiście taniej zrobić taki fundament samemu plus grunt bardzo głęboko przemarza [ATTACH=CONFIG]151654[/ATTACH] [ATTACH=CONFIG]151665[/ATTACH] Nie znam się na tym kompletnie i pytanie powinno byc do projektanta czy cos takiego Ci zaprojektuje i kierownika czy Ci "przyklepie" Ogólnie witamy na forum zetki Pozdrawiam Cytuj Odnośnik do komentarza https://forum.murator.pl/topic/131920-projekt-z34-pracownia-studio-z500/page/70/#findComment-5618214 Udostępnij na innych stronach Więcej opcji udostępniania
Delphion1 02.12.2012 11:31 Zgłoś naruszenie Udostępnij Napisano 2 Grudnia 2012 No dobra czas na obiecane wcześniej fotki Cytuj Odnośnik do komentarza https://forum.murator.pl/topic/131920-projekt-z34-pracownia-studio-z500/page/70/#findComment-5620563 Udostępnij na innych stronach Więcej opcji udostępniania
Delphion1 02.12.2012 11:34 Zgłoś naruszenie Udostępnij Napisano 2 Grudnia 2012 (edytowane) Jeszcze kilka. Za tydzień lub dwa będą już schody(ciężko stolarzowi przychodzi kocepcja naszych barierek:)) i zostanie obrobiony słupek oraz kawałek ścianki w kuchni drewnem.Postaram sie wtedy o lepsze fotki Na wiosnę dopiero ogrodzenie i wykończymy dół domku a czym to sie jeszcze zobaczy na razie jest zagruntowane. Zostana jeszcze drzwi wewnetrzne :/ Edytowane 2 Grudnia 2012 przez Delphion1 Cytuj Odnośnik do komentarza https://forum.murator.pl/topic/131920-projekt-z34-pracownia-studio-z500/page/70/#findComment-5620567 Udostępnij na innych stronach Więcej opcji udostępniania
Recommended Posts
Dołącz do dyskusji
Możesz dodać zawartość już teraz a zarejestrować się później. Jeśli posiadasz już konto, zaloguj się aby dodać zawartość za jego pomocą.