beatagl 08.02.2014 16:09 Autor Zgłoś naruszenie Udostępnij Napisano 8 Lutego 2014 (edytowane) Kupiliśmy lodówkę side by side SAMSUNGA, mąż zobaczył ja w sklepie i już nie mógł odejść od niej. Fronty przednie ze szkła czarnego idealnie pasują do mebli jest kostkarka i dystrybutor wody a także barek http://images53.fotosik.pl/240/d1ceb48e1843e083gen.jpg http://images54.fotosik.pl/240/08a38f3288122fcbgen.jpg http://images54.fotosik.pl/240/f2145d0261fefe23gen.jpg http://images51.fotosik.pl/240/d37024368594c675gen.jpg http://images51.fotosik.pl/240/89aedfee0ae02aecgen.jpg http://images52.fotosik.pl/241/8b5e8db93cca43a4gen.jpg http://images54.fotosik.pl/240/a397798eb945025agen.jpg Edytowane 22 Kwietnia 2014 przez beatagl Cytuj Odnośnik do komentarza https://forum.murator.pl/topic/135765-dziennik-budowy-beaty-i-arka/page/7/#findComment-6321815 Udostępnij na innych stronach Więcej opcji udostępniania
beatagl 08.02.2014 16:13 Autor Zgłoś naruszenie Udostępnij Napisano 8 Lutego 2014 Hokery Wstępnie wybraliśmy te hokery lecz jest jeden problem - 400zł a my potrzebujemy 6szt siedziałam na nich i są super http://images53.fotosik.pl/240/aaf32d00ea1d11b4gen.jpg http://images55.fotosik.pl/240/38e18242cdcd618egen.jpg Cytuj Odnośnik do komentarza https://forum.murator.pl/topic/135765-dziennik-budowy-beaty-i-arka/page/7/#findComment-6321821 Udostępnij na innych stronach Więcej opcji udostępniania
antazie 21.02.2014 06:34 Zgłoś naruszenie Udostępnij Napisano 21 Lutego 2014 Witam Gratuluję domek bardzo fajny. Zauroczyła mnie Wasza kuchnia mogę prosić o namiary na wykonawcę i cenę na priv? Cytuj Odnośnik do komentarza https://forum.murator.pl/topic/135765-dziennik-budowy-beaty-i-arka/page/7/#findComment-6343078 Udostępnij na innych stronach Więcej opcji udostępniania
antazie 23.02.2014 17:31 Zgłoś naruszenie Udostępnij Napisano 23 Lutego 2014 Bardzo dziękuję za odpowiedź z niecierpliwością czekam na nowe zdjęcia:) pozdrawiam Cytuj Odnośnik do komentarza https://forum.murator.pl/topic/135765-dziennik-budowy-beaty-i-arka/page/7/#findComment-6346311 Udostępnij na innych stronach Więcej opcji udostępniania
beatagl 03.03.2014 20:55 Autor Zgłoś naruszenie Udostępnij Napisano 3 Marca 2014 Taki oto dzwoneczek do drzwi zakupiłam będzie super pasował do kołatki w drzwiach http://images54.fotosik.pl/270/9c5d90d01892fe40gen.jpg http://images51.fotosik.pl/269/819e2dd73478f54agen.jpg Cytuj Odnośnik do komentarza https://forum.murator.pl/topic/135765-dziennik-budowy-beaty-i-arka/page/7/#findComment-6358322 Udostępnij na innych stronach Więcej opcji udostępniania
beatagl 14.03.2014 21:48 Autor Zgłoś naruszenie Udostępnij Napisano 14 Marca 2014 (edytowane) Koniec biesiadowania na "ławkach" typu - dwa pustaki i deska lub wiaderko po tynku Nowy nabytek do ogrodu, bo sezon grillowy tuż....tuż http://images53.fotosik.pl/285/176cca25fd59033dgen.jpg Edytowane 17 Marca 2014 przez beatagl Cytuj Odnośnik do komentarza https://forum.murator.pl/topic/135765-dziennik-budowy-beaty-i-arka/page/7/#findComment-6372553 Udostępnij na innych stronach Więcej opcji udostępniania
beatagl 22.03.2014 13:24 Autor Zgłoś naruszenie Udostępnij Napisano 22 Marca 2014 (edytowane) Kompletujemy sprzęty niezbędne do założenia blatów zlew granitowy podwieszany jedna komora ale za to 493 x 395 x 170 mm. kolor antracyt metaliczny, z korkiem nablatowym http://images53.fotosik.pl/296/a4dbbf45fd72fd01gen.jpg Edytowane 22 Kwietnia 2014 przez beatagl Cytuj Odnośnik do komentarza https://forum.murator.pl/topic/135765-dziennik-budowy-beaty-i-arka/page/7/#findComment-6383947 Udostępnij na innych stronach Więcej opcji udostępniania
beatagl 23.03.2014 10:05 Autor Zgłoś naruszenie Udostępnij Napisano 23 Marca 2014 Dozownik do płynu wybrany ALVEUS pojemność 500ml http://images55.fotosik.pl/296/038c1d4aec8149e5gen.jpg http://images54.fotosik.pl/296/246d24cbbb9ab022gen.jpg Cytuj Odnośnik do komentarza https://forum.murator.pl/topic/135765-dziennik-budowy-beaty-i-arka/page/7/#findComment-6384857 Udostępnij na innych stronach Więcej opcji udostępniania
beatagl 23.03.2014 10:09 Autor Zgłoś naruszenie Udostępnij Napisano 23 Marca 2014 (edytowane) Długo zastanawialiśmy się na wyborem baterii pomiędzy zwykłymi oraz sprężynowymi aż w końcu wybraliśmy Bateria RHEA zlewozmywakowa sprężynowaProducent: LAVEOSymbol: BLD 06SDMateriał: mosiądzWykończenie: chromGłowica: ceramiczna 35 mmGrupa akustyczna i klasa przepływu: I A wysoka na 57 cm zasięg wylewki 25,5 cm http://images52.fotosik.pl/297/95ef525cc9338784.jpg Edytowane 23 Marca 2014 przez beatagl Cytuj Odnośnik do komentarza https://forum.murator.pl/topic/135765-dziennik-budowy-beaty-i-arka/page/7/#findComment-6384861 Udostępnij na innych stronach Więcej opcji udostępniania
beatagl 25.03.2014 20:23 Autor Zgłoś naruszenie Udostępnij Napisano 25 Marca 2014 Nie pomyśleliśmy 6 lat temu jak staliśmy się posiadaczami działki, żeby posadzić jakieś drzewka owocowe. Niby były jakieś rozmowy o tym i plany ale spełzło na niczym. Lepiej późno niż wcale więc dziś Teść miał dzień wolny i zabrał się do tego. Cały dzień szukał drzewek owocowych po całej Dębicy, udało się kupić wszystkie, które zaplanowaliśmy. Wieczorem wysłał mi fotkę z przygotowań do sadzenia, fotka tylko jedna bo baterie się wyczerpały ale za to jaka http://images54.fotosik.pl/301/815a022b9f277d61gen.jpg Maluszek 85 rocznik, za rok żółte blachy nie jedno przewiózł na naszą budowę !!! Cytuj Odnośnik do komentarza https://forum.murator.pl/topic/135765-dziennik-budowy-beaty-i-arka/page/7/#findComment-6389005 Udostępnij na innych stronach Więcej opcji udostępniania
beatagl 27.03.2014 22:08 Autor Zgłoś naruszenie Udostępnij Napisano 27 Marca 2014 (edytowane) Baterie naładowane Drzewka już rosną !!!jabłonki: Szampion, Lobo, Golden Delicious, Papierówka- wybraliśmy takie aby się zapylały nawzajemwiśnie: Wczesna Ludwika, Groniasta (samopylne),śliwy: Opal, Stanley (samopylne),brzoskwinia Rakoniewickagrusza: Konferencjaporzeczki czarna, biała oraz czerwona http://images53.fotosik.pl/304/25043215630a4ca7gen.jpg http://images53.fotosik.pl/304/9657187de1a31387gen.jpg http://images52.fotosik.pl/305/ddf7822edee1917d.jpg http://images54.fotosik.pl/305/a1227d17686b14ef.jpg porzeczki słabo widoczne ale już rosną http://images53.fotosik.pl/305/74bd0bfc035af488gen.jpg Płot straszy ale to na razie musi poczekać, tuje do wycięcia !!! Edytowane 31 Sierpnia 2015 przez beatagl Cytuj Odnośnik do komentarza https://forum.murator.pl/topic/135765-dziennik-budowy-beaty-i-arka/page/7/#findComment-6392615 Udostępnij na innych stronach Więcej opcji udostępniania
beatagl 30.03.2014 20:07 Autor Zgłoś naruszenie Udostępnij Napisano 30 Marca 2014 Prace w ogrodzie schodzą na drugi plan, wracamy do kuchni. Wybraliśmy Płytę indukcyjną Teka IRS 843 http://images51.fotosik.pl/306/0fab7e4b567f7750gen.jpg http://images52.fotosik.pl/307/06d97efb89629839gen.jpg http://images55.fotosik.pl/307/658e96b56fd06241gen.jpg Ogólne informacje:płyta indukcyjnasterowanie sensorowe typu "Slider"timer z sygnałem akustycznymsystem rozpoznawania naczyńfunkcja "Power Plus"funkcja "Smart Boiling"funkcja "Total Zone"funkcja "Stop & Go"funkcja utrzymywania ciepławskaźniki zalegania ciepłablokada nastawieńzabezpieczenie przed przegrzaniemwyłącznik bezpieczeństwapobór mocy: 7400 Wnapięcie znamionowe: 230/400 Vfacettepola grzejne: Ø 145 mm, Ø 180 mm, Ø 180 mm, Ø 280 mm Dane techniczne:Głębokość (mm): 510Szerokość (mm): 800Napięcie znamionowe 230Długość przewodu zasilającego (cm): 150Maksymalny pobór mocy (W): 7400Częstotliwość Hz: 50/6Pole indukcyjne Ø 145, 1.400/1.800 W: 1Pole indukcyjne Ø 280, 2.300/3.700 W: 1Pole indukcyjne Ø 180, 1.850/2.500 W: 2 Bezpieczeństwo:Wskaźniki zalegania ciepłaZabezpieczenie przed przegrzaniemWyłącznik bezpieczeństwaBlokada uruchomienia Wyposażenie:Funkcja "Stop & Go"MinutnikTimerSterowanie sensoroweSystem rozpoznawania naczyńFunkcja utrzymywania ciepłaFunkcja ''Total Zone''Funkcja "Smart Boiling"System rozpoznawania naczyńFunkcja "Power"Auto ignition Cytuj Odnośnik do komentarza https://forum.murator.pl/topic/135765-dziennik-budowy-beaty-i-arka/page/7/#findComment-6395901 Udostępnij na innych stronach Więcej opcji udostępniania
beatagl 30.03.2014 20:23 Autor Zgłoś naruszenie Udostępnij Napisano 30 Marca 2014 (edytowane) Czas zastanowić się nad okapem, mamy trzy typy w podobnej cenie i o jednakowych parametrach okap - tuba taki jak w projekcie http://images55.fotosik.pl/307/40921e472267bfcagen.jpg alternatywy http://images54.fotosik.pl/307/17685cf1afcd4b56gen.jpg http://images55.fotosik.pl/307/7b96a30e73cbef80gen.jpg o ile te okapy można zamontować w późniejszym czasie, to decyzja co do kupna poniższego, musiałaby być podjęta już bo montowany jest w blacie http://images54.fotosik.pl/307/c5aca8560bee2ab8.jpg Ta opcja jest o tyle interesująca, gdyż w czasach otwartych kuchni wszystko ukrywamy. Lodówki, zmywarki, zamrażarki już dawno zniknęły w zabudowie. Teraz znika okap. Z sufitu lub ściany przenosi się na blat. Zamienia się w półkę, zmienia estetykę kuchni i sposób gotowania. Co możemy zyskać? Przede wszystkim nową estetykę. Znika duży gabaryt, wiszący zwykle na ścianie lub u sufitu. Pojawia się delikatny stalowy blok na blacie. Niestety cena dwa razy wyższa, niż te wyżej Edytowane 30 Marca 2014 przez beatagl Cytuj Odnośnik do komentarza https://forum.murator.pl/topic/135765-dziennik-budowy-beaty-i-arka/page/7/#findComment-6395937 Udostępnij na innych stronach Więcej opcji udostępniania
beatagl 05.04.2014 17:47 Autor Zgłoś naruszenie Udostępnij Napisano 5 Kwietnia 2014 Mamy dwie próbki blatów granit NERO ASSOLUTO STAR GALAXY Musimy dokonać wyboru z pośród tych dwóch granitów http://images54.fotosik.pl/314/25e8a52fd7190541gen.jpg Cytuj Odnośnik do komentarza https://forum.murator.pl/topic/135765-dziennik-budowy-beaty-i-arka/page/7/#findComment-6405107 Udostępnij na innych stronach Więcej opcji udostępniania
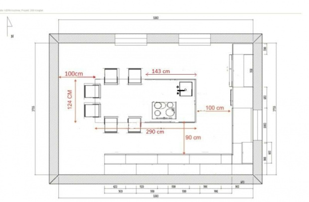
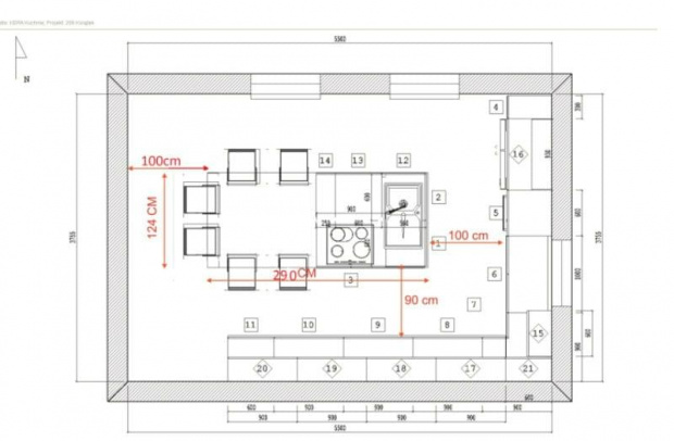
beatagl 06.04.2014 21:39 Autor Zgłoś naruszenie Udostępnij Napisano 6 Kwietnia 2014 (edytowane) Decyzja nie będzie łatwa NERO ASSOLUTO jest dostępny na wymiar 290cm , ( początkowy plan zakładał 330cm) to aż 40cm blatu mniej. Wyspa oszafkowana jest na długości 143cm + 4 cm na wysunięcie blatu poza szafki, przy blacie 290cm zostaje na część przeznaczoną na jedzenie 143cm, czy teraz zmieszczą się trzy krzesła ? STAR GALAXY jest dostępny na 315cm co by nam bardzo odpowiadało, ale cena o 200zł wyższa na m2 Przy takim wariancie zostaje 168cm Edytowane 6 Kwietnia 2014 przez beatagl Cytuj Odnośnik do komentarza https://forum.murator.pl/topic/135765-dziennik-budowy-beaty-i-arka/page/7/#findComment-6406825 Udostępnij na innych stronach Więcej opcji udostępniania
beatagl 06.04.2014 21:57 Autor Zgłoś naruszenie Udostępnij Napisano 6 Kwietnia 2014 (edytowane) Bierzemy jeszcze pod uwagę takie rozstawienie chcąc zachować 6 krzeseł http://images55.fotosik.pl/316/15c5d738c62f29dagen.jpg opcja pierwotna http://images54.fotosik.pl/316/4ba24716147ba61fgen.jpg Edytowane 6 Kwietnia 2014 przez beatagl Cytuj Odnośnik do komentarza https://forum.murator.pl/topic/135765-dziennik-budowy-beaty-i-arka/page/7/#findComment-6406852 Udostępnij na innych stronach Więcej opcji udostępniania
beatagl 08.04.2014 21:33 Autor Zgłoś naruszenie Udostępnij Napisano 8 Kwietnia 2014 (edytowane) Zdecydowaliśmy się ostatecznie na NERO ASSOLUTO !!! Blat będzie krótszy ale nie przeszkodzi to w pozostawieniu 6 krzeseł. http://images52.fotosik.pl/319/65a6b2a12b83f942gen.jpg Musimy dograć jeszcze kilka szczegółów - rozmiar nóg, wstępnie maja być 10cm x15 cm i również z tego samego granitu co blat- miejsce dla płyty indukcyjnej, mamy na to 143cm i musimy umiejscowić ją funkcjonalnie i estetycznie- ile centymetrów od zlewu wywiercić otwór na baterie ? Bateria ma 25cm wylewki - korek automatyczny nablatowy do zlewu i dozownik do płynu, co z prawej a co z lewej strony baterii ? - ile wystawić blat na zewnątrz poza szafki ?- czy robić mały frez, na górnej a może i na dolnej krawędzi blatu ? Mile widziane sugestie Edytowane 9 Kwietnia 2014 przez beatagl Cytuj Odnośnik do komentarza https://forum.murator.pl/topic/135765-dziennik-budowy-beaty-i-arka/page/7/#findComment-6409508 Udostępnij na innych stronach Więcej opcji udostępniania
beatagl 10.04.2014 19:00 Autor Zgłoś naruszenie Udostępnij Napisano 10 Kwietnia 2014 Kilka niewiadomych już rozwiązaliśmy Blaty robimy zlicowane z frontami szafek !!!korek po lewej a dozownik po prawej nie robimy ociekacza na naczynia wyfrezowanego w blacie. Problem mycia drobnych rzeczy rozwiążemy taką matą silikonową. Po wysuszeniu, naczynia jak i matę można schować. http://images52.fotosik.pl/322/ac69373925120015.jpghttp://images51.fotosik.pl/321/617b4fcb2f424cf4.jpg Cytuj Odnośnik do komentarza https://forum.murator.pl/topic/135765-dziennik-budowy-beaty-i-arka/page/7/#findComment-6411969 Udostępnij na innych stronach Więcej opcji udostępniania
beatagl 10.04.2014 19:08 Autor Zgłoś naruszenie Udostępnij Napisano 10 Kwietnia 2014 (edytowane) Szukając ociekacza na naczynia natknęłam się na taką oto dizajnerską podstawkę pod gorący garnek, po złożeniu wygląda jak kwiat w doniczce, kolorystycznie świetnie by pasowała do mojej kuchni. Wklejam w dziennik żeby o niej nie zapomnieć jak będę kompletować akcesoria http://images52.fotosik.pl/322/b126983968d66ee1.jpghttp://images52.fotosik.pl/322/972106f45e1fadc3.jpghttp://images53.fotosik.pl/322/84ebfe90432efa45.jpg Edytowane 10 Kwietnia 2014 przez beatagl Cytuj Odnośnik do komentarza https://forum.murator.pl/topic/135765-dziennik-budowy-beaty-i-arka/page/7/#findComment-6411987 Udostępnij na innych stronach Więcej opcji udostępniania
beatagl 19.04.2014 21:18 Autor Zgłoś naruszenie Udostępnij Napisano 19 Kwietnia 2014 Wesołych Świąt dla Wszystkich budujących i podglądających http://images55.fotosik.pl/332/0460d59f4f5aa7bf.jpg Cytuj Odnośnik do komentarza https://forum.murator.pl/topic/135765-dziennik-budowy-beaty-i-arka/page/7/#findComment-6422827 Udostępnij na innych stronach Więcej opcji udostępniania
Recommended Posts
Dołącz do dyskusji
Możesz dodać zawartość już teraz a zarejestrować się później. Jeśli posiadasz już konto, zaloguj się aby dodać zawartość za jego pomocą.