m4rsh4ll 24.07.2010 21:06 Zgłoś naruszenie Udostępnij Napisano 24 Lipca 2010 Witam, niedługo zamierzam wyremontować stary drewniany dom. Wielkość domu to na parterze około 70m2, więc dla jednej osoby wystarczy. Niestety nie wiem czy dobrze rozmieściłem pomieszczenia, proszę o korekty, pomysły sugestie. Wygląda to tak na szybko: http://img443.imageshack.us/img443/92/projektdomu1.jpg Nie chce mieć drzwi bezpośrednio wychodzących na ulicę, dlatego umieściłem je od tyłu działki, z wyjściem i widokiem na ogródek. Z tego co czytałem okna najlepiej umieszczać od południa, a chce mieć jasno w domu, ale nie chce mieć znowu zimno, dlatego od ogrodu mam 2 okna. Jak myślicie czy to dobry pomysł z takim rozmieszczeniem pokoi ? Poradźcie , pomóżcie. ps. do administratora, nie wiedziałem w którym dziale umieścić ten post, więc jeśli nie pasuje byłbym wdzięczny o umieszczenie we właściwym dziale Cytuj Odnośnik do komentarza https://forum.murator.pl/topic/145914-rozmieszczenie-pomieszcze%C5%84-w-domu/ Udostępnij na innych stronach Więcej opcji udostępniania
amalfi 24.07.2010 23:08 Zgłoś naruszenie Udostępnij Napisano 24 Lipca 2010 Witaj. Gdzie jest wejście do domu? Poza tym nie podoba mi sie oddzielenie części kuchenno - łazienkowej drzwiami do kiszkowatego korytarzyka. Wklej jakiś plan z wymiarami, bo ciężko sobie wyobrazić wielkość pomieszczeń. Pozdrawiam. Cytuj Odnośnik do komentarza https://forum.murator.pl/topic/145914-rozmieszczenie-pomieszcze%C5%84-w-domu/#findComment-4209997 Udostępnij na innych stronach Więcej opcji udostępniania
kamykkamyk2 25.07.2010 06:30 Zgłoś naruszenie Udostępnij Napisano 25 Lipca 2010 Ja bym zrezygnował z drzwi do korytarzyka, a poza tym z kuchni bym zrobił aneks, zamurowując stare wejście do kuchni, a tworząc nowe duże na salon. Cytuj Odnośnik do komentarza https://forum.murator.pl/topic/145914-rozmieszczenie-pomieszcze%C5%84-w-domu/#findComment-4210046 Udostępnij na innych stronach Więcej opcji udostępniania
william.bonawentura 25.07.2010 12:03 Zgłoś naruszenie Udostępnij Napisano 25 Lipca 2010 Popieram kolegę, że do kuchni lepiej mieć wejście z salonu. A jeśli ma tam mieszkać tylko jeden człowiek to nie ma chyba kompletnie sensu oddzielne WC. Większa łazienka będzie praktyczniejsza. Cytuj Odnośnik do komentarza https://forum.murator.pl/topic/145914-rozmieszczenie-pomieszcze%C5%84-w-domu/#findComment-4210272 Udostępnij na innych stronach Więcej opcji udostępniania
amalfi 26.07.2010 12:42 Zgłoś naruszenie Udostępnij Napisano 26 Lipca 2010 Osobiście wolę zamknięte kuchnie w domu, ale w tym przypadku da sie zrobić drzwi z salonu, a mały korytarzyk - kiszkę to bym całkowicie zlikwidowała, a tym samym powiększyła kuchnię, a łazienkę połączyła z kibelkiem. Cytuj Odnośnik do komentarza https://forum.murator.pl/topic/145914-rozmieszczenie-pomieszcze%C5%84-w-domu/#findComment-4211630 Udostępnij na innych stronach Więcej opcji udostępniania
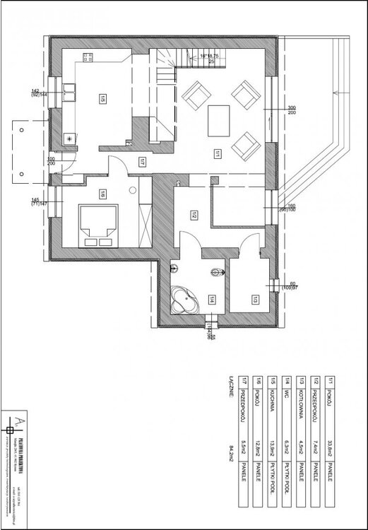
m4rsh4ll 27.07.2010 18:37 Autor Zgłoś naruszenie Udostępnij Napisano 27 Lipca 2010 Witam, wymiary domku to 11,40 długości i troszkę ponad 6 m szerokości. Zrobiłem nowy projekcik, ale łazienkę i toaletę chce mieć osobno, w mieszkaniu mam osobno i jest bardzo komfortowo. Nie chce tylko żeby brzydkie zapachy z kuchni i toalety leciały do salonu, dlatego wcześniej zrobiłem ten korytarzyk. Teraz troszkę poprawiłem, ale nie wiem np czy schody na strych mi się zmieszczą do przedpokoju po lewej. I w ogóle jak wam się to widzi, wiadome okna będą symetrycznie wstawione, nie wiedziałem tylko jak w programie wycentrować, bo się nie dało ), to samo z drzwiami. WG projektu przedpokój ma 6,45m2, pokój z lewej na dole 13,71 m2, salon 23,77 m2, kuchnia 9,26 Łazienka 7,85, toaleta 1,40 m2. Nie wiem czy to odpowiednie wielkości ? Coś powiększyć coś pomniejszyć ? http://img198.imageshack.us/img198/3918/pokoje.png Cytuj Odnośnik do komentarza https://forum.murator.pl/topic/145914-rozmieszczenie-pomieszcze%C5%84-w-domu/#findComment-4213437 Udostępnij na innych stronach Więcej opcji udostępniania
malka 08.08.2010 15:12 Zgłoś naruszenie Udostępnij Napisano 8 Sierpnia 2010 A ja obstawiam korytarzyk, wejście wprost z salonu do wc , średnio fajne. A powiedz sąsiad od wschodu jest bardzo blisko ? czy może jest mozliwość zrobienia tam głównego wejścia. Jak wygląda fundament, które ściany są konstrukcyjne ? na czerwono zaznaczyłam ewentualne wejście główne i do łazienki, na niebiesko duze okno tarasowe Cytuj Odnośnik do komentarza https://forum.murator.pl/topic/145914-rozmieszczenie-pomieszcze%C5%84-w-domu/#findComment-4228900 Udostępnij na innych stronach Więcej opcji udostępniania
amalfi 12.08.2010 21:43 Zgłoś naruszenie Udostępnij Napisano 12 Sierpnia 2010 A ja prawą stronę domku widzę tak:http://img831.imageshack.us/img831/470/domek.png Uploaded with ImageShack.us Co do lewej, to napisz, czy jest możliwość przebicia okien na boczną ścianę i jak zapytała malka, w jakiej odległości masz sąsiadów. No i czemu uparłeś się na wejście od podwórka? Cytuj Odnośnik do komentarza https://forum.murator.pl/topic/145914-rozmieszczenie-pomieszcze%C5%84-w-domu/#findComment-4234852 Udostępnij na innych stronach Więcej opcji udostępniania
m4rsh4ll 15.08.2010 20:59 Autor Zgłoś naruszenie Udostępnij Napisano 15 Sierpnia 2010 amalfi Co do sąsiadów nie da rady. Nie ma tam budynku bezpośrednio przy domu, ale sam dom znajduje się przy granicy jakieś 50 cm. od ogrodzenia. Z prawej strony jest mniej więcej z 2 metry do granicy 3 m od domu sąsiadów. W sumie sobie zrobili okienko, ale przypuszczam że to nielegalnie, kto by wydał pozwolenie na takie coś )) Wystarczy że dom z prawej strony by się zaczął palić to nie przypuszczam żeby coś zostało z mojego Dom od strony dolnej rysunku, znajduje się bezpośrednio przy chodniku. Czyli byłoby to wyjście na ulicę. Może macie rację żeby z tamtej strony umiejscowić drzwi, ale na ogród też bym chciał mieć, bo z tamtej strony po usunięciu komórki i dogadaniem się z sąsiadem odnośnie zakupu kawałka jego działki będzie bardzo ładny widok ze wzgórza na okoliczny teren. Zawsze chciałem mieć przeszkolone drzwi na zielony ogród. To moje marzenie. W zimie mogę je jakoś zadekować, a na lato otwierać. Co do Twojego rysunku... X to toaleta.. To zostanie mała wnęka do korytarzyka.. hm zastanowię się... Na pewno macie rację że odpada mały długi wąski korytarzyk, widoczny na pierwszym planie.. Co do toalety boję się niemiłych zapachów wychodzących na salon, oraz odgłosów z samej toalety, chce żeby nie było nic słychać, żeby było komfortowo dla tych co siedzą w wc i dla tych w salonie. Dobry pomysł żeby zlikwidować 2 pary drzwi wychodzących na salon, ewentualnie zrobić jedne na środku przesuwane... Nie wiem czy chce mieć taką wnękę widoczną z salonu... Co do fundamentów, dopiero będą robione, bo to będzie przebudował starego drewnianego domu. Także i tak wszystko pójdzie od zera. Dziękuje za pomoc i za rady Cytuj Odnośnik do komentarza https://forum.murator.pl/topic/145914-rozmieszczenie-pomieszcze%C5%84-w-domu/#findComment-4237734 Udostępnij na innych stronach Więcej opcji udostępniania
SidieN 15.08.2010 21:20 Zgłoś naruszenie Udostępnij Napisano 15 Sierpnia 2010 Jesli masz mieszkac sam to dlaczego chcesz miec ubikacje i lazienke osobno? Przy takiej przestrzeni mozna zrobic ladana lazienke rodem z katalogu jakiejs firmy produkujacej kafelki. Jakie bedzie przeznaczenie strychu? Chcesz kiedys adaptowac go na cele mieszkalne? Jeli tak to schody postawilbym tak aby wypadaly w polowie dlugosci budynku, ulatwi to podzial gory. W tej chwili schody sa z boku budynku i robiac cokolwiek na gorze zeby dotrzec do prawej strony trzeba przejsc caly strych. Nastepna rzecz nad ktora bym sie zastanowil to oddzielenie wejscia do budynku od salonu. Wiem ze przeszklone drzwi wychodzace na ogrod wygladaja w salonie bardzo fajnie ale stale uzywanie takiego wyjscia morze byc uciazliwe zwlaszcza zima. Cytuj Odnośnik do komentarza https://forum.murator.pl/topic/145914-rozmieszczenie-pomieszcze%C5%84-w-domu/#findComment-4237765 Udostępnij na innych stronach Więcej opcji udostępniania
m4rsh4ll 16.08.2010 08:42 Autor Zgłoś naruszenie Udostępnij Napisano 16 Sierpnia 2010 SidieN mam mieszkać sam, ale to nie znaczy że kiedyś nie będę tam mieszkał z rodziną. Poza tym gdybym miał kogoś przenocować, lub gdyby odwiedzili mnie znajomi, ktoś kto się kąpie praktycznie by zamknął dostęp do toalety. Bardzo cenie sobie toaletę osobno i tak być musi Co do schodów, możesz na planie zaznaczyć gdzie dokładnie by je umiejscowić? Tak, strych kiedyś wykończę ponieważ roztacza się tam niesamowity widok na okolice. Ale wszelkie pomieszczenia gospodarcze typu łazienka kuchnia toaleta na górze odpadają, ze względów praktycznych. Cytuj Odnośnik do komentarza https://forum.murator.pl/topic/145914-rozmieszczenie-pomieszcze%C5%84-w-domu/#findComment-4238184 Udostępnij na innych stronach Więcej opcji udostępniania
SidieN 16.08.2010 17:45 Zgłoś naruszenie Udostępnij Napisano 16 Sierpnia 2010 Moim zdaniem pomysl z korytarzykiem po prawej stronie nie byl zly, tyle ze wejscie do domu zrobilbym po prawej stronie i kotytarzyk robilby za przedpokoj. Jesli masz tam dwa metry ziemi to spokojnie mozna zrobic tam jakies dojscie. Jak juz pisalem przeszklone drzwi w salonie sa bardzo fajne ale nie jako drzwi wejsciowe. dodatkowo w korytarzyku mozesz zrobica jakas szafe zabudowana. Co do schodow to wsztko zalazy od tego jakie chcesz miec schody, proste, zabiegowe krecone. Zalezy jaka jest wysokosc pomieszczenia. Wazne zeby wychodzily mniejwiecej w polowie dlugosci strychu (wg Twojego projektu gdziec nad salonem) i oczywiscie w takim miejscu zebys wchodzac na gore mial dostatecznie duzo miejsca nad glowo. Jesli chodzi o lazienke na gorze to warto zrobic dodatkowa. Gdybys kiedys zdecydowal sie przeniesc sypialnie na gore to zbieganie w nocy po najprawdopodobniej stromych schodach nie nalezy do przyjemnych rzeczy. Oczywiscie sa to tylko moje sugestie i wazne zebys zrobil tak jak Tobie bedzie najwygodniej. Cytuj Odnośnik do komentarza https://forum.murator.pl/topic/145914-rozmieszczenie-pomieszcze%C5%84-w-domu/#findComment-4238852 Udostępnij na innych stronach Więcej opcji udostępniania
malka 16.08.2010 23:52 Zgłoś naruszenie Udostępnij Napisano 16 Sierpnia 2010 (edytowane) Wbrew pozorom mam bardzo podobny układ do Twojego, tylko nieco z działówkami poszaleliśmy bo powierzchnia troche większa, no i ta przybudówka, ale układ domu na dzialce taki sam, blisko drogi, wejście na ogród i parę metrów do sąsiadów . [ATTACH]20297[/ATTACH] tak wyglądał plan pierwotny, który nieco zmodyfikowaliśmy (trzymał nas fundament - przebudowa starego domu), ale tego wąskiego korytarzyka nie dało się pozbyć - w wersji pierwotnej ciągnął się przez całą szerokość domu od wejścia głównego wyjścia na ogród. Także w łazienka był kłopot bo wejście z salonu, ale i to rozwiązaliśmy, "chowając" je jakby w głębi. W ostatecznym rozrachunku wygląda to tak Edytowane 17 Sierpnia 2010 przez malka Cytuj Odnośnik do komentarza https://forum.murator.pl/topic/145914-rozmieszczenie-pomieszcze%C5%84-w-domu/#findComment-4239357 Udostępnij na innych stronach Więcej opcji udostępniania
malka 17.08.2010 00:04 Zgłoś naruszenie Udostępnij Napisano 17 Sierpnia 2010 (edytowane) Cos mi się z obrazkami popitoliło, a nie wiem czemu załączników nie da się edytować więc w planach pierwotnychbyło tak Edytowane 17 Sierpnia 2010 przez malka Cytuj Odnośnik do komentarza https://forum.murator.pl/topic/145914-rozmieszczenie-pomieszcze%C5%84-w-domu/#findComment-4239362 Udostępnij na innych stronach Więcej opcji udostępniania
malka 17.08.2010 00:22 Zgłoś naruszenie Udostępnij Napisano 17 Sierpnia 2010 i jeszcze tak sobie myślę, skoro to całkowita przebudowa, to zamieniłabym miejscami kuchnię i łazienkę z wc( i wejście do wc zrobiłabym z łazienki ) - .jakoś wygodniejszy mi się taki układ wydaje. przepraszam,ze tak post po poście, ale coś mi się kopie z załącznikami Cytuj Odnośnik do komentarza https://forum.murator.pl/topic/145914-rozmieszczenie-pomieszcze%C5%84-w-domu/#findComment-4239366 Udostępnij na innych stronach Więcej opcji udostępniania
Recommended Posts
Dołącz do dyskusji
Możesz dodać zawartość już teraz a zarejestrować się później. Jeśli posiadasz już konto, zaloguj się aby dodać zawartość za jego pomocą.