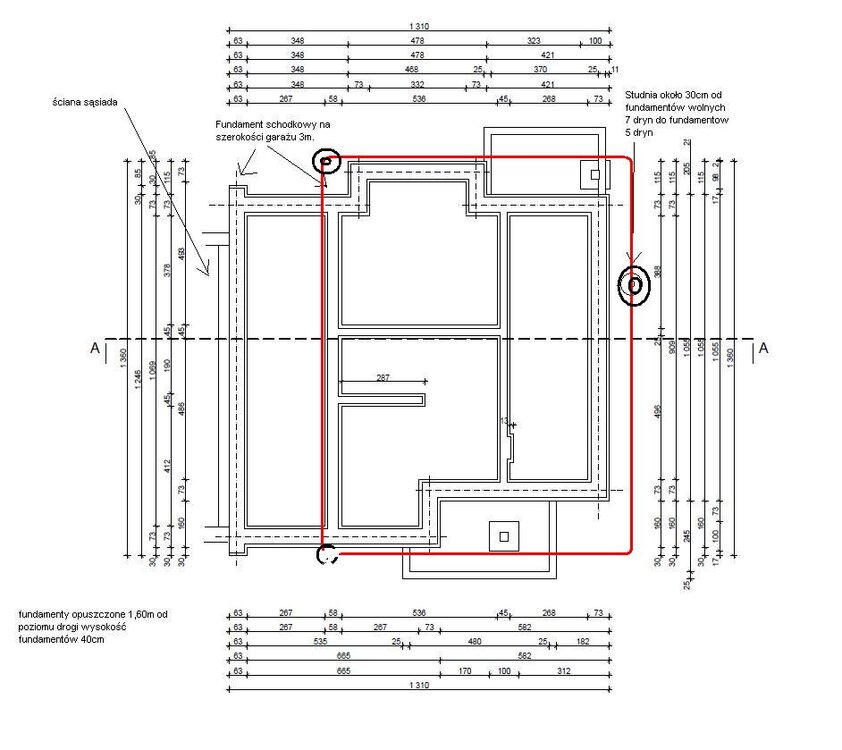
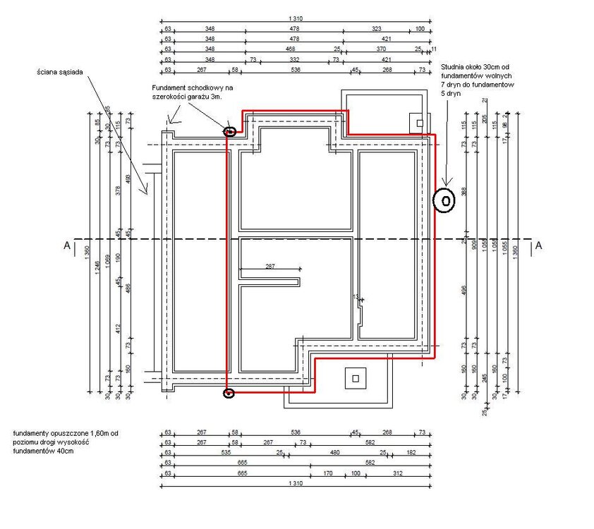
skresz 22.09.2010 10:16 Zgłoś naruszenie Udostępnij Napisano 22 Września 2010 Witam chciałem się poradzić osób które same robiły drenaż Przedstawiam dwa rysunki z naniesionymi rurkami od drenażu i zastanawiam się który sposób wykonania będzie lepszy 1 rysunek przedstawia rurę drenarską ułożoną 60cm od ławy w każdym miejscu lecz ma więcej łączeń i załamań Drugi rysunek mam mniej załamań bo tylko 2 lecz w najdalszym miejscu rura jest odsunięty 2,2m od ławy Lecz to jest nic w porównaniu do kolejnego problemu otóż okazało się że sąsiad nie ma piwnic na całym budynku i musieliśmy zrobić od jego strony fundament schodkowy wszystko byłoby ok. bo w miejscu garażu i tak nie było piwnic, lecz jak teraz zrobić drenaż. Ława wygląda mniej więcej tak jak na rysunku i teraz nie wiem 1. czy jest sens dawać róże drenarską na ławie zaraz za ścianą oddzielającą cześć podpiwniczoną o nie podpiwniczonej na końcach dać studzienki drenarskie i dzięki temu można swobodnie połączyć dreny z pozostało częścią drenażu (zniwelować różnice poziomów) 2. czy może dać drenaż za pierwszym schodkiem lecz wtedy będzie pod ławą ale wszystko będzie na jednym poziomie 3. najbardziej radykalne rozwiązanie dać drenaż z 3 stron a od strony fundamentów schodkowych zostawić bez odwodnienia Dodam tylko ze teren to glina pomieszana z piaskiem od części podwórka widać że woda delikatnie wybija (od 2 tygodni nie padało a woda cały czas się zbiera na wschodniej ścianie) Wykop na 180cm Rozmawiałem z firmą to Pan mi wyliczył 2500zł za robociznę 45m rury drenarskiej z geowłóknina 10zł/mb = 450zł 2 studzienki drenarskie 2m = 600zł 2 /9 Kolanka drenarskie 13zł/szt = 26 lub 117zł 50m/b geowłókniny 2*50mb *150g/1m = 250zł Osypka 12m3 * 30zł = 360zł Suma 1777zł i ceny nie najtańsze Ławy odsłonięte studnia stoi w odległości 30cm od ław wystarczy ułożyć wąż i obsypać oraz wpuścić dreny do studni czas pracy szacuje dla 2 osób około 4-6godzin Po prostu przesadził Pozdrawiam i czekam na opinie osobiście chyba będę robił 1spobem Cytuj Odnośnik do komentarza https://forum.murator.pl/topic/148343-drena%C5%BC-jak-wykona%C4%87/ Udostępnij na innych stronach Więcej opcji udostępniania
hydrogenium 23.09.2010 09:07 Zgłoś naruszenie Udostępnij Napisano 23 Września 2010 (edytowane) Ja bym zrobił tak: Ad. 1. - drenaż im mniej załamań tym lepiej, ale jedno i drugie będzie działać; rura przy ścianie jest tym leprze iż w tym przypadku nie będzie możliwości gromadzenia się wody np opadowej przy ścianie ponieważ spłynie wprost do drenu; ja bym wybrał rozwiązanie mniej pracochłonne Ad. 2. Rura pod schodkiem w rurze obsadowej fi160PVC obetonowana pod ławą i na odległości po30cm z każdej strony poza ławę (zapobieganie rozmakaniu gruntu pod schodkiem), wykop pod posadzką garażu w spadku dwustronnym do studzienek (wystarczy 0,5% aby woda z zewnętrznych nitek drenu nie wpływała pod dom)) Ad. 3 koszty: 2,5 tys. za robociznę; to chyba koleś chce zarobić za cały miesiąc; tydzień temu sam robiłem drenaż, 50m z dwiema studniami oraz odwodnieniem posadzki piwnic (kratki ściekowe), glina jak ta lala po opadach, całość tj, wyczyszczenie wykopu z pobraniem około 10cm, wypoziomowanie, podsypka piaskowa, ułożeniu żwiru, ułożenie rury w tkaninie i opsypka żwirem zajęło nam 2 dni (tj ja i teść)po 8h. A teraz o kosztach, porównam z moimi doświadczeniami. 45m rury drenarskiej z geowłóknina 10zł/mb = 450zł - ja zastosowałem zwykłą fi80 perforowane (zresztą po co ci rura w włóknie skoro i tak owijasz drenaż geowłókniną wg mnie przerost formy nad treścią) po 2,8zł/mb + włóknina szerokości 1m chyba po 3zł mb2 studzienki drenarskie 2m = 600zł - za takie same studzienki płaciłem 180zł sztuka (rura karbowana fi400 od Kaczmarczyka bez dekla, dekiel dorobiłem sam betonowy a dno wybetonowawłem, dziury dla rur można wyciąć bez problemu pierścieniami do wycinania otworów w GK, jakieś 15min roboty z przerwą na papierosa)2 /9 Kolanka drenarskie 13zł/szt = 26 lub 117zł - a po co tu kolana drenarskie50m/b geowłókniny 2*50mb *150g/1m = 250zł - opisałem wyżejOsypka 12m3 * 30zł = 360zł - za tę cenę nie kupisz żwiru a piasek nie będzie puszczał dobrze wody , piasek to można dać ewentualnie max 5-10cm na dno jako dodatkowy filtr, drenaż bezwzględnie obsypać żwirem 8-16mm, ja na 50m zużyłem 18T żwiru po coś koło 70zł tona (oczywiście z transportem). Teraz już tylko drenaż nakryć folia aby nie brał wody od góry tylko z dołu i zasypać.. Edytowane 23 Września 2010 przez hydrogenium Cytuj Odnośnik do komentarza https://forum.murator.pl/topic/148343-drena%C5%BC-jak-wykona%C4%87/#findComment-4294779 Udostępnij na innych stronach Więcej opcji udostępniania
skresz 24.09.2010 06:01 Autor Zgłoś naruszenie Udostępnij Napisano 24 Września 2010 (edytowane) Witam ponownie hydrogenium niestety nie dam rady wstawić rury drenarskiej pod schodkiem. Wczoraj oglądałem ławy i zgięcia z szalunku, niżej zamieszczam jak to dokładnie wygląda pierwszy stopień zaczyna się 10cm od niskiej ławy i jest wyskoki na 60cm kolejny zaczyna się na 160cm od niskiej lawy i pod nim miałem przekopać lecz już metr od ławy jest nie wybrane i nadsypane by później zasypać wiec żeby to przekopać to jak dla mnie około tygodnia bądź dużej a sprzęt nie ma jak wiecheć Zostaje rozwiązanie ułożenie na ławie lub też mógłbym spróbować wyciąć w bocznej lawie delikatna wypustkę by obniżyć rurę drenarską z 10-20cm lecz to będzie w odległości max 15cm od ławy dodarcie co lepiej zrobić Edytowane 24 Września 2010 przez skresz Cytuj Odnośnik do komentarza https://forum.murator.pl/topic/148343-drena%C5%BC-jak-wykona%C4%87/#findComment-4295896 Udostępnij na innych stronach Więcej opcji udostępniania
grzesion 26.09.2010 08:54 Zgłoś naruszenie Udostępnij Napisano 26 Września 2010 Panowie pomóżcie mam poważny problem nie wiem jak wykopać drenaż wszędzie mi woda się leje mam tam straszno glinę nie wiem jak mam to zrobić jeżeli tego nie wykonam to nie nie będę mógł nic zrobić w domu . Wiem że stan wód jest bardzo wysoki ale przecież jest na pewno jakiś na to sposób Dziękuje. Cytuj Odnośnik do komentarza https://forum.murator.pl/topic/148343-drena%C5%BC-jak-wykona%C4%87/#findComment-4298077 Udostępnij na innych stronach Więcej opcji udostępniania
hydrogenium 27.09.2010 04:52 Zgłoś naruszenie Udostępnij Napisano 27 Września 2010 Drenaż na ławie nic nie da.Nikt nie powiedział że będzie łatwo. Upieram się "pod stopniem z obetonowaniem aby nie rozmywała gruntu pod ławą. Cytuj Odnośnik do komentarza https://forum.murator.pl/topic/148343-drena%C5%BC-jak-wykona%C4%87/#findComment-4299019 Udostępnij na innych stronach Więcej opcji udostępniania
skresz 27.09.2010 11:39 Autor Zgłoś naruszenie Udostępnij Napisano 27 Września 2010 dokładnie ta jak piszesz hydrogenium położenie na ławie raczej nic nie da wiec robię tak Ława wygląda tak jak na powyższej ilustracji, grunt to glina nie ruszana, było tylko wykopane ręcznie pod fundament, wiec grunt jest zbity i twardy. Opaskę zrobię na wysokości najniższych ław i wysunę do końca muru na styku z sąsiadem, ławy schodkowe zabezpieczę murując ściankę i ją zabezpieczając izolacją pionową Koszt rura drenarska 170zł geowłóknina 1,5m 250zł Kamyszek 750zł Sposób powinien się sprawdzić ale to zobaczymy Inne opcje nie wchodzą w grę, chodź chciałbym zrobić to porządnie tak jak pisze hydrogenium lecz nie mam tyle czasu a zlecić to moim fachową się boje (zapomnieli zrobić jednej ławy w środku mieszkania) Cytuj Odnośnik do komentarza https://forum.murator.pl/topic/148343-drena%C5%BC-jak-wykona%C4%87/#findComment-4299683 Udostępnij na innych stronach Więcej opcji udostępniania
robertsz 28.09.2010 06:32 Zgłoś naruszenie Udostępnij Napisano 28 Września 2010 Panowie pomóżcie mam poważny problem nie wiem jak wykopać drenaż wszędzie mi woda się leje mam tam straszno glinę nie wiem jak mam to zrobić jeżeli tego nie wykonam to nie nie będę mógł nic zrobić w domu . Wiem że stan wód jest bardzo wysoki ale przecież jest na pewno jakiś na to sposób Dziękuje. Kopać możesz ręcznie lub mechanicznie. Wodę usuwasz za pomocą pompy, takiej która się mułu nie boi. Wodę możesz też odprowadzać bezpośrednio do jakiegoś rowu (jeśli spad na to pozwala). Cytuj Odnośnik do komentarza https://forum.murator.pl/topic/148343-drena%C5%BC-jak-wykona%C4%87/#findComment-4300721 Udostępnij na innych stronach Więcej opcji udostępniania
Recommended Posts
Dołącz do dyskusji
Możesz dodać zawartość już teraz a zarejestrować się później. Jeśli posiadasz już konto, zaloguj się aby dodać zawartość za jego pomocą.