lakorun 17.10.2010 19:03 Zgłoś naruszenie Udostępnij Napisano 17 Października 2010 Nastał wieczór.... długo oczekiwany! odważyłam się napisać uffff... Witam bardzo serdecznie w moich skromnych progach Cytuj Odnośnik do komentarza https://forum.murator.pl/topic/149295-moje-ma%C5%82e-mieszkanko/ Udostępnij na innych stronach Więcej opcji udostępniania
lakorun 17.10.2010 19:17 Autor Zgłoś naruszenie Udostępnij Napisano 17 Października 2010 Moi drodzy, to teraz może trochę szczegółów;) Moje malutkie mieszkanko... się buduje... są już ściany...okna... dach... a od niedawna nawet barierka na balkonie mam nadzieję, że budynek będzie zamknięty jeszcze przed zimą.... i że zgodnie z harmonogramem a może nawet trochę przed - dostanę swoje klucze ))) ku mojej wielkiej radości tak wygląda ono dziś... Cytuj Odnośnik do komentarza https://forum.murator.pl/topic/149295-moje-ma%C5%82e-mieszkanko/#findComment-4328567 Udostępnij na innych stronach Więcej opcji udostępniania
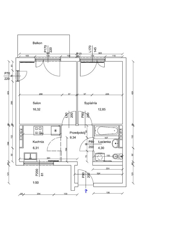
lakorun 17.10.2010 19:21 Autor Zgłoś naruszenie Udostępnij Napisano 17 Października 2010 uwaga rozpędzam się: mieszkanie znajduje się na 2 piętrze... a układ pomieszczeń jest następujący : Cytuj Odnośnik do komentarza https://forum.murator.pl/topic/149295-moje-ma%C5%82e-mieszkanko/#findComment-4328573 Udostępnij na innych stronach Więcej opcji udostępniania
nemi 17.10.2010 19:37 Zgłoś naruszenie Udostępnij Napisano 17 Października 2010 Witaj w gronie posiadaczy małych mieszkań. Będę zaglądać - może jakieś inspiracje dla siebie podpatrzę. PS. Komentarze można tutaj? Cytuj Odnośnik do komentarza https://forum.murator.pl/topic/149295-moje-ma%C5%82e-mieszkanko/#findComment-4328609 Udostępnij na innych stronach Więcej opcji udostępniania
lakorun 17.10.2010 20:16 Autor Zgłoś naruszenie Udostępnij Napisano 17 Października 2010 Witaj Nemi Wszelkie komentarze, uwagi i wskazówki mile widziane ))) Cytuj Odnośnik do komentarza https://forum.murator.pl/topic/149295-moje-ma%C5%82e-mieszkanko/#findComment-4328695 Udostępnij na innych stronach Więcej opcji udostępniania
joliska 18.10.2010 05:12 Zgłoś naruszenie Udostępnij Napisano 18 Października 2010 Witaj, mieszkanie, jeśli dobrze liczę ma 50 mkw - to nie jest malutkie mieszkanko... O swoim tak nie mówię i nie myślę, bo jeszcze usłyszy i się skurczy ze złości Lakorum, masz mieszkanie o metrażu-marzenie, ciekawe co z tym zrobisz? Pokażesz inspiracje i plany??? Cytuj Odnośnik do komentarza https://forum.murator.pl/topic/149295-moje-ma%C5%82e-mieszkanko/#findComment-4328920 Udostępnij na innych stronach Więcej opcji udostępniania
nemi 18.10.2010 06:15 Zgłoś naruszenie Udostępnij Napisano 18 Października 2010 Oooo.... Faktycznie - dopiero teraz popatrzyłam że przedpokój ma prawie 10m2. Lakorum 'nie łapiesz' się na posiadacza małego mieszkania. Masz całkiem spore mieszkanie jak na polskie warunki. Ale i tak będę podglądać, bo rozkład masz podobny do mojego. Cytuj Odnośnik do komentarza https://forum.murator.pl/topic/149295-moje-ma%C5%82e-mieszkanko/#findComment-4328960 Udostępnij na innych stronach Więcej opcji udostępniania
lakorun 24.10.2010 18:52 Autor Zgłoś naruszenie Udostępnij Napisano 24 Października 2010 witam, i na wstępie przyznaję Wam racje.... nie jest małe.... jest średniej wielkości, jednak im dłużej analizuję co i gdzie postawić i jak zaaranżować.... tym większy mam problem i większy chaos i mętlik w głowie... a że laikiem w tych sprawach jestem... więc ostatnie czasy poświęcam na uzupełnianiu i zbieraniu informacji: co jak i z czym .... dlatego też "wertuję internet i zgrywam go na dyskietkę" - w poszukiwaniu inspiracji jedno jest pewne... i wiedziałam to od zawsze - chcę aby było jasno, biało, popielato, szaro, srebrno, no może z jakimś dodatkiem czarnego, fioletu, zieleni, czerwieni, żółci....itd heh... i co z tego wyjdzie?? a tak na marginesie: mieszkanie ma 48 mkw z małym hakiem, przedpokój to rzeczywiście 9mkw, kuchnia 6 a łazienka aż 4... szał!!!, pokoje 16 i 12mkw. Początkowo zastanawiałam się nad połączeniem kuchni i salonu, jednak ostatecznie zdecydowałam się na inny zabieg. Zrezygnowałam z kawałka ściany w kuchni oraz z drzwi i otworzyłam kuchnie na przedpokój.... jaki to da efekt - zobaczymy za parę miesięcy;) Cytuj Odnośnik do komentarza https://forum.murator.pl/topic/149295-moje-ma%C5%82e-mieszkanko/#findComment-4339486 Udostępnij na innych stronach Więcej opcji udostępniania
lakorun 29.10.2010 17:54 Autor Zgłoś naruszenie Udostępnij Napisano 29 Października 2010 Dzień mija za dniem, godzina za godziną... kolejny tydzień.... a ja poszukuję, oglądam, wertuję, edukuję się i czytam i czytam ...... chyba się w tym wszystkim pogubiłam... długa droga przede mną... ale może to dobrze? trzeba odnaleźć swoje inspiracje "wnętrzarskie", wytyczyć sobie jasny cel a później wystarczy tylko go osiągnąć... a jaki jest mój cel?? chcę stworzyć sobie wnętrza w których będę czuła się dobrze... aha i najlepiej aby przy tym nie zbankrutować Cytuj Odnośnik do komentarza https://forum.murator.pl/topic/149295-moje-ma%C5%82e-mieszkanko/#findComment-4347825 Udostępnij na innych stronach Więcej opcji udostępniania
lakorun 29.10.2010 18:08 Autor Zgłoś naruszenie Udostępnij Napisano 29 Października 2010 kilka pomysłów już mam, głównie dotyczących funkcji i organizacji poszczególnych powierzchni przedpokój: na pokazanym wyżej rzucie można zobaczyć, że przedpokój składa się z dwóch części, na prawo od drzwi wejściowych znajduje się wnęka o wymiarach wg projektu (jak będzie w rzeczywistości to dopiero zobaczymy) 2,00x1,2m; planuje tu (i zapewne nie będzie to nic odkrywczego) szafo-garderobę. Wymyśliłam sobie aby zrobić ją w ten sposób: drzwi przesuwne, otwierane na prawo i lewo, jeśli otworzę je z prawej na lewą to wejdę do garderoby (zabudowa w kształcie L) będą tam półki, wieszaki, regały, itp schowki, natomiast jeśli drzwi przesunę z lewej na prawą to będzie tylko taka mała wnęka - z kilkoma wieszakami... np na kurtałki i płaszczątka dla gości jeszcze nie wiem czy drzwi szafy to będzie lustro, bo chciałabym duuuuże lustro, po lewej stronie od drzwi wejściowych, na wprost od wspomnianej tu szafo-garderoby ale może lustra z dwóch stron powiększą optycznie powstały w ten sposób zabudowy, mały i krótki korytarzyk... ?? Cytuj Odnośnik do komentarza https://forum.murator.pl/topic/149295-moje-ma%C5%82e-mieszkanko/#findComment-4347838 Udostępnij na innych stronach Więcej opcji udostępniania
lakorun 29.10.2010 18:21 Autor Zgłoś naruszenie Udostępnij Napisano 29 Października 2010 Z przedpokoju nr 1 wchodzimy następnie na "gigantyczny" przedpokój nr 2 a tam w oddali na wprost: sypialnia i pokój dzienny... zwany dumnie przeze mnie salonem.... ciut bliżej po prawej łazienka a po prawej kuchnia... tak kuchnia... jak już wspomniałam wcześniej zdecydowałam się na otworzenie kuchni na przedpokój... mam już pomysł na układ mebli w kuchni i kolejność poszczególnych jej elementów: oto jeden ze wstępnych moich pomysłów... mam tylko nadzieję że bardzo nie namieszałam Cytuj Odnośnik do komentarza https://forum.murator.pl/topic/149295-moje-ma%C5%82e-mieszkanko/#findComment-4347856 Udostępnij na innych stronach Więcej opcji udostępniania
pepejeans 29.10.2010 18:36 Zgłoś naruszenie Udostępnij Napisano 29 Października 2010 będę kibicować, bo ja za niedługo kupuję mieszkanie i tez mam mętlik w głowie szukając inspiracji Cytuj Odnośnik do komentarza https://forum.murator.pl/topic/149295-moje-ma%C5%82e-mieszkanko/#findComment-4347892 Udostępnij na innych stronach Więcej opcji udostępniania
lakorun 29.10.2010 18:46 Autor Zgłoś naruszenie Udostępnij Napisano 29 Października 2010 witam zatem trzymam kciuki za odnalezienie tej najwłaściwszej drogi do wymarzonych ścian... podłóg i pozostałych gadżetów Cytuj Odnośnik do komentarza https://forum.murator.pl/topic/149295-moje-ma%C5%82e-mieszkanko/#findComment-4347909 Udostępnij na innych stronach Więcej opcji udostępniania
lakorun 30.10.2010 16:16 Autor Zgłoś naruszenie Udostępnij Napisano 30 Października 2010 Dziś byłam oglądać podłogi... planuję położyć panele podłogowe, głównie z uwagi na psiaka mojego spodobały mi się panele balterio, seria magnitude - dąb opalany nr 558? Czy ktoś ma u siebie tego typu panele?? jak się sprawdzają w użytkowaniu? Cytuj Odnośnik do komentarza https://forum.murator.pl/topic/149295-moje-ma%C5%82e-mieszkanko/#findComment-4348773 Udostępnij na innych stronach Więcej opcji udostępniania
lakorun 30.10.2010 18:03 Autor Zgłoś naruszenie Udostępnij Napisano 30 Października 2010 http://www.kimnata.com.ua/news/2008/06_03/magnitude-558-smoked-oak-detail.jpg tak wygląda z bliska, wspomniany wyżej panel:) Cytuj Odnośnik do komentarza https://forum.murator.pl/topic/149295-moje-ma%C5%82e-mieszkanko/#findComment-4348905 Udostępnij na innych stronach Więcej opcji udostępniania
Margoth1719503976 30.10.2010 18:50 Zgłoś naruszenie Udostępnij Napisano 30 Października 2010 Lakorun, bardzo ładne panele. Mam podobne, z taką samą fakturą, też dąb, ale jaśniejszy. Cytuj Odnośnik do komentarza https://forum.murator.pl/topic/149295-moje-ma%C5%82e-mieszkanko/#findComment-4348978 Udostępnij na innych stronach Więcej opcji udostępniania
Chloe 31.10.2010 18:15 Zgłoś naruszenie Udostępnij Napisano 31 Października 2010 Czemu z uwagi na pieska decydujesz się na panele? Psy na panelach ślizgają się niemiłosiernie, a takie ciemne rysują się do tego strasznie, no i widać na nich każdy pyłek niestety. Cytuj Odnośnik do komentarza https://forum.murator.pl/topic/149295-moje-ma%C5%82e-mieszkanko/#findComment-4349889 Udostępnij na innych stronach Więcej opcji udostępniania
pepejeans 31.10.2010 19:56 Zgłoś naruszenie Udostępnij Napisano 31 Października 2010 Fajne te panele, a jeszcze ciemniejsze były?? Cytuj Odnośnik do komentarza https://forum.murator.pl/topic/149295-moje-ma%C5%82e-mieszkanko/#findComment-4350081 Udostępnij na innych stronach Więcej opcji udostępniania
lakorun 01.11.2010 17:42 Autor Zgłoś naruszenie Udostępnij Napisano 1 Listopada 2010 Chloe: wg mnie panele będą bardziej odporne na pazurki mojej bestyjki niż podłogi drewniane, a i pewnie koszt położenia mniejszy... pepejeans: z ciemniejszych był: dąb tytan oraz dąb smolisty.... http://www.balterio.com/collection.php?cid=11&con=eu&lang=pl - to stronka producenta ale powiem szczerze, że każdy z ośmiu kolorów, prezentował się bardzo ładnie na żywo... pewnie dzięki tej specjalnej powłoce.... ja na dzień dzisiejszy (bo zawsze może mi się odwidzieć) planuje jasne pomieszczenia - biel i szary ... i ta podłoga bardzo mi do tej mojej koncepcji pasuje :DDD Cytuj Odnośnik do komentarza https://forum.murator.pl/topic/149295-moje-ma%C5%82e-mieszkanko/#findComment-4350975 Udostępnij na innych stronach Więcej opcji udostępniania
betib 01.11.2010 18:29 Zgłoś naruszenie Udostępnij Napisano 1 Listopada 2010 fajne mieszkanko Ci się szykuje kolorystyka tez ciekawanad wywalaniem tej ścianki to bym się jeszcze zastanowila, jak dla mnie malo przyjemne może byc siedzenie przy śniadaniu w przedpoku i to jeszcze z widokiem na łazienke .....ale ja ekspertem nie jestem ,radze zalogowac się na forum gazety wyborczej i tam przedstawic projekt ludziom ktorzy z pewnością potrafią doradzic w tych sprawachpoza tym skoro masz tyle inspiracji to wrzuć cos tu.........cięzko tak na sucho dyskutowac........ Cytuj Odnośnik do komentarza https://forum.murator.pl/topic/149295-moje-ma%C5%82e-mieszkanko/#findComment-4351058 Udostępnij na innych stronach Więcej opcji udostępniania
Recommended Posts
Dołącz do dyskusji
Możesz dodać zawartość już teraz a zarejestrować się później. Jeśli posiadasz już konto, zaloguj się aby dodać zawartość za jego pomocą.