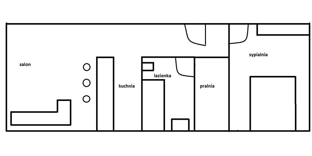
redss 01.03.2011 22:42 Zgłoś naruszenie Udostępnij Napisano 1 Marca 2011 (edytowane) Witam! Poszukuje projektu domu o konstrukcji szkieletowej, drewnianej z plaskim dachem. Dla przykladu dolaczam rysunek:) Z gory dziekuje za pomoc. Edytowane 2 Marca 2011 przez redss Cytuj Odnośnik do komentarza https://forum.murator.pl/topic/154449-potrzebny-projekt/ Udostępnij na innych stronach Więcej opcji udostępniania
redss 02.03.2011 21:24 Autor Zgłoś naruszenie Udostępnij Napisano 2 Marca 2011 (edytowane) Nikt nie pomoze?? Edytowane 2 Marca 2011 przez redss Cytuj Odnośnik do komentarza https://forum.murator.pl/topic/154449-potrzebny-projekt/#findComment-4584966 Udostępnij na innych stronach Więcej opcji udostępniania
zbyszek57 03.03.2011 07:43 Zgłoś naruszenie Udostępnij Napisano 3 Marca 2011 wiesz..ogolenie dom szkieletowy to żaden problem.. no ale Ty szukasz projektu z lądowiskiem dla helikopterów na dachu:D:D:D . Poszukaj w murowańcach a potem projekt można przerobić na drewno:)a tak btw...to gdzie kotłownia w tym domku? jakieś wymiary osiowe? cos? Cytuj Odnośnik do komentarza https://forum.murator.pl/topic/154449-potrzebny-projekt/#findComment-4585341 Udostępnij na innych stronach Więcej opcji udostępniania
Recommended Posts
Dołącz do dyskusji
Możesz dodać zawartość już teraz a zarejestrować się później. Jeśli posiadasz już konto, zaloguj się aby dodać zawartość za jego pomocą.