Magda 34 22.08.2012 08:18 Zgłoś naruszenie Udostępnij Napisano 22 Sierpnia 2012 Odsuńcie się, ja też chcę popatrzeć Pestko, jesteś mistrzynią. Wiem, że zrobienie takiej wizki jest dość pracochłonne. Także wielki szacun Mnie podoba się wersja 1, 4, 5 w kolejności, którą wrzuciła teraz Ewa. I chcę jeszcze zauważyć, że na wizkach nie ma tego otworu w ścianie z widokiem na hol. I to zdecydowanie lepiej wygląda niż z tym otworem, który moim zdaniem wprowadza już lekki chaos na ścianie z kominkiem. Ale to tylko tak na marginesie:D Cytuj Odnośnik do komentarza https://forum.murator.pl/topic/155503-komentarze-guthouse/page/93/#findComment-5464265 Udostępnij na innych stronach Więcej opcji udostępniania
Arnika 22.08.2012 08:24 Zgłoś naruszenie Udostępnij Napisano 22 Sierpnia 2012 Pestka... To są Twoje wizki :jawdrop: Bożesz... i mnie przyjdzie się zetknąć w końcu z realizacją kominka.... Basia... ja mam podcięcia w łazienkach i WC.. resztę na płasko... Fajnie to wygląda i nie mam wywierconych kółek z plastikiem, co mnie się nie podobało.. Koleżanka w tym roku wstawiała nowe drzwi.. i dała kółka... masakrycznie to wygląda.. tzn.. mnie się to nie podoba... Na cześć Pesteczki - HIP HIP HURRRAA Cytuj Odnośnik do komentarza https://forum.murator.pl/topic/155503-komentarze-guthouse/page/93/#findComment-5464278 Udostępnij na innych stronach Więcej opcji udostępniania
monika996 22.08.2012 08:27 Zgłoś naruszenie Udostępnij Napisano 22 Sierpnia 2012 Dzięki laseczki za pochwały,mam kryzys ,bo elewacja robi się dwa miesiące i trzeba przy tym być to wkurzające.Poza tym mieliśmy się wprowadzić od września,a środek się wlecze.i raczej to będą święta,no może trochę wcześniej. Jutro mam pomiar drzwi,i znowu dylemat.Przy rekuperacji ma być swobodny przepływ powietrza,więc ,albo drzwi muszę mieć podcięcie,albo być po prostu trochę krótsze,albo otwarte,no i ?Ja z tych niezdecydowanych:D Jak Wy macie? Lata,lata temu jak mieszkałam w Londynie byłam z moim ówczesnym chłopakiem w Harrodsie i on ,oświadczył, że kupi mi co zechce jak się w ciągu 10 minut na coś sia zdecyduję.No i nie umiałąm się zdecydować,teraz bym umiała:DAle drzwi i kuchnia to nie bielizna.wow i nie wybrałaś nic:D:stirthepot: No, nareszcie doczytałam do końca i mogę moje 3 grosze wstawić Kominek – model jest ten, który wybrałaś Spartherm Mini S-4S. Starałam się trafić wielkością i wydaje mi się, że to mi się udało. Wersja jest w zasadzie jedna, ale z modyfikacjami. Najpierw mój faworyt – czarny kominek z okładziną z czarnego łupku: [ATTACH=CONFIG]132476[/ATTACH] [ATTACH=CONFIG]132477[/ATTACH] [ATTACH=CONFIG]132478[/ATTACH] [ATTACH=CONFIG]132479[/ATTACH] [ATTACH=CONFIG]132480[/ATTACH] Są różne wersje ściany ceglanej. Komin jest wcięty w obudowę, a rura przechodzi przez ścianę i od klatki schodowej wchodzi w komin. Front odstaje od ściany na około 55 cm. Po bokach kominka jest dość miejsca, żeby zrobić z obu stron miejsce na składowanie drewna. Pokazałam tylko minimalne miejsce – raczej półeczkę na podpałkę. Główne miejsce na drewno jest od strony wąskiego okna, po prawej. Drzwiczki kominka otwierają się na lewą stronę, więc drewno powinno być po prawej.Pestko cudnie, jesteś niesamowita mnie się podoba 2 i 3- czyli dużo cegły - malo bialego . I kominek zrobiłaś niższy super, też bym tak zron=biła. podoba mi się i wersja czarna i miedziana. choć zdecydowanie u Basi- czarna - lupkowa[ Cytuj Odnośnik do komentarza https://forum.murator.pl/topic/155503-komentarze-guthouse/page/93/#findComment-5464286 Udostępnij na innych stronach Więcej opcji udostępniania
Arnika 22.08.2012 08:31 Zgłoś naruszenie Udostępnij Napisano 22 Sierpnia 2012 Basia łazienki i WC zrób z podcięciem tak musi być, a pokoje z 1cm szparką to wystarczy...Ja też tak mam...I masz z czapki... Cytuj Odnośnik do komentarza https://forum.murator.pl/topic/155503-komentarze-guthouse/page/93/#findComment-5464294 Udostępnij na innych stronach Więcej opcji udostępniania
Beata Weronika 22.08.2012 08:34 Zgłoś naruszenie Udostępnij Napisano 22 Sierpnia 2012 Ja to już w nocy widziałam, jak karmilam młoda i rozbudzilam się tylko przez te wizualizacje, nie lubilam dotąd czarnych kominkow, ale ten faktycznie super wyszedł Ha ha ha!! Ja tez podczas karmienia ogladalam wizualizacje w srodku nocy Widze ze tez nie marnujesz czasu nawet podczas karmienia Mi tez podoba sie najbardziej czarny kominek. Chyba zdjecie nr 3 z czarnym kominkiem. Moim skromnym zdaniem Cytuj Odnośnik do komentarza https://forum.murator.pl/topic/155503-komentarze-guthouse/page/93/#findComment-5464300 Udostępnij na innych stronach Więcej opcji udostępniania
julianna16 22.08.2012 08:39 Zgłoś naruszenie Udostępnij Napisano 22 Sierpnia 2012 (edytowane) Basiu, ten wariant biały i miedziany też wrzucić?Madziu, mnie się zdaje, że na wizach jest otwór, ale mniej widoczny, bo taka perspektywa. Pesteczka nie podkreśliła go niczym tylko zostawiła pusty. Edytowane 22 Sierpnia 2012 przez julianna16 Cytuj Odnośnik do komentarza https://forum.murator.pl/topic/155503-komentarze-guthouse/page/93/#findComment-5464308 Udostępnij na innych stronach Więcej opcji udostępniania
Magda 34 22.08.2012 08:57 Zgłoś naruszenie Udostępnij Napisano 22 Sierpnia 2012 Basiu, ten wariant biały i miedziany też wrzucić? Madziu, mnie się zdaje, że na wizach jest otwór, ale mniej widoczny, bo taka perspektywa. Pesteczka nie podkreśliła go niczym tylko zostawiła pusty. Ewo, faktycznie:yes: Jak przysunęłam kompa do oczu to rzeczywiście widzę tam wnękę A wydawało mi się, że tam jest cień od załamania ściany. No i teraz nie wiem co powiedzieć, bo nawet to dobrze wygląda:yes: Cytuj Odnośnik do komentarza https://forum.murator.pl/topic/155503-komentarze-guthouse/page/93/#findComment-5464335 Udostępnij na innych stronach Więcej opcji udostępniania
AniaS79 22.08.2012 09:17 Zgłoś naruszenie Udostępnij Napisano 22 Sierpnia 2012 Ożesz! Szczęka mi opadła z wrażenia.... Mnie się podobają dokładnie w tej samej kolejności, co Ewie. Pestko mam nadzieję, że dużo zarabiasz, bo Twój talent i możliwości są niedoścignione! Cytuj Odnośnik do komentarza https://forum.murator.pl/topic/155503-komentarze-guthouse/page/93/#findComment-5464377 Udostępnij na innych stronach Więcej opcji udostępniania
Spirea 22.08.2012 09:31 Zgłoś naruszenie Udostępnij Napisano 22 Sierpnia 2012 No, nareszcie doczytałam do końca i mogę moje 3 grosze wstawić Kominek – model jest ten, który wybrałaś Spartherm Mini S-4S. Starałam się trafić wielkością i wydaje mi się, że to mi się udało. Wersja jest w zasadzie jedna, ale z modyfikacjami. Najpierw mój faworyt – czarny kominek z okładziną z czarnego łupku: [ATTACH=CONFIG]132476[/ATTACH] [ATTACH=CONFIG]132477[/ATTACH] [ATTACH=CONFIG]132478[/ATTACH] [ATTACH=CONFIG]132479[/ATTACH] [ATTACH=CONFIG]132480[/ATTACH] Są różne wersje ściany ceglanej. Komin jest wcięty w obudowę, a rura przechodzi przez ścianę i od klatki schodowej wchodzi w komin. Front odstaje od ściany na około 55 cm. Po bokach kominka jest dość miejsca, żeby zrobić z obu stron miejsce na składowanie drewna. Pokazałam tylko minimalne miejsce – raczej półeczkę na podpałkę. Główne miejsce na drewno jest od strony wąskiego okna, po prawej. Drzwiczki kominka otwierają się na lewą stronę, więc drewno powinno być po prawej. Pestko, jesteś rewelacyjna Jeśli można głosować , to ja głosuję na wersję pierwszą z obudową kominka w łupku. Wygląda super. Co do sufitu (tego rodzaju wyglądają świetnie) - ale Basia rozumiem, że takiego nie ma? Będzie biały? czy może pójść w taki odcień jak na wizkach? Cytuj Odnośnik do komentarza https://forum.murator.pl/topic/155503-komentarze-guthouse/page/93/#findComment-5464399 Udostępnij na innych stronach Więcej opcji udostępniania
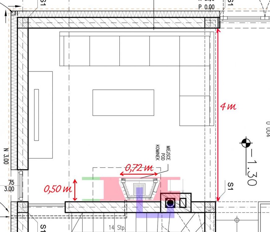
pestka56 22.08.2012 10:42 Zgłoś naruszenie Udostępnij Napisano 22 Sierpnia 2012 Zgadza się – otwór jest tylko ginie w tej perspektywie. Mój faworyt to 1 (z postu z powiększeniami, Guthouse-Spartherm_Mini+lupek-01.jpg), a ostatecznie może być też 4 (Guthouse-Spartherm_Mini+lupek-01.jpg). Jak obiecałam wklejam jeszcze rzut dla większej jasności Legenda: różowy – obudowa łupkowa; zielony – w kolorze ściany; fiolet - rura dymowa. Julianna, myślę, że ten łupkowy wygrał w przebiegach, więc reszty nie powiększaj. Cytuj Odnośnik do komentarza https://forum.murator.pl/topic/155503-komentarze-guthouse/page/93/#findComment-5464516 Udostępnij na innych stronach Więcej opcji udostępniania
pestka56 22.08.2012 10:45 Zgłoś naruszenie Udostępnij Napisano 22 Sierpnia 2012 Pestko, jesteś rewelacyjna Jeśli można głosować , to ja głosuję na wersję pierwszą z obudową kominka w łupku. Wygląda super. Co do sufitu (tego rodzaju wyglądają świetnie) - ale Basia rozumiem, że takiego nie ma? Będzie biały? czy może pójść w taki odcień jak na wizkach? Dzięki Spireo za wsparcie – 1 jest NAJ Sufit już Basia ma. To propozycja na kiedyś tam. Są takie fajne belki z polipropyleny, które udają beton, albo drewno - można to zastosować. Cytuj Odnośnik do komentarza https://forum.murator.pl/topic/155503-komentarze-guthouse/page/93/#findComment-5464517 Udostępnij na innych stronach Więcej opcji udostępniania
pestka56 22.08.2012 10:51 Zgłoś naruszenie Udostępnij Napisano 22 Sierpnia 2012 Ożesz! Szczęka mi opadła z wrażenia.... Mnie się podobają dokładnie w tej samej kolejności, co Ewie. Pestko mam nadzieję, że dużo zarabiasz, bo Twój talent i możliwości są niedoścignione! to mi dopiero dowcip powiedziałaś z tym zarabianiem. Ja się zajmuję grafiką wydawniczą i netową, a tu z roku na rok coraz gorzej. Ale szczęście nie świnia i - jak mówią brydżyści - po północy się odwróci. Cytuj Odnośnik do komentarza https://forum.murator.pl/topic/155503-komentarze-guthouse/page/93/#findComment-5464526 Udostępnij na innych stronach Więcej opcji udostępniania
1976pinacolada 22.08.2012 11:45 Zgłoś naruszenie Udostępnij Napisano 22 Sierpnia 2012 niech jeszcze wypowie sie ktos kto na kominkach sie zna, czy ta rura kominkowa moze byc zagieta 2 razy..... I to pod katem 90st. Zeby nie było jaj z cugiem Cytuj Odnośnik do komentarza https://forum.murator.pl/topic/155503-komentarze-guthouse/page/93/#findComment-5464598 Udostępnij na innych stronach Więcej opcji udostępniania
pestka56 22.08.2012 12:39 Zgłoś naruszenie Udostępnij Napisano 22 Sierpnia 2012 Pod kątem 90 stopni prawdopodobnie tak. W kominkach tzw. ciepłych III generacji są kanały dymowe prowadzone w bardzo skomplikowany sposób właśnie pod kątem 90 a nawet 180 stopni.Problem może się pojawiać tylko wtedy, gdy w kominku wychłodzonym po dłuższym niepaleniu, trzeba rozpalić. A jeśli kominkarz powie, że nie to zawsze po tej ścianie klatki schodowej można tę rurę puścić łagodniej w górę pod kątem i wejść nią w komin w dowolnym dostępnym z tamtej strony miejscu. Ona tam jeszcze resztki ciepła odda. Cytuj Odnośnik do komentarza https://forum.murator.pl/topic/155503-komentarze-guthouse/page/93/#findComment-5464681 Udostępnij na innych stronach Więcej opcji udostępniania
Barbara74 22.08.2012 13:40 Autor Zgłoś naruszenie Udostępnij Napisano 22 Sierpnia 2012 (edytowane) Przepraszam,co tu tak tłoczno,czy mogę wejść:lol2:.Cóż mogę, tylko powiedzieć na prawo kuchnia,na lewo jadalnia, proszę się rozgościć ,kto ma ochotę posiedzieć i popatrzeć przez moje piękne duże okna zapraszam do stołu tam również poczęstunek,zapraszam na poziom niżej, na pufę i sofę przy oknach.Jest jakiś pan,który otworzy szampana,tak dzisiaj własnie taki trunek jest jak najbordziej odpowiedni.Kto ma ochotę się ogrzać (zakładając ,że jest zimniej) to zapraszam na sofę ,przed mój łupkowy kominek i ceglastą ścianę. Tę gdzie ściana ceglasta a komin szary.Słyszę,że mówicie,że fronty ramkowe są piękne i idealnie pasują:lol2:. Ale nie ma żadnego pana ,tylko same fajne babki.Ale my sobie i tak ze wszystkim poradzimy same,nie takie rzeczy same robiłyśmy ,to tylko odkorkowanie butelki... teraz już słychać smiech i brzęk kieliczków,radosne rozmowy... Nasze karmiące mamy-odciągajcie mleko ,żebyście mogły się napić po lampce szampana z nami. Oj rozkoszujcie się razem ze mną ,bo trudno ochłonąć... Niestety sufit w rzeczywistości nie jest taki piękny jak na wizkach-wiem Spireo ,że Ci się podoba ,i wcale się nie dziwię,że to Ty o niego zapytałaś.Mam obecnie podwieszany ,ze szparami na schowanie karniszy i nastrojowe świaełko Ledów,ale ten jest po prostu przecudny,betonowy,a taki mam pod sufitem podwieszanym ,niotynkowany betonowy strop..Nieodważę się go ściągnć,ale może wykorzystam tak jak Pestka napisała jakieś farby imitujące go ,zobaczymy. Mam ochotę jeszcze usunąć się na bok i ochłonąć, czuję tłum u mnie,słyszę gwar , zachwyt nad Pestkowymi wizualizacjami, czas Pestko ,na Ciebie ,to jest Twój czas,niech pracodawcy zabiegają o Ciebie,wykorzystaj moje wnętrza ,roześlij, pokaż jaka jesteś zdolna ,pokaż je na surowo i ubrane przez Ciebie.Ty je nie tylko ubrałaś,ale i ożywiłaś Edytowane 22 Sierpnia 2012 przez Barbara74 Cytuj Odnośnik do komentarza https://forum.murator.pl/topic/155503-komentarze-guthouse/page/93/#findComment-5464757 Udostępnij na innych stronach Więcej opcji udostępniania
Barbara74 22.08.2012 14:01 Autor Zgłoś naruszenie Udostępnij Napisano 22 Sierpnia 2012 niech jeszcze wypowie sie ktos kto na kominkach sie zna, czy ta rura kominkowa moze byc zagieta 2 razy..... I to pod katem 90st. Zeby nie było jaj z cugiem rura może być zagięta,ale musi iść pod kątem, można jeszcze zrobić tak,że atrapa idzie do góry ,a odnoga wcześniej wchodzi,albo rura w obudowie idzie do komina ,a atrapa idzie do góry Cytuj Odnośnik do komentarza https://forum.murator.pl/topic/155503-komentarze-guthouse/page/93/#findComment-5464775 Udostępnij na innych stronach Więcej opcji udostępniania
julianna16 22.08.2012 14:09 Zgłoś naruszenie Udostępnij Napisano 22 Sierpnia 2012 (edytowane) Na prośbę NIESAMOWITEJ Pesteczki wrzucam nowy obrazek z opisem http://forum.muratordom.pl/attachment.php?attachmentid=132543&d=1345640751 Zrobiłam kilka modyfikacji – zagospodarowałam ścianę TV, żeby ekran nie wył na pustej ścianie. Nie będzie podczas oglądania konkurował z obrazkami, bo świeci, a reszta będzie zacieniona. Widziałam piękny ekran ledowy LG cieniutki i prawie bez ramki (LG 47LM670S LED 47') i taki umieściłam w wizualce. Dla mnie BOMBA Basieńko, a teraz doczytałam jak pięknie napisałaś. Czuję się fantastycznie u Ciebie . Edytowane 22 Sierpnia 2012 przez julianna16 Cytuj Odnośnik do komentarza https://forum.murator.pl/topic/155503-komentarze-guthouse/page/93/#findComment-5464784 Udostępnij na innych stronach Więcej opcji udostępniania
pestka56 22.08.2012 14:36 Zgłoś naruszenie Udostępnij Napisano 22 Sierpnia 2012 (edytowane) rura może być zagięta,ale musi iść pod kątem, można jeszcze zrobić tak,że atrapa idzie do góry ,a odnoga wcześniej wchodzi,albo rura w obudowie idzie do komina ,a atrapa idzie do góry Można jej dać tu z przodu w salonie dwa kolanka co złagodzi łuk, a na urodę nie zaszkodzi. Basia, mówi, że jest rogata, ale ja jakoś nie zauważyłam. Tutaj jest u niej miło i w domku będzie tez miło i cieplutko Julianna, dziękuję za umieszczenie mojego faworyta teraz prezentuje się ładnie. Edytowane 22 Sierpnia 2012 przez pestka56 Cytuj Odnośnik do komentarza https://forum.murator.pl/topic/155503-komentarze-guthouse/page/93/#findComment-5464816 Udostępnij na innych stronach Więcej opcji udostępniania
rere79 22.08.2012 14:56 Zgłoś naruszenie Udostępnij Napisano 22 Sierpnia 2012 Basiu, witam się u Ciebie, bo chyba tego jeszcze nie robiłam. I na razie jestem wstanie tylko tyle napisać, bo padłam jak zobaczyłam to co Pesteczka tutaj wyprawia. Pesteczko, jesteś wielka. Wielkie ukłony dla Ciebie zdolniacho. Jestem pod ogromnym wrażeniem!!!! Cytuj Odnośnik do komentarza https://forum.murator.pl/topic/155503-komentarze-guthouse/page/93/#findComment-5464827 Udostępnij na innych stronach Więcej opcji udostępniania
Barbara74 22.08.2012 15:00 Autor Zgłoś naruszenie Udostępnij Napisano 22 Sierpnia 2012 Tak dziewczyny ta wersja też mi się najbardziej podoba i ten zegar też jest piękny ,właśnie w tym stylu wyczekuję w moim ulubionym TKMaxx.Może wyda sie,że dużo obrazków i dużo lamp,że dużo się dzieje.Ale u mnie sufit biały i lampki niewodczne,więc obrazki jak najbardziej.Ale kocham te lampy bo wiszą jak bombowce chcące zrzucić bomby ,albo jak rodzina trzmieli zastanawiająca się czy wylądować na mojej podłodze,serio kojarzą mi się z chmarą czegoś ,co wisi i na coś oczekuje:lol2: Pestko powiedz mi jeszcze, co artysta miał na myśli ,że kominek po prawej części bez łupka.nie wiem czy wszyscy doczytują,a na wizkach nie jest to za bardzo widoczne,że obudowa nie cała czarna,robiąc to musi czemuś to służyć.Wydłużyć dla zgrabnych proporcji ,ale ,żeby nie było za ciężkie? Cytuj Odnośnik do komentarza https://forum.murator.pl/topic/155503-komentarze-guthouse/page/93/#findComment-5464828 Udostępnij na innych stronach Więcej opcji udostępniania
Recommended Posts
Dołącz do dyskusji
Możesz dodać zawartość już teraz a zarejestrować się później. Jeśli posiadasz już konto, zaloguj się aby dodać zawartość za jego pomocą.