Miesięcznik Murator ONLINE

Skocz do zawartości

Recommended Posts

hej.

piszę na tym forum, gdyż nie wiem gdzie mogłabym upchnąć w tak małym mieszkanku sypialnię z łóżkiem o szerokości 1,4m oddzieloną od części dziennej. może ktoś z was będzie miał jakiś pomysł. pozdrawiam. Ewelina

 

Rzut mieszkania z preferowanym przeze mnie umieszczeniem kuchni

miesz2.jpg

 

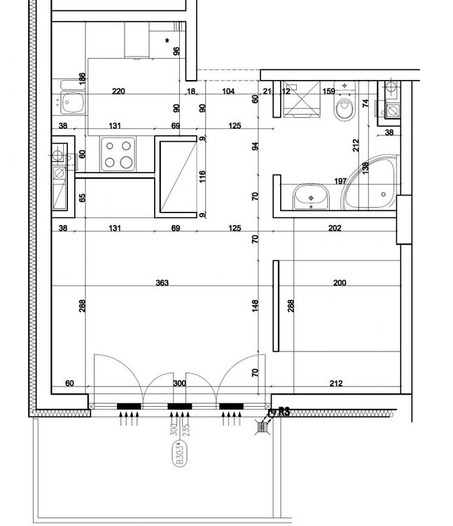
Rzut z innym układem ale z wymiarami

wymiary.jpg

miesz2.jpg

wymiary.jpg

Odnośnik do komentarza
https://forum.murator.pl/topic/158433-jak-znale%C5%BA%C4%87-sypialni%C4%99-w-30-m2/
Udostępnij na innych stronach

  • 2 weeks później...

wygląda na to, że jedynym miejscem na sypialnie jest odgrodzona już częściowo przestrzeń obok okna.. Teraz aby zapewnić pomieszczeniu doświetlenie, a jednocześnie je zamknąć można odgrodzić je ścianą z luksferów.. całą bądź częściowo bez wyburzania - np. w miejscu przejścia obok okna..Można zamontować także zasuwane drzwi..;) Inspiracje poniżej, pozdrawiam!

http://www.dobrzemieszkaj.pl/img/imagecache/400x600__media_15271_wm http://www.dobrzemieszkaj.pl/img/imagecache/400x600__media_15274_wm

Odnośnik do komentarza
https://forum.murator.pl/topic/158433-jak-znale%C5%BA%C4%87-sypialni%C4%99-w-30-m2/#findComment-4772321
Udostępnij na innych stronach

Dołącz do dyskusji

Możesz dodać zawartość już teraz a zarejestrować się później. Jeśli posiadasz już konto, zaloguj się aby dodać zawartość za jego pomocą.

Gość
Odpowiedz w tym wątku

×   Wklejono zawartość z formatowaniem.   Usuń formatowanie

  Dozwolonych jest tylko 75 emoji.

×   Odnośnik został automatycznie osadzony.   Przywróć wyświetlanie jako odnośnik

×   Przywrócono poprzednią zawartość.   Wyczyść edytor

×   Nie możesz bezpośrednio wkleić grafiki. Dodaj lub załącz grafiki z adresu URL.



×
×
  • Dodaj nową pozycję...