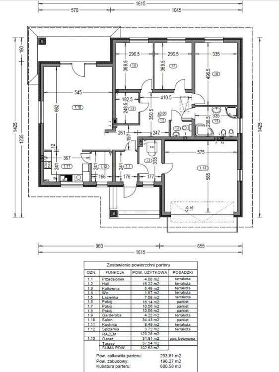
Wadus 19.12.2012 13:33 Zgłoś naruszenie Udostępnij Napisano 19 Grudnia 2012 Witajcie! Projekt zamowiony czekam na dokumentacje: Co chcialbym zmienic: - kotlownia na paliwo stale - spizarka troche wezsza aby zyskac miejsca w kuchni na szafki i blaty - scianka garderoby troche przesunieta aby zlikwidowac "waskie gardlo" Image Troche brakuje pomyslu jak wykorzystac salon, jest dosyc szeroki ponad 5m Ogolnie co sie nam podba: + przyzwoity zadaszony taras + zadaszone wejscie do domu + garderoba + sypialnia 16 m2 + duza lazienka + w brew pozorom nie az tak skomplikowany dach + kuchnia ze spizarka + przedsionek (po malej modyfikacji dosyc przestronny) + komunikacja nie w formie długiego kiszkowatego korytarza tylko przestronna minusy: - ponad 300 m2 dachu - wiezba wychodzi na to, ze trche pracochlonna - jako parterowka duza powierzchnia stropu - reszta wyjdzie w praniu... Cytuj Odnośnik do komentarza https://forum.murator.pl/topic/174629-taki-kaprys-dom-parterowy/ Udostępnij na innych stronach Więcej opcji udostępniania
Wadus 15.03.2013 13:13 Autor Zgłoś naruszenie Udostępnij Napisano 15 Marca 2013 Dzisiaj dostalem pozwolenie na budowe Stan na dzisiaj: 4900 zl juz poszlo, (projekt, adaptacja, dokumenty) teraz przylacze wody i geodeta nastepnie fudnamenty. Cytuj Odnośnik do komentarza https://forum.murator.pl/topic/174629-taki-kaprys-dom-parterowy/#findComment-5837221 Udostępnij na innych stronach Więcej opcji udostępniania
jedrek244 15.03.2013 13:30 Zgłoś naruszenie Udostępnij Napisano 15 Marca 2013 Witaj, sam przymierzam sie do budowy domu parterowegoniestety nie jest latwo znalezc nie za duzy i wszystko majacy projektw Kaprysie nie podoba mi sie wielkosc pokoi, moge byc troche za ciasneoraz salonie przez zadaszony taras moze byc troche ciemnoja po przejrzeniu setek projektow sklaniam sie chyba ku projektowi Z10a garaz bedzie raczej wolnostojacyIle liczyc na postawienie SSO? Na moje oko bedzie ze 180 tys przy Kaprysie Pozdrawiam Cytuj Odnośnik do komentarza https://forum.murator.pl/topic/174629-taki-kaprys-dom-parterowy/#findComment-5837276 Udostępnij na innych stronach Więcej opcji udostępniania
Wadus 15.03.2013 14:03 Autor Zgłoś naruszenie Udostępnij Napisano 15 Marca 2013 (edytowane) Witaj, sam przymierzam sie do budowy domu parterowego niestety nie jest latwo znalezc nie za duzy i wszystko majacy projekt w Kaprysie nie podoba mi sie wielkosc pokoi, moge byc troche za ciasne oraz salonie przez zadaszony taras moze byc troche ciemno ja po przejrzeniu setek projektow sklaniam sie chyba ku projektowi Z10 a garaz bedzie raczej wolnostojacy Ile liczyc na postawienie SSO? Na moje oko bedzie ze 180 tys przy Kaprysie Pozdrawiam Kwestia doswietlenia salonu to tez polozenie na dzialke, my szukalismy projekto ktory najelpiej wpasowalby sie na dzialke 24x35m i aby to byl dom parterowy. Kaprys na szerokosc ma 16 m wiec idealnie wykorzystujemy szerokosc dzialki zostawiajac po 4 m po bokach a i ogrodu zostaje nam okolo 14 x 24 m wiec taki kompromis przy rozleglej parterowce. Kolejna sprawa to oswietlenie, u nas wejscie/kuchnia i garaz sa od strony Polnocnej wiec liczymy ze swiatla troche jednak bedzie w salonie poza tym na boczniej scianie myslimy zrobic okno-drzwi wymiar 180-210 cm to tez da sporo swwiatla, Okno w kuchni (zrobimy otwarta) bedzie mialo 210 x 150 kolejne doswietlenie. A co do kosztow: majster mi tak wyliczyl Materialy: Fundament: 32tys Sciany/strop: 40 tys dach: 40 tys inne: 20 tys razem 132 tys material + 45 tys robocizna (i tez trzeba liczyc jakies nieprzewidziane oby jak najmniej) Co do uwag o wielkosci pokoi hmm.. no wiadomo mogloby byc troche wiecej ale jeden pokoj 16 m2 (sypialnia) 2 pok 10,5 m2 to przyzwoite minimum, a szukajac wiekszych pokoi powiekszy sie pow. zabudowy i koszty pojda w gore. Nam podoba sie bardzo duza strefa dzienna, salon i kuchnia, my zmienimy troche komunikacje, przenosimy garderobe w miejsce wc, wc przesuwamy na lewo. i zyskujemy wejsce z wiatrolapu na otwarta przestrzen. Edytowane 15 Marca 2013 przez Wadus Cytuj Odnośnik do komentarza https://forum.murator.pl/topic/174629-taki-kaprys-dom-parterowy/#findComment-5837340 Udostępnij na innych stronach Więcej opcji udostępniania
lucjus 15.03.2013 14:34 Zgłoś naruszenie Udostępnij Napisano 15 Marca 2013 My budujemy cos podobnego, zobacz Dom w jonagoldach, tylko garaz 2 st.(tam gdzie garaz bedzie pokoj) oddzielnie i częściowe podpiwniczenie, Jak na razie to nasz projekt i adaptacje wyszlo duzo ok7tys. Zobaczymy za ile sie uda stan 0 i oddzielny garaż, a potem to juz kredyt;) Cytuj Odnośnik do komentarza https://forum.murator.pl/topic/174629-taki-kaprys-dom-parterowy/#findComment-5837390 Udostępnij na innych stronach Więcej opcji udostępniania
R4di 15.03.2013 15:06 Zgłoś naruszenie Udostępnij Napisano 15 Marca 2013 Dzisiaj dostalem pozwolenie na budowe Życzę powodzenia, stalowych nerwów i jak najmniej problemów z ekipami. Jak zapatrujesz się na kwestie energooszczędności? Czy zamierzasz wykonywać część prac sam? Jeśli tak uruchamiam subskrypcję i będę kibicował! Cytuj Odnośnik do komentarza https://forum.murator.pl/topic/174629-taki-kaprys-dom-parterowy/#findComment-5837457 Udostępnij na innych stronach Więcej opcji udostępniania
Wadus 18.03.2013 13:03 Autor Zgłoś naruszenie Udostępnij Napisano 18 Marca 2013 No coz, O dofinansowaniu NFOSiGW troche czytalem i jednak odpuszczam. Wole skromniej ale dokladniej i bez stresu. Bede sie sklanial w strone BK Solbet 600 i 15 cm dobrego styropianu i 3 szybowe okna pcv. Czyli bede pilnowal aby dom byl dobrze docieplony, a ogrzewanie musze dobrac z glowa, aby nie przewymiarowac pieca. Mysle ze 12 kW wystarczy i to z zapasem pozniej tylko odpowiednio wymyslec petle i sterowanie piecem i nie powinno byc zle. To nie jest bardzo duza powierzchnia do ogrzania. Jezeli dom bedzie dobrze ocieplony to mysle, ze nawet nie bedzie potrzeby mocnego grzania w mrozy. Strych ocieplony poziomo welna, sciany styropianem. Potem dokladne zrobienie wentylacji aby domek nie zamienil sie w termos i powinno byc dobrze. SSO raczej wiele sam nie zrobie, mam od tego ekipe wycenili robote na 45 tys to niech pracuja. Napewno bede sie staral caly czas konsultowac wszelkie mozliwe decyzje no i przedewszystkim szukal jak najlepszych ofert na materialy. W tym roku chcialbym zrobic tylko SSO potem przesezonowac cala budynek, niech oschnie troche i osiadzie. Tym bardziej jezeli mialby byc z BK wysuszenie is a must! W miedzy czasie moze wezme sie za ogrodzenie, i ogrod, czyli tutaj co sie da bede robil sam. Albo probowal prosic o pomoc sasiadow, ktorzy tez sie buduja. Moze sie uda wspolnie cos zrobic, ja pomoge im oni mnie. Co do prac wlasnych to zobacze co sie da zrobic, Bozia zdrowe raczki dala i motywacji jest sporo, co nie bede umial sam robic bede sie radzil madrzejszych albo probowal pomoagac. Jestem osoba dosyc dokladna, wiec moze i niektore prace zajma mi 5 razy wiecej czasu ale nie toleruje bylejakosci. Ekipe mam sprawdzona, widzialem ich jeden dom w suporeksie 160m2 uzytkowej i jeden dom w ceramice tez okolo 160m2 ten pierwszy prosciej, szybciej, taniej dokladniej, cieplej dlatego zdecydowalem sie na BK. Jeszcze tylko moj KB musi sie z tym pogodzic bo on znowu zwollennik ceramiki Cytuj Odnośnik do komentarza https://forum.murator.pl/topic/174629-taki-kaprys-dom-parterowy/#findComment-5842017 Udostępnij na innych stronach Więcej opcji udostępniania
Wadus 05.04.2013 13:56 Autor Zgłoś naruszenie Udostępnij Napisano 5 Kwietnia 2013 Kwiecien plecien nie przeplata, jest zima nie ma lata No i ciagle czekam zeby choc wykosic krzaki na dzialce wtedy moznaby choc zaczac wymierzac/wyrownywac teren a tu snieg ciagle lezy. Co prawda nie spiesze sie bo na ten rok planowalem tylko SSO ale wspolczuje wszystkim, ktorzy wzieli kredyty i musza stac z robota. Z nowinek to mam juz zaprojektowane przylacze wody kosztowalo mnie to 500 zl mam okolo 13 mb do zrobienia nie wiem jeszcze ile to moze kosztowac i kto to ma robic, spotkam sie z majstrem to zapytam. nie zamieszczam zdjec ani planow bo nie ma co jeszcze pokazywac kupa krzakow i sniegu i droga rozblocona na maksa Ponoc polowa kwietnia ma byc lepsza - oby ! Cytuj Odnośnik do komentarza https://forum.murator.pl/topic/174629-taki-kaprys-dom-parterowy/#findComment-5874533 Udostępnij na innych stronach Więcej opcji udostępniania
Wadus 12.06.2013 10:28 Autor Zgłoś naruszenie Udostępnij Napisano 12 Czerwca 2013 w kolejnosci dzien pierwszy proba sciagniecia humusu - za grzaska kopara musi kopac i przewalac po 4 godzinach kapitulacja dzien drugi wieksza koparka z obrotowa kabina konczy robote 4 godziny dzien trzeci mocny opad deszczu w nocy efekt na ostatnim zdjeciu Cytuj Odnośnik do komentarza https://forum.murator.pl/topic/174629-taki-kaprys-dom-parterowy/#findComment-5970478 Udostępnij na innych stronach Więcej opcji udostępniania
Wadus 19.06.2013 05:56 Autor Zgłoś naruszenie Udostępnij Napisano 19 Czerwca 2013 Ławy wylane Cytuj Odnośnik do komentarza https://forum.murator.pl/topic/174629-taki-kaprys-dom-parterowy/#findComment-5978916 Udostępnij na innych stronach Więcej opcji udostępniania
Wadus 22.07.2013 12:13 Autor Zgłoś naruszenie Udostępnij Napisano 22 Lipca 2013 Fundamenty zasypane, braklo jeszcze z 2 wywrotki piasku dzisiaj dowiezli. w sumie weszlo 24 wywrotki piasku. Ciezko bylo bo ciasno i nie bylo jak jezdzic piasek zwalony byl na sasiedniej dzialce. Synek podpatrzyl jak tata sprawdzal zageszczenie i sam sie wzial do pracy Cytuj Odnośnik do komentarza https://forum.murator.pl/topic/174629-taki-kaprys-dom-parterowy/#findComment-6018296 Udostępnij na innych stronach Więcej opcji udostępniania
Wadus 29.08.2013 20:48 Autor Zgłoś naruszenie Udostępnij Napisano 29 Sierpnia 2013 (edytowane) Troche ruszylo, I troche wizualizacji Edytowane 29 Sierpnia 2013 przez Wadus Cytuj Odnośnik do komentarza https://forum.murator.pl/topic/174629-taki-kaprys-dom-parterowy/#findComment-6065990 Udostępnij na innych stronach Więcej opcji udostępniania
ewela.k_84 13.06.2014 20:12 Zgłoś naruszenie Udostępnij Napisano 13 Czerwca 2014 Witam. Jak wyszedł efekt końcowy domku. Jestem bardzo ciekawa, bo sama będę budować dom tego samego projektu. Cytuj Odnośnik do komentarza https://forum.murator.pl/topic/174629-taki-kaprys-dom-parterowy/#findComment-6484891 Udostępnij na innych stronach Więcej opcji udostępniania
Recommended Posts
Dołącz do dyskusji
Możesz dodać zawartość już teraz a zarejestrować się później. Jeśli posiadasz już konto, zaloguj się aby dodać zawartość za jego pomocą.