lukasz69karolina 03.03.2014 13:43 Zgłoś naruszenie Udostępnij Napisano 3 Marca 2014 ... Nie myslałam o wywalaniu ścianki między łazienka a garderobą. Na spokojnie...trzeba tam być z raz jeszcze i za widoku oglądnąć. Ten apartamencik nazywany w projekcie poddaszem, nie ma wogóle skosów. Kolejne pełne pieterko z masą przeszkleń i własnym 30 metrowym tarasem. Nie pamietam jak tam z oknami. To co proponujesz, wypadłoby chyba w oknach. Musze jeszcze raz zerknąć na rzuty. ... no nie gadaj!! nie ma skosów to kurna nieźle wysoki ten dom... ciekawe jak wygląda z zewnątrz:rolleyes: na rysunkach pestki nie ma na tej ścianie okien, są tylko dwa dachowe no w każdym bądź razie - po rzutach jest niezły ten dom... kawał chałupy!! jak jeszcze jest staniał to jaknajszybciej niech się uda kupić!!!!! Cytuj Odnośnik do komentarza https://forum.murator.pl/topic/175929-vip-club/page/1029/#findComment-6357795 Udostępnij na innych stronach Więcej opcji udostępniania
marimag 03.03.2014 13:47 Autor Zgłoś naruszenie Udostępnij Napisano 3 Marca 2014 Karolciu, specjalnie dla Ciebie privek leci. Cytuj Odnośnik do komentarza https://forum.murator.pl/topic/175929-vip-club/page/1029/#findComment-6357799 Udostępnij na innych stronach Więcej opcji udostępniania
marimag 03.03.2014 13:48 Autor Zgłoś naruszenie Udostępnij Napisano 3 Marca 2014 A doopa ! Masz płatny profil ???!!! To jak Ci cos wysłać ? Cytuj Odnośnik do komentarza https://forum.murator.pl/topic/175929-vip-club/page/1029/#findComment-6357803 Udostępnij na innych stronach Więcej opcji udostępniania
pestka56 03.03.2014 13:57 Zgłoś naruszenie Udostępnij Napisano 3 Marca 2014 Teraz to, co wymyśliłam na początek. Mari, Ty już wiesz bo Ci pisałam. Wklejam, żeby Dziewczyny się popastwiły Będziesz mieć boski domek. Trzymam kciuki za skuteczny atak na opornych ludzi i oporne sytuacje Plany by me Na czerwono zaznaczyłam proponowane przeróbki, usunięte okna i przesunięte lub dostawione ściany. Ściany, które uważam za zbędne, po prostu wywaliłam z planów. Nie zaznaczyłam tego na planach, ale... CZY BYŁABY MOŻLIWOŚĆ wstawienia nawet wąskich okien na półpiętrach klatki schodowej? PARTER Proponuję w SALONIE niezręcznie usytuowane okno zamurować, a ponieważ jest większe, to wykorzystać je i wstawić na miejsce tego, które pozostaje. SPIŻARNIA dostępna od strony kuchni przez drzwi przesuwne. Ścianka między spiżarnią a salonem cofnięta, żeby zrobić miejsce na np. piękny kredens. Uważam, że przejście z garażu bezpośrednio do domu musi być. Nikt nie lubi ganiać z kojbrami zakupów naokoło domu. To jedna z gorszych rzeczy szczególnie zimą. GARDEROBA przy wejściu powinna być dostępna z wiatrołapu. Bez sensu jest wchodzenie z wiatrołapu do wnętrza domu w brudnych butach i dopiero z tamtąd do grderoby. Rozbieranie się po kawałku, czyli buty w wiatrołapie, a reszta później w garderobie też nie jest wygodne. Szczególnie z 4 rozrabiających dzieci. PIĘTRO Usunęłam to dziwne pomieszczenie w korytarzu – garderoba (?), żeby dzieci miały więcej przestrzeni wspólnej. Między dwoma pokojami proponuję zmienić układ ścian, żeby wielkość pokoi zrobiła sie bardziej wyrównana. Dzieci mogą mieć kłopot z zaakceptowaniem, że jeden pokój jest wybitnie największy. PODDASZE Usunęłam ścianki dzielące przestrzeń przeznaczoną na garderobę i pokój kąpielowy, bo to w takim układzie jest bez sensu. Mała garderoba, mała łazieneczka i masa korytarza. Marnotrawstwo przestrzeni bez wyobraźni. Uważam, że klatka schodowa powinna zostać zamknięta, żeby chronić prywatność gospodarzy, dać możliwość odcięcia całego apartamentu od reszty domu. Można to zrobić przy pomocy szklanej zabudowy. Poza tym na poddaszu nic nie musi mieć drzwi dzielących przestrzeń. Świetnie byłoby, gdyby komin pozwolił na zrobienie małego kominka także tutaj. Cytuj Odnośnik do komentarza https://forum.murator.pl/topic/175929-vip-club/page/1029/#findComment-6357823 Udostępnij na innych stronach Więcej opcji udostępniania
lukasz69karolina 03.03.2014 14:13 Zgłoś naruszenie Udostępnij Napisano 3 Marca 2014 A doopa ! Masz płatny profil ???!!! To jak Ci cos wysłać ? ja płatny??? no oszalałaś a po kiego? mam zwykły i dziewczyny mi normalnie wysyłają - nie wiem czemu Ty nie możesz Cytuj Odnośnik do komentarza https://forum.murator.pl/topic/175929-vip-club/page/1029/#findComment-6357844 Udostępnij na innych stronach Więcej opcji udostępniania
marimag 03.03.2014 14:30 Autor Zgłoś naruszenie Udostępnij Napisano 3 Marca 2014 Nie wiem czemu i jakim cudem, ale pisało, że masz płatny. Teraz pisze, że nie... No nic. Wysłałam Cytuj Odnośnik do komentarza https://forum.murator.pl/topic/175929-vip-club/page/1029/#findComment-6357862 Udostępnij na innych stronach Więcej opcji udostępniania
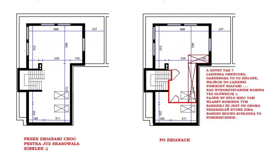
pestka56 03.03.2014 16:19 Zgłoś naruszenie Udostępnij Napisano 3 Marca 2014 Dlaczego posiedzenia kibelkowe mają być jawne? Taka to ja jeszcze nie jestem. U mnie kąpiemy się owszem wespół, ale te tam... postękać dobrze jest w odosobnieniu Kibelek warto odciąć od łazienki, a raczej zostawić możliwość zamknięcia się w nim. Wszystko jest do ogarnięcia. Te okna dachowe są zaznaczone na planach oryginalnych. Wszystko oczywiście w tej chwili gdybanie. Jak będziesz mogła sama pomierzyć, posprawdzać i nanieść rzeczywistość na planach, to dopiero wyjdzie co można, a co nie. Mari pokażę te wnętrza, które mnie zaispirowały do proponowania Ci prawie otwartego Master Suit. Cytuj Odnośnik do komentarza https://forum.murator.pl/topic/175929-vip-club/page/1029/#findComment-6357980 Udostępnij na innych stronach Więcej opcji udostępniania
marimag 03.03.2014 17:25 Autor Zgłoś naruszenie Udostępnij Napisano 3 Marca 2014 Pestuś, a teraz pokażę co Ja bym zrobiła. Niektóre pomysły mamy wspólne, ale parter i byc może góra, nieco inaczej bym zrobiła.Widzę, że wiatrołap nieźle wyciapałaś, ale tam sa ściany nosne. Nie da się go aż tak otworzyć.Z pełna świadomością rezygnuję z przejścia z garazu do spizarni.Potem w brudnych buciorach przez pół parteru, zeby sie rozebrać ?Kolejna sprawa to wykorzystanie tej spiżarni. Na jednej ścianie w zasadzie nic nie postawisz bo drzwi garażowe, na drugiej nic bo drzwi suwane. Trzeba jeszcze zostawić luz na otwieranie tych 2 drzwi....Ile miejsca tam zostanie ? To nie jest jakas mega powierzchnia. Ja bym to widziała tak: Cytuj Odnośnik do komentarza https://forum.murator.pl/topic/175929-vip-club/page/1029/#findComment-6358034 Udostępnij na innych stronach Więcej opcji udostępniania
aniqa1982 03.03.2014 17:59 Zgłoś naruszenie Udostępnij Napisano 3 Marca 2014 Mari nic tu nie ma żadnego zdjęcia ... Cytuj Odnośnik do komentarza https://forum.murator.pl/topic/175929-vip-club/page/1029/#findComment-6358084 Udostępnij na innych stronach Więcej opcji udostępniania
pestka56 03.03.2014 19:01 Zgłoś naruszenie Udostępnij Napisano 3 Marca 2014 Mari, o suwane drzwi, to Ty się nie martw. Tak można zrobić, że ściany nie zjadają Wsuwają się jakby w kieszeń. Nie zabierają miejsca. Ja mam tak w garderobie. Nie chcesz mieć wejścia z garażu do domu! OK! Ale zobaczysz jak Cię szlag trafi przy pierwszym deszczu. Masz własny dom, a tu jak wielbłąd z pakami z garażu do własnego domu będziesz pomykać kurcgalopkiem moknąc i wkurzając się. Ja już to zaliczyłam, jak mój domowy naj... zamknął drzwi garaż – przedsionek i zostawił klucz w domu. Kilka razy... i zawsze mnie to furię wprawia, że nie mogę po prostu otworzyć drzwi i w cieple, bez lejącej się na głowę wody, spokojnie przerzucić zakupy z samochodu do domu. Albo jeszcze wygodniej – wejść rozpłaszczyć się i dopiero spokojnie zabrać zakupy od razu do kuchni. Nie rezygnuj z tego przejścia. Masz sporą spiżarkę i możesz mieć w niej drzwi do garażu. Niech będą 70 cm szerokości, ale niech będą. Cytuj Odnośnik do komentarza https://forum.murator.pl/topic/175929-vip-club/page/1029/#findComment-6358161 Udostępnij na innych stronach Więcej opcji udostępniania
pestka56 03.03.2014 19:04 Zgłoś naruszenie Udostępnij Napisano 3 Marca 2014 Gdzie ja wiatrołap ciapałam. Tylko drzwi. To oczywiście do zastanowienia i odpytania jakiegoś budowlańca. Jeśli będziesz potrzebować mam takiego rozsądnego, nie narwanego i mogę dać kontakt.Drzwi można o ile wiem zabezpieczyć wmurowując belkę nadproża. Cytuj Odnośnik do komentarza https://forum.murator.pl/topic/175929-vip-club/page/1029/#findComment-6358166 Udostępnij na innych stronach Więcej opcji udostępniania
Megiska 03.03.2014 21:34 Zgłoś naruszenie Udostępnij Napisano 3 Marca 2014 Aneczko !!!!!!!!! 100000 lat, pięknego domu i to natentychmiast!! Dużo kaski na urządzenie domku tak jak chcesz!! no i zdrówka dla Was i Waszych dzieciaków!! http://i3.fmix.pl/fmi1274/38a45c230019a0c55314f45b/zdjecie.jpg Cytuj Odnośnik do komentarza https://forum.murator.pl/topic/175929-vip-club/page/1029/#findComment-6358376 Udostępnij na innych stronach Więcej opcji udostępniania
marimag 04.03.2014 07:11 Autor Zgłoś naruszenie Udostępnij Napisano 4 Marca 2014 Megisko, dzięki kochana :hug: Zaraz się poprawię z obrazkami Cytuj Odnośnik do komentarza https://forum.murator.pl/topic/175929-vip-club/page/1029/#findComment-6358561 Udostępnij na innych stronach Więcej opcji udostępniania
lukasz69karolina 04.03.2014 07:13 Zgłoś naruszenie Udostępnij Napisano 4 Marca 2014 Gdzie ja wiatrołap ciapałam. Tylko drzwi. To oczywiście do zastanowienia i odpytania jakiegoś budowlańca. Jeśli będziesz potrzebować mam takiego rozsądnego, nie narwanego i mogę dać kontakt. Drzwi można o ile wiem zabezpieczyć wmurowując belkę nadproża. dokładnie tak jest u nas też tak było robione, że powiększane były otwory w nośnych ścianach - czyli robione większe nadproża (i to już na budowie) mari tu chodzi przecież o zrobienie drzwi w nośnej - żaden to kłopot przecież tak samo masz wejście do domu zewnętrzna to nośna wrzucamy belkę nad otwór i finito nie muruj okna!!! Cytuj Odnośnik do komentarza https://forum.murator.pl/topic/175929-vip-club/page/1029/#findComment-6358564 Udostępnij na innych stronach Więcej opcji udostępniania
marimag 04.03.2014 08:27 Autor Zgłoś naruszenie Udostępnij Napisano 4 Marca 2014 No dobra....Ja bym to widziała tak. Zastanawiam się czy nie otworzyć wiatrołapu co by złapał trochę luzu i nie postawić ścianki za pokojem gościnnym (zaraz przed schodami). Cytuj Odnośnik do komentarza https://forum.murator.pl/topic/175929-vip-club/page/1029/#findComment-6358644 Udostępnij na innych stronach Więcej opcji udostępniania
marimag 04.03.2014 08:38 Autor Zgłoś naruszenie Udostępnij Napisano 4 Marca 2014 Piętro... Cytuj Odnośnik do komentarza https://forum.murator.pl/topic/175929-vip-club/page/1029/#findComment-6358662 Udostępnij na innych stronach Więcej opcji udostępniania
marimag 04.03.2014 08:52 Autor Zgłoś naruszenie Udostępnij Napisano 4 Marca 2014 Apartament rodziców.... Cytuj Odnośnik do komentarza https://forum.murator.pl/topic/175929-vip-club/page/1029/#findComment-6358687 Udostępnij na innych stronach Więcej opcji udostępniania
asiazett 04.03.2014 09:12 Zgłoś naruszenie Udostępnij Napisano 4 Marca 2014 [ATTACH=CONFIG]246117[/ATTACH] Bez okna w salonie będzie za ciemno A te drzwi z salonu do korytarza po co? Obstawiam, że stale były by otwarte i mało użyteczne Cytuj Odnośnik do komentarza https://forum.murator.pl/topic/175929-vip-club/page/1029/#findComment-6358722 Udostępnij na innych stronach Więcej opcji udostępniania
marimag 04.03.2014 09:30 Autor Zgłoś naruszenie Udostępnij Napisano 4 Marca 2014 Asiu, zamiast tych wielkich drzwi donikąd, mozna wstawić okno...wysoko.Nie lubimy słońca, stale zacieniamy, zasłaniamy, barykadujemy się. Nie podoba mi się sąsiedztwo tego ona z kolejną, zalesioną, pusta działką.Boję się.Juz w tej chwili, jakies gnoje rzuciły w to okno butelkę i zbiły 1 szybę. Po co mi takie atrakcje ?Kolejna sprawa to idealne warunki do wejścia do domu dla złodzieja. Ta ściana jest jedyną, nie widoczną z innych domów. Cudowne wprost warunki, zeby sobie cos wynieść. Cytuj Odnośnik do komentarza https://forum.murator.pl/topic/175929-vip-club/page/1029/#findComment-6358752 Udostępnij na innych stronach Więcej opcji udostępniania
lukasz69karolina 04.03.2014 09:50 Zgłoś naruszenie Udostępnij Napisano 4 Marca 2014 (edytowane) Bez okna w salonie będzie za ciemno ... ŚWIĘTE SŁOWA edit przeczytałam Twoje podejście - teraz rozumiem i już wiadomo że powinno się coś wykombinować w ogrodzie od tej strony by zasłonić widok na dom dla potencjalnych "rzucających" ... A te drzwi z salonu do korytarza po co? Obstawiam, że stale były by otwarte i mało użyteczne zgadzam się u dzieciaków przy łazience może tak: wtedy dodatkowy schowek z korytarza na odkurzacz? szczotkę i szufelkę jak się dzieciakom coś wysypie, worki na śmieci do koszy postawionych w pokojach?? a na górze: jestem tego samego zdania co pestka by zamknąć górę drzwiami, na całej ścianie szafa - mogą być lustra zamiast drzwi w niej i druga prostopadle - choć to zależy gdzie będzie łóżko? a łazienka taka duża wejdzie wanna, prysznic, dwie umywalki, bidet i wc Edytowane 4 Marca 2014 przez lukasz69karolina Cytuj Odnośnik do komentarza https://forum.murator.pl/topic/175929-vip-club/page/1029/#findComment-6358804 Udostępnij na innych stronach Więcej opcji udostępniania
Recommended Posts
Dołącz do dyskusji
Możesz dodać zawartość już teraz a zarejestrować się później. Jeśli posiadasz już konto, zaloguj się aby dodać zawartość za jego pomocą.