Bazyl3 25.04.2013 05:52 Zgłoś naruszenie Udostępnij Napisano 25 Kwietnia 2013 Ja też specem nie jestem, a i doradzać komuś kogo potrzeb się nie zna trudno, ale: Z14 - dół oprócz zbyt małej (dla mnie) kotłowni - fajny, ale na górze baaaaardzo skromniutkie metrażowo pokoje (tzn. po podłodze fajnie, ale jak się ma 2 metry wzrostu, to się patrzy na pełną wysokość ) Z99 - lepiej niż Z14, ale tylko pod warunkiem, że nie będzie ogrzewany paliwem stałym, no i dużo jeszcze zależy od usytuowania działki Z92 - no wiadomo , ale to już większy domek. Cytuj Odnośnik do komentarza https://forum.murator.pl/topic/177019-projekt-z92-pracownia-studio-z500/page/6/#findComment-5906258 Udostępnij na innych stronach Więcej opcji udostępniania
letniowoc 25.04.2013 11:53 Zgłoś naruszenie Udostępnij Napisano 25 Kwietnia 2013 Na poddaszu w z14 można podnieść ściankę kolankową i już zyskuje się więcej powierzchni użytkowej i przestrzeni. Moim zdaniem metraż po podłodze jak najbardziej ok. Jedyne co to nie podoba mi się daszek z przodu, wolę wypuszczony okap. Podobają mi się zmiany w z92 zaproponowane przez paliszcz i Bazyla Studio z500 mogłoby je wziąć pod uwagę Przeglądając strony z projektami, zauważyłam że jest sporo projektów podobnych funkcjonalnie do z92 po Waszych zmianach. Projekty różnią się wymiarami domu i powierzchnią poszczególnych pomieszczeń, ale układ jest taki sam lub zbliżony np. ULA Archeco albo SAMBOR EKO Archeton a tu już ze schodami w innym miejscu Dom przy Cyprysowej 20 i Dom przy Cyprysowej 26 To tak jakby ktoś szukał czegoś podobnego do z92, ale trochę mniejszego Cytuj Odnośnik do komentarza https://forum.murator.pl/topic/177019-projekt-z92-pracownia-studio-z500/page/6/#findComment-5906840 Udostępnij na innych stronach Więcej opcji udostępniania
paliszcz 26.04.2013 19:33 Autor Zgłoś naruszenie Udostępnij Napisano 26 Kwietnia 2013 (edytowane) Bazyl a Ty będziesz miał projekt indywidualny wzorowany na z92 czy gotowca adoptujesz ? Edytowane 27 Kwietnia 2013 przez paliszcz Cytuj Odnośnik do komentarza https://forum.murator.pl/topic/177019-projekt-z92-pracownia-studio-z500/page/6/#findComment-5908919 Udostępnij na innych stronach Więcej opcji udostępniania
paliszcz 30.04.2013 16:20 Autor Zgłoś naruszenie Udostępnij Napisano 30 Kwietnia 2013 no dobra projekt dopieszczony to teraz może pogadajmy o kosztach, -Jak oceniacie poszczególne etapy ? Ciekawi mnie wasza opinia nt stanu deweloperskiego bo reszta to wszystko zależne od gustu (płytki za 200zł czy 50 :/ więc rozbieżność może być duża) Może w końcu doczekamy się opinii doświadczonych ?! wiem że zakładane są specjalne wątki z pytaniami kto jak ocenia koszty budowy danego projektu ale może lepiej jak to wszystko będzie tu Cytuj Odnośnik do komentarza https://forum.murator.pl/topic/177019-projekt-z92-pracownia-studio-z500/page/6/#findComment-5913933 Udostępnij na innych stronach Więcej opcji udostępniania
Łerka 01.05.2013 15:07 Zgłoś naruszenie Udostępnij Napisano 1 Maja 2013 Witam wszystkich budujących Z92. JAk miło, że jest nas już więcej;) My złożyliśmy wniosek o pozwolenie na budowę 23 kwietnia i czekamy.... Do projektu wprowadziliśmy kilka zmian. Z tych istotnych dla architekta, który zrobił nam adaptację to było powiększenie tarasu do 3,5 m i powiększenie garażu do szerokości 6m (budujemy Z92 GL). Jedyne co będziemy jeszcze zmieniać to pewnie ścianki działowe. Na pewno zrezygnujemy z jednego okna połaciowego w pokoju w którym są aż 3. Zamiast pralni będziemy mieli garderobę do której będzie się wchodziło z sypialni obok. Natomiast pralnia, suszarnia i graciarnia będą na strychu. Acha a na dole w sieni przesuniemy lewą ściankę wgłąb kotłowni, żeby można było klapnąc przy zakładaniu bamboszy;)Jeżeli chodzi o budowę to na razie określiły się 2 ekipy. Tzn. jedna konkretnie a od drugiej czekam na szczegółową wycenę. PAn "konkretny" powiedział za SSO bez koparki i innych podobnych gadżetów 58 tysięcy. A drugi Pan bardzo mi się spodobał bo pokazał mi domy które zbudował i te które buduje. Powiedział, że SSO z materiałami (np dachówka ceramiczna, bloczek komórkowy), koparką, gadżetami i wszystkim co potrzebne to do 150 tys. sie wyceni. I co o tym myślicie? Cytuj Odnośnik do komentarza https://forum.murator.pl/topic/177019-projekt-z92-pracownia-studio-z500/page/6/#findComment-5914796 Udostępnij na innych stronach Więcej opcji udostępniania
paliszcz 11.05.2013 07:37 Autor Zgłoś naruszenie Udostępnij Napisano 11 Maja 2013 Witam Łerka- 58 tyś to strasznie dużo wg mnie- no chyba że z dachem ? Druga opcja całkiem kusząca- jakby zszedł do 130 tyś to już w ogóle My ciągle czekamy na zmiany od architekta, musimy mu dosłać jeszcze mapki do celów projektowych- i tu mam pytanko ile w waszych rejonach one kosztują i ile zamawiacie- 3, 4 a może 5 ? bo różne opinie czytam... Cytuj Odnośnik do komentarza https://forum.murator.pl/topic/177019-projekt-z92-pracownia-studio-z500/page/6/#findComment-5926053 Udostępnij na innych stronach Więcej opcji udostępniania
Łerka 11.05.2013 13:10 Zgłoś naruszenie Udostępnij Napisano 11 Maja 2013 W końcu ktoś się odezwał: :hug:Wszyscy zajęci chyba budowami i nie mają czasu na śledzenie forum;) Powiem szczerze, że mam ojca geodetę i się go spytam. W związku z tym, że papito wszystko mi załtwia i to w dodatku za darmo to nie orientuję się w szczegółach. Chodzi o tę mapkę co się daje do architekta przed adaptacja i naniesieniem budynku na mapę? Cytuj Odnośnik do komentarza https://forum.murator.pl/topic/177019-projekt-z92-pracownia-studio-z500/page/6/#findComment-5926202 Udostępnij na innych stronach Więcej opcji udostępniania
paliszcz 11.05.2013 14:55 Autor Zgłoś naruszenie Udostępnij Napisano 11 Maja 2013 Łerka- tak dokładnie o tą mapkę chodzi to zapytaj przy okazji o cenę wytyczenia budynku Wiesz co nie wiem czy tak wszyscy zajęci budową bo w wątku mało stałych bywalców... trochę się ruszało jak była dyskusja dotycząca zmian w projekcie a teraz cisza... szkoda że nie ma wśród nas bardziej doświadczonych to zawsze by coś podpowiedzieli :/ Cytuj Odnośnik do komentarza https://forum.murator.pl/topic/177019-projekt-z92-pracownia-studio-z500/page/6/#findComment-5926287 Udostępnij na innych stronach Więcej opcji udostępniania
Łerka 12.05.2013 18:25 Zgłoś naruszenie Udostępnij Napisano 12 Maja 2013 A więc PApito daje mapki w ilości "kto ile chce". Mówi, ze za to się nie płaci więc wedle potrzeby. Cena usługi to od 800 do 1000 zł. JA jestem dzisiaj zdołowana bo mój faworyt-budowlaniec milczy..... Przecież nie będę atakowała go telefonami bo jak zobaczy, że mi zależy to pewnie cena pójdzie w górę:/ PAliszcz jaki budżet przeznaczacie na budowę? Tak mniej więcej pytam. Nam powiedzieli architekt i budowlaniec, że w 350 max w 400 tys się zmieścimy:) Aaaa i wczoraj zapłaciliśmy pierwszy rachunek z Taurona. To też było wkurzająca bo nic się na działce nie dzieje a płacić trzeba;( Cytuj Odnośnik do komentarza https://forum.murator.pl/topic/177019-projekt-z92-pracownia-studio-z500/page/6/#findComment-5927576 Udostępnij na innych stronach Więcej opcji udostępniania
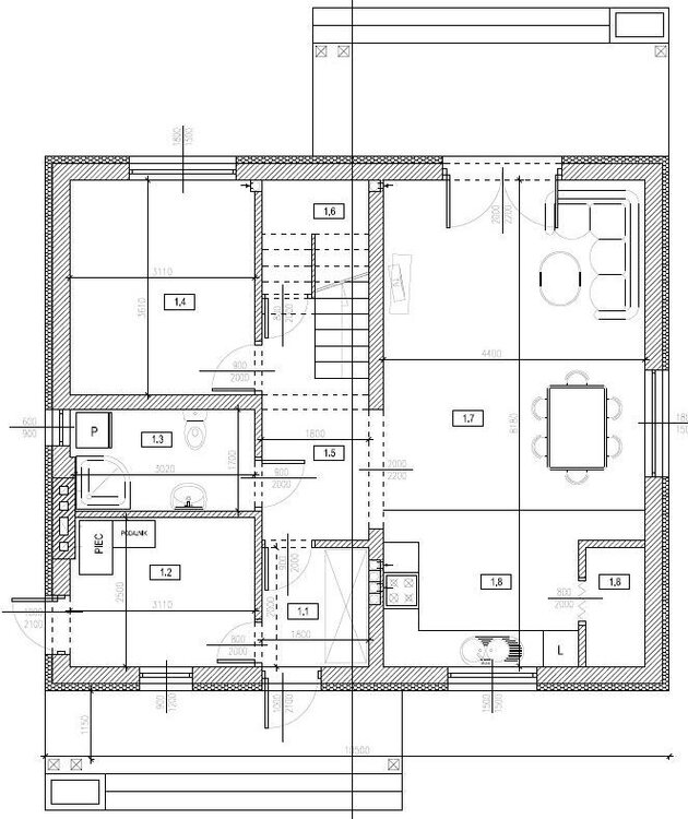
Bazyl3 13.05.2013 14:39 Zgłoś naruszenie Udostępnij Napisano 13 Maja 2013 (edytowane) @paliszcz - U nas mapka 700 PLN. A w temacie, problematyki ciąg dalszy Na elewacji płd okienko doświetlające klatkę znajduje się pod dachem tarasu Jedyne wyjście to okno dachowe, którego jak wszyscy zainteresowani wiedzą, nie chcemy. Czy jest sens zostawiać to okno pod dachem? Jaka grubość ściany fundamentowej? U nas bloczek daje się 240 mm, a pustak się wypuszcza. Można zrobić 380 mm, ale wtedy wiadomo, koszt Co dać na ściany. Chcieliśmy Maxa, ale majster namawia na P+W Porotherm. Czy zaniżyć położenie kotłowni czy dać tak jak resztę chałupy? Kominy wentylacyjne murować czy zrobić z kształtek? W łazience na górze okno dachowe czy to małe i wąskie szczytowe? Słowem, zbyt dużo pytań, na które nie znam odpowiedzi Na razie rozbolała mnie głowa i idę A, a na tym chyba zakończymy rozmieszczenie Edytowane 13 Maja 2013 przez Bazyl3 Cytuj Odnośnik do komentarza https://forum.murator.pl/topic/177019-projekt-z92-pracownia-studio-z500/page/6/#findComment-5928910 Udostępnij na innych stronach Więcej opcji udostępniania
Łerka 14.05.2013 15:11 Zgłoś naruszenie Udostępnij Napisano 14 Maja 2013 My mamy podobne dylematy. A najgorsze, że nie "weszliśmy" jeszcze w hasła budowlane. Najpierw jednak musimy znaleźć porządną ekipę (czy porządna to się okaże:/). A dlaczego chcecie obniżać podłogę w kotłowni? Cytuj Odnośnik do komentarza https://forum.murator.pl/topic/177019-projekt-z92-pracownia-studio-z500/page/6/#findComment-5930279 Udostępnij na innych stronach Więcej opcji udostępniania
paliszcz 14.05.2013 16:29 Autor Zgłoś naruszenie Udostępnij Napisano 14 Maja 2013 To jestem w szoku z tymi cenami mapek, nasz geodeta chce 280 zł, poprzednią propozycje mieliśmy za 300zł więc o co chodzi ? rejon kujawsko-pomorskie Bazyl to mi teraz dałeś do myślenia z tym oknem doświetlającym klatkę, zupełnie o tym nie pomyślałam- zaraz piszę do architekta. W łazience u nas tylko okno to podłużne, nie ma mowy o dachowym. Na resztę pytań nie odpowiem- powinni się wypowiedzieć Ci co budowali... Nie wiem jeszcze co ze ścianami fundamentowymi, kominami itd... A po co obniżać podłogę w kotłowni ? Łerka masz rację nie naciskaj bo gościu pomyśli, że bardzo zależy... A co do prądu- my za przyłącze płacimy 2300, a jakie rachunki ? Też o tym słyszałam, że płaci się jakąś stałą opłatę- nam pan powiedział, że to co zużyjemy to za to płacimy... i nic więcej... A koszty budowy he he tu chyba wszystkich zaskoczę ale mam nadzieję do 180k zł zrobić ssz z dachem, oknami i instalacjami ale ja chcę np. okna plastiki, białe bez okleiny (trochę poczytałam i na pewno dam sobie spokój z usztywnianą ramą, trzema szybami, antywłam-na poddaszu itd więc koszt powinien mnie nie powalić), blacho dachówkę a instalacje tylko za materiał- robocizna taniej bo wszystko znajomi. Na wykończenie chcemy przeznaczyć jakieś 100-150k zł (oczywiście bez szaleństw- nic z półki z napisem nowość ) Domcio ma być skromny i wybudowany za rozsądną cenę- dla nas a nie oka sąsiadów i rodziny. Wciąż zastanawiam się co z kredytem czy jednak nie zacząć z bankiem a później sprzedać mieszkanie i spłacić ile się da.... trudna decyzja bo od 2 miesięcy sprzedajemy a same biura nieruchomości dzwonią, proponują tak śmieszną cenę że aż szkoda sobie tym głowę zawracać... A wy dowiadywaliście się odnośnie kredytu ? Ile banki liczą sobie teraz za m2 ? I czy np działka liczy się jako wkład własny ? Czy liczy się kotłownia do powierzchni użytkowej? Macie jakiegoś faworyta ? Cytuj Odnośnik do komentarza https://forum.murator.pl/topic/177019-projekt-z92-pracownia-studio-z500/page/6/#findComment-5930365 Udostępnij na innych stronach Więcej opcji udostępniania
Łerka 14.05.2013 19:05 Zgłoś naruszenie Udostępnij Napisano 14 Maja 2013 Ale to nie jest cena za mapkę tylko za pomiar i coś tam. O co chodzi z oknem w korytarzu? Bo jeśli o problem doświetlenia to fajne są świetliki np. takie http://www.ambit.gda.pl/Swietliki-Dachowe/Fakro/Swietlik-Rurowy-SLT.htm Też się zastanawiam nad takim świetlikiem bo u mnie w korytarzu to w ogóle będzie ciemnica. A ja lubie jak jest dużo światła w domu. Faktura jest za "opłatę przyłączeniową" 94,10 zł. Niezbyt wielki koszt ale zawsze KOSZT! Za podłączenie (ale chyba już tego prądu po odbiorze, po zamieszkaniu ) zapłacimy właśnie ok 2800 zł z VATEM. Chyba, że dobrze umowy nie doczytałam i się mylę. Paliszcz, powiem CI szczerze, że my dowiadywaliśmy się jakieś 3 lata temu o kredyt ale to tak bardzo luźno. Nie odpowiem Ci na twoje wszystkie pytania ale wiem jedno: kredyt to zabójstwo! JEśli i tak macie w planie sprzedać mieszkanie to lepiej sprzedać za mniejsze pieniądze. Bo zejdziesz z ceny np. 10-20 tys a za tyle to Ci być może bank pozwoli wcześniej spłacić kredyt. Banki nie lubią wcześniejszych spłat. Weź proszę zobacz sobie na internecie jakikolwiek kalkulator kredytowy i zobaczysz ze za kredyt 250 tys musisz bankowi oddać 200. Przez 30 lat swojego życia pracujesz na prezesów banku zestresowany bo nigdy nie wiesz co sie wydarzy. Wybudujesz dom , sprzedasz mieszkanie a i tak kredyt Ci zostanie. My żeśmy rok czasu liczyli. 3 lata zbieraliśmy na działke bo sie panicznie boimy kredytów. Nie mam znajomych którzy nie mają kredytu i powiem CI , że wszyscy żyją w stresie. JA zarabiam bardzo mało. ALe zarabiam tyle ile zostawałoby mi po spłacie raty kredytowej. Więc nie stresuję że jak stracę pracę to bank będzie mnie nękał, że zabiorą mi dom na który wzięłam kredyt. My też musimy sprzedac mieszkanie. Teraz mamy karty kredytowe i z tego bedziemy w razie czego opłacac początek budowy. Zawsze to chwilowe raty i odsetki a nie zło na lata. A w międzyczasie czekamy aż sprzeda się mieszkanie. Oszczędzamy także maksymalnie. I powiem Ci szczerze, że lepiej mi sie śpi jak sobie pomyślę, że może budowa będzie dłuzej trwała, może jeszcze 2 może 3 lata będę musiała się gnieździć na 40 wynajmowanych m kw. (mieszkanie które sprzedajemy mamy w innym mieście niż mieszkamy) ale jak sie wprowadzę to zamiast płacić raty będę kupowac kosiarkę albo budować altankę ogrodową ..... się rozgadałam Cytuj Odnośnik do komentarza https://forum.murator.pl/topic/177019-projekt-z92-pracownia-studio-z500/page/6/#findComment-5930566 Udostępnij na innych stronach Więcej opcji udostępniania
Bazyl3 15.05.2013 06:29 Zgłoś naruszenie Udostępnij Napisano 15 Maja 2013 @paliszcz 280 zeta za mapkę do celów projektowych, to jak darmo No, chyba że nie mówimy o tej samej mapce Z tą kotłownią, to w sumie nie wiem o co chodzi Takie pytanie padło i myślałem, że tu się czegoś dowiem Obniżona nie będzie potrzebowała schodów z zewnątrz, ale za to wewnątrz. O i tak. @Łerka Jak spojrzysz na zamieszczony rysunek elewacji, to zobaczysz wykreskowane okno znajdujące się pod daszkiem tarasu. To okno miało doświetlać klatkę schodową, ale jest zasłonięte. I lipa Cytuj Odnośnik do komentarza https://forum.murator.pl/topic/177019-projekt-z92-pracownia-studio-z500/page/6/#findComment-5931033 Udostępnij na innych stronach Więcej opcji udostępniania
paliszcz 15.05.2013 14:12 Autor Zgłoś naruszenie Udostępnij Napisano 15 Maja 2013 Bazyl a ile mapek bierzesz ? Architekt powiedział, że chce jedną- więc nie wiem po co mi więcej- a słyszałam że ludzie biorę np po 4 lub 6 ? Może są jeszcze do czegoś potrzebne ? Łerka zapytaj tatę O świetlikach nic nie słyszałam, pierwszy raz coś takiego widzę ale to nie bardzo mi odpowiada bo trzeba dziurę w dachu robić :/ Co do kredytu to ja sobie doskonale zdaję sprawę ile trzeba oddać- tylko problem tkwi w tym że mamy trochę więcej niż 20 lat i jakbyśmy mieli odkładać to pewnie po 50 byśmy się budowali... więc kredyt i tak nas czeka... jakbyśmy mieli ratę około 1000zł to bez problemu... muszę pochodzić po bankach i zapytać bo najważniejsza sprawa ile banki policzą za budowę Cytuj Odnośnik do komentarza https://forum.murator.pl/topic/177019-projekt-z92-pracownia-studio-z500/page/6/#findComment-5931514 Udostępnij na innych stronach Więcej opcji udostępniania
Bazyl3 17.05.2013 06:26 Zgłoś naruszenie Udostępnij Napisano 17 Maja 2013 (edytowane) Bazyl a ile mapek bierzesz ? A nawet nie wiem ile tych mapek dostałem Z pytań gnębiących. Rozumiem, że murujecie fundament z bloczka. Jak ustawiacie 240 czy 380 mm? Majster twierdzi, że na szerokości 240 mm spokojnie można murować nawet z maksa 288 mm, a przy jakimś porothermie 250 mm, to już w ogóle nie ma o czym gadać. Ja natomiast mam wąty, czy budynek będzie wystarczająco stabilny. Podpowie ktoś z doświadczeniem?? PS. A jak by się już znalazł ktoś z doświadczeniem, to może by doradził czy zwykły max (koszt spoin poziomych) czy też porotherm p+w. I czy ściana w tej drugiej technologii będzie duuuużo droższa od pierwszej?? Edytowane 17 Maja 2013 przez Bazyl3 Cytuj Odnośnik do komentarza https://forum.murator.pl/topic/177019-projekt-z92-pracownia-studio-z500/page/6/#findComment-5933485 Udostępnij na innych stronach Więcej opcji udostępniania
Bazyl3 21.05.2013 08:18 Zgłoś naruszenie Udostępnij Napisano 21 Maja 2013 Pogoda się zrobiła i każdy chyba w plenerach Cytuj Odnośnik do komentarza https://forum.murator.pl/topic/177019-projekt-z92-pracownia-studio-z500/page/6/#findComment-5938148 Udostępnij na innych stronach Więcej opcji udostępniania
Bazyl3 22.05.2013 07:48 Zgłoś naruszenie Udostępnij Napisano 22 Maja 2013 Pytania dodatkowe: z czego robicie kominy wentylacyjne (cegła, kształtki), jakie dajecie wkłady kominowe? Cytuj Odnośnik do komentarza https://forum.murator.pl/topic/177019-projekt-z92-pracownia-studio-z500/page/6/#findComment-5939442 Udostępnij na innych stronach Więcej opcji udostępniania
Bazyl3 27.05.2013 18:56 Zgłoś naruszenie Udostępnij Napisano 27 Maja 2013 Podbijam temat w nadziei, że się może ożywi. U nas ostatnie podrygi przed złożeniem wniosku o PnB Cytuj Odnośnik do komentarza https://forum.murator.pl/topic/177019-projekt-z92-pracownia-studio-z500/page/6/#findComment-5947458 Udostępnij na innych stronach Więcej opcji udostępniania
Łerka 29.05.2013 20:40 Zgłoś naruszenie Udostępnij Napisano 29 Maja 2013 Bazyl, my pozwolenie odebraliśmy dzisiaj. Zaczynamy w przyszłym tygodniu. Nie wiem jakie bedą kominy i cała reszta bo powiem Ci szczerze , że nie mam kiedy poczytać ale jak tylko czegos się dowiem to napisze. Chociaz pewnie nie bede wartościowym partnerem do rozmów :oops:Na stronie z500 prowadzę "moją budowe". Zapraszam;) Cytuj Odnośnik do komentarza https://forum.murator.pl/topic/177019-projekt-z92-pracownia-studio-z500/page/6/#findComment-5951039 Udostępnij na innych stronach Więcej opcji udostępniania
Recommended Posts
Dołącz do dyskusji
Możesz dodać zawartość już teraz a zarejestrować się później. Jeśli posiadasz już konto, zaloguj się aby dodać zawartość za jego pomocą.