Barth3z 20.07.2014 07:06 Autor Zgłoś naruszenie Udostępnij Napisano 20 Lipca 2014 (edytowane) Proszę komentarze wpisywać w komentarzach No i stało się. Buduję już ten "drugi" dom nie zaczynając pierwszego. Dlaczego zmieniłem projekt ? Z kilku względów: - czas oczekiwania na poprzedni przekroczył wszelkie terminy.. Skończyła mi się cierpliwość. - im dłużej myślałem i czytałem o parterówce tym bardziej się do niej przekonywałem (na starość będzie łatwiej ) - pojawiła się "inspiracja", która mnie urzekła: http://ad009cdnb.archdaily.net/wp-content/uploads/2014/01/52cf3c6de8e44e84960000b5_maison-simon-mathieu-no-l-lodie-bonnefous-architectes_img_5559-530x351.jpg http://www.archdaily.com/465664/maison-simon-mathieu-noel-and-elodie-bonnefous-architectes/ - pojawiła się koncepcja kszhu, która idealnie mi podpasowała (przede wszystkim grunt niewysadzinowy) - http://forum.muratordom.pl/showthread.php?223881-B%C4%99dzie-ma%C5%82y-ekonomiczny-i-tanio-koncepcja - większa połać pod panele PV - tańsza budowa parterówki ... Edytowane 1 Grudnia 2014 przez Barth3z Cytuj Odnośnik do komentarza https://forum.murator.pl/topic/178757-ex-house-pasywna-stodo%C5%82a/page/2/#findComment-6525513 Udostępnij na innych stronach Więcej opcji udostępniania
Barth3z 20.07.2014 07:12 Autor Zgłoś naruszenie Udostępnij Napisano 20 Lipca 2014 (edytowane) Rzut: Przekrój: Elewacje: Perspektywy: Edytowane 20 Lipca 2014 przez Barth3z Cytuj Odnośnik do komentarza https://forum.murator.pl/topic/178757-ex-house-pasywna-stodo%C5%82a/page/2/#findComment-6525518 Udostępnij na innych stronach Więcej opcji udostępniania
Barth3z 21.07.2014 12:27 Autor Zgłoś naruszenie Udostępnij Napisano 21 Lipca 2014 Planuję tak wykonać wiązary, aby móc wykorzystać przestrzeń nad stropem. Zrobię tam jakąś graciarnię, może reku. Planuję ją ocieplić:http://i145.photobucket.com/albums/r232/depilator/izolacja_dachujpg.jpg Cytuj Odnośnik do komentarza https://forum.murator.pl/topic/178757-ex-house-pasywna-stodo%C5%82a/page/2/#findComment-6526509 Udostępnij na innych stronach Więcej opcji udostępniania
Barth3z 30.07.2014 21:38 Autor Zgłoś naruszenie Udostępnij Napisano 30 Lipca 2014 Dziś złożone papiery o PnB ! Cytuj Odnośnik do komentarza https://forum.murator.pl/topic/178757-ex-house-pasywna-stodo%C5%82a/page/2/#findComment-6535788 Udostępnij na innych stronach Więcej opcji udostępniania
Barth3z 01.08.2014 07:53 Autor Zgłoś naruszenie Udostępnij Napisano 1 Sierpnia 2014 Poszukując informacji o zastosowanym drewnie na elewacji natrafiłem na firmę, ktora wybudowała ten oryginalny domek we Francji: http://www.francomtoise.com/diaporama1.aspx?RepDiapo=Maisons Znalazłem w galerii kilka zdjęć nigdzie indziej nie publikowanych z budowy tego domku: http://www.francomtoise.com/images/client/Diaporamas/Maisons/pontplanche%20(2).jpg http://www.francomtoise.com/images/client/Diaporamas/Maisons/pontplanche4%20(2).jpg http://www.francomtoise.com/images/client/Diaporamas/Maisons/pontplanche6%20(2).jpg Pierwszy raz widzę front tego budynku. Mój mi się jednak bardziej podoba Cytuj Odnośnik do komentarza https://forum.murator.pl/topic/178757-ex-house-pasywna-stodo%C5%82a/page/2/#findComment-6537065 Udostępnij na innych stronach Więcej opcji udostępniania
Barth3z 01.08.2014 07:55 Autor Zgłoś naruszenie Udostępnij Napisano 1 Sierpnia 2014 Poszukuję tanich desek na elewację z modrzewia syberyjskiego. Jak znacie jakiegoś dobrego i taniego importera tego drewna to podrzućcie kontakt. Cytuj Odnośnik do komentarza https://forum.murator.pl/topic/178757-ex-house-pasywna-stodo%C5%82a/page/2/#findComment-6537067 Udostępnij na innych stronach Więcej opcji udostępniania
Barth3z 18.08.2014 14:22 Autor Zgłoś naruszenie Udostępnij Napisano 18 Sierpnia 2014 Dostałem pismo o uzupełnienia do PnB: połowę rzeczy mam, bo świadomie składałem wniosek o PnB z brakującymi papierkami (m.in. czekałem na decyzję o odrolnieniu). Ale z resztą będę musiał coś wykombinować, bo mi czas ucieknie ... Cytuj Odnośnik do komentarza https://forum.murator.pl/topic/178757-ex-house-pasywna-stodo%C5%82a/page/2/#findComment-6550629 Udostępnij na innych stronach Więcej opcji udostępniania
karolek75 18.08.2014 14:35 Zgłoś naruszenie Udostępnij Napisano 18 Sierpnia 2014 Wszsytko w standardzie oprocz konserwatora zabytkow... Wyjasnisz o co chodzi ? Cytuj Odnośnik do komentarza https://forum.murator.pl/topic/178757-ex-house-pasywna-stodo%C5%82a/page/2/#findComment-6550644 Udostępnij na innych stronach Więcej opcji udostępniania
Barth3z 19.08.2014 08:31 Autor Zgłoś naruszenie Udostępnij Napisano 19 Sierpnia 2014 A może jendak udałoby się osadzić w otworze okienny - tarasowym same pakiety + drzwi ? Coś takiego:http://www.k-m-architektur.com/html/projekte/images/DSC_0132_b1.jpgCzy jednak za duże ryzyko z osadzaniem drzwi miedzy pakietami ? Cytuj Odnośnik do komentarza https://forum.murator.pl/topic/178757-ex-house-pasywna-stodo%C5%82a/page/2/#findComment-6551242 Udostępnij na innych stronach Więcej opcji udostępniania
dzinks0 20.08.2014 08:51 Zgłoś naruszenie Udostępnij Napisano 20 Sierpnia 2014 Hejo, mam nadzieje że jak ruszysz z budową, będzie dużo fotek. Co do tego przegrzewania to faktycznie chyba idealne rozwiązanie. Jak rozumiem nie planujesz żadnych rolet itp. rzeczy? Sam sie ostatnio nawet zastanawiałem nad takimi głębokimi okapami, bo u znajomego mi to przyszło do głowy ale on ma normalne okapy i nie wiedziałem jak słońce w ciągu roku by wchodziło. Ale dzięki temu programikowi super pokazałes Zastanawiam się nad tym: - elewacja południowa wentylowana- chcesz przepuszczać nią powietrze z gwc? czy jak - silikat E15, EPS, GK 7cm - czemu akurat taka sciana trójwarstwowa? w austrii jest dużo domów z takimi elewacjami. niewiem czy to świerk syberyjski ale po kilku latach to wygląda okropnie, chyba surowe drewno dają bo szarzeje i wygląda to jak stodoła. moge ci kilka fotek porobić jak byś chciał Cytuj Odnośnik do komentarza https://forum.murator.pl/topic/178757-ex-house-pasywna-stodo%C5%82a/page/2/#findComment-6552269 Udostępnij na innych stronach Więcej opcji udostępniania
dzinks0 20.08.2014 08:54 Zgłoś naruszenie Udostępnij Napisano 20 Sierpnia 2014 A może jendak udałoby się osadzić w otworze okienny - tarasowym same pakiety + drzwi ? Coś takiego: http://www.k-m-architektur.com/html/projekte/images/DSC_0132_b1.jpg Czy jednak za duże ryzyko z osadzaniem drzwi miedzy pakietami ? a czy niema tam wtedy dużego mostka cieplnego? bo normalnie pakiety są w ociepleniu Cytuj Odnośnik do komentarza https://forum.murator.pl/topic/178757-ex-house-pasywna-stodo%C5%82a/page/2/#findComment-6552273 Udostępnij na innych stronach Więcej opcji udostępniania
Barth3z 20.08.2014 10:00 Autor Zgłoś naruszenie Udostępnij Napisano 20 Sierpnia 2014 Mam wyniki OZC od asolta. Jego komentarz: "Wyniki rewelacja" A oto dane (liczone dla III strefy klimatycznej -20oC): p.u. = 143m2 U stropu: 0,066 W/m2K U ściany: 0,075 W/m2K U podłogi: 0,08 W/m2K (te wartości to chyba za duża przesada...) Projektowe obciążenie cieplne budynku ΦHL: 2489 W Zapotrzebowanie na ciepło - ogrzewanie QH,nd: 1428 kWh/rok, czyli ok 10 kWh/m2/rok Cytuj Odnośnik do komentarza https://forum.murator.pl/topic/178757-ex-house-pasywna-stodo%C5%82a/page/2/#findComment-6552326 Udostępnij na innych stronach Więcej opcji udostępniania
מרכבה 20.08.2014 11:58 Zgłoś naruszenie Udostępnij Napisano 20 Sierpnia 2014 (edytowane) Projektowe obciążenie cieplne budynku ΦHL: 2489 W 17 wat ... mocy na 1m2 coś dużo, pewnie przez wentylację ? jak tam Htr i Hve ? wyszło 17 wat mocy przy -20 to jest dziwnie dużo. Przy tych parametrach U przegród ... Może okna przyczyniły się do takiego wyniku ? Problem w tym że Aslot dobrze policzył ... gdzieś musi być otwór w całym systemie że tak duża moc przy -20 wychodzi http://forum.muratordom.pl/attachment.php?attachmentid=275835&d=1408528544 to chyba nie Twoje wyniki 8,5 MWh.... suma Edytowane 20 Sierpnia 2014 przez מרכבה Cytuj Odnośnik do komentarza https://forum.murator.pl/topic/178757-ex-house-pasywna-stodo%C5%82a/page/2/#findComment-6552480 Udostępnij na innych stronach Więcej opcji udostępniania
Barth3z 26.08.2014 18:32 Autor Zgłoś naruszenie Udostępnij Napisano 26 Sierpnia 2014 Planuję tak wykonać wiązary, aby móc wykorzystać przestrzeń nad stropem. Zrobię tam jakąś graciarnię, może reku. Planuję ją ocieplić: http://i145.photobucket.com/albums/r232/depilator/izolacja_dachujpg.jpg Tak mnie teraz olśniło, że chcąc wykorzystać tą przestrzeń nad stropem to taniej (mniej styro) będzie zrobić izolację podkrokwiową, a sam strop zasypać proszkiem PUR. Dostałem pismo o uzupełnienia do PnB: [ATTACH=CONFIG]275591[/ATTACH] połowę rzeczy mam, bo świadomie składałem wniosek o PnB z brakującymi papierkami (m.in. czekałem na decyzję o odrolnieniu). Ale z resztą będę musiał coś wykombinować, bo mi czas ucieknie ... Dziś złożyłem wszystkie brakujące dokumenty, włącznie z konserwatorem. Zmieściłem się w wyznaczonym terminie. Jeśli nie doczepią się do nietypowej konstrukcji, to PnB powinno być w ciągu tygodnia. Trzymajcie kciuki ! Cytuj Odnośnik do komentarza https://forum.murator.pl/topic/178757-ex-house-pasywna-stodo%C5%82a/page/2/#findComment-6558282 Udostępnij na innych stronach Więcej opcji udostępniania
Barth3z 29.08.2014 10:31 Autor Zgłoś naruszenie Udostępnij Napisano 29 Sierpnia 2014 Jest PnB ! Oficjalnie papier odbieram w poniedziałek. W przyszłym tygodniu uporządkowuję działkę, a roboty mam trochę. Muszę przesypać wszystkie worki z proszkiem od pigeona do bigbagów, bo te obecne się utleniły Tak to wygląda: Później wytyczanie budynku i zamawiam koparkowego do kopania rowu pod ławy. Cytuj Odnośnik do komentarza https://forum.murator.pl/topic/178757-ex-house-pasywna-stodo%C5%82a/page/2/#findComment-6561343 Udostępnij na innych stronach Więcej opcji udostępniania
M.A.G. 07.09.2014 18:41 Zgłoś naruszenie Udostępnij Napisano 7 Września 2014 Inspiracja (ta piekna stodoła) jest genialna. Zaglądnij na blog Skitka wrzucił tam rewelacyjny kompleks stodół. Cos czuje ze moj następny dom pójdzie w tą stronę. Oczywiscie 3mam kciuki za niestandardowe rozwiązania nowej budowy. Swoją drogą , urzedasy nie pytały czemu taka technologia? Cytuj Odnośnik do komentarza https://forum.murator.pl/topic/178757-ex-house-pasywna-stodo%C5%82a/page/2/#findComment-6569689 Udostępnij na innych stronach Więcej opcji udostępniania
Barth3z 10.09.2014 13:02 Autor Zgłoś naruszenie Udostępnij Napisano 10 Września 2014 (edytowane) Dziś rozmawiałem z austrothermem w sprawie EPSów na podłogę i elewację. Pytałem o możliwość zamówienia płyt w niestandardowym wymiarze 3m x 1m x 0,3m. Okazuje się, że ten wymiar idealnie wpasowuje się z bloki z których wycinają płyty, ponieważ bloki są o wymiarze 6m x 1m x 1,5m. Z takiego bloku będę miał 10 płyt bez żadnych odpadów. Przedstawiciel powiedział, że teraz jednak leci produkcja płyt standardowych i z realizacją zamówienia płyt niestandardowych w tym okres będzie duży problem. Ale jak powiedziałem, że potrzebuję na styczeń luty to powiedział, że nie będzie problemu, a i może nieco niższe ceny nawet dostanę. Pozostaje mi tylko sprawdzić jak takie płyty wpasują się w układ okien drzwi itp. Będą większe niż te poniżej http://jstatic.asmira.com/photo/29/355129/album/8148306_720.jpg http://jstatic.asmira.com/photo/29/355129/album/5715579_720.jpg EDIT: Aaa i bardzo ważna rzecz. Nie polecają EPS'a 80, grafitowego - http://www.austrotherm.pl/produkty/austrotherm-eps/austrotherm-eps-dach-podloga-premium.html pod ogrzewaną podłogę. Podobno, przy temp. 50oC może źle pracować/osiadać. Na szczęście takie temperatury podłogi mi nie grożą. Edytowane 10 Września 2014 przez Barth3z Cytuj Odnośnik do komentarza https://forum.murator.pl/topic/178757-ex-house-pasywna-stodo%C5%82a/page/2/#findComment-6572999 Udostępnij na innych stronach Więcej opcji udostępniania
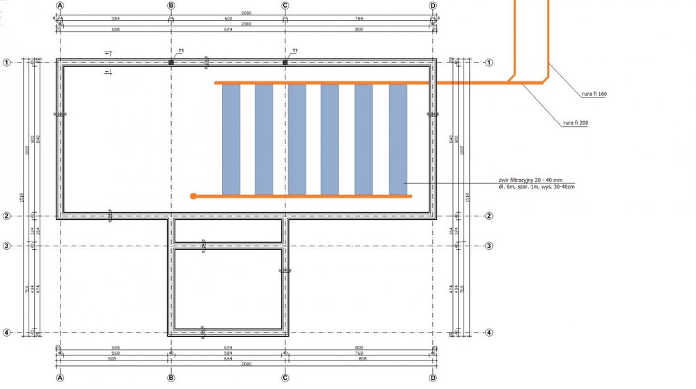
Barth3z 14.09.2014 17:06 Autor Zgłoś naruszenie Udostępnij Napisano 14 Września 2014 Żwirowy GWC w układzie Tichelmanna pod domem ! Pomysł takiego układu zrodził się w wątku adama. A tak wygląda w moim przypadku: Wydaję się, że taki układ to zbiór zalet układu rurowego i żwirowego. Jednak jego lokalizacja pod domem to dość kontrowersyjny pomysł, ale jak liczyłem, to straty przez podłogę wzrosną mi o wartość jednego piwa rocznie A zysk ? Budowa takiego GWC w obrębie fundamentów jest znacznie tańsze niż poza. Cytuj Odnośnik do komentarza https://forum.murator.pl/topic/178757-ex-house-pasywna-stodo%C5%82a/page/2/#findComment-6577070 Udostępnij na innych stronach Więcej opcji udostępniania
Barth3z 14.09.2014 18:18 Autor Zgłoś naruszenie Udostępnij Napisano 14 Września 2014 Jak możesz zaoszczędzić kilkadziesiąt PLN to kup paczkę pancernych NTC10k (chyba, ze wolisz inwestować w coś droższego) i zakop po jednym na wlocie i wylocie każdego kanału. Kable przedłóż i wyprowadź z zapisaniem z jakiej grubości i ile m ma każda przedłużka. Będą to DS18B20 - 6 szt. Gdzie je rozłożyć ? Bardziej w GWC czy bardziej w gruncie ? Propozycja poniżej: Może 4-ki nie umieszczać w GWC, tylko z pół metra niżej ? PS. Odpowiedz w komentarzach. Cytuj Odnośnik do komentarza https://forum.murator.pl/topic/178757-ex-house-pasywna-stodo%C5%82a/page/2/#findComment-6577137 Udostępnij na innych stronach Więcej opcji udostępniania
Barth3z 14.09.2014 19:31 Autor Zgłoś naruszenie Udostępnij Napisano 14 Września 2014 Aaa, zapomniałem jeszcze napisać jak bedzie wyglądało nacięcie w rurze. Mianowicie, zamiast wiercić otwory jak to w wątku adama, http://images30.fotosik.pl/6/6fc7bba7cb3f2fe9med.jpg u mnie będą pionowe paski. Coś podobnego do tego: http://rurystudzienne.pl/produkty/ruryfiltrowe.jpg tylko co drugi ząbek wybity I oczywiście tylko w miejscu, gdzie będzie żwir, czyli metr dziur, pół metra lita rura i znów metr z otworami. Mowa o rurach 3metrowych. Cytuj Odnośnik do komentarza https://forum.murator.pl/topic/178757-ex-house-pasywna-stodo%C5%82a/page/2/#findComment-6577242 Udostępnij na innych stronach Więcej opcji udostępniania
Recommended Posts
Dołącz do dyskusji
Możesz dodać zawartość już teraz a zarejestrować się później. Jeśli posiadasz już konto, zaloguj się aby dodać zawartość za jego pomocą.