mostal 05.10.2014 11:13 Zgłoś naruszenie Udostępnij Napisano 5 Października 2014 Witam. W związku z kupnem mieszkania, rozpoczynamy planowanie salonu z AK. Plan salonu załączam na zdjęciu. Wszystkie okna są wysokie 220cm. Aneks jest naniesiony już na plan. Zastanawiamy się nad rozmieszczeniem kanapy i TV, stołu jadalnego z 4-6 krzesłami, ewentualnie stolika kawowego. Będziemy wdzięczni za wszelkie sugestie i pomysły. Cytuj Odnośnik do komentarza https://forum.murator.pl/topic/194090-pomoc-przy-aran%C5%BCacji-salonu-z-aneksem-25m2/ Udostępnij na innych stronach Więcej opcji udostępniania
kinka 05.10.2014 12:34 Zgłoś naruszenie Udostępnij Napisano 5 Października 2014 http://static.pokazywarka.pl/i/4511819/346761/rhui.jpg http://static.pokazywarka.pl/i/4511819/701503/rgytuyu.jpg Cytuj Odnośnik do komentarza https://forum.murator.pl/topic/194090-pomoc-przy-aran%C5%BCacji-salonu-z-aneksem-25m2/#findComment-6597230 Udostępnij na innych stronach Więcej opcji udostępniania
mostal 05.10.2014 16:49 Autor Zgłoś naruszenie Udostępnij Napisano 5 Października 2014 Dziękujemy za pierwsze pomysły, pierwszy bardzo ciekawy. Chciałbym zapytać o umieszczenie telewizora, jest zamontowany na czymś w rodzaju wyspy? Cytuj Odnośnik do komentarza https://forum.murator.pl/topic/194090-pomoc-przy-aran%C5%BCacji-salonu-z-aneksem-25m2/#findComment-6597369 Udostępnij na innych stronach Więcej opcji udostępniania
kinka 06.10.2014 07:45 Zgłoś naruszenie Udostępnij Napisano 6 Października 2014 (edytowane) Nie,telewizor wisi sobie na ścianie,można go też w nią wmontować żeby nie odstawał.http://www.touchofart.eu/designers/photos/Esstudio_inz_arch_wnetrz_Emilia_Swienc/0dba8120423ee3e559114adf49564033_z.jpg Edytowane 6 Października 2014 przez kinka Cytuj Odnośnik do komentarza https://forum.murator.pl/topic/194090-pomoc-przy-aran%C5%BCacji-salonu-z-aneksem-25m2/#findComment-6597852 Udostępnij na innych stronach Więcej opcji udostępniania
ofdesign 07.10.2014 21:28 Zgłoś naruszenie Udostępnij Napisano 7 Października 2014 Trzeba pamiętać o komunikacji i wyjściu na taras. Tu przedmówca zapomniał o tym:) To bardzo trudne wnętrze i niestety trzeba będzie się pogodzić z małym stołem, bo taki lepszy niż tylko np. blat barowy. Więc moja propozycja jest taka, w mojej opinii jedyna opcja: Cytuj Odnośnik do komentarza https://forum.murator.pl/topic/194090-pomoc-przy-aran%C5%BCacji-salonu-z-aneksem-25m2/#findComment-6599861 Udostępnij na innych stronach Więcej opcji udostępniania
mostal 08.10.2014 16:58 Autor Zgłoś naruszenie Udostępnij Napisano 8 Października 2014 Witam. Zrobiłem wizualizacje pierwszej wersji kinka. stół chcemy jak najmniejszy 90x90, rozkładany na ok 250. Przypomnę o tych oknach 220cm, miały być nowoczesne, a zaczynają stwarzać problem:) Oczywiście meble należy traktować poglądowo. Balkon będzie się otwierał. Pomysł ofdesign, też jest ciekawy, powiększamy przestrzeń w kuchni, kosztem mniejszego salonu. Ta komoda przy narożnym oknie, nie wiem czy to dobry pomysł, mimo wszystko szkoda przysłaniać widoku. Co o tym sądzicie? Cytuj Odnośnik do komentarza https://forum.murator.pl/topic/194090-pomoc-przy-aran%C5%BCacji-salonu-z-aneksem-25m2/#findComment-6600547 Udostępnij na innych stronach Więcej opcji udostępniania
ofdesign 10.10.2014 14:41 Zgłoś naruszenie Udostępnij Napisano 10 Października 2014 Jeżeli okno narożne jest do podłogi to oczywiście komoda odpada. Ale dalej uważam nie nie należy mieszać "jadalni" z salonem aż w tak małej odległości. Kuchnia którą narysowałem jest jak najbardziej funkcjonalna - często taką mini wersje proponuje klientom, jest wystarczająca.Lodówka ->blat roboczy->zlew->blat roboczy->płyta grzewcza->blat.Poza tym dalej jest zaburzona komunikacja wyjścia na balkon. W rzucie z pierwszego posta wynika że są to drzwi podwójne otwierane do wewnątrz. Lokalizacja stołu w takim miejscu poza psuciem estetycznego wyglądu, zaburza komunikacje. Sprawy sporządzania i spożywania zamknąłbym w jednym "ukrytym" miejscu, strefe dzienną w drugim. W razie potrzeby stół można przenieść nawet na środek salonu i zorganizować większą kolacje:) Cytuj Odnośnik do komentarza https://forum.murator.pl/topic/194090-pomoc-przy-aran%C5%BCacji-salonu-z-aneksem-25m2/#findComment-6602733 Udostępnij na innych stronach Więcej opcji udostępniania
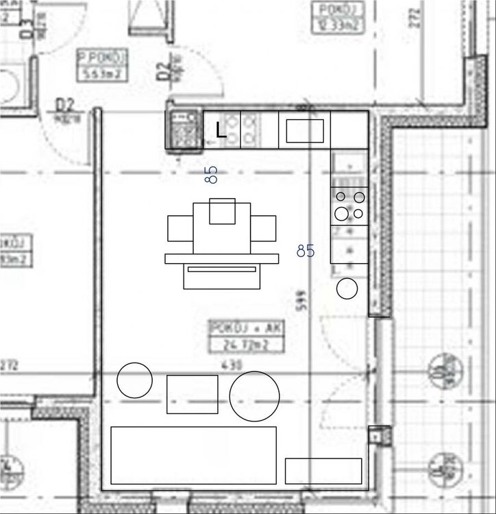
mostal 11.10.2014 13:54 Autor Zgłoś naruszenie Udostępnij Napisano 11 Października 2014 Witam. Przygotowałem wersję 2, z pomysłu ofdesign. Co do kolejności elementów w kuchni, tutaj sprawa pozostaje otwarta, koło lodówki chciałem dać pytę grzewczą, ze względu na bliskość wyciągu, nad płytą okap podpięty do wentylacji. Moim zdaniem, przy salonach z aneksem dobrze rozwiązana instalacja wentylacyjna to podstawa. W narożniku okapnik zlewu, dalej blat roboczy 2x60, pod nim zmywarka. Na koniec słupek z piekarnikiem. Czy ma to sens? Docelowo planujemy też przestawić drzwi do sypialni, skos na we ma otworzyć przestrzeń. Przestawiając drzwi umożliwimy wstawienie większej szafy pod zabudowę. Cytuj Odnośnik do komentarza https://forum.murator.pl/topic/194090-pomoc-przy-aran%C5%BCacji-salonu-z-aneksem-25m2/#findComment-6603551 Udostępnij na innych stronach Więcej opcji udostępniania
ofdesign 11.10.2014 16:40 Zgłoś naruszenie Udostępnij Napisano 11 Października 2014 Witaj, funkcjonalnie kuchnia jest niewygodna. Umiejscowienie wysokiej zabudowy obok okna, optycznie zmniejszy przestrzeń w widoku od salonu i odetnie Ci dopływ światła do blatu. Ktoś już kiedyś wymyślił kolejność funkcjonalną blatu roboczego i szkoda sobie utrudniać życie robiąc to po swojemu. Przyjęło się że produkt wyciągnięty z lodówki powinno móc się przygotować na bliskim blacie roboczym, po czym obok powinien być zlew, kolejny etap przyrządzania na blacie roboczym i kolejny to już płyta grzewcza lub piekarnik. W tym przypadku wysoką zabudowę umieściłbym w grupie, tzn. obok lodówki. Co do okapu. Rurę można prowadzić w suficie podwieszanym (tutaj mogłoby to nie zdać egzaminu) albo jak jest potrzeba zakupić dobry okap z filtrem węglowym. Zależy od intensywności gotowania. Ogólnie przy takiej ilości okien w pomieszczeniu nie powinno być problemu. Cytuj Odnośnik do komentarza https://forum.murator.pl/topic/194090-pomoc-przy-aran%C5%BCacji-salonu-z-aneksem-25m2/#findComment-6603610 Udostępnij na innych stronach Więcej opcji udostępniania
Recommended Posts
Dołącz do dyskusji
Możesz dodać zawartość już teraz a zarejestrować się później. Jeśli posiadasz już konto, zaloguj się aby dodać zawartość za jego pomocą.