mikus39 30.11.2014 09:38 Zgłoś naruszenie Udostępnij Napisano 30 Listopada 2014 (edytowane) Witam,jestem na etapie tworzenia dachu.Mam położone murłaty.Rozstawione krokwie i jętki.Teraz wyszedł problem.Na murłacie musi zostać domurowana ścianka na której zostanie zamontowane okno z lukarny.Więc moje pytanie jak to zrobić żeby nie doszło w przyszłości do zniszczenia murłaty?Tak jak zaznaczyłem na zdjęciach i rysunkach miało by to wyglądać.Kolor żółty to własnie ta scianka. Edytowane 30 Listopada 2014 przez mikus39 Cytuj Odnośnik do komentarza https://forum.murator.pl/topic/195687-lukarna/ Udostępnij na innych stronach Więcej opcji udostępniania
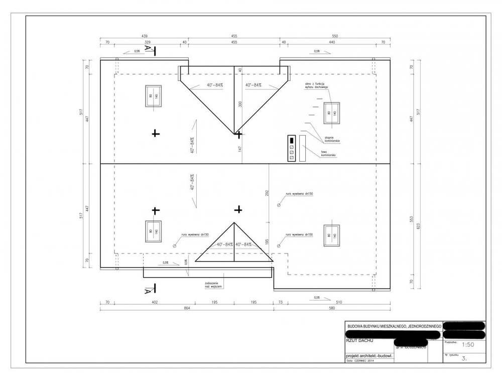
jajmar 30.11.2014 10:54 Zgłoś naruszenie Udostępnij Napisano 30 Listopada 2014 Na murłacie niczego nie muruj. Zastnawiam się po co w tym miejscu murłata? Co na ten temat mówi projekt? Zrób to zgodnie z projektem. Wklej rzut więźby. Cytuj Odnośnik do komentarza https://forum.murator.pl/topic/195687-lukarna/#findComment-6658362 Udostępnij na innych stronach Więcej opcji udostępniania
bracki88 30.11.2014 12:54 Zgłoś naruszenie Udostępnij Napisano 30 Listopada 2014 Wrzuć plan, to coś doradzimy:) Sam to robisz? Pytam, bo widzę że pojecie nikłe Cytuj Odnośnik do komentarza https://forum.murator.pl/topic/195687-lukarna/#findComment-6658513 Udostępnij na innych stronach Więcej opcji udostępniania
mikus39 30.11.2014 13:24 Autor Zgłoś naruszenie Udostępnij Napisano 30 Listopada 2014 (edytowane) Robi dekarz.Ale coś nie bardzo mu wychodzi bo projekt jest mocno skopany..Zaproponowałem mu takie cuś : http://www.nasznowydom.pl/zdjecia-z-budowy/konstrukcja-i-pokrycie-dachu/szersze-odstepy-miedzy-wybranymi-krokwiami-to-miejsce-na-okna-dachowe-129#joomimg Problem wyszedł kiedy wyszedł pomysł przedłużenia dachu z przodu.Miał wyglądać tak Edytowane 30 Listopada 2014 przez mikus39 Cytuj Odnośnik do komentarza https://forum.murator.pl/topic/195687-lukarna/#findComment-6658543 Udostępnij na innych stronach Więcej opcji udostępniania
mikus39 30.11.2014 13:49 Autor Zgłoś naruszenie Udostępnij Napisano 30 Listopada 2014 (edytowane) Dach obecnie wygląda tak : a co do projektanta to wyłaczył telefon.A w projekcie brakuje kilku podstawowych rzeczy. Edytowane 30 Listopada 2014 przez mikus39 Cytuj Odnośnik do komentarza https://forum.murator.pl/topic/195687-lukarna/#findComment-6658566 Udostępnij na innych stronach Więcej opcji udostępniania
bracki88 30.11.2014 14:30 Zgłoś naruszenie Udostępnij Napisano 30 Listopada 2014 Zdajesz sobie sprawę, że stan faktyczny to nie jest to co jest w projekcie? Cytuj Odnośnik do komentarza https://forum.murator.pl/topic/195687-lukarna/#findComment-6658607 Udostępnij na innych stronach Więcej opcji udostępniania
mikus39 30.11.2014 14:44 Autor Zgłoś naruszenie Udostępnij Napisano 30 Listopada 2014 (edytowane) Tak,a stanowi to duży problem,jeżeli zostanie zaakceptowane przez kierbuda?Wydaje mi się że tylko jest wysuniety bardziej przód i brakuje filarów. Edytowane 30 Listopada 2014 przez mikus39 Cytuj Odnośnik do komentarza https://forum.murator.pl/topic/195687-lukarna/#findComment-6658628 Udostępnij na innych stronach Więcej opcji udostępniania
jajmar 30.11.2014 15:30 Zgłoś naruszenie Udostępnij Napisano 30 Listopada 2014 Tak,a stanowi to duży problem,jeżeli zostanie zaakceptowane przez kierbuda?Wydaje mi się że tylko jest wysuniety bardziej przód i brakuje filarów. Dobrze piszesz wydaje Ci się. To co poazujesz wymaga aktualizacji pozwolenia na budowę. Kierwonik nie ma takiej "wladzy" aby to zalegalizował. Płatew wymaga podparacia, słupy + fundamenty. W jaki sposób wyobrażacie sobie użytkowanie tej lukarny ? Te krokwie powinny dochodzc do kosza a nie do murłaty, krótej tam nie powinno być. Cytuj Odnośnik do komentarza https://forum.murator.pl/topic/195687-lukarna/#findComment-6658682 Udostępnij na innych stronach Więcej opcji udostępniania
mikus39 30.11.2014 15:46 Autor Zgłoś naruszenie Udostępnij Napisano 30 Listopada 2014 (edytowane) Lukarna jeszcze nie jest skończona.Dlatego zatrzymał się w tym miejscu.Krokwie będa wycięte aby zamontować okno. tak jak tutaj.Płatew zostanie podparta 2 filarami tak jak w projekcie.Tylko co teraz z krokwiami,które odchodzą w dól od murłaty? Edytowane 30 Listopada 2014 przez mikus39 Cytuj Odnośnik do komentarza https://forum.murator.pl/topic/195687-lukarna/#findComment-6658697 Udostępnij na innych stronach Więcej opcji udostępniania
מרכבה 30.11.2014 16:10 Zgłoś naruszenie Udostępnij Napisano 30 Listopada 2014 Tylko ścian szczytowych nie wyciągaj waść aż po samą membranę dachową, puki czas jeszcze.Tak aby Ci zostało miejsce na izolację nad tą ścianą .. najlepiej równą grubości izolacji poddasza ..ładnie w tedy będzie połączona izolacja ścian i izolacja poddasza. Cytuj Odnośnik do komentarza https://forum.murator.pl/topic/195687-lukarna/#findComment-6658717 Udostępnij na innych stronach Więcej opcji udostępniania
mikus39 30.11.2014 16:32 Autor Zgłoś naruszenie Udostępnij Napisano 30 Listopada 2014 Czyli szczytów już nie domurowywać tylko walic styropian do samych krokwi? Cytuj Odnośnik do komentarza https://forum.murator.pl/topic/195687-lukarna/#findComment-6658740 Udostępnij na innych stronach Więcej opcji udostępniania
מרכבה 30.11.2014 16:38 Zgłoś naruszenie Udostępnij Napisano 30 Listopada 2014 http://forum.muratordom.pl/showthread.php?232040-O-murarzach-dyletantach-i-ca%C5%82ej-czeladzi-projektuj%C4%85co-wykonuj%C4%85co-nadzoruj%C4%85cej&highlight=murarzach tu szerzej ..jeśli grubość izolacji poddasza wynosi 25 cm to tyle trzeba dać styropianu nad ścianą ..i połączyć to z izolacją ścian .. Cytuj Odnośnik do komentarza https://forum.murator.pl/topic/195687-lukarna/#findComment-6658743 Udostępnij na innych stronach Więcej opcji udostępniania
mikus39 30.11.2014 16:52 Autor Zgłoś naruszenie Udostępnij Napisano 30 Listopada 2014 (edytowane) Czyli z tego wynika ze ja mam juz za wysokie szczyty.,jak teraz dołożę 20 cm styro to myślę że bedzie OK?Mocowanie rozumiem normalnie na klej tak jak cegła? Styro grafit czy biały?Co מרכבה możesz zaproponować w temacie mojej lukarny?Ja cały czas myśle żeby zastosować taką przedmurłatę (bo nie wiem jak to nazwać)na której oparły by się krokwie i wtedy zlikwidować murłatę i spokojnie dolać ściankę i zakotwić w niej tę przedmurłatę Moze inaczej mówiąc wysunąć murłatę poza obrys budynku w miejscu lukarny i tam oprzec krakwie wychodzące spod okna lukarny.Tył domu chyba wykonany prawidłowo? Edytowane 30 Listopada 2014 przez mikus39 Cytuj Odnośnik do komentarza https://forum.murator.pl/topic/195687-lukarna/#findComment-6658758 Udostępnij na innych stronach Więcej opcji udostępniania
מרכבה 30.11.2014 17:31 Zgłoś naruszenie Udostępnij Napisano 30 Listopada 2014 (edytowane) Co tu zrobić ? problem jest tego typu że w projekcie elewacji jest co innego, a w konstrukcji dachu jest co innego, wcięcie na rzutach elewacji zaczyna się po lewej stronie lukarny, a na więźbie dachowej po prawej http://forum.muratordom.pl/attachment.php?attachmentid=291940&d=1417355341&thumb=0 wypada tą płatew podeprzeć słupem. A później trudny detal się robi.. wypada dać drugą murłatę przy końcu krokwi, tak aby dało się dać tam 20cm izolacji. Należało by wzmocnić mocowanie murłaty.. tej na wieńcu i przeciąć ją w tedy na szerokości lukarny. Krokwie zakończ 25cm od ściany obecnej .. w to miejsce EPS'a oraz nad XPS'a aż nad wieniec trzeba z tym wyjechać .. Krokwie oparte o drugą płatew nie będą musiały wspierać się na murłacie. Oraz jak dobrze pomyślisz to na jednym słupie oparcie będzie mieć obecna płatew i ta dodatkowa nowa.. która będzie biegała w odległosci tych 25cm żeby było jeszcze miejsce na ruch ręką przy izolacji. Ściana szczytowa jeszcze nie jest podmurowana .. może pojedyncze rożki pustaków są już za wysoko .. ale jest na czas jeszcze. Wyrugowanie tych błędów bez kosztów .. to czysty zysk.. na ogrzewaniu. Edytowane 30 Listopada 2014 przez מרכבה Cytuj Odnośnik do komentarza https://forum.murator.pl/topic/195687-lukarna/#findComment-6658794 Udostępnij na innych stronach Więcej opcji udostępniania
mikus39 30.11.2014 17:42 Autor Zgłoś naruszenie Udostępnij Napisano 30 Listopada 2014 (edytowane) Bo rysunek elewacji zmieniłem sam żeby zobaczyc jak będzie wyglądac.Tak właśnie myślałem że można by zrobić takie betonowe "pestki " i do tego dodatkowo kotwić murłaty.Co do płatwi,kiebud zdecydował żeby nie podpierać słupem dał grubsze płatwie.Słupy miały być schowane w ścianach działowych.Gdzie dać te dodatkową płatew.Jak byś mógł na rysunku strzałeczka było by łatwiej.Nie popatrzyłem na miniaturke na dole.Z przodu będzie betonowy słup.A o takiej właśnie belce myslałem jak ta żółta kreska.A ta dodatkowa płatew już jest dodana tylko niżej. Edytowane 30 Listopada 2014 przez mikus39 Cytuj Odnośnik do komentarza https://forum.murator.pl/topic/195687-lukarna/#findComment-6658807 Udostępnij na innych stronach Więcej opcji udostępniania
מרכבה 30.11.2014 17:59 Zgłoś naruszenie Udostępnij Napisano 30 Listopada 2014 teraz wygląda tak jak ta brązowa linia, obecna płatew z obrazka to ta zielona .. druga to czerwona .. Nie zgadzam się z opinią .. ze nie potrzeba słupa, może być ścianka na zewnątrz.. zastrzał do małej stopki fundmanetowej przed domem .. coś co wesprze tą zieloną płatew i drugą .. inaczej robi się z tego huśtawka. Żółta linia to miejsce na izolację. Cytuj Odnośnik do komentarza https://forum.murator.pl/topic/195687-lukarna/#findComment-6658825 Udostępnij na innych stronach Więcej opcji udostępniania
mikus39 30.11.2014 18:05 Autor Zgłoś naruszenie Udostępnij Napisano 30 Listopada 2014 Tej brazowej lini z przodu nie ma.leci tylko ta zielona.Pod zieloną będzie słup z przodu. Cytuj Odnośnik do komentarza https://forum.murator.pl/topic/195687-lukarna/#findComment-6658832 Udostępnij na innych stronach Więcej opcji udostępniania
מרכבה 30.11.2014 18:10 Zgłoś naruszenie Udostępnij Napisano 30 Listopada 2014 Zasugerowałem się obecnym stanem i tym co jest na rys więźby .. wyglądało jak równe z okapem garażu.To trzeba będzie w tedy oprzeć na paru kołkach drewnianych taki trójkąt .. który połączy kikuciki krokwi z płatwią .. tylko myśl głośna.chodzi o ich koniec .. albo ta czerwona płatew .. ale #80x160 -200 mm starczy taki przekrój na to czerwone .. to będzie najprościejszejsza sprawa. Cytuj Odnośnik do komentarza https://forum.murator.pl/topic/195687-lukarna/#findComment-6658840 Udostępnij na innych stronach Więcej opcji udostępniania
mikus39 01.12.2014 12:01 Autor Zgłoś naruszenie Udostępnij Napisano 1 Grudnia 2014 Została dodana jedna krokiew z przodu.A murłata w oknie zlikwidowana.Dziękuję za pomoc. Cytuj Odnośnik do komentarza https://forum.murator.pl/topic/195687-lukarna/#findComment-6659735 Udostępnij na innych stronach Więcej opcji udostępniania
מרכבה 01.12.2014 12:17 Zgłoś naruszenie Udostępnij Napisano 1 Grudnia 2014 A no może być, "krokiew" alla płatew, ważne aby były dwa punkty podparcia. Czyli chyba dłuższy daszek zostanie jak z przodu ? chyba że z przodu od lukarny Nie ma sprawy wątek jeszcze się przyda co do izolacji ścian szczytowych i innych... Cytuj Odnośnik do komentarza https://forum.murator.pl/topic/195687-lukarna/#findComment-6659757 Udostępnij na innych stronach Więcej opcji udostępniania
Recommended Posts
Dołącz do dyskusji
Możesz dodać zawartość już teraz a zarejestrować się później. Jeśli posiadasz już konto, zaloguj się aby dodać zawartość za jego pomocą.