Miesięcznik Murator ONLINE

Skocz do zawartości

Recommended Posts

Cześć

 

mam problem z zaaranżowaniem domu, poniemieckiego

 

kupowałem z zamiarem przebudowy, ale istniejący plan zagospodarowania jest tak słabo napisany, że kolejny architekt nie ma pewności co jest faktycznie dozwolone;

niestety Panie w wydziale planowania przestrzennego też nie mogły mi wyjaśnić co oznaczają pojęcia, których tam używają :(

 

potrzebuję Waszej pomocy, pls

 

musze wrócić do koncepcji remontu domu bez rozbudowy poza dzisiejszy obrys ścian

 

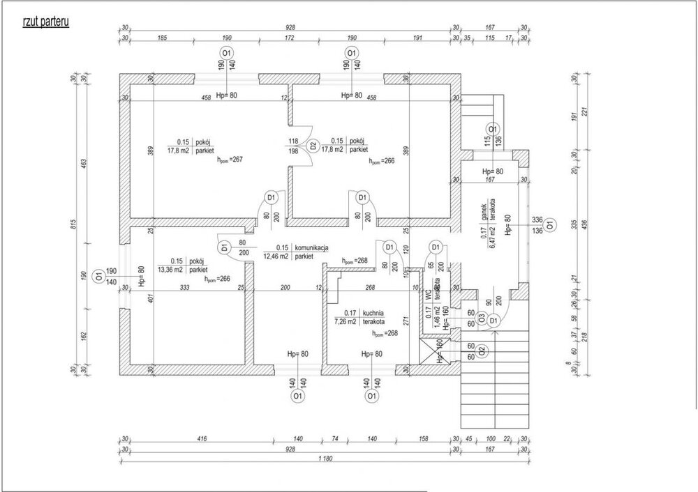
załączam rysunki z archiwów niemieckich gdzie są 3 kondygnacje

piwnica, parter i poddasze;

i zrobioną na szybko inwentaryzację parteru

 

mam największy problem z parterem;

Niemcy zbudowali na parterze tylko umywalkę z muszlą, w bardzo wąskim pomieszczeniu obok kuchni;

chciałbym zachować na dole sypialnię, salon z okresową funkcją pokoju sypialnianego dla gości i jadalnię;

myślicie, że z obecnej werandy dałoby się zrobić kuchnię i połączyć z jadalnią? - a wejście zrobić z boku, tu gdzie dzisiaj jest toaleta; zaś w dzisiejszej kuchni zrobiłbym nową łazienkę?

 

od strony werandy jest ogród, i jest ona po stronie zachodniej, więc widok z niej i części ewentualnej jadalni mógłby być naprawdę ciekawy

 

będę wdzięczny za każdą podpowiedź

 

Elewacja front i rzut parter.jpgElewacja od garażu i rzut piwnica.jpgElewacja ogród i rzut poddasze.jpgElewacja_przekrój domu.jpgparter_wymiary_tmp_1.jpg

Edytowane przez advis
Odnośnik do komentarza
https://forum.murator.pl/topic/200024-poniemiecki-dom-wolnostoj%C4%85cy-pomocy/
Udostępnij na innych stronach

  • 2 weeks później...

1. Czy Twoj dom to zabytek? Czy jest objety jakas ochrona lub planem? Czy mozesz zmieniac zewnetrzny wyglad?

2. Rys. sa male przez co nieczytelne, a na inwentaryxacji brakuje oznaczen - salon, sypialnia... Schody na gore sa kolo kuchni?

3. Pomysl przeniesieniem kuchni calkiem ciekawy, ale warto sie zastanowic:

- 2 razy naruszasz sciany nosne

- wejscie do domu przez obecne WC - Jakiej szerokosci beda drzwi (z rys. wynika, ze max 70 cm to malo jak na wejscie). Otwieranie drzwi moze byc klopotliwe ze wzgledu na schody - poszerzyc ostani stopien? Warto by przesunac sciane WC/kuchnia, zeby hol byl wiekszy. Jak wniesiesz meble, bo trudno bedzie wykrecic, oknami?

- kuchnia od zachodniej str. w duzymi oknami oznacza skwar w srodku, przydalaby sie klima i cos do cieniowania. Gotowanie i przechowywanie produktow w wysokiej temp. jest trudne.

 

Propozycja - kuchnio- jadalnie zrobic w pokoju na gorze planu po prawej. Werande zrobic do posiedzenia i gapienia sie na ogrod - moze wyjscie na ogrod. Wejscie glowne przez werande tak jak obecnie, albo od str. ogrodu, a Wc zrobic spizarke.

Edytowane przez Sawadi
Odnośnik do komentarza
https://forum.murator.pl/topic/200024-poniemiecki-dom-wolnostoj%C4%85cy-pomocy/#findComment-6814284
Udostępnij na innych stronach

Dołącz do dyskusji

Możesz dodać zawartość już teraz a zarejestrować się później. Jeśli posiadasz już konto, zaloguj się aby dodać zawartość za jego pomocą.

Gość
Odpowiedz w tym wątku

×   Wklejono zawartość z formatowaniem.   Usuń formatowanie

  Dozwolonych jest tylko 75 emoji.

×   Odnośnik został automatycznie osadzony.   Przywróć wyświetlanie jako odnośnik

×   Przywrócono poprzednią zawartość.   Wyczyść edytor

×   Nie możesz bezpośrednio wkleić grafiki. Dodaj lub załącz grafiki z adresu URL.



×
×
  • Dodaj nową pozycję...