Miesięcznik Murator ONLINE

Skocz do zawartości

Recommended Posts

Witam,

 

Zakładałem kilka tygodni temu temat dotyczący ogrzewania podłogowego lub z grzejnikami, po tamtym temacie doszedłem do wniosku że na całości zrobię podłogówkę.

 

Jednak nie mogę sobie poradzić z programem KISAN OZC 4.018 aby uzyskać z niego jakieś informacje.

 

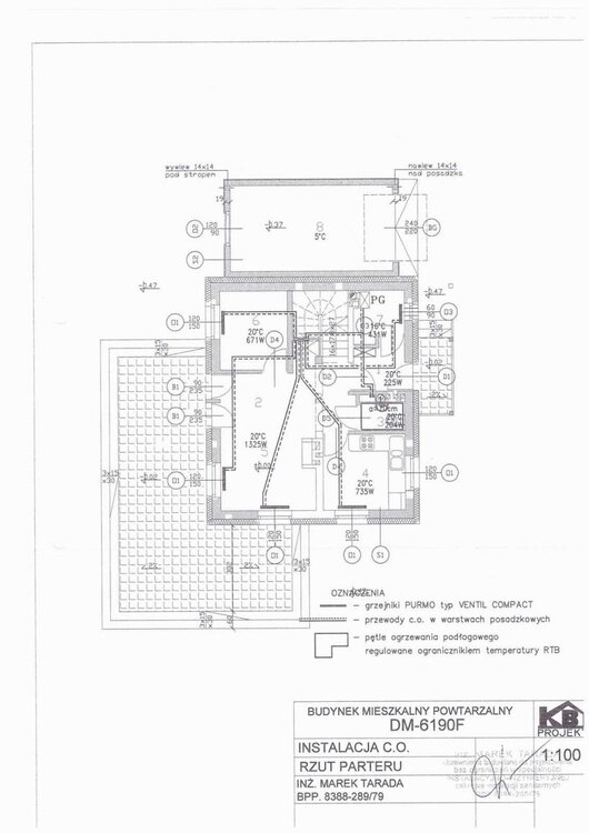
Mam natomiast rysunki z mojego projektu przedstawiające zapotrzebowanie ile W powinno mieć konkretne pomieszczenie tylko oni liczyli do grzejników i zasilania temperaturą 70/50

[ATTACH=CONFIG]327165[/ATTACH][ATTACH=CONFIG]327166[/ATTACH]

 

 

Gdy kupiłem projekt miałem też załączoną charakterystykę energetyczną i przybliżę kilka informacji z niej:

Ep=68,82 kWh/m2 rok

Zapotrzebowanie na energie użytkową do ogrzewania i wentylacji EUco+w = 33,4 w projekcie była wentylacja grawitacyjna, natomiast będzie zastosowana wentylacja mechaniczna

Zapotrzebowanie na energię użytkową do przygotowania ciepłej wody EUcwu = 24,26

Zapotrzebowanie na całkowitą energię użytkową Eu = 57,66

Zapotrzebowanie na energię końcową EK = 79,80

Współczynnik strat mocy ciepnej przez przenikanie przez przegrody zewnętrzne Wtr =57,14 W/K

Współczynnik strat mocy cieplnej na wentylacje Hwe=48,03 W/K

Roczne zapotrzebowanie na energie pierwotna przez system grzewczy i wentylacyjny Qp,h = 2531,06 kWh/rok

Roczne zapotrzebowanie na energię pierwotną przez system do podgrzania cieplej wody Qp,w = 3695,48 kWh/rok

Rocze zapotrzebowanie na energię końcową przez system grzewczy i wentylacyjny do ogzewania i wentylacji Qk,h= 3700,72

Roczne zapotrzebowanie na energię końcową przez system do podgrzania cieej wody Qk,w = 3344,72

 

 

Z w/w informacji da się oszacować co jaką odległość należałoby rozmieścić rurki w wylewce, jeśli temperaturę instalacji ustawiłoby się np na 35 stopni?

Czy za mało informacji aby coś móc typować?

SCAN_20150118_163838983_048.jpg

SCAN_20150118_163838983_047.jpg

Edytowane przez pecet0
Odnośnik do komentarza
https://forum.murator.pl/topic/203127-pod%C5%82og%C3%B3wka-bez-oblicze%C5%84-z-ozc/
Udostępnij na innych stronach

Dołącz do dyskusji

Możesz dodać zawartość już teraz a zarejestrować się później. Jeśli posiadasz już konto, zaloguj się aby dodać zawartość za jego pomocą.

Gość
Odpowiedz w tym wątku

×   Wklejono zawartość z formatowaniem.   Usuń formatowanie

  Dozwolonych jest tylko 75 emoji.

×   Odnośnik został automatycznie osadzony.   Przywróć wyświetlanie jako odnośnik

×   Przywrócono poprzednią zawartość.   Wyczyść edytor

×   Nie możesz bezpośrednio wkleić grafiki. Dodaj lub załącz grafiki z adresu URL.



×
×
  • Dodaj nową pozycję...