Liwko 13.12.2016 12:26 Zgłoś naruszenie Udostępnij Napisano 13 Grudnia 2016 Nie napisałeś. Ja tak napisałem, żeby nieco uświadomić w czym rzecz. Piszesz "dużo więcej" i "3x więcej paneli na te cele". W rzeczywistości jest to raptem ze 20% paneli więcej (i im cieplejszy dom tym mniej %), bo przecież montując PV nie rozdzielamy jej osobno na systemy grzewcze i osobno na prąd bytowy. Na bytowe idzie mi rocznie około 4000kWh, tyle mu też załóżmy. Na CWU około 1200kWh. Bez PC licząc COP na poziomie 2,5 wyszłoby 3000kWh. U niego wyjdzie około 4000kWh / z PC około 1600kWh Na CO idzie u mnie około 2800kWh. Licząc COP na poziomie 4, wyszłoby około 11200kWh. U niego niech wyjdzie 2000kWh / z PC około 500kWh Czyli bez PC u niego roczne zapotrzebowanie na cały prąd może wynieść około 10 000kWh, a z PC około 6100kWh. Ja tu widzę różnicę aż 40%, a to jednak spora różnica na PV. Oprócz kosztów należy pamiętać też o miejscu. Cytuj Odnośnik do komentarza https://forum.murator.pl/topic/224494-dom-z-pytaniami/page/3/#findComment-7245090 Udostępnij na innych stronach Więcej opcji udostępniania
Barth3z 13.12.2016 14:19 Zgłoś naruszenie Udostępnij Napisano 13 Grudnia 2016 Na bytowe idzie mi rocznie około 4000kWh, tyle mu też załóżmy. Na CWU około 1200kWh. Bez PC licząc COP na poziomie 2,5 wyszłoby 3000kWh. U niego wyjdzie około 4000kWh / z PC około 1600kWh Na CO idzie u mnie około 2800kWh. Licząc COP na poziomie 4, wyszłoby około 11200kWh. U niego niech wyjdzie 2000kWh / z PC około 500kWh Czyli bez PC u niego roczne zapotrzebowanie na cały prąd może wynieść około 10 000kWh, a z PC około 6100kWh. Ja tu widzę różnicę aż 40%, a to jednak spora różnica na PV. Oprócz kosztów należy pamiętać też o miejscu. A u mnie wychodzi 20% i to w okresie grzewczym Z tym, że ja bytowy mam o ponad 50% wyższy od tego który ty założyłeś, a cwu wyjdzie ok. 3000kWh/rok. No i mam splita, który przejął ogrzewanie domu. Cytuj Odnośnik do komentarza https://forum.murator.pl/topic/224494-dom-z-pytaniami/page/3/#findComment-7245175 Udostępnij na innych stronach Więcej opcji udostępniania
Liwko 13.12.2016 15:26 Zgłoś naruszenie Udostępnij Napisano 13 Grudnia 2016 6000 na bytowy? A myślałem, że to ja jestem rozpustny No ale podsumujmy. Będzie zużywał więcej CWU. Będzie mieć rurki w podłodze. Doradzałbyś teraz grzanie prądem + ewentualnie splita czy kanałówkę? Cytuj Odnośnik do komentarza https://forum.murator.pl/topic/224494-dom-z-pytaniami/page/3/#findComment-7245212 Udostępnij na innych stronach Więcej opcji udostępniania
imrahil 13.12.2016 19:37 Zgłoś naruszenie Udostępnij Napisano 13 Grudnia 2016 a dla mnie izolacja od środka i dom jaki wybudował Barth3z to majstersztyk. można tym sposobem wybudować tanio parterówkę bez mostków, co przy izolacji od zewnątrz nie jest takie proste (płyta fundamentowa o dużej powierzchni izolowana w dodatku XPSem sporo kosztuje, mostki do dachu generalnie ciężko wyeliminować do zera przy izolacji zewnętrznej). w dodatku można sobie wykończyć elewację dowolnym materiałem bez obaw o te nieszczęsne mostki termiczne (i to bez stosowania jakiś kosmicznych rozwiązań). przy parterówce można śmiało zrezygnować z otwieranych okien i wstawić fixy. trzymam więc kciuki. tylko zdjęcia mi się nie otwierają - pewnie jakiś limit serwera został przekroczony. Cytuj Odnośnik do komentarza https://forum.murator.pl/topic/224494-dom-z-pytaniami/page/3/#findComment-7245381 Udostępnij na innych stronach Więcej opcji udostępniania
Barth3z 14.12.2016 08:15 Zgłoś naruszenie Udostępnij Napisano 14 Grudnia 2016 6000 na bytowy? A myślałem, że to ja jestem rozpustny Może dlatego, że trwają jeszcze prace wykończeniowe - chodzą szlifierki wiertarki piły itp. Dodatkowo mam oświetlony ogród wraz z podjazdem, który codziennie po zachodzie słońca załaczam. Mam też oświetlenie podbitki dookoła domu. Pompa do wody deszczowej, pompa piaskowa do fitrowania wody w basenie (to w lecie) ... itd. Będzie zużywał więcej CWU. Będzie mieć rurki w podłodze. Doradzałbyś teraz grzanie prądem + ewentualnie splita czy kanałówkę? Ciężko powiedzieć... Nie wiem też czy będzie zużywał więcej cwu. Ja odzyskuje ok 25% ciepła z cwu (Marek też planuje wykonać taki odzysk), a moje zużycie to 2x prysznic + 1x wanna. Córki póki są jeszcze małe (5 i 7lat, a Marek ma młodsze) to kąpią się razem w wannie. Z czasem pewnie będą kąpać się osobno, ale to raczej na rzecz prysznica. Zużycie cwu nie powinno wzrosnąć. Co do rurek w podłodze - ja też je zalałem ... i teraz żałuję. Kompletna strata czasu na ich układanie i pieniędzy na materiały. Praktycznie w tej cenie miałbym kable + sterowniki na cały dom, a i robota przy kablach znacznie łatwiejsza. Patrząc na średnioroczne temperatury widać tendencję w kierunku znaczącego wzrostu temperatur, więc split + kable nie jest głupim rozwiązaniem. http://naukaoklimacie.pl/cdn/upload/5697b72d84b92_globcio-pl-future.png - http://naukaoklimacie.pl/aktualnosci/najcieplejszy-rok-w-polskiej-historii-pomiarow-130 W moim przypadku nie kalkulował się zakup pompy ciepła p-w, mimo, że wszystko pod nią miałem przygotowane. Ja jednak nie jestem "typowym" inwestorem Z góry założyłem budowę domu około pasywnego i bardzo nietypowego, a dopiero do niego dobierałem systemy grzewcze. Cytuj Odnośnik do komentarza https://forum.murator.pl/topic/224494-dom-z-pytaniami/page/3/#findComment-7245642 Udostępnij na innych stronach Więcej opcji udostępniania
Marek.M 18.12.2016 20:43 Autor Zgłoś naruszenie Udostępnij Napisano 18 Grudnia 2016 Na początku sorki, że tak długo nie pisałem. W tej chwili prądu bytowego zużywany 2500 kWh, myślę, że mając dom zmieszczę się w 3500 kWh. Jeżeli chodzi o CWU to w tej chwili mam piec na gaz. Ze zużycia gazu w okresie niegrzewczym, wychodzi mi, przyjmując ~t=35st. (z 10 do 45 st), 10,972 kWh/m3, że zużywam rocznie ok. 1900 kWh na ciepłą wodę oraz gotowanie. Jednak jedzenie nie jest gotowane codziennie. Mieszkamy w tej chwili 3os. dorosłe plus dwójka dzieciaczków. Dlatego zużycie na dom szacuję na maks. 2500 kWh. Przyjmując, ostrożnie 20% odzysk, to daje 2000 kWh. CO z kolei zakładając 15 kWh/m2/rok, a nawet 20 to 15 * 136 = 2040 (dla 20 to 2720) kWh. Reasumując wychodzi 3500 + 2000 + 2000 = 7500 kWh (do 8300) Z czego na CWU+CO = 4000 kWh, czystym prądem w 2 taryfie (cena to ok. 40 gr?) = 1600 złZ PC (COP 2,5) = 1600 kWh, koszt 640 złRóżnica wychodzi 1000 zł.Pytanie jaka PC musiałaby być do takich parametrów, chodzi mi o moc? No i jaki jest jej koszt? Odnośnie jeszcze PV, a właściwie zmniejszenia ich mocy, o której wspomniał Liwko, to wychodzi, że zastosowanie PC daje zmniejszenie o ok. 2400 kWh, czyli ok. 30%. PV nie wiem, czy będę na pewno robił, zależy to od kosztów jakie musiałbym ponieść. W tej chwili (ceny z allegro) wychodzi, że kosztowałoby to ok. (10kW) 45000 zł, z PC (7kW) 32000 zł. Rurki w podłodze jak pisałem chciałbym kłaść ze względu na to, że mogę mieć dostęp do bardzo taniego drewna... ale... Pytanie Bartek ile wydałeś na te "rurki"? Bo czy będzie się to w ogóle opłacać, rurki + piec, jaki to może być koszt? Podobnie jak Bartek zdecydowanie wolę zainwestować w styropian, czyli "grzanie" pasywne, niż w mocniejszą PC. Mam jeszcze do was pytanie o zbiornik do CWU+CO (jakbym te rurki zalał). Chciałbym do niego podłączyć albo tą PC albo piec na drewno, a oprócz tego poza sezonem własnej roboty solar. Dałoby się to zrobić jedną wężownicą? W domu chciałbym również zrobić zbiornik na deszczówkę, którą chciałbym użyć nie tylko do kibelków, ale również do mycia, prania. Można tak, czy jednak zbyt "brudna"? imrahil moje zdjęcia się nie otwierają? Cytuj Odnośnik do komentarza https://forum.murator.pl/topic/224494-dom-z-pytaniami/page/3/#findComment-7248934 Udostępnij na innych stronach Więcej opcji udostępniania
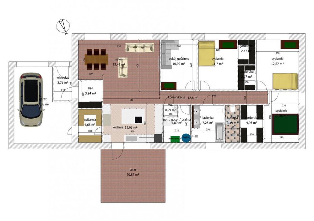
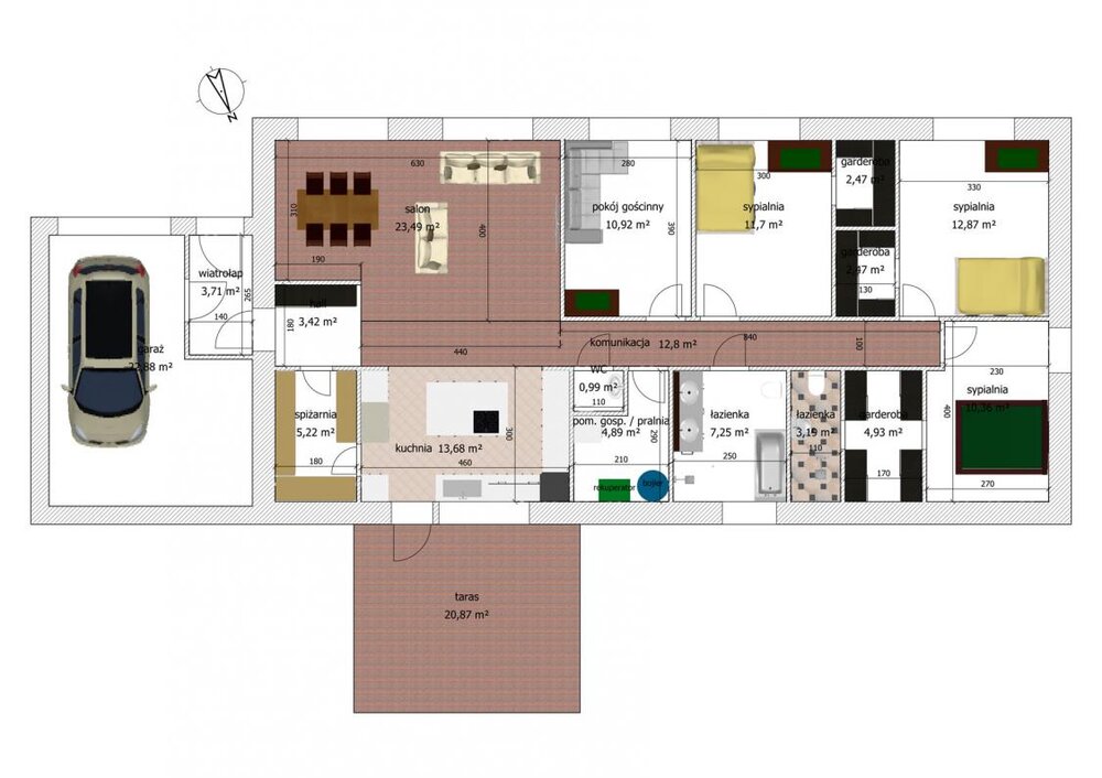
Marek.M 02.01.2017 19:55 Autor Zgłoś naruszenie Udostępnij Napisano 2 Stycznia 2017 Co na FM taka cisza? (przynajmniej w wątkach, które subskrybuję) Tak czy siak. Wprowadziłem do mojego projektu parę poprawek. Chciałbym zapytać ponownie o opinie. Część wskazówek uwzględniłem. Udało się upchnąć łazienki w jednym miejscu. Dodałem również wymiary aby łatwiej Wam było popatrzeć. Wszelkie oceny mile widziane, te negatywne również. PS. Tym razem dodałem zdjęcie jako wstawiane z kompa, bo widzę, że te w pierwszym poście widać, ale kliknąć w nie można, tzn. nie otwiera się. Jak najlepiej dodawać zdjęcia? Tak żeby też były widoczne, po dłuższym czasie. Cytuj Odnośnik do komentarza https://forum.murator.pl/topic/224494-dom-z-pytaniami/page/3/#findComment-7258225 Udostępnij na innych stronach Więcej opcji udostępniania
Iscra 02.01.2017 20:27 Zgłoś naruszenie Udostępnij Napisano 2 Stycznia 2017 Fajnie, że wod-kan zgrupowany. Wizualnie nie widzi mi się jedna rzecz: wchodzisz do domu i przed sobą widzisz dłuuugi, wąski i ciemny korytarz. Zrobiłabym dwie rzeczy: oddzieliłabym drzwiami część dzienną od nocnej oraz poszerzyłabym korytarz minimum do 1,20. Kosztem czego to powiększenie? Kosztem pokoi sypialnych. Te zaś powiększyłabym (aby nie straciły na metrażu po zwiększeniu korytarza) kosztem garderób. Osobiście wolałabym zrobić garderoby na 70-80 cm głębokie, bez ścian i drzwi. Tak, aby akurat weszły wieszaki z lekkim zapasem. Do zamykania garderoby - albo drzwi "szafowe", dwuskrzydłowe, albo przesuwne. To już u stolarza na etapie wykończenia. Oszczędzam na: bloczkach, murowaniu, tynkowaniu, drzwiach wewnętrznych z framugą. Wydaję kasę na drzwi jak do zwykłej zabudowy szafowej. Z moich szacunków wynika, że byłabym do przodu finansowo na takim rozwiązaniu. Oczywiście pytanie na co ma być przeznaczona garderoba. Jeśli ma się tam zmieścić oprócz ubrań jakiś misz-masz, to faktycznie mogą być potrzebne większe - jakie są teraz w projekcie P.S. Ja już od dawna nie dostaję na maila powiadomień z subskrybowanych wątków, mimo, że dzieje się tam sporo... Cytuj Odnośnik do komentarza https://forum.murator.pl/topic/224494-dom-z-pytaniami/page/3/#findComment-7258270 Udostępnij na innych stronach Więcej opcji udostępniania
mania_ania 03.01.2017 12:10 Zgłoś naruszenie Udostępnij Napisano 3 Stycznia 2017 jeżeli ja mogę dodać swoje 3 grosze... Zgadzam się z Iscrą we wszystkim co napisała a dodatkowo, jakoś nie widzę tego wchodzenie do domu przez spiżarnię... w żaden inny sposób garaż nie jest z domem połączony. Rozumiem argument o zakupach, ale chyba nie robicie codzinnie tak dużych zakupów, ze wygodniej od razu wnieść je do spiżarni? za to zawsze będziecie do domu wchodzić przez spiżarnie, kuchnię, holl. i te brudne buty, błoto, piasek, kupa na bucie (mój przykład z wczoraj, syn taką niespodziankę przyniósł ) wyląduje w spiżarni i dalej w kuchni? to samo w drugą stronę? do garażu przez kuchnię i spiżarnię? bo na prawdę nie uwierzę, że będziecie korzystać z drzwi wejściowych. od kiedy wjeżdżamy do garażu to drzwi wejściowe otwieram tylko gościom i poczcie. I żadna siła nie wygoni mnie przed dom na deszczu, mrozie, wietrze, z 2ką dzieci, żeby wsiąść na zewnątrz do samochodu lub wejść do garażu. To już bym wolała z tą kupą przez kuchnię nie można zrobić drzwi do wiatrołapu? Cytuj Odnośnik do komentarza https://forum.murator.pl/topic/224494-dom-z-pytaniami/page/3/#findComment-7258675 Udostępnij na innych stronach Więcej opcji udostępniania
Marek.M 03.01.2017 13:07 Autor Zgłoś naruszenie Udostępnij Napisano 3 Stycznia 2017 @Iscra z tym korytarzem, to może i fakt, ale jak zamknę go drzwiami (i tak te drzwi byłyby za tą pierwszą łazienką) to dopiero będzie ciemny korytarz. Muszę te drzwi przemyśleć. Co do korytarza. To zgadzam się, że 100 cm to troszkę wąsko, ale z drugiej strony w tym korytarzu ruchu jak na dworcu nie będzie. Jakbym chciał go poszerzyć, to raczej kosztem powiększenia domu, o te 20cm na całej długości (~3,5m2 więcej), a tego już raczej chciałbym uniknąć. Garderoby właśnie chciałbym żeby pomieściły "wszystko", tzn. każdy ma swoją i ma się w niej zmieścić. Drzwi do garderoby chcę zrobić chowane w ścianę. Brat stolarz, jakoś to ogarniemy. jeżeli ja mogę dodać swoje 3 grosze... pewnie, że możesz, właśnie o to mi chodzi. Chcę poczytać zdanie innych. Zgadzam się z Iscrą we wszystkim co napisała a dodatkowo, jakoś nie widzę tego wchodzenie do domu przez spiżarnię... w żaden inny sposób garaż nie jest z domem połączony. Rozumiem argument o zakupach, ale chyba nie robicie codzinnie tak dużych zakupów, ze wygodniej od razu wnieść je do spiżarni? za to zawsze będziecie do domu wchodzić przez spiżarnie, kuchnię, holl. i te brudne buty, błoto, piasek, kupa na bucie (mój przykład z wczoraj, syn taką niespodziankę przyniósł ) wyląduje w spiżarni i dalej w kuchni? to samo w drugą stronę? do garażu przez kuchnię i spiżarnię? bo na prawdę nie uwierzę, że będziecie korzystać z drzwi wejściowych. od kiedy wjeżdżamy do garażu to drzwi wejściowe otwieram tylko gościom i poczcie. I żadna siła nie wygoni mnie przed dom na deszczu, mrozie, wietrze, z 2ką dzieci, żeby wsiąść na zewnątrz do samochodu lub wejść do garażu. To już bym wolała z tą kupą przez kuchnię nie można zrobić drzwi do wiatrołapu? Super i to są ciekawe argumenty... i dają mi wiele do zastanowienia. To prawda zakupów dużych nie robi się często. Domyślam się, że jak samochodem się będę poruszał, to z drzwi wejściowych nie będę korzystał. Aczkolwiek samochodem aż tak dużo nie jeżdżę, póki co. Wprowadziłem poprawki, na razie bez tych drzwi w korytarzu, muszę z żoną jeszcze o nich porozmawiać. Cytuj Odnośnik do komentarza https://forum.murator.pl/topic/224494-dom-z-pytaniami/page/3/#findComment-7258731 Udostępnij na innych stronach Więcej opcji udostępniania
Iscra 03.01.2017 13:21 Zgłoś naruszenie Udostępnij Napisano 3 Stycznia 2017 Co do korytarza. To zgadzam się, że 100 cm to troszkę wąsko, ale z drugiej strony w tym korytarzu ruchu jak na dworcu nie będzie. Jakbym chciał go poszerzyć, to raczej kosztem powiększenia domu, o te 20cm na całej długości (~3,5m2 więcej), a tego już raczej chciałbym uniknąć. Dodatkowa kwestia: jak będziesz nosił meble w paczkach to wszystkie wejdą. Ale jeśli masz jakieś w całości, których nie będziesz rozkręcał na części przy przeprowadzce - to zobacz, czy wkręcą się w wąskim korytarzu do pokoi. Na przykład kanapa do pokoju gościnnego. Cytuj Odnośnik do komentarza https://forum.murator.pl/topic/224494-dom-z-pytaniami/page/3/#findComment-7258738 Udostępnij na innych stronach Więcej opcji udostępniania
nk 03.01.2017 13:32 Zgłoś naruszenie Udostępnij Napisano 3 Stycznia 2017 Dodatkowa kwestia: jak będziesz nosił meble w paczkach to wszystkie wejdą. Ale jeśli masz jakieś w całości, których nie będziesz rozkręcał na części przy przeprowadzce - to zobacz, czy wkręcą się w wąskim korytarzu do pokoi. Na przykład kanapa do pokoju gościnnego. Zawsze może próbować "wrzucić" przez okna. Cytuj Odnośnik do komentarza https://forum.murator.pl/topic/224494-dom-z-pytaniami/page/3/#findComment-7258747 Udostępnij na innych stronach Więcej opcji udostępniania
mania_ania 03.01.2017 13:34 Zgłoś naruszenie Udostępnij Napisano 3 Stycznia 2017 o tak! j ogólnie polecam wnoszenie drzwiami tarasowymi. Ja się uparłam wnosić ogromną kanapę przez drzewi wejściowe .... drzwi drewniane czerwone zostały w jednym miejscu odrapane do surowego drewna + rysy na ramie i w innych miejscach, a i tak kanapa nie weszła! jak o tym myślę, to jeszcze się trzęsę już pół roku minęło, a drzwi nie naprawione ale faktycznie do pokoi może być problem, chyba, ze wszystko składane. Cytuj Odnośnik do komentarza https://forum.murator.pl/topic/224494-dom-z-pytaniami/page/3/#findComment-7258748 Udostępnij na innych stronach Więcej opcji udostępniania
mania_ania 03.01.2017 13:44 Zgłoś naruszenie Udostępnij Napisano 3 Stycznia 2017 a czy nie wolałbyś podzielić przestrzeni - garderoba/łazienka (sypialnia na końcu) w drugą stronę? oba pomieszczenia to praktycznie kwadrat 2,8x2,9 więc może być podział odwrotnie, wówczas garderoba nie będzie pomieszczeniem przechodnim i będzie można zrobić zabudowę w kształcie U (więcej miejsca do przechowywania). łazienka moze zyskać 10 cm na szerokości. co prawda będzie to długa kiszka, ale jak na końcu zrobisz przysznic walk in (nie widzę, czy w ogóle przewidujesz tam prysznic), w połowie wc i bliżej drzwi umywalkę to też będzie ok (lustra moga powiękrzyć przestrzeń). chyba, ze to celowy zabieg, zeby na golasa nie latać z łazienki do garderoby ale w końcu to master bedroom więc chyba nikt nie będzie podglądał a możliwość zrobienia większej zabudowy garderoby, przy najmniej dla mnie, byłaby ważna. a odnośnie ciemnego korytarza to czy nie rozważałeś np. 2 świetlików? podobno bardzo ładnie doświetlają, ale nie wiem jak to z energooszczędnością w takim przypadku Cytuj Odnośnik do komentarza https://forum.murator.pl/topic/224494-dom-z-pytaniami/page/3/#findComment-7258759 Udostępnij na innych stronach Więcej opcji udostępniania
Iscra 03.01.2017 16:52 Zgłoś naruszenie Udostępnij Napisano 3 Stycznia 2017 Zawsze może próbować "wrzucić" przez okna. Owszem. Tylko nie znamy ich wymiarów z tego rzutu, dlatego zwróciłam uwagę na tę kwestię Cytuj Odnośnik do komentarza https://forum.murator.pl/topic/224494-dom-z-pytaniami/page/3/#findComment-7258942 Udostępnij na innych stronach Więcej opcji udostępniania
Marek.M 04.01.2017 07:15 Autor Zgłoś naruszenie Udostępnij Napisano 4 Stycznia 2017 Dodatkowa kwestia: jak będziesz nosił meble w paczkach to wszystkie wejdą. Ale jeśli masz jakieś w całości, których nie będziesz rozkręcał na części przy przeprowadzce - to zobacz, czy wkręcą się w wąskim korytarzu do pokoi. Na przykład kanapa do pokoju gościnnego. Muszę właśnie jeszcze tę kwestię przemyśleć. Raczej będę miał wszystko składane na miejscu, no ale... Zawsze może próbować "wrzucić" przez okna. Okna mają być fix, a właściwie to pakiety szybowe, więc przez nie nic nie wejdzie. a czy nie wolałbyś podzielić przestrzeni - garderoba/łazienka (sypialnia na końcu) w drugą stronę? oba pomieszczenia to praktycznie kwadrat 2,8x2,9 więc może być podział odwrotnie, wówczas garderoba nie będzie pomieszczeniem przechodnim i będzie można zrobić zabudowę w kształcie U (więcej miejsca do przechowywania). łazienka moze zyskać 10 cm na szerokości. co prawda będzie to długa kiszka, ale jak na końcu zrobisz przysznic walk in (nie widzę, czy w ogóle przewidujesz tam prysznic), w połowie wc i bliżej drzwi umywalkę to też będzie ok (lustra moga powiękrzyć przestrzeń). chyba, ze to celowy zabieg, zeby na golasa nie latać z łazienki do garderoby ale w końcu to master bedroom więc chyba nikt nie będzie podglądał a możliwość zrobienia większej zabudowy garderoby, przy najmniej dla mnie, byłaby ważna. Tak w tej łazience ma być prysznic po lewej stronie jak się do niej wchodzi z garderoby. Dokładnie taki jest zamysł aby z łazienki "wracać" do sypialni przez garderobę. Tam w ogóle nie planuję drzwi pomiędzy sypialnią, garderobą i łazienką. Ma być tylko przejście. a odnośnie ciemnego korytarza to czy nie rozważałeś np. 2 świetlików? podobno bardzo ładnie doświetlają, ale nie wiem jak to z energooszczędnością w takim przypadku No niestety nie wchodzi to w rachubę, przynajmniej ja nie bardzo znam sposób, który byłby wystarczająco tani w realizacji i odpowiednio, zarazem, energooszczędny. Cytuj Odnośnik do komentarza https://forum.murator.pl/topic/224494-dom-z-pytaniami/page/3/#findComment-7259367 Udostępnij na innych stronach Więcej opcji udostępniania
mania_ania 04.01.2017 07:42 Zgłoś naruszenie Udostępnij Napisano 4 Stycznia 2017 Tak w tej łazience ma być prysznic po lewej stronie jak się do niej wchodzi z garderoby. Dokładnie taki jest zamysł aby z łazienki "wracać" do sypialni przez garderobę. Tam w ogóle nie planuję drzwi pomiędzy sypialnią, garderobą i łazienką. Ma być tylko przejście. jesteś pewien tego braku drzwi? ja też mam sypialnie z łazienką i garderobą i mnie czasami nawet przez zamknięte drzwi przeszkasza lana woda (mój mąż preferuje kąpiele w środku nocy ), suszarka, nie mówiąc już co mi się ciśnie na usta jak nie zamknie drzwi i światło świeci mi prosto w oczy przykład z dzisiaj - wstał chwilkę przede mną i zapalił światło w garderobie, oczywiście drzwi były otwarte wrrrrr... myślałam, ze uduszę Cytuj Odnośnik do komentarza https://forum.murator.pl/topic/224494-dom-z-pytaniami/page/3/#findComment-7259379 Udostępnij na innych stronach Więcej opcji udostępniania
mania_ania 04.01.2017 07:47 Zgłoś naruszenie Udostępnij Napisano 4 Stycznia 2017 No niestety nie wchodzi to w rachubę, przynajmniej ja nie bardzo znam sposób, który byłby wystarczająco tani w realizacji i odpowiednio, zarazem, energooszczędny. nie namawiam, bo tak jak pisałam, nie wiem nic o ich energooszczędności, ale mozesz spojrzeć tutaj https://www.houseloves.com/blog/2015/6/24/swietliki?rq=%C5%9Bwietlik dziewczyna prowadząca bloga ma 2 świetliki na górnym przedpokoju. jest zachwycona ilością światła jakie dają. Cytuj Odnośnik do komentarza https://forum.murator.pl/topic/224494-dom-z-pytaniami/page/3/#findComment-7259384 Udostępnij na innych stronach Więcej opcji udostępniania
Marek.M 04.01.2017 10:25 Autor Zgłoś naruszenie Udostępnij Napisano 4 Stycznia 2017 Bez drzwi jakoś sobie poradzimy, a jak nie to się dorobi. nie namawiam, bo tak jak pisałam, nie wiem nic o ich energooszczędności, ale mozesz spojrzeć tutaj https://www.houseloves.com/blog/2015/6/24/swietliki?rq=%C5%9Bwietlik dziewczyna prowadząca bloga ma 2 świetliki na górnym przedpokoju. jest zachwycona ilością światła jakie dają. Świetlik wygląda całkiem przyjemnie, jednak jego energooszczędność (1.8 W/m2K) no i cena (ok. 3000 zł) dyskwalifikują takie rozwiązanie. Na stronie Veluxa znalazłem kalkulator. Wyszło, że taki świetlik dałby mi w słoneczny dzień 1311 lumenów, w częściowo pochmurny 889 lumenów, w pochmurny 238 lumenów. To trochę mało. Za tę cenę można zrobić ładne oświetlenie sztuczne, no i całkiem długo nim świecić. Cytuj Odnośnik do komentarza https://forum.murator.pl/topic/224494-dom-z-pytaniami/page/3/#findComment-7259524 Udostępnij na innych stronach Więcej opcji udostępniania
mania_ania 04.01.2017 11:02 Zgłoś naruszenie Udostępnij Napisano 4 Stycznia 2017 no faktycznie słabo to wygląda jak już się wejdzie w szczegóły Cytuj Odnośnik do komentarza https://forum.murator.pl/topic/224494-dom-z-pytaniami/page/3/#findComment-7259565 Udostępnij na innych stronach Więcej opcji udostępniania
Recommended Posts
Dołącz do dyskusji
Możesz dodać zawartość już teraz a zarejestrować się później. Jeśli posiadasz już konto, zaloguj się aby dodać zawartość za jego pomocą.