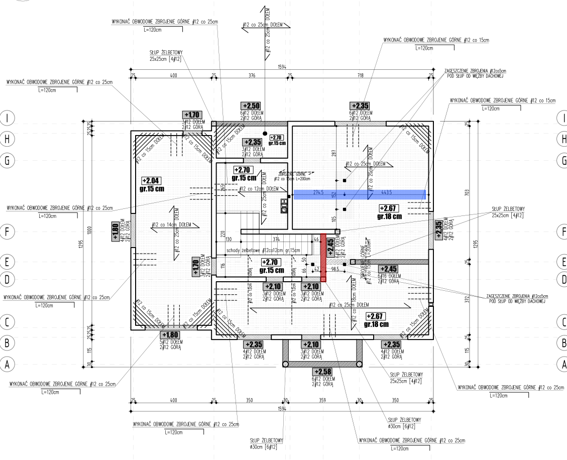
ADI-mistrzu 24.10.2017 10:17 Zgłoś naruszenie Udostępnij Napisano 24 Października 2017 Witam, Czy znacie jakieś metody na wzmocnienie strupy monolitycznego? Powyżej strop nad parterem według projektu, w salonie (górny prawy róg) praktycznie na środku wypadają mi dwa słupy wspierające dach. Czy nie dobrze by było wstawić tam jakiegoś wzmocnienia? Może nie od razu klasyczny podciąg bo szpeci sufit, ale jakiś podciąg ukryty? Myślałem nawet nad wstawieniem dwuteownika, ale czy to coś da? Chodzi o miejsce zaznaczone na niebiesko. Jeśli dwuteownik załatwił by sprawę, to czy można było by zastąpić podciąg zaznaczony na czerwono powyżej? Także na dwuteownik aby wyeliminować wystający podciąg? Cytuj Odnośnik do komentarza https://forum.murator.pl/topic/233257-wzmocnienie-stropu-monolitycznego-metody/ Udostępnij na innych stronach Więcej opcji udostępniania
מרכבה 24.10.2017 10:44 Zgłoś naruszenie Udostępnij Napisano 24 Października 2017 A nie masz przypadkiem policzonego tego stropu? zadaj pytanie konstruktorowi - a nie na forum..tak powinno brzmieć pytanie.. do czasu kiedy nie powiększyłem obrazku.. to nie widziałem nic zdrożnego.Dogęszczenie siatki zbrojenia nic nie da.. dość powiedzieć ryzyk fizyk zbrojenie.. co 25cm fi 12 na co 25cm fi 12..płyta bez mała 7m rozpiętości.. plus słupy .. pytanie do konstruktora czym to liczył? że mu wszyło takie lekkuśkie zbrojenie..Cała płyta ma mieć niskie ugięcie.. przez obciążenie słupami np.. lekko wychodzi 20kN obciążenie z takiego słupa.Też pręty fi 12.. dość masne pręty.. na nośność ok.. na ugięcie i rysy nie.A i kierunek kreski niebieskiej nie ten.. idziesz w kierunku dłuższego boku.. a powinieneś iść w pionie- patrząc na obrazek. Cytuj Odnośnik do komentarza https://forum.murator.pl/topic/233257-wzmocnienie-stropu-monolitycznego-metody/#findComment-7420575 Udostępnij na innych stronach Więcej opcji udostępniania
d7d 24.10.2017 11:56 Zgłoś naruszenie Udostępnij Napisano 24 Października 2017 W omawianym miejscu jest siatka dołem #12 co 25x25 cm a w stropach węższych jest więcej zbrojenia bo co 14cm i co 18cm.Dozbrojenie pod słupami co 5cm ale ile sztuk tych dodatkowych prętów ma być i którym kierunku? Zbrojenie krzyżowe ?Podciąg "wzmacniający może powinien być w kierunku góra / dół a nie w poziomie.Czy oparty dołem na filarki a górą na krawędzi nadproża okiennego.To jest projekt budowlany czy tzw. "budowlano-wykonawczy" ?Podciągi czy nadproża powinny posiadać strzemiona. Jest o tym informacja? Podciąg "wzmacniający" może być ukryty w stropie ale to nie ma sensu.Należy raz a dobrze zaprojektować wszystkie stropu i nie robić dodatkowych wzmocnień.Chyba jeszcze tego stropu nie wykonali ?? Zatrudnij projektanta konstrukcji.Na Forum nie projektuj tylko pytaj się o kierunki i konsultuj. Cytuj Odnośnik do komentarza https://forum.murator.pl/topic/233257-wzmocnienie-stropu-monolitycznego-metody/#findComment-7420622 Udostępnij na innych stronach Więcej opcji udostępniania
מרכבה 24.10.2017 12:02 Zgłoś naruszenie Udostępnij Napisano 24 Października 2017 Zatrudnij projektanta konstrukcji. Na Forum nie projektuj tylko pytaj się o kierunki i konsultuj. dokładnie tak. bo to jest miejsce do nakierowania .. właśnie miałem Ci pisać .. abyś Ty też się wypowiedział w tym wątku Przeliczyć ten konkretny fragment stropu - sprawdzić ugięcie od dwóch sił pionowych.. Tu aż się prosi o 2x gęściejszą siatkę ..nie koniecznie fi 12- siedzi tu współpraca beton stal i rozwarcie rys i cała reologia betonu. Cytuj Odnośnik do komentarza https://forum.murator.pl/topic/233257-wzmocnienie-stropu-monolitycznego-metody/#findComment-7420626 Udostępnij na innych stronach Więcej opcji udostępniania
d7d 24.10.2017 12:58 Zgłoś naruszenie Udostępnij Napisano 24 Października 2017 Nie ma obciążeń (lokalizacja i wartości) to nie ma możliwości wykonania modelu, obliczeń i wymiarowania.A może ten strop już jest wykonany i dlatego prośba o "wzmocnienie" ? Cytuj Odnośnik do komentarza https://forum.murator.pl/topic/233257-wzmocnienie-stropu-monolitycznego-metody/#findComment-7420655 Udostępnij na innych stronach Więcej opcji udostępniania
jacentyy 24.10.2017 13:10 Zgłoś naruszenie Udostępnij Napisano 24 Października 2017 ^^Ale faktem jest to, że takie stropy projektują na specbudzie albo rwinie bez modelu płytowego to takie klocki wychodzą, nieprawdaż? Strop żeby był dobrze zaprojektowany musi zostać zamodelowany w programie płytowym typu robot, pl-win, abc płyta czy inne kombajny zagraniczne Cytuj Odnośnik do komentarza https://forum.murator.pl/topic/233257-wzmocnienie-stropu-monolitycznego-metody/#findComment-7420662 Udostępnij na innych stronach Więcej opcji udostępniania
מרכבה 24.10.2017 14:54 Zgłoś naruszenie Udostępnij Napisano 24 Października 2017 Już sobie odpowiedziałem 16cm grubości i siatka fi 10 co 12,5cm .. jeszcze tik zbrojenia nad słupami, szczególnie tym narożnym. w programie płytowym typu robot, pl-win, abc płyta czy inne kombajny zagraniczne tylko że nie kosztują 150zł.. jak Specbud.. tylko ABC rama +płyta 13 kzł.. Dobra mieszanka betonowa + gęste zbrojenie .. nie grube a gęste.. = sukces. Jak dodasz masywny podciąg - to zrobi się rozciąganie nad pociągiem.. i cała oszczędność poszła się paść. Cytuj Odnośnik do komentarza https://forum.murator.pl/topic/233257-wzmocnienie-stropu-monolitycznego-metody/#findComment-7420683 Udostępnij na innych stronach Więcej opcji udostępniania
d7d 24.10.2017 16:57 Zgłoś naruszenie Udostępnij Napisano 24 Października 2017 ^^ Ale faktem jest to, że takie stropy projektują na specbudzie albo rwinie bez modelu płytowego to takie klocki wychodzą, nieprawdaż? Strop żeby był dobrze zaprojektowany musi zostać zamodelowany w programie płytowym typu robot, pl-win, abc płyta czy inne kombajny zagraniczne Jak by projektował na RM-WINie czy tym podobnym 2D to by wyszło dużo więcej niż #12 co 25cm. Może jest błąd w obciążeniach lub w obliczeniach. Cytuj Odnośnik do komentarza https://forum.murator.pl/topic/233257-wzmocnienie-stropu-monolitycznego-metody/#findComment-7420755 Udostępnij na innych stronach Więcej opcji udostępniania
d7d 24.10.2017 17:00 Zgłoś naruszenie Udostępnij Napisano 24 Października 2017 Już sobie odpowiedziałem 16cm grubości i siatka fi 10 co 12,5cm .. Jak dodasz masywny podciąg - to zrobi się rozciąganie nad pociągiem.. i cała oszczędność poszła się paść. Policzyłeś i wyszło #10co 12,5cm ?? Masywny podciąg czyli wystający dużo w dół ? Może być mały moment w płycie górą nad tym podciągiem. Podciąg tez się ugina. W pytaniu chyba nie chodziło o oszczędności tylko o naprawienie ewentualnego błędu. Pytanie - skąd wzięło się hasło o wzmocnieniu stropu? Kto wpadł na taki pomysł. Cytuj Odnośnik do komentarza https://forum.murator.pl/topic/233257-wzmocnienie-stropu-monolitycznego-metody/#findComment-7420757 Udostępnij na innych stronach Więcej opcji udostępniania
מרכבה 24.10.2017 17:22 Zgłoś naruszenie Udostępnij Napisano 24 Października 2017 Policzyłeś i wyszło #10co 12,5cm ?? i dwa słupy po 25kN każdy .. Może być mały moment w płycie górą nad tym podciągiem. Podciąg tez się ugina dokładnie tak - stąd podciąg nie jest podporą jak ściana np - pierwsze jego ugięcie trzeba by było wyliczyć. W pytaniu chyba nie chodziło o oszczędności tylko o naprawienie ewentualnego błędu. tak prawdopodobnie - z tego co wyczytałem płyta jeszcze nie powstała →Czy nie dobrze by było wstawić tam jakiegoś wzmocnienia? Może nie od razu klasyczny podciąg bo szpeci sufit, ale jakiś podciąg ukryty? Liczyłem na rysę 0,3 mm - fi 10 lepiej wykorzystuje współpracę z betonem -.. tyle że ciut więcej roboty Cytuj Odnośnik do komentarza https://forum.murator.pl/topic/233257-wzmocnienie-stropu-monolitycznego-metody/#findComment-7420769 Udostępnij na innych stronach Więcej opcji udostępniania
Andrzej733 24.10.2017 18:08 Zgłoś naruszenie Udostępnij Napisano 24 Października 2017 Gdzie te czasy że ręcznie się to liczyło i wtedy takie głupoty nie wychodziły. Teraz mam taki projekt zbrojenia że ręce opadaja...jakby chociaż z dzień czasu pobył ten konstruktor na budowie to wiedziałby o co chodzi. Tutaj pewnei te co 25 cm przy płycie 18 cm wyjdzie . Pod słupkami daje się (powinno się dawać) siatki ułożone pod kontem 45 do głównego , siatka złożona z 3 - 4 prętów. Daje się ją na dolnej siatce i na górnej (ma to działać jak halfeny na przebicie. Ooo może bardziej jak trapezowe pręty nad słupami. W praktyce trafienie słupkiem od dachu w miejscu gdzie leży siatka o 10 cm większa od słupka jest mało realne. Obciążenie na słupku drewnianym jest dużo mniejsze niż 25 kn...bardziej ze dwie tony. Jak chcesz coś tam dozbrajać to zasugeruj konstruktorowi dogęszcenie jak przy wymianie kominowym w mysl zasady (ile przeciętych tyle dodanych) od słupa żelbetowego w kierunku nadproża okiennego Cytuj Odnośnik do komentarza https://forum.murator.pl/topic/233257-wzmocnienie-stropu-monolitycznego-metody/#findComment-7420809 Udostępnij na innych stronach Więcej opcji udostępniania
d7d 24.10.2017 18:49 Zgłoś naruszenie Udostępnij Napisano 24 Października 2017 Gdzie te czasy że ręcznie się to liczyło i wtedy takie głupoty nie wychodziły. Teraz mam taki projekt zbrojenia że ręce opadaja...jakby chociaż z dzień czasu pobył ten konstruktor na budowie to wiedziałby o co chodzi. Tutaj pewnei te co 25 cm przy płycie 18 cm wyjdzie . Pod słupkami daje się (powinno się dawać) siatki ułożone pod kontem 45 do głównego , siatka złożona z 3 - 4 prętów. Daje się ją na dolnej siatce i na górnej (ma to działać jak halfeny na przebicie. Ooo może bardziej jak trapezowe pręty nad słupami. W praktyce trafienie słupkiem od dachu w miejscu gdzie leży siatka o 10 cm większa od słupka jest mało realne. Obciążenie na słupku drewnianym jest dużo mniejsze niż 25 kn...bardziej ze dwie tony. Jak chcesz coś tam dozbrajać to zasugeruj konstruktorowi dogęszcenie jak przy wymianie kominowym w mysl zasady (ile przeciętych tyle dodanych) od słupa żelbetowego w kierunku nadproża okiennego Masz rację że ręcznie liczyło się jak się umiało liczyć . Teraz "wystarczy" mieć program. Pobyt na budowie nic nie pomoże jak się nie zna na konstrukcji, na statyce itp. Tutaj pewnei te co 25 cm przy płycie 18 cm wyjdzie . Liczyłeś ? O tej siatce pod katem 45 Stopni to piszesz mając na myśli przebicie płyty przez słup ? Znasz siły od słupa? grubość stropu i klasę betonu? Dal małych obciążeń nie ma potrzeby zbrojenia na przebicie. Oddziaływanie od słupów więźby dachu nie jest duże (ze względu na przebicie). 25 kN to jest więcej niż 2.000 kg czyli więcej niż dwie tony. Jak chcesz coś tam dozbrajać to zasugeruj konstruktorowi dogęszcenie jak przy wymianie kominowym w mysl zasady (ile przeciętych tyle dodanych) od słupa żelbetowego w kierunku nadproża okiennego O czym piszesz? Konkretnie to ile dokładasz jak nic nie wycinasz? Temat o tyle jest bez sensu, że ludzie bez uprawnień, bez odpowiedzialności i bez znajomości tematu, proponują projektowanie przez Internet Cytuj Odnośnik do komentarza https://forum.murator.pl/topic/233257-wzmocnienie-stropu-monolitycznego-metody/#findComment-7420844 Udostępnij na innych stronach Więcej opcji udostępniania
מרכבה 24.10.2017 19:29 Zgłoś naruszenie Udostępnij Napisano 24 Października 2017 (edytowane) Masz rację że ręcznie liczyło się jak się umiało liczyć . Teraz "wystarczy" mieć program. i z tego nic.. do programu trzeba umieć wrzucić dane i wiedzieć co się otrzymuje. Problem wielki arkusz kalkulacyjny i tablice z współczynnikami Temat o tyle jest bez sensu, że ludzie bez uprawnień, bez odpowiedzialności i bez znajomości tematu, proponują projektowanie przez Internet kto? Znasz siły od słupa? grubość stropu i klasę betonu? nie patrzyłeś w rys.. jedną dane masz.. grubość #18cm . i tu prawdopodobnie nikt tych sił nie zna.. Klasa betonu, rodzaj cementu itp .. i rodzaj kruszywa.. 25 kN to jest więcej niż 2.000 kg czyli więcej niż dwie tony. spokojnie siła osiowa w krokwiach jest czasem większa.. Edytowane 24 Października 2017 przez מרכבה Cytuj Odnośnik do komentarza https://forum.murator.pl/topic/233257-wzmocnienie-stropu-monolitycznego-metody/#findComment-7420873 Udostępnij na innych stronach Więcej opcji udostępniania
jacentyy 24.10.2017 19:52 Zgłoś naruszenie Udostępnij Napisano 24 Października 2017 (edytowane) Jak by projektował na RM-WINie czy tym podobnym 2D to by wyszło dużo więcej niż #12 co 25cm. Może jest błąd w obciążeniach lub w obliczeniach. Ja pisze w kontekscie tych slupów w salonie, skan jest za malo czytelny, co nie zmienia faktu ze takie płyty to najlpeiej w programie do plyt należy liczyć a nie tablicami od starosolskiego, czy tez upraszczajac plyte do belki ...... na bank da sie zrobic ten strop jako plyte bez żadnych slupów i podciagów o jednej grubości .... do autora watku prosimy o lepszy skan ! Edytowane 24 Października 2017 przez jacentyy Cytuj Odnośnik do komentarza https://forum.murator.pl/topic/233257-wzmocnienie-stropu-monolitycznego-metody/#findComment-7420898 Udostępnij na innych stronach Więcej opcji udostępniania
מרכבה 24.10.2017 20:19 Zgłoś naruszenie Udostępnij Napisano 24 Października 2017 Trzeba otworzyć - prawy otwórz w nowym oknie i staje się czytelne .. A czy mnie uszlachetni .. wklepanie do arkusza kalkulacyjnego tablic i liczenie na piechtę ? ten etap już przerabiałem jak by się kto pytał.. nie lubię kiedy ktoś wytyka brak ręcznego liczenia.. nie kupowałem projektów na studiach.. to mam parę arkuszy kalkulacyjnych Cytuj Odnośnik do komentarza https://forum.murator.pl/topic/233257-wzmocnienie-stropu-monolitycznego-metody/#findComment-7420921 Udostępnij na innych stronach Więcej opcji udostępniania
d7d 24.10.2017 21:31 Zgłoś naruszenie Udostępnij Napisano 24 Października 2017 i z tego nic.. do programu trzeba umieć wrzucić dane i wiedzieć co się otrzymuje. Problem wielki arkusz kalkulacyjny i tablice z współczynnikami kto? nie patrzyłeś w rys.. jedną dane masz.. grubość #18cm . i tu prawdopodobnie nikt tych sił nie zna.. Klasa betonu, rodzaj cementu itp .. i rodzaj kruszywa.. spokojnie siła osiowa w krokwiach jest czasem większa.. Mój post był odpowiedzią na post @Andrzej733 a nie na Twój post. Grubość stropu jest znana a pozostałe dane są nieznane. To @Andrzej733 napisał że siła w słupku będzie raczej 2 tony niż 25 kN. Fakt, w tym względzie źle Go zrozumiałem. Jakie może być powierzchniowe oddziaływanie z dachu? Obliczeniowo 3,00 kN/m2 Te dwa słupki zbierają obciążenie z pow ok 25m2 (może mniejszej) czyli na dwa słupki przypadnie w sumie np. 75 kN a może dużo mniej a może dużo więcej. Nikt nie widział konstrukcji więźby dachu. Uwaga dotycząca oprogramowania mówi o tym, że do programu można wszystko wsadzić i on dobrze policzy dla tych wsadzonych danych. Niekoniecznie musi to dać prawidłowy wynik bo były złe dane i złe parametry brzegowe, obliczeniowe. Rodzaj cementu i rodzaj kruszywa uwzględniasz w statyce i w wymiarowaniu żelbetu ? Cytuj Odnośnik do komentarza https://forum.murator.pl/topic/233257-wzmocnienie-stropu-monolitycznego-metody/#findComment-7420959 Udostępnij na innych stronach Więcej opcji udostępniania
ADI-mistrzu 25.10.2017 05:42 Autor Zgłoś naruszenie Udostępnij Napisano 25 Października 2017 Nie spodziewałem się aż takiego odzewu, ale przyznam że miło W chwili obecnej jest wykonana tylko płyta fundamentowa, na wiosnę ma ruszyć reszta, a więc jest jeszcze chwila aby naprawić ewentualne błędy projektowe. Poniżej lepszy skan stropu nad parterem oraz rzut piętra i więźby dachowej, wieczorem postaram się przesłać skan obliczeń stropu. https://obrazki.elektroda.pl/2441623900_1508910008.png https://obrazki.elektroda.pl/2750946800_1508910008.png https://obrazki.elektroda.pl/6756153400_1508910008.png Wiem że forum nie jest ostatecznym miejsce na naprawę takich rzeczy, ale jednak wolę pójść do konstruktora już z czymś konkretnym (jeśli będzie). Mogło się także okazać, że wszystko jest dobrze i tak naprawdę niema się czym martwić. Cytuj Odnośnik do komentarza https://forum.murator.pl/topic/233257-wzmocnienie-stropu-monolitycznego-metody/#findComment-7421040 Udostępnij na innych stronach Więcej opcji udostępniania
jajmar 25.10.2017 06:06 Zgłoś naruszenie Udostępnij Napisano 25 Października 2017 Wygląda ze masz tam zagęszczone zbrojenie do 5cm w rejonie słupów w obu kierunkach to tworzy wzmocnienie. Z tym że te dodatkowe prety to powinny do podpór dochodzić a ze szkicu wygląda jakby tak nie było. Cytuj Odnośnik do komentarza https://forum.murator.pl/topic/233257-wzmocnienie-stropu-monolitycznego-metody/#findComment-7421047 Udostępnij na innych stronach Więcej opcji udostępniania
jacentyy 25.10.2017 06:42 Zgłoś naruszenie Udostępnij Napisano 25 Października 2017 ^^Dokładnie tam nie ma słupów w tym salonie, tak wiec nie ma w sumie co "wzmacniać", @ADI-mistrzu : zapytaj się konstruktora jaki model obliczeniowy przyjal do obliczania konstrukcji, dodatkowo czy strop nad garazem jest na innym poziomie aniżeli nad rerszta domu ? Cytuj Odnośnik do komentarza https://forum.murator.pl/topic/233257-wzmocnienie-stropu-monolitycznego-metody/#findComment-7421063 Udostępnij na innych stronach Więcej opcji udostępniania
d7d 25.10.2017 07:36 Zgłoś naruszenie Udostępnij Napisano 25 Października 2017 Projekt wygląda na powtarzalny (typowy) więc kontakt z konstruktorem może być utrudniony.@ADI-mistrzu - prześlij rysunki konstrukcyjne. Cytuj Odnośnik do komentarza https://forum.murator.pl/topic/233257-wzmocnienie-stropu-monolitycznego-metody/#findComment-7421089 Udostępnij na innych stronach Więcej opcji udostępniania
Recommended Posts
Dołącz do dyskusji
Możesz dodać zawartość już teraz a zarejestrować się później. Jeśli posiadasz już konto, zaloguj się aby dodać zawartość za jego pomocą.