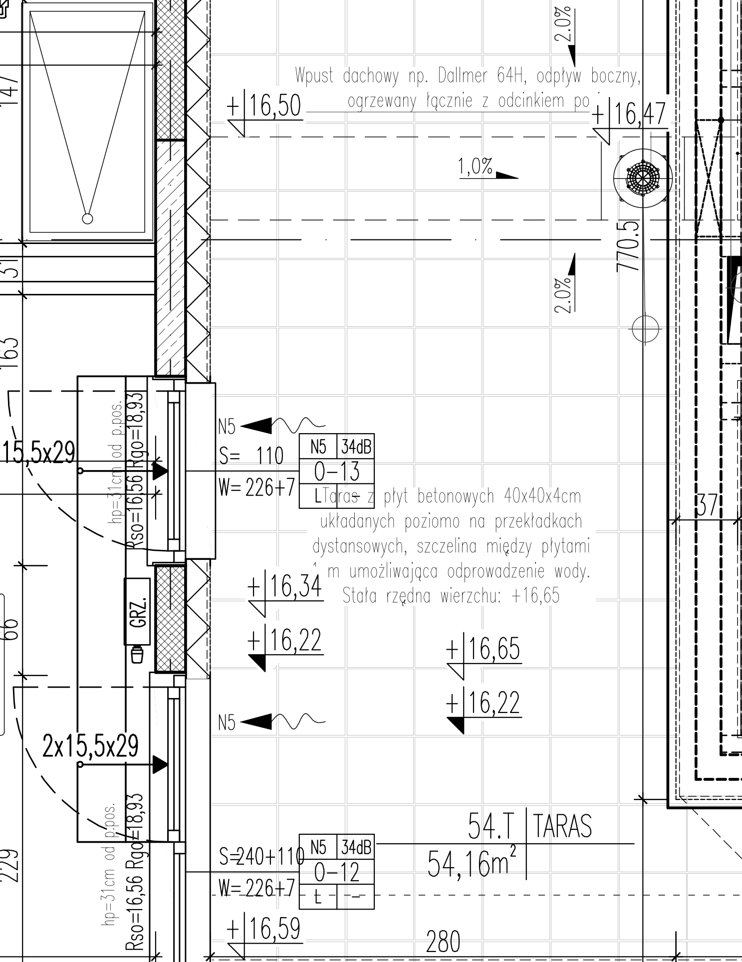
embrion 13.04.2021 18:04 Zgłoś naruszenie Udostępnij Napisano 13 Kwietnia 2021 Cześć wszystkim, Z góry dziękuję za przekierowanie do właściwego działu jeśli ten jest zły. Jestem laikiem w temacie, a właśnie mam podpisać umowę developerska na mieszkanie z tarasem. Dostałem dokładny rzut i mam tutaj dwa pytanie (ale możne jeszcze coś wypatrzycie) 1. Dla drzwi prowadzących na taras hp=31 cm od wysokości posadzki to nie jest bardzo dużo? Nawet po wykończeniu podłogi próg będzie miał grubo ponad 25cm. 2. Czy na tarasie nie powinien zostać zastosowany wpust balkonowy/tarasowy zamiast dachowego? Nie będzie później kolizji przy kładzeniu deski na tarasie? Dziękuje i pozdrawiam Cytuj Odnośnik do komentarza https://forum.murator.pl/topic/261870-pytanie-o-wpusty-i-drzwi-tarasowe-w-projekcie-developera/ Udostępnij na innych stronach Więcej opcji udostępniania
embrion 13.04.2021 18:07 Autor Zgłoś naruszenie Udostępnij Napisano 13 Kwietnia 2021 Wieksza wersja fragmentu rzutu http://www.forumbudowlane.pl/download/file.php?id=6753&mode=view Cytuj Odnośnik do komentarza https://forum.murator.pl/topic/261870-pytanie-o-wpusty-i-drzwi-tarasowe-w-projekcie-developera/#findComment-7911851 Udostępnij na innych stronach Więcej opcji udostępniania
Recommended Posts
Dołącz do dyskusji
Możesz dodać zawartość już teraz a zarejestrować się później. Jeśli posiadasz już konto, zaloguj się aby dodać zawartość za jego pomocą.