mjkosa 19.11.2011 08:36 Zgłoś naruszenie Udostępnij Napisano 19 Listopada 2011 Witam. Czy może mi ktoś podać powierzchnię dachu Oliwki bez garażu? Dziękuje z góry i pozdrawiam. [email protected] Cytuj Odnośnik do komentarza https://forum.murator.pl/topic/48022-projekt-oliwka-pracownia-hb-studio/page/311/#findComment-4979376 Udostępnij na innych stronach Więcej opcji udostępniania
justynano 20.11.2011 06:46 Zgłoś naruszenie Udostępnij Napisano 20 Listopada 2011 POwierzchnia dachu Oliwki bez garażu to 177 m . Pozdrawiam Cytuj Odnośnik do komentarza https://forum.murator.pl/topic/48022-projekt-oliwka-pracownia-hb-studio/page/311/#findComment-4980770 Udostępnij na innych stronach Więcej opcji udostępniania
Szymcio i Justa 20.11.2011 10:23 Zgłoś naruszenie Udostępnij Napisano 20 Listopada 2011 (edytowane) Witam Wszystkich!My jesteśmy na etapie dachu. Planujemy zakończyć w przyszłym roku. Załączyliśmy parę zdjęć. Pozdrowienia dla wszystkich i gratulacje dla tych co ukończyli swoje Oliwki i w nich zamieszkali. Edytowane 20 Listopada 2011 przez Szymcio i Justa Cytuj Odnośnik do komentarza https://forum.murator.pl/topic/48022-projekt-oliwka-pracownia-hb-studio/page/311/#findComment-4980969 Udostępnij na innych stronach Więcej opcji udostępniania
Piśka 22.11.2011 15:02 Zgłoś naruszenie Udostępnij Napisano 22 Listopada 2011 Babiszon ładny macie dach. Jaki to kolor? A ja wklejam nasz projekt, choć mocno zmieniony. To jest wersja ostateczna, przemyślana, przegadana, przyklepana. Parterhttp://img696.imageshack.us/img696/2451/skanuj0014e.jpg Uploaded with ImageShack.usPoddaszehttp://img265.imageshack.us/img265/9823/skanuj0018r.jpg Uploaded with ImageShack.us Mam nadzieję, że do czwartku nic nie zmienię już. Wtedy mamy ostateczne spotkanie z architektem. Cytuj Odnośnik do komentarza https://forum.murator.pl/topic/48022-projekt-oliwka-pracownia-hb-studio/page/311/#findComment-4985584 Udostępnij na innych stronach Więcej opcji udostępniania
Bobiszon 22.11.2011 17:25 Zgłoś naruszenie Udostępnij Napisano 22 Listopada 2011 Dachówka Robena Monza Plus - kolor antracyt Cytuj Odnośnik do komentarza https://forum.murator.pl/topic/48022-projekt-oliwka-pracownia-hb-studio/page/311/#findComment-4985828 Udostępnij na innych stronach Więcej opcji udostępniania
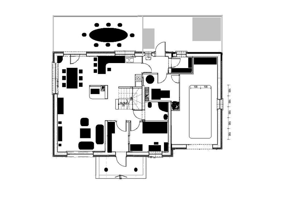
miloszk 22.11.2011 20:33 Zgłoś naruszenie Udostępnij Napisano 22 Listopada 2011 Piśka, ok - przegadane, przemyślane i przyklepane. Mam tylko pytanie dlaczego zmniejszyliście salon i czemu garaż jest przesunięty do tylnej krawędzi. Cytuj Odnośnik do komentarza https://forum.murator.pl/topic/48022-projekt-oliwka-pracownia-hb-studio/page/311/#findComment-4986292 Udostępnij na innych stronach Więcej opcji udostępniania
Aisza26 22.11.2011 21:56 Zgłoś naruszenie Udostępnij Napisano 22 Listopada 2011 PiśkaTroszkę dużo wprowadziłaś zmian - strasznie dużo masz drzwi - wiatrołap dobrze jest powiększyć , pojemna szafa napewno się w nim przyda- fajny pomysł z cofnięciem salonu aby taras był troszkę zadaszony ( ja teraz też tak bym zrobiła tylko na filarze i po łuku , dużo lepiej wygląda wtedy dom , a teraz to długi klocek) w salonie mamy jedno duże okno zamiast 3 i jest fajnie- przemyśl okna dachowe, w łazience szczególnie pozdrawiam życzę udanych decyzjiOliwka to strasznie duży dom, jak dla mnie za duży (chyba jako jedyni nie podnieśliśmy kolankowej i nad garażem nie mamy pomieszczeń użytkowych tylko wejście od garażu ) Cytuj Odnośnik do komentarza https://forum.murator.pl/topic/48022-projekt-oliwka-pracownia-hb-studio/page/311/#findComment-4986541 Udostępnij na innych stronach Więcej opcji udostępniania
tatrzan 23.11.2011 08:16 Zgłoś naruszenie Udostępnij Napisano 23 Listopada 2011 (edytowane) Z całym szacunkiem ale dużo drzwi to mamy my Polecam moje rozwiązanie choć dom zrobił się naprawdę duży - za duzy- ale zmiejszać go nie będę Sciana kolankowa podniesiona o 3 porothermy. Na poddaszu naprawdę jest przestronnie - łazienka super. Motyw kotłownia - spiżarnia - dodatkowy "wiatrołap" to moje autorskie rozwiązanie Taras - całość zadaszona - podzielona na dwie częsci - od salonu część rekraacyjna od kotłowni - "drewutnia" serdecznie pozdrawiam Edytowane 23 Listopada 2011 przez tatrzan Cytuj Odnośnik do komentarza https://forum.murator.pl/topic/48022-projekt-oliwka-pracownia-hb-studio/page/311/#findComment-4986957 Udostępnij na innych stronach Więcej opcji udostępniania
Piśka 23.11.2011 10:34 Zgłoś naruszenie Udostępnij Napisano 23 Listopada 2011 miloszk nie zmniejszyliśmy salonu . Ściana w kuchni jest o metr wysunięta, tzn powiększona kuchnia, spiżarnia, a za garażem dobudowana jest kotłownia . Cytuj Odnośnik do komentarza https://forum.murator.pl/topic/48022-projekt-oliwka-pracownia-hb-studio/page/311/#findComment-4987198 Udostępnij na innych stronach Więcej opcji udostępniania
Piśka 23.11.2011 10:51 Zgłoś naruszenie Udostępnij Napisano 23 Listopada 2011 Aisza 26 faktycznie w korytarzu do garażu mamy dwoje drzwi ale radzono nam tak, aby nie było czuć "zapachów" z garażu. Z wiatrołapem masz rację, warto go powiększyć. A okno w łazience pewnie będzie tylko jedno. Co do okna w salonie to tu się jeszcze zastanawiam, jest również opcja zrobienia tam drugich drzwi tarasowych. Podoba mi się rozwiązanie Tatrzana z przesuniętym oknem w stronę jadalni. Tatrzan podoba mi się ten taras na całej tylnej ścianie domu. Pytanie do Ciebie czy już mieszkacie? Czy korzystacie faktycznie z tego tarasu. I czy salon nie jest ciemny z oknem przesuniętym w stronę jadalni? i dziękuję za wszelkie opinie, nie krępujcie się Cytuj Odnośnik do komentarza https://forum.murator.pl/topic/48022-projekt-oliwka-pracownia-hb-studio/page/311/#findComment-4987230 Udostępnij na innych stronach Więcej opcji udostępniania
wandzik 23.11.2011 11:48 Zgłoś naruszenie Udostępnij Napisano 23 Listopada 2011 Z całym szacunkiem ale dużo drzwi to mamy my Polecam moje rozwiązanie choć dom zrobił się naprawdę duży - za duzy- ale zmiejszać go nie będę Sciana kolankowa podniesiona o 3 porothermy. Na poddaszu naprawdę jest przestronnie - łazienka super. Motyw kotłownia - spiżarnia - dodatkowy "wiatrołap" to moje autorskie rozwiązanie Taras - całość zadaszona - podzielona na dwie częsci - od salonu część rekraacyjna od kotłowni - "drewutnia" serdecznie pozdrawiam Witam KOLEGĘ! widzę, że skorzystałeś z mojego pomysłu co do ścianki kolankowej. Kawał domu się zrobiło tym sposobem-prawda? Ja też uważam, że każdy ma swoje pomysły na to co mu jest potrzebne. Gdy ktoś przychodzi do mnie i mówi "MOGLIŚCIE ZROBIĆ TAK, CZY SIAK" ja owszem wysłucham ale kwituję zazwyczaj tekstem: jak będziesz budował dla siebie to sobie tak zrobisz. Pchwal się trochę jak daleko jesteś zaawansowany, a może już mieszkasz? POZDRAWIAM Cytuj Odnośnik do komentarza https://forum.murator.pl/topic/48022-projekt-oliwka-pracownia-hb-studio/page/311/#findComment-4987369 Udostępnij na innych stronach Więcej opcji udostępniania
wandzik 23.11.2011 12:08 Zgłoś naruszenie Udostępnij Napisano 23 Listopada 2011 Aisza 26 faktycznie w korytarzu do garażu mamy dwoje drzwi ale radzono nam tak, aby nie było czuć "zapachów" z garażu. Z wiatrołapem masz rację, warto go powiększyć. A okno w łazience pewnie będzie tylko jedno. Co do okna w salonie to tu się jeszcze zastanawiam, jest również opcja zrobienia tam drugich drzwi tarasowych. Podoba mi się rozwiązanie Tatrzana z przesuniętym oknem w stronę jadalni. Tatrzan podoba mi się ten taras na całej tylnej ścianie domu. Pytanie do Ciebie czy już mieszkacie? Czy korzystacie faktycznie z tego tarasu. I czy salon nie jest ciemny z oknem przesuniętym w stronę jadalni? i dziękuję za wszelkie opinie, nie krępujcie się Co do wiatrołapu to jest sens wyrównać go ze ścianą pokoju i tak nie jest za duży, ale może być. Ja zabrałam 1 okno z sypialni i wstawiłam do łazienki. Mam okna od południa i jest super. Z tego małego "pierdzielnika" na piętrze zrobiłam drzwi do pokoju bliźniaczego i będzie tam garderoba dla córci (po podniesieniu ścianki jest tam dużo miejsca nawet na kibelek z prysznicem 80ą ale wygrała garderoba). Mam kilka drobnych zmian. Jedna rada jeżeli tak to wszystko widzicie to nie zmieniajcie swoich planów bo później będziecie żałować że nie zostaliście przy pirwotnym zarysie. POZDRAWIAM. Cytuj Odnośnik do komentarza https://forum.murator.pl/topic/48022-projekt-oliwka-pracownia-hb-studio/page/311/#findComment-4987413 Udostępnij na innych stronach Więcej opcji udostępniania
tatrzan 23.11.2011 12:35 Zgłoś naruszenie Udostępnij Napisano 23 Listopada 2011 (edytowane) Cześć wandzik Tak jeśli chodzi o ściane kolankową to wspólnie "prowadzimy" U mnie wyszła trochę przez przypadek - chciałem podnieść o 2 pustaki ale kierownik zrobił takie zbrojenie że murarze myśleli że trzeba jeszcze jeden pustak dołożyć. ups... chata wielka a wszystkim mówiłem jaki mały domek. Piśka My jeszcze nie mieszkamy ... jeszcze zadaszonego tarasu nie mam - narazie konstrukcja bez dachu. Jeśli okaże sie za ciemno w kuchni zrobie w tym dachu "przeszkelnie" nad oknem kuchennym. W salonie myślę że swiatła dosyć. I tak okna prawie z każdej strony świata. Jeżeli chodzi o jedno duże okno zamiast 3 małych to moim zdaniem bardzo dobry pomysł - nie mówie tu o wzgledach estetycznych ale o kwiestiach techniczno wykonawczych. Jak kto woli Może moje pomysły kogoś zainspirują serdecznie pozdrawiam Edytowane 23 Listopada 2011 przez tatrzan Cytuj Odnośnik do komentarza https://forum.murator.pl/topic/48022-projekt-oliwka-pracownia-hb-studio/page/311/#findComment-4987466 Udostępnij na innych stronach Więcej opcji udostępniania
Czaryki 23.11.2011 15:05 Zgłoś naruszenie Udostępnij Napisano 23 Listopada 2011 pewnie większość z Was ocieplenie poddasza ma już za sobą. Mam wielką prośbę, o podanie m2 ocieplenia w Oliwce 2 stanowiskowej. Przymierzamy się to tego etapu, a nie chce nam się biegać z metrem po domu, no i wełnę trzeba zamówić :/ Pozdrawiam Cytuj Odnośnik do komentarza https://forum.murator.pl/topic/48022-projekt-oliwka-pracownia-hb-studio/page/311/#findComment-4987682 Udostępnij na innych stronach Więcej opcji udostępniania
olga30 23.11.2011 16:41 Zgłoś naruszenie Udostępnij Napisano 23 Listopada 2011 (edytowane) Hej! My jesteśmy na etapie stan surowy zamknięty, trochę było poślizgu, bo ponad miesiąc czekalismy na dachówkę, ale to już za nami na szczeście, teraz przez zimę mamy zamiar sami ocieplac poddasze i robić elektrykę (małż mój z zawodu elektryk w stanie spoczynku ) ale mam nadzieję że da radę. W związku z tym mam do was pytanie, czym ocieplaliście poddasze i jak cena za m2 wełny? Zastanawiamy się jeszcze jaki kominek wybrać, czy z płaszczem wodnym czy z rozprowadzeniem powietrza, ale skłaniamy się ku tej drugiej opcji. Co do ogrzewania to małż chce gazowe, ja natomiast jestem sceptycznie do tego nastawiona, boje się tych kosmicznych rachunków. A jak jest u was? Moze wypowiedzą się ci którzy już mieszkają i mają ogrzewanie gazowe jaki to koszty miesięczne? Edytowane 23 Listopada 2011 przez olga30 Cytuj Odnośnik do komentarza https://forum.murator.pl/topic/48022-projekt-oliwka-pracownia-hb-studio/page/311/#findComment-4987816 Udostępnij na innych stronach Więcej opcji udostępniania
truskawek36 23.11.2011 19:19 Zgłoś naruszenie Udostępnij Napisano 23 Listopada 2011 Witam ,mam pytanko do tych którzy są po wylewkach,jak grubego wylewaliście chudziaka i czy kładliście zbrojenie. Cytuj Odnośnik do komentarza https://forum.murator.pl/topic/48022-projekt-oliwka-pracownia-hb-studio/page/311/#findComment-4988116 Udostępnij na innych stronach Więcej opcji udostępniania
annaop 23.11.2011 20:36 Zgłoś naruszenie Udostępnij Napisano 23 Listopada 2011 HEJ!!! CZARYKI - w naszym domku namierzyliśmy ok. 150m2 ocieplenia poddasza. Ocieplaliśmy skosy do stropu i strop ( skosy nie są docieplone powyżej podłogi strychu) no i nasz garaż jest nieco ( o 1,5m ) rozciągnięty w wymiarze przód-tył. OLGA30 - ocieplenie poddasza mamy z unimaty isover 18( 15,27zl za m2netto) i 10 (8,58zl za m2 netto). Kominek mamy 16kw z DPG bez dodatkowych wentylatorów - nawiewy są w pokojach bliźniaczych , łazience i sypialni - niewielki udział w dogrzewaniu poddasza ale tez koszt tego był mały. Innowacje naszych Oliwek są po to by każdy znalazł w tym projekcie swój idealny domek a to kto był pierwszy czy to ważne??) po to jest to forum by czerpać pomysły Acha pochwalimy się już ocieplonymi ścianami zewn. no i na dniach będziemy mieli łazienke dolna , kuchnie i własną oczyszczalnie . I PO 20 MIESIĄCACH CZEKANIA I PAPIERKOLOGII NA NASZEJ DZIAŁCE STANEŁA SKRZYNKA ELEKTRYCZNA!!!!!!!!!!!!!! traktujemy ją jak kapliczke ) POZDRAWIAMY i nie dajcie się ziemie:) Cytuj Odnośnik do komentarza https://forum.murator.pl/topic/48022-projekt-oliwka-pracownia-hb-studio/page/311/#findComment-4988414 Udostępnij na innych stronach Więcej opcji udostępniania
olga30 23.11.2011 20:52 Zgłoś naruszenie Udostępnij Napisano 23 Listopada 2011 HEJ!!! CZARYKI - w naszym domku namierzyliśmy ok. 150m2 ocieplenia poddasza. Ocieplaliśmy skosy do stropu i strop ( skosy nie są docieplone powyżej podłogi strychu) no i nasz garaż jest nieco ( o 1,5m ) rozciągnięty w wymiarze przód-tył. OLGA30 - ocieplenie poddasza mamy z unimaty isover 18( 15,27zl za m2netto) i 10 (8,58zl za m2 netto). Kominek mamy 16kw z DPG bez dodatkowych wentylatorów - nawiewy są w pokojach bliźniaczych , łazience i sypialni - niewielki udział w dogrzewaniu poddasza ale tez koszt tego był mały. Innowacje naszych Oliwek są po to by każdy znalazł w tym projekcie swój idealny domek a to kto był pierwszy czy to ważne??) po to jest to forum by czerpać pomysły Acha pochwalimy się już ocieplonymi ścianami zewn. no i na dniach będziemy mieli łazienke dolna , kuchnie i własną oczyszczalnie . I PO 20 MIESIĄCACH CZEKANIA I PAPIERKOLOGII NA NASZEJ DZIAŁCE STANEŁA SKRZYNKA ELEKTRYCZNA!!!!!!!!!!!!!! traktujemy ją jak kapliczke ) POZDRAWIAMY i nie dajcie się ziemie:) Annaop dzięki bardzo za info, ale czy nie trzeba ocieplać skosów powyzej stropu, tzn. na strychu? Bo tak zrozumiałam że nie macie ocieplonego strychu? Czy nie będzie za zimno? Cytuj Odnośnik do komentarza https://forum.murator.pl/topic/48022-projekt-oliwka-pracownia-hb-studio/page/311/#findComment-4988496 Udostępnij na innych stronach Więcej opcji udostępniania
annaop 23.11.2011 21:10 Zgłoś naruszenie Udostępnij Napisano 23 Listopada 2011 Annaop dzięki bardzo za info, ale czy nie trzeba ocieplać skosów powyzej stropu, tzn. na strychu? Bo tak zrozumiałam że nie macie ocieplonego strychu? Czy nie będzie za zimno? Hmm zapewne ocielenie całego dachu zwiększy walory cieplne poddasza . Ociepliliśmy tylko skosy i strop poddasza dajac wełne 18 i na nią poprzecznie 10 w sumie 28cm - myślimy że to powinno wystarczyć a czy tak będzie przekonamy się niebawem poza tym kwestia finansów też gra istotną rolę ( no i mamy dobrze wentylowany strych ). W przyszłości z pewnością ocieplimy dach pod sam szczyt bo na stryszku jest sporo miejsca np na fajny pokój lub coś w tym guście . Cytuj Odnośnik do komentarza https://forum.murator.pl/topic/48022-projekt-oliwka-pracownia-hb-studio/page/311/#findComment-4988573 Udostępnij na innych stronach Więcej opcji udostępniania
TypeR 23.11.2011 21:44 Zgłoś naruszenie Udostępnij Napisano 23 Listopada 2011 Annaop dzięki bardzo za info, ale czy nie trzeba ocieplać skosów powyzej stropu, tzn. na strychu? Bo tak zrozumiałam że nie macie ocieplonego strychu? Czy nie będzie za zimno? cześć, jak nie planujesz nic montować na strychu to spokojnie możesz skosy i sufit ocieplać. My zrobiliśmy ocieplenie między krokowiami do samej kalenicy 20 cm wełny, potem jeszcze 10 cm na skosach i sufitach. Czasami się zastanawiam czy nie odkręcić płyt osb na strychu i jeszcze z 10 cm na sufty wełny dodać. Na strychu mamy trochę elektroniki, router od netu, centralkę alarmu itp. Wszytko działa bez problemów już praktycznie 3 zimę. Pozdrawiam - Daniel Cytuj Odnośnik do komentarza https://forum.murator.pl/topic/48022-projekt-oliwka-pracownia-hb-studio/page/311/#findComment-4988720 Udostępnij na innych stronach Więcej opcji udostępniania
Recommended Posts
Dołącz do dyskusji
Możesz dodać zawartość już teraz a zarejestrować się później. Jeśli posiadasz już konto, zaloguj się aby dodać zawartość za jego pomocą.