romano78 16.02.2017 14:17 Zgłoś naruszenie Udostępnij Napisano 16 Lutego 2017 Ja też na korytarzu nie dawałem mimo że miałem wywiercona dziurę w stropie i nie mam żadnych zastojow i na dodatek zlikwidowane wywiewy w garderobach, a przy grawitacyjnej przecież nikt nie robi kratek w korytarzach i jakoś ludzie żyją. Cytuj Odnośnik do komentarza https://forum.murator.pl/topic/53717-rekuperator-quottymi-r%C4%99camiquot-robiony/page/285/#findComment-7298201 Udostępnij na innych stronach Więcej opcji udostępniania
oszczednyGrześ 16.02.2017 14:40 Zgłoś naruszenie Udostępnij Napisano 16 Lutego 2017 Ja też na korytarzu nie dawałem mimo że miałem wywiercona dziurę w stropie i nie mam żadnych zastojow i na dodatek zlikwidowane wywiewy w garderobach, a przy grawitacyjnej przecież nikt nie robi kratek w korytarzach i jakoś ludzie żyją. Bo w domowej wentylacji nie robimy wywiewu w korytarzach w 99,9℅ przypadku. A jakieś zastoje....Nie wiem w czym rzecz może coś źle zrobione. Cytuj Odnośnik do komentarza https://forum.murator.pl/topic/53717-rekuperator-quottymi-r%C4%99camiquot-robiony/page/285/#findComment-7298217 Udostępnij na innych stronach Więcej opcji udostępniania
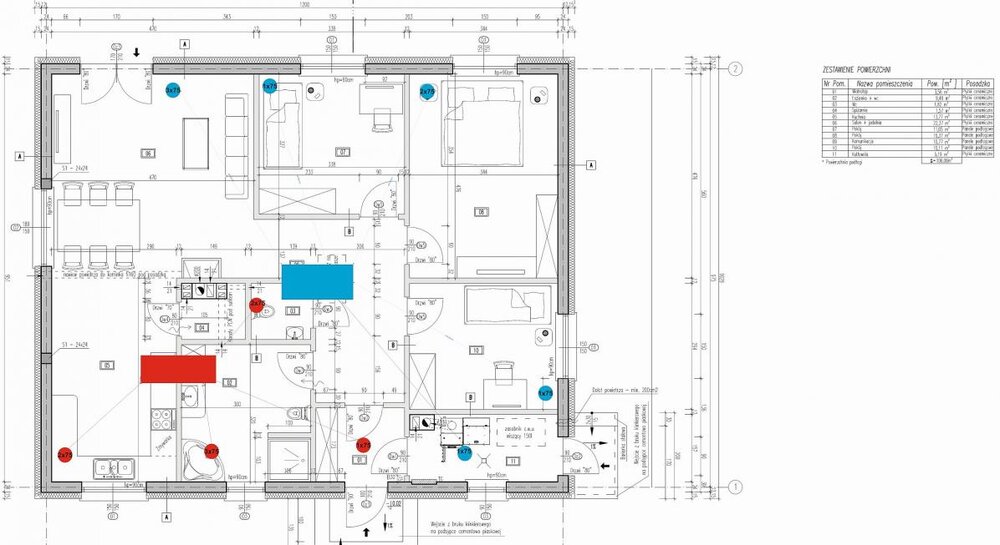
marcinur 16.02.2017 18:33 Zgłoś naruszenie Udostępnij Napisano 16 Lutego 2017 To ja może teraz poproszę o analizę mojego projektu. Powierzchnia 106 m2, rodzina 2+2. Rekuperatora na razie nie wybrałem. NA załaczniku przedstawiłem propozycje rozmieszczenia anemostatów oraz doprowadzenia rur 75 mm. Oczywiście szczególwe lokalizacje są schematyczne. Pomieszczenie nr 11 to niby kotłownia, ale planuję tam pompę ciepła i ma pełnić funkcję pralni - dlatego dałem nawiew. W wiatrołapie przewidziałem wywiew - dobrze? Lepsza jakość załącznika https://www.dropbox.com/s/lvgcz20i8efjarz/Projekt%20rek..jpg?dl=0 Cytuj Odnośnik do komentarza https://forum.murator.pl/topic/53717-rekuperator-quottymi-r%C4%99camiquot-robiony/page/285/#findComment-7298365 Udostępnij na innych stronach Więcej opcji udostępniania
jasiek71 16.02.2017 18:53 Zgłoś naruszenie Udostępnij Napisano 16 Lutego 2017 Nie znam twojego przypadku. Ja w zasadzie nigdy nie daje wywiewów poza kuchnią, łazienką, wiatrołapem. Chociaż miałem 2-3 wyjątki. Każdy przypadek z otwartą klatką schodową wymaga zrobienia wyciągu na korytarzu piętra/ poddasza... Jak nie zrobisz to masz czapę zastanego nieświeżego powietrza ...( Gorącego latem...) Generalnie to podobna sytuacja jest w domach parterowych, od wysokości nadproża nie ma nic co mogłoby je swobodnie usunąć... Cytuj Odnośnik do komentarza https://forum.murator.pl/topic/53717-rekuperator-quottymi-r%C4%99camiquot-robiony/page/285/#findComment-7298379 Udostępnij na innych stronach Więcej opcji udostępniania
oszczednyGrześ 16.02.2017 21:10 Zgłoś naruszenie Udostępnij Napisano 16 Lutego 2017 To ja może teraz poproszę o analizę mojego projektu. Powierzchnia 106 m2, rodzina 2+2. Rekuperatora na razie nie wybrałem. NA załaczniku przedstawiłem propozycje rozmieszczenia anemostatów oraz doprowadzenia rur 75 mm. Oczywiście szczególwe lokalizacje są schematyczne. Pomieszczenie nr 11 to niby kotłownia, ale planuję tam pompę ciepła i ma pełnić funkcję pralni - dlatego dałem nawiew. W wiatrołapie przewidziałem wywiew - dobrze? [ATTACH=CONFIG]381700[/ATTACH] Lepsza jakość załącznika https://www.dropbox.com/s/lvgcz20i8efjarz/Projekt%20rek..jpg?dl=0 Proszę przejść do wyżej cytowanego tematu. tutaj jest reku tymi recami Cytuj Odnośnik do komentarza https://forum.murator.pl/topic/53717-rekuperator-quottymi-r%C4%99camiquot-robiony/page/285/#findComment-7298494 Udostępnij na innych stronach Więcej opcji udostępniania
oszczednyGrześ 16.02.2017 21:11 Zgłoś naruszenie Udostępnij Napisano 16 Lutego 2017 Każdy przypadek z otwartą klatką schodową wymaga zrobienia wyciągu na korytarzu piętra/ poddasza... Jak nie zrobisz to masz czapę zastanego nieświeżego powietrza ...( Gorącego latem...) Generalnie to podobna sytuacja jest w domach parterowych, od wysokości nadproża nie ma nic co mogłoby je swobodnie usunąć... Nie, nie wymaga. Chyba że łazienki nie masz. Cytuj Odnośnik do komentarza https://forum.murator.pl/topic/53717-rekuperator-quottymi-r%C4%99camiquot-robiony/page/285/#findComment-7298495 Udostępnij na innych stronach Więcej opcji udostępniania
marcinur 16.02.2017 21:22 Zgłoś naruszenie Udostępnij Napisano 16 Lutego 2017 (edytowane) Proszę przejść do wyżej cytowanego tematu. tutaj jest reku tymi recami Dobra, przeniosłem i szczerze to licze na Twoją odpowiedź Edytowane 16 Lutego 2017 przez marcinur Cytuj Odnośnik do komentarza https://forum.murator.pl/topic/53717-rekuperator-quottymi-r%C4%99camiquot-robiony/page/285/#findComment-7298506 Udostępnij na innych stronach Więcej opcji udostępniania
jasiek71 16.02.2017 21:25 Zgłoś naruszenie Udostępnij Napisano 16 Lutego 2017 Nie, nie wymaga. Chyba że łazienki nie masz. Taaa..., A łazienka ma drzwi do samego sufitu i cały czas otwarte ... Generalnie to nic nie jest wymagane... Możesz zrobić wyciągi w pokojach a nawiewy w korytarzu bo jaka norma nakazuje odwrotnie....? To wszystko jest na zasadzie widzimisię.... Moje czy Karolka 75 widzimisię jest inne a twoje inne .... Jak zrobisz odwrotnie to co ...? Wentylacja przestanie działać i się udusisz...? Wentylacja ma działać skutecznie i tyle... Cytuj Odnośnik do komentarza https://forum.murator.pl/topic/53717-rekuperator-quottymi-r%C4%99camiquot-robiony/page/285/#findComment-7298510 Udostępnij na innych stronach Więcej opcji udostępniania
oszczednyGrześ 17.02.2017 05:44 Zgłoś naruszenie Udostępnij Napisano 17 Lutego 2017 Taaa..., A łazienka ma drzwi do samego sufitu i cały czas otwarte ... Generalnie to nic nie jest wymagane... Możesz zrobić wyciągi w pokojach a nawiewy w korytarzu bo jaka norma nakazuje odwrotnie....? To wszystko jest na zasadzie widzimisię.... Moje czy Karolka 75 widzimisię jest inne a twoje inne .... Jak zrobisz odwrotnie to co ...? Wentylacja przestanie działać i się udusisz...? Wentylacja ma działać skutecznie i tyle... Pewnie możesz robić co chcesz. .. Cytuj Odnośnik do komentarza https://forum.murator.pl/topic/53717-rekuperator-quottymi-r%C4%99camiquot-robiony/page/285/#findComment-7298584 Udostępnij na innych stronach Więcej opcji udostępniania
mariusz05 17.02.2017 07:39 Zgłoś naruszenie Udostępnij Napisano 17 Lutego 2017 Obawiam się, że podane ceny są za 1mb. Dla porównania: http://www.lemar24.pl/vental-therm,g341 ja niewiem tak cieżko kliknąc http://www.lemar24.pl/vental-therm-sr-102-mm,p1574 (cena za 10 mb) osobisci to wolałbym plastykowe i je puścił w wełnie albo ocieplił min 5cm wełny i owinał folia strecz bo 2,5 cm to jest nic. Cytuj Odnośnik do komentarza https://forum.murator.pl/topic/53717-rekuperator-quottymi-r%C4%99camiquot-robiony/page/285/#findComment-7298614 Udostępnij na innych stronach Więcej opcji udostępniania
marcinur 17.02.2017 08:00 Zgłoś naruszenie Udostępnij Napisano 17 Lutego 2017 (edytowane) ja niewiem tak cieżko kliknąc http://www.lemar24.pl/vental-therm-sr-102-mm,p1574 (cena za 10 mb) osobisci to wolałbym plastykowe i je puścił w wełnie albo ocieplił min 5cm wełny i owinał folia strecz bo 2,5 cm to jest nic. Wydaje mi się że cieżko przeczytać o co pytającemu chodziło.... Kolega podesłał link do tej strony gdzie cena wynosi 21,52 za metr http://sklep.wentylatorownia.pl/przewod-vental-therm-srednica-102.html A to co ja wysłalem i co Ty przedstawiłeś to dowód na to, że jednak ta cena jest za metr. Edytowane 17 Lutego 2017 przez marcinur Cytuj Odnośnik do komentarza https://forum.murator.pl/topic/53717-rekuperator-quottymi-r%C4%99camiquot-robiony/page/285/#findComment-7298632 Udostępnij na innych stronach Więcej opcji udostępniania
hudy14777 17.02.2017 17:28 Zgłoś naruszenie Udostępnij Napisano 17 Lutego 2017 Witam. Czytam ten wątek i czytam i myślę że zrobienie samemu reku to świetna opcja. Można dużo zaoszczędzić. Chciałbym budować reku 400m3/h. Jakie wentylatory w obecnej chwili polecacie? Gdzie je nabyć za sensowną cenę? Pozdrawiam forumowiczów. Cytuj Odnośnik do komentarza https://forum.murator.pl/topic/53717-rekuperator-quottymi-r%C4%99camiquot-robiony/page/285/#findComment-7299085 Udostępnij na innych stronach Więcej opcji udostępniania
karolek75 17.02.2017 17:40 Zgłoś naruszenie Udostępnij Napisano 17 Lutego 2017 Taaa..., A łazienka ma drzwi do samego sufitu i cały czas otwarte ... Generalnie to nic nie jest wymagane... Możesz zrobić wyciągi w pokojach a nawiewy w korytarzu bo jaka norma nakazuje odwrotnie....? To wszystko jest na zasadzie widzimisię.... Moje czy Karolka 75 widzimisię jest inne a twoje inne .... Jak zrobisz odwrotnie to co ...? Wentylacja przestanie działać i się udusisz...? Wentylacja ma działać skutecznie i tyle... Wczesniej radzilem sobie wlasnie poprzez otwarcie drzwi pralni lub/i lazienki. Cytuj Odnośnik do komentarza https://forum.murator.pl/topic/53717-rekuperator-quottymi-r%C4%99camiquot-robiony/page/285/#findComment-7299093 Udostępnij na innych stronach Więcej opcji udostępniania
hudy14777 17.02.2017 19:08 Zgłoś naruszenie Udostępnij Napisano 17 Lutego 2017 podbijam temacik ponieważ potrzebuję odpowiedzi na pytanie. Jeśli byłby ktoś łaskaw. Cytuj Odnośnik do komentarza https://forum.murator.pl/topic/53717-rekuperator-quottymi-r%C4%99camiquot-robiony/page/285/#findComment-7299174 Udostępnij na innych stronach Więcej opcji udostępniania
kamihi 17.02.2017 19:48 Zgłoś naruszenie Udostępnij Napisano 17 Lutego 2017 podbijam temacik ponieważ potrzebuję odpowiedzi na pytanie. Jeśli byłby ktoś łaskaw.[/quote Na alledrogo były używane EBM-y po 10 zł mógłbyś zacząć od tych Cytuj Odnośnik do komentarza https://forum.murator.pl/topic/53717-rekuperator-quottymi-r%C4%99camiquot-robiony/page/285/#findComment-7299190 Udostępnij na innych stronach Więcej opcji udostępniania
marcinur 17.02.2017 19:57 Zgłoś naruszenie Udostępnij Napisano 17 Lutego 2017 podbijam temacik ponieważ potrzebuję odpowiedzi na pytanie. Jeśli byłby ktoś łaskaw.[/quote Na alledrogo były używane EBM-y po 10 zł mógłbyś zacząć od tych No właśnie, były... Ale chyba już nie ma. Cytuj Odnośnik do komentarza https://forum.murator.pl/topic/53717-rekuperator-quottymi-r%C4%99camiquot-robiony/page/285/#findComment-7299203 Udostępnij na innych stronach Więcej opcji udostępniania
hudy14777 17.02.2017 20:05 Zgłoś naruszenie Udostępnij Napisano 17 Lutego 2017 Nie bardzo wiem jakiego wentylatora mam szukać, jaki model... proszę o rady, kubatura domu 667m3. Chciałbym 200m3/h aby szło cały czas. Cytuj Odnośnik do komentarza https://forum.murator.pl/topic/53717-rekuperator-quottymi-r%C4%99camiquot-robiony/page/285/#findComment-7299213 Udostępnij na innych stronach Więcej opcji udostępniania
oszczednyGrześ 17.02.2017 20:40 Zgłoś naruszenie Udostępnij Napisano 17 Lutego 2017 Nie bardzo wiem jakiego wentylatora mam szukać, jaki model... proszę o rady, kubatura domu 667m3. Chciałbym 200m3/h aby szło cały czas. Jak cały czas? Ile osób w domu będzie? Cytuj Odnośnik do komentarza https://forum.murator.pl/topic/53717-rekuperator-quottymi-r%C4%99camiquot-robiony/page/285/#findComment-7299232 Udostępnij na innych stronach Więcej opcji udostępniania
hudy14777 17.02.2017 20:44 Zgłoś naruszenie Udostępnij Napisano 17 Lutego 2017 Na razie jest nas dwójka, ale planujemy że będzie nas łącznie 4 osoby przy tej kubaturze myślę, że powinno iść 150 do 200m3/h.. jak sądzisz? Cytuj Odnośnik do komentarza https://forum.murator.pl/topic/53717-rekuperator-quottymi-r%C4%99camiquot-robiony/page/285/#findComment-7299235 Udostępnij na innych stronach Więcej opcji udostępniania
jasiek71 17.02.2017 20:57 Zgłoś naruszenie Udostępnij Napisano 17 Lutego 2017 Na razie jest nas dwójka, ale planujemy że będzie nas łącznie 4 osoby przy tej kubaturze myślę, że powinno iść 150 do 200m3/h.. jak sądzisz? Czytasz to forum i dalej nic się nie dowiedziałeś... Wentylacja jest dla ludzi a nie kubatury... Ile m3/h potrzebuje budynek w którym nikt nie mieszka a ile m3/h potrzebuje budynek w którym mieszkają np cztery osoby... Cytuj Odnośnik do komentarza https://forum.murator.pl/topic/53717-rekuperator-quottymi-r%C4%99camiquot-robiony/page/285/#findComment-7299241 Udostępnij na innych stronach Więcej opcji udostępniania
Recommended Posts
Dołącz do dyskusji
Możesz dodać zawartość już teraz a zarejestrować się później. Jeśli posiadasz już konto, zaloguj się aby dodać zawartość za jego pomocą.