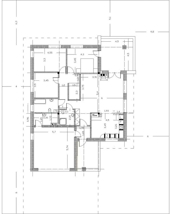
Moran 18.08.2010 07:20 Zgłoś naruszenie Udostępnij Napisano 18 Sierpnia 2010 Onazis!!! I znowu nas tu zaskakujesz nowymi zdjeciami, ale dawkujesz nam te przyjemności!!! Ja jeszcze raz do tej łazienki wrócę. Czy ta mała łazienka jest typowo taka jak w projekcie??? Proszę o podanie dokładnych wymiarów. Mam wrażenie, ze w naszym projekcie M42a ona jest dużo mniejsza. Pozdrawiam!!! Cytuj Odnośnik do komentarza https://forum.murator.pl/topic/93732-projekt-m42-przemy%C5%9Blany/page/65/#findComment-4241227 Udostępnij na innych stronach Więcej opcji udostępniania
kubiakpiotr1982 18.08.2010 08:04 Zgłoś naruszenie Udostępnij Napisano 18 Sierpnia 2010 Onazis jakiej firmy masz płytki w tej łazience z prysznicem - bardzo nam się podobają pozdrawiamy Cytuj Odnośnik do komentarza https://forum.murator.pl/topic/93732-projekt-m42-przemy%C5%9Blany/page/65/#findComment-4241298 Udostępnij na innych stronach Więcej opcji udostępniania
Palisiu 18.08.2010 12:56 Zgłoś naruszenie Udostępnij Napisano 18 Sierpnia 2010 Witam! .....we dwoje zawsze mozna cuda wyczyniac pod prysznicem pozniej zamieszcze zdjecia, ..... Pozdrowionka! Onazis 1974, Czekamy na obiecane zdjęcia tych wyczynianych "cudów" pod prysznicem Pozdrowionka, Cytuj Odnośnik do komentarza https://forum.murator.pl/topic/93732-projekt-m42-przemy%C5%9Blany/page/65/#findComment-4241718 Udostępnij na innych stronach Więcej opcji udostępniania
Moran 18.08.2010 13:02 Zgłoś naruszenie Udostępnij Napisano 18 Sierpnia 2010 Oj, Moi mili! Ten prysznic to widzę furorę robi!!!! Jak się napatrzymy to wszyscy sobie TAKĄ zrobimy! Cytuj Odnośnik do komentarza https://forum.murator.pl/topic/93732-projekt-m42-przemy%C5%9Blany/page/65/#findComment-4241726 Udostępnij na innych stronach Więcej opcji udostępniania
Moran 18.08.2010 13:19 Zgłoś naruszenie Udostępnij Napisano 18 Sierpnia 2010 Mamy już 2 ekipy. Chcą ok. 40 tyś za robociznę STAN SUROWY OTWARTY.A z materiałami ok.140tyś + 40tyś robocizna To ceny za M42a. Dużo??? Cytuj Odnośnik do komentarza https://forum.murator.pl/topic/93732-projekt-m42-przemy%C5%9Blany/page/65/#findComment-4241748 Udostępnij na innych stronach Więcej opcji udostępniania
Edyta.W 18.08.2010 14:47 Zgłoś naruszenie Udostępnij Napisano 18 Sierpnia 2010 Nie żebym sie czepiała bo fajny pomysł z tym lustrem w kabinie prysznicowej, ale ciekawe jak to bedzie z utrzymaniem czystości??Oczywiście wszysko super sie komponuje, to kiedy przeprowadzka?? Cytuj Odnośnik do komentarza https://forum.murator.pl/topic/93732-projekt-m42-przemy%C5%9Blany/page/65/#findComment-4241828 Udostępnij na innych stronach Więcej opcji udostępniania
onazis1974 18.08.2010 19:48 Zgłoś naruszenie Udostępnij Napisano 18 Sierpnia 2010 (edytowane) Hejka! Co do lustra pod prysznicem to są impregnaty, dzieki którym para nie osiada i lustro jest po kazdej kapieli czyste jak łza. Przeprowadzka pojutrze akurat wszystko bedzie zapiete na ostatni guzik, brukarze konczą i ja listwuje caly domek. Edytowane 18 Sierpnia 2010 przez onazis1974 Cytuj Odnośnik do komentarza https://forum.murator.pl/topic/93732-projekt-m42-przemy%C5%9Blany/page/65/#findComment-4242238 Udostępnij na innych stronach Więcej opcji udostępniania
onazis1974 18.08.2010 19:52 Zgłoś naruszenie Udostępnij Napisano 18 Sierpnia 2010 Mamy już 2 ekipy. Chcą ok. 40 tyś za robociznę STAN SUROWY OTWARTY. A z materiałami ok.140tyś + 40tyś robocizna To ceny za M42a. Dużo??? Wg mnie to duzo, u nas wzieli niedawno 40 tys zl za stan surowy zamkniety z c.o, tynkami wewn i zewn, warto pomarudzic, ze dam tyle ale zrobcie jeszcze to i to. Cytuj Odnośnik do komentarza https://forum.murator.pl/topic/93732-projekt-m42-przemy%C5%9Blany/page/65/#findComment-4242241 Udostępnij na innych stronach Więcej opcji udostępniania
onazis1974 18.08.2010 19:59 Zgłoś naruszenie Udostępnij Napisano 18 Sierpnia 2010 Onazis!!! I znowu nas tu zaskakujesz nowymi zdjeciami, ale dawkujesz nam te przyjemności!!! Ja jeszcze raz do tej łazienki wrócę. Czy ta mała łazienka jest typowo taka jak w projekcie??? Proszę o podanie dokładnych wymiarów. Mam wrażenie, ze w naszym projekcie M42a ona jest dużo mniejsza. Pozdrawiam!!! Witojcie! Na stronie 17 forum zamiesciłem projekt naszego domku po zmianach, tam śa widoczne wymiary, sprobuje tu tez wpakowac. Cytuj Odnośnik do komentarza https://forum.murator.pl/topic/93732-projekt-m42-przemy%C5%9Blany/page/65/#findComment-4242261 Udostępnij na innych stronach Więcej opcji udostępniania
onazis1974 18.08.2010 20:02 Zgłoś naruszenie Udostępnij Napisano 18 Sierpnia 2010 Oj, Moi mili! Ten prysznic to widzę furorę robi!!!! Jak się napatrzymy to wszyscy sobie TAKĄ zrobimy! A Róbta co chceta i tak nie zrobicie jak my Cytuj Odnośnik do komentarza https://forum.murator.pl/topic/93732-projekt-m42-przemy%C5%9Blany/page/65/#findComment-4242265 Udostępnij na innych stronach Więcej opcji udostępniania
onazis1974 18.08.2010 20:04 Zgłoś naruszenie Udostępnij Napisano 18 Sierpnia 2010 Onazis 1974, Czekamy na obiecane zdjęcia tych wyczynianych "cudów" pod prysznicem Pozdrowionka, Oj bedzie sie działo, ziemia bedzie sie trzesła, aniolowie bedą szlochali a zdjecia jak na " uwaga pirat", glos zmieniony i wszystko zamazane Cytuj Odnośnik do komentarza https://forum.murator.pl/topic/93732-projekt-m42-przemy%C5%9Blany/page/65/#findComment-4242275 Udostępnij na innych stronach Więcej opcji udostępniania
jacekjar111 20.08.2010 05:57 Zgłoś naruszenie Udostępnij Napisano 20 Sierpnia 2010 dajcie namiary na tynki, z agregatu okolice Grodziska Maz. Cytuj Odnośnik do komentarza https://forum.murator.pl/topic/93732-projekt-m42-przemy%C5%9Blany/page/65/#findComment-4244177 Udostępnij na innych stronach Więcej opcji udostępniania
Asiachmiele 20.08.2010 08:00 Zgłoś naruszenie Udostępnij Napisano 20 Sierpnia 2010 Halo.. Cytuj Odnośnik do komentarza https://forum.murator.pl/topic/93732-projekt-m42-przemy%C5%9Blany/page/65/#findComment-4244352 Udostępnij na innych stronach Więcej opcji udostępniania
Moran 20.08.2010 11:25 Zgłoś naruszenie Udostępnij Napisano 20 Sierpnia 2010 Onazis! Miłej przeprowadzki!!! No i upojnej, pierwszej nocy!!!!! Cytuj Odnośnik do komentarza https://forum.murator.pl/topic/93732-projekt-m42-przemy%C5%9Blany/page/65/#findComment-4244652 Udostępnij na innych stronach Więcej opcji udostępniania
Skubisie 20.08.2010 16:28 Zgłoś naruszenie Udostępnij Napisano 20 Sierpnia 2010 ha ha a za 9 miesiecy okaze sie ze przydałby sie wiekszy dom!!!!!!!!!! Cytuj Odnośnik do komentarza https://forum.murator.pl/topic/93732-projekt-m42-przemy%C5%9Blany/page/65/#findComment-4244954 Udostępnij na innych stronach Więcej opcji udostępniania
Przemyślana żona 20.08.2010 19:31 Zgłoś naruszenie Udostępnij Napisano 20 Sierpnia 2010 Przemyslany Piękny taras gratuluje!!! Cytuj Odnośnik do komentarza https://forum.murator.pl/topic/93732-projekt-m42-przemy%C5%9Blany/page/65/#findComment-4245151 Udostępnij na innych stronach Więcej opcji udostępniania
daniel861 20.08.2010 19:50 Zgłoś naruszenie Udostępnij Napisano 20 Sierpnia 2010 Onazis wszystkie pokoje w Twoim domku robią wrażenie:rolleyes: W to że Tobie i Twojej rodzince będzie się dobrze mieszkało nie wątpię Czekam znów na jakieś zdjęcia.. pewnie nie tylko ja.. a wszyscy na forum;) Pozdrawiam Cytuj Odnośnik do komentarza https://forum.murator.pl/topic/93732-projekt-m42-przemy%C5%9Blany/page/65/#findComment-4245198 Udostępnij na innych stronach Więcej opcji udostępniania
onazis1974 21.08.2010 19:01 Zgłoś naruszenie Udostępnij Napisano 21 Sierpnia 2010 Onazis jakiej firmy masz płytki w tej łazience z prysznicem - bardzo nam się podobają pozdrawiamy Witam! Szczerze mowiac to nie wiem jakiej firmy są plytki w łazience, poniewaz dekoratorka wszystko latwila od materialu po fachowców, w małej łazience plytki wygladajace jak drewno a w duzej szare i biala plytka cegielka. Dekoratorka szukała tanich ładnych plytek, polowala na promocje, szukala takich zeby zmiescic sie w naszym buzecie i udało sie. Pozdrowionka! Cytuj Odnośnik do komentarza https://forum.murator.pl/topic/93732-projekt-m42-przemy%C5%9Blany/page/65/#findComment-4245978 Udostępnij na innych stronach Więcej opcji udostępniania
onazis1974 21.08.2010 19:45 Zgłoś naruszenie Udostępnij Napisano 21 Sierpnia 2010 Witam! Widzę, ze kilku osobom spodobal sie wystroj naszego wymarzonego domku, wiec po krotkiej rozmowie z dekoratorką wiem, ze za posrednictwem internetu wysyła projekty wg gustu klienta, bo wiadomo, ze jeden woli córke a drugo tesciową, my wybralismy styl nowoczesny a na projektach dostalismy tez styl rokokoko, oczywiscie u Pani Oli nic za darmo, uwazam, ze warto poklikac do Pani Oli mowila, ze tworzy swoja stronke internetową z pomyslami ale wiadomo, ze kazdy klient chce niepowtarzalny wystrój wg wlasnego gustu efekt Widzicie u nas. Polecam Pani Oli pomysly, przemila osobka i urodzona dekoratorka, . Jesli ktos sobie zyczy to podam adres emailowy do Pani Oli dekoratorki, wyraziła zgode, wiec no problem Cytuj Odnośnik do komentarza https://forum.murator.pl/topic/93732-projekt-m42-przemy%C5%9Blany/page/65/#findComment-4246032 Udostępnij na innych stronach Więcej opcji udostępniania
onazis1974 21.08.2010 19:55 Zgłoś naruszenie Udostępnij Napisano 21 Sierpnia 2010 (edytowane) Onazis! Miłej przeprowadzki!!! No i upojnej, pierwszej nocy!!!!! Serdeczne dzieki, juz jestesmy po przeprowadce, dwie przyczepy i juz w domciu, bo wszystko prawie nowe, brukarz konczy, roletki bambusowe we wtorek, na " cicha noc" musze poczekac, bo po porodzie czasem trzeba spauzowac Ps. nie moglismy sie juz doczekac przeprowadzki Edytowane 25 Sierpnia 2010 przez onazis1974 Cytuj Odnośnik do komentarza https://forum.murator.pl/topic/93732-projekt-m42-przemy%C5%9Blany/page/65/#findComment-4246047 Udostępnij na innych stronach Więcej opcji udostępniania
Recommended Posts
Dołącz do dyskusji
Możesz dodać zawartość już teraz a zarejestrować się później. Jeśli posiadasz już konto, zaloguj się aby dodać zawartość za jego pomocą.