-
Liczba zawartości
71 -
Rejestracja
Typ zawartości
Profile
Forum
Artykuły
Blogi
Pobrane
Sklep
Wydarzenia
Galeria
Zawartość dodana przez ohara1719506238
-
zmagania z urzędem... Otwock - moje papierkowe perypetie
ohara1719506238 dodał a blog entry → w ohara's Blog
Ze względu na to, że "buduję" na odległość to mam ograniczoną ilość czasu jaką mogę spędzić w moim przyszłym Starostwie. Czekam właśnie na pozwolenie. Dokumenty (podanie) złożyłam już po raz drugi i otrzymałam informacjcję co należy zmienić w projekcie. Pierwszy raz złożyłam podanie z projektem w sierpniu. Po okolo trzech tygodniach wysłali mi "wezwanie do usuniecia braków" (plik starostwo1.jpg). Z pisma wynika, że projekt powinien być zopiniowany przez innego projektanta niż ten, który ten projekt sporządzał. Oczywiście urzędniczka popełniła błąd ponieważ moj projekt był robiony na indywidualne zlecenie. Ze względu na to, że byłam za granicą udało mi się przylecieć do kraju na dwa dni przed koncem terminu jaki został dany na uzupełnienie braków. Przyniosłam do Starostwa opis ustawy i artykułu na który się Pani Architekt (jak sądzę) powołała. Niestety okazało się, że urzędniczka poszła na urlop. Wyjaśniłam więc zaistniały błąd urzędniczce dzielącej pokój z osobą prowadzącą moją sprawę. Ta miła osoba obiecała przejżeć moje dokumenty na następny dzień i poinformować mnie o ewentualnych błędach. Na drugi dzień telefonicznie dowiedziałam sie o właściwych brakach jakie znajdują sie w projekcie. Urzędniczka doradziła abym złożyła wniosek o zawieszenie sprawy - abym mogła poprawić projekt. Zrobiłam to dwa dni po terminie - ponieważ nie dla wszystkich jest łatwe z dnia na dzień wziąć sobie urlop, zmienić termin lotu itp. Po dwóch tygodniach (tyle "moja" urzędniczka była na urlopie) dostałam pismo, że moje pismo dotyczące zawieszenia postępowania jest bezprzedmiotowe ze względu na upływ terminu oraz, że nie uzupełniłam "braków" z pisma (błędnego). Wobec tego po raz drugi przyszłam do urzędu złożyć na nowo moje podanie i projekty. Poszłam do P. urzędniczki i poprosiłam aby tym razem zwróciła uwagę na to, że projekt jest indywidualny i nie wysyłała mi po raz kolejny błędnego pisma. Odpowiedziała, że "my takimi rzeczami sie nie zajmujemy" i odwracając sie do mnie ostentacyjnie plecami resztę mojej wypowiedzi zignorowała. Jej koleżanka z pokoju poinformowała mnie, że nowe podanie i projekty muszę złożyć w miejscu ogólnym, w ktorym składa sie wszystkie podania. Po około miesiącu dostałam kolejne wezwanie ze starostwa do usunięcia braków. Ze względu na krótki termin (7 dni wliczajac sobotę i niedzielę) oraz nauczona poprzednią sytuacją odrazu złożyłam pismo o zawieszenie postępowania aby zdążyć wprowadzić zmiany i dojechać (na szczęście tylko około 300 km a nie 1800 jak poprzednio) z poprawkami... Teraz stwierdziłam, że postąpiłam źle za pierwszym razem - powinnam domagać się wydłużenia terminu ze względu na to, że urzędniczka wysłała błędne pismo - a ja w terminie przyszłam i o tym powiedziałam ale urzędniczka była na urlopie - uważam, że idąc na urlop powinna albo sprawę przekazać komuś innemu jeśli termin dla mnie pozostawiła bez zmian lub uwzględnić termin dany mi na poprawki z jej terminem urlopu. Wobec tego przestrzegam wszystkich przed Otwockim Starostwem - bądźcie czujni i sprawdzajcie kiedy urzędnicy prowadzący wasze sprawy idą na urlop Ale muszę przyznać , że Starostwo jest doskonale przygotowane na krytykę interesantów i oferuje gotowe formularze, w których można opisać swoje uwagi/zażalenia odnośnie danego pracownika. - Nie omieszkam skorzystać z tego luksusu... -
Legalett - doświaczenia mieszkańców
ohara1719506238 odpowiedział Maco → na topic → Fundamenty i piwnice
oto link do wątku: http://forum.muratordom.pl/showthread.php?169897-porady-przed-budowa-p%C5%82yty-grzewczej-sanitaria-woda-kanalizacja-itp- 4 892 odpowiedzi
-
- abc instalacji
- alarmy
-
(i 107 więcej)
Oznaczone tagami:
- abc instalacji
- alarmy
- antywłamaniowe
- architektura
- beton
- bezpieczeństwo
- bojler
- bramy
- bramy garażowe
- budowa
- cwu
- cyrkulacja
- dachy
- dom
- dom bez granic
- domek letniskowy
- domy drewniane
- drenaż
- drzwi
- działka budowlana
- dzienniki budowy
- eklektyczne
- ekogroszek
- ekologiczne
- elektryczność
- elewacje zewnętrzne
- fasada
- firany
- fontanny ścienne
- fundament
- fundamenty
- fundamenty i piwnice
- garaż
- garaże
- gaz
- gres
- grupy budujące
- hyde park cegła
- instalacje
- inteligentne instalacje
- izolacja
- izolacje
- kaskady
- klimatyzacja
- kominki
- kominy
- koszenie trawników
- kotły
- legallet
- lista płac wykonawców
- materiał
- miedź
- mieszkanie
- my z mieszkań
- nieruchomości
- o oblicówkach
- ogród
- ogrody
- ogrodzenia
- ogrzewanie
- ogłoszenia drobne
- okna
- osb
- oświetlenie
- pilawa
- piwnica
- plan
- poddasze
- podjazdy
- podłoga
- podłogi
- podłogówka
- pokój
- pompa ciepła
- pompy ciepła
- powierzchnia działki
- prąd
- projekt
- projektant
- projekty
- przemyślany
- przyłącza
- pustak
- rekuperacja
- schemat
- schody
- ściany
- ściany wodne
- ścieki
- solary
- sswin
- stodo 12
- stropy
- taras
- thermobel
- tynki
- wentylacja
- więźba
- wizualizacja
- wnętrza
- woda
- współczynnik
- wykończenie ścian
- wymiana doświadczeń
- zasłony
- zewnętrzne
- znowu
- zużycie prądu
- ławy
-
Przekopiowuje również opinię pdurysa z wątku o legalett ( http://forum.muratordom.pl/showthread.php?24120-Legalett-do%C5%9Bwiaczenia-mieszka%C5%84c%C3%B3w/page170 )
- 20 odpowiedzi
-
- kanalizacja
- legalett
-
(i 1 więcej)
Oznaczone tagami:
-
Wklejam ponizej uwagi jakie mi przeslal pawgar na priv bo uważam, że mogą się one przydać nie tylko mnie ale również innym laikom w tej dziedzinie (pawgar mam nadzieje ze nie masz nic przeciwko)
- 20 odpowiedzi
-
- kanalizacja
- legalett
-
(i 1 więcej)
Oznaczone tagami:
-
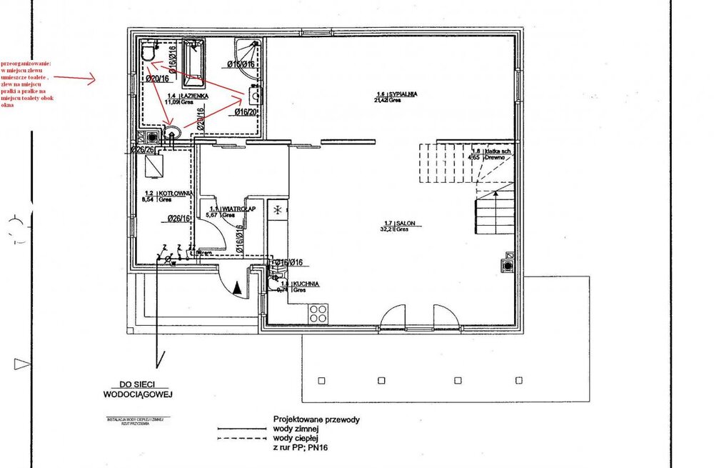
Ponizej w linkach znajduja sie projekty w moim domku: kanalizacji: http://forum.muratordom.pl/attachment.php?attachmentid=31431&d=1290435305 wody: http://forum.muratordom.pl/attachment.php?attachmentid=31432&d=1290435362 instalacji CO: http://forum.muratordom.pl/attachment.php?attachmentid=31433&d=1290435381 Planuje płytę Legalett no i oczywiście zastanawiam sie co zmienić/ulepszyć. Np. zamierzałam zmienić ustawienia sanitariów w łazience ale jednak po przemyśleniu pozostaje przy tym co jest w projekcie. Jedynie poproszę o odsuniecie np. misy toalety na odleglosc 25 cm od sciany bocznej. To samo ze zlewem względem scianki w której jest komin. Jeśli macie jakieś uwagi odnośnie czego brakuje w projekcie lub jak to ulepszyć to chętnie posłucham Zastanawiam się teraz poważnie nad przeniesieniem kuchennego zlewu na ścianę zewnętrzną aby go trochę ukryć względem salonu...
- 20 odpowiedzi
-
- kanalizacja
- legalett
-
(i 1 więcej)
Oznaczone tagami:
-
Legalett - doświaczenia mieszkańców
ohara1719506238 odpowiedział Maco → na topic → Fundamenty i piwnice
- 4 892 odpowiedzi
-
- abc instalacji
- alarmy
-
(i 107 więcej)
Oznaczone tagami:
- abc instalacji
- alarmy
- antywłamaniowe
- architektura
- beton
- bezpieczeństwo
- bojler
- bramy
- bramy garażowe
- budowa
- cwu
- cyrkulacja
- dachy
- dom
- dom bez granic
- domek letniskowy
- domy drewniane
- drenaż
- drzwi
- działka budowlana
- dzienniki budowy
- eklektyczne
- ekogroszek
- ekologiczne
- elektryczność
- elewacje zewnętrzne
- fasada
- firany
- fontanny ścienne
- fundament
- fundamenty
- fundamenty i piwnice
- garaż
- garaże
- gaz
- gres
- grupy budujące
- hyde park cegła
- instalacje
- inteligentne instalacje
- izolacja
- izolacje
- kaskady
- klimatyzacja
- kominki
- kominy
- koszenie trawników
- kotły
- legallet
- lista płac wykonawców
- materiał
- miedź
- mieszkanie
- my z mieszkań
- nieruchomości
- o oblicówkach
- ogród
- ogrody
- ogrodzenia
- ogrzewanie
- ogłoszenia drobne
- okna
- osb
- oświetlenie
- pilawa
- piwnica
- plan
- poddasze
- podjazdy
- podłoga
- podłogi
- podłogówka
- pokój
- pompa ciepła
- pompy ciepła
- powierzchnia działki
- prąd
- projekt
- projektant
- projekty
- przemyślany
- przyłącza
- pustak
- rekuperacja
- schemat
- schody
- ściany
- ściany wodne
- ścieki
- solary
- sswin
- stodo 12
- stropy
- taras
- thermobel
- tynki
- wentylacja
- więźba
- wizualizacja
- wnętrza
- woda
- współczynnik
- wykończenie ścian
- wymiana doświadczeń
- zasłony
- zewnętrzne
- znowu
- zużycie prądu
- ławy
-
Zalaczam pliki o ktorych mowa w watku o Legalett http://forum.muratordom.pl/showthread.php?24120-Legalett-do%C5%9Bwiaczenia-mieszka%C5%84c%C3%B3w/page167" rel="external nofollow">http://forum.muratordom.pl/showthread.php?24120-Legalett-do%C5%9Bwiaczenia-mieszka%C5%84c%C3%B3w/page167" rel="external nofollow">http://forum.muratordom.pl/showthread.php?24120-Legalett-do%C5%9Bwiaczenia-mieszka%C5%84c%C3%B3w/page167" rel="external nofollow">http://forum.muratordom.pl/showthread.php?24120-Legalett-do%C5%9Bwiaczenia-mieszka%C5%84c%C3%B3w/page167 . Prosze o komentarze na temat rozprowadzenia rurek / rozdzielaczy / kanalizacji itp.
-
Legalett - doświaczenia mieszkańców
ohara1719506238 odpowiedział Maco → na topic → Fundamenty i piwnice
Ojej pawgar ! Dzieki za swietne wskazowki! a wszyscy moi znajomi (niebudujacy), smieja sie ze mnie gdy mowie, ze sie zastanawiam nad rurami, odleglosciami w kotlowni, odplywem wanny, i powtarzaja, ze o tym wszystkim juz dobrze pomyslal projektant oraz zrobi dobrze wykonawca a ja nie powinnam sobie tym glowy zawracac tylko wsadzic rece do kieszeni... Widze jednak, ze mam racje, ze jednak sobie "zawracam"... W weekend zeskanuje rzuty instalacji i tu umieszcze. Chetnie poslucham wskazowek.- 4 892 odpowiedzi
-
- abc instalacji
- alarmy
-
(i 107 więcej)
Oznaczone tagami:
- abc instalacji
- alarmy
- antywłamaniowe
- architektura
- beton
- bezpieczeństwo
- bojler
- bramy
- bramy garażowe
- budowa
- cwu
- cyrkulacja
- dachy
- dom
- dom bez granic
- domek letniskowy
- domy drewniane
- drenaż
- drzwi
- działka budowlana
- dzienniki budowy
- eklektyczne
- ekogroszek
- ekologiczne
- elektryczność
- elewacje zewnętrzne
- fasada
- firany
- fontanny ścienne
- fundament
- fundamenty
- fundamenty i piwnice
- garaż
- garaże
- gaz
- gres
- grupy budujące
- hyde park cegła
- instalacje
- inteligentne instalacje
- izolacja
- izolacje
- kaskady
- klimatyzacja
- kominki
- kominy
- koszenie trawników
- kotły
- legallet
- lista płac wykonawców
- materiał
- miedź
- mieszkanie
- my z mieszkań
- nieruchomości
- o oblicówkach
- ogród
- ogrody
- ogrodzenia
- ogrzewanie
- ogłoszenia drobne
- okna
- osb
- oświetlenie
- pilawa
- piwnica
- plan
- poddasze
- podjazdy
- podłoga
- podłogi
- podłogówka
- pokój
- pompa ciepła
- pompy ciepła
- powierzchnia działki
- prąd
- projekt
- projektant
- projekty
- przemyślany
- przyłącza
- pustak
- rekuperacja
- schemat
- schody
- ściany
- ściany wodne
- ścieki
- solary
- sswin
- stodo 12
- stropy
- taras
- thermobel
- tynki
- wentylacja
- więźba
- wizualizacja
- wnętrza
- woda
- współczynnik
- wykończenie ścian
- wymiana doświadczeń
- zasłony
- zewnętrzne
- znowu
- zużycie prądu
- ławy
-
Legalett - doświaczenia mieszkańców
ohara1719506238 odpowiedział Maco → na topic → Fundamenty i piwnice
No swietnie, tylko, ze ja przyzwyczajona jestem, wyjezdzajac, wylaczac wszystko co elektryczne. Zatem czy pompa czy piec - nie bedzie w moim domu dzialalo podczas mojej nieobecnosci Bardzo sie w takim razie ciesze, ze nie grozi mi zamarzniecie instalacji A po przyjezdzie dogrzeje sie kominkiem.- 4 892 odpowiedzi
-
- abc instalacji
- alarmy
-
(i 107 więcej)
Oznaczone tagami:
- abc instalacji
- alarmy
- antywłamaniowe
- architektura
- beton
- bezpieczeństwo
- bojler
- bramy
- bramy garażowe
- budowa
- cwu
- cyrkulacja
- dachy
- dom
- dom bez granic
- domek letniskowy
- domy drewniane
- drenaż
- drzwi
- działka budowlana
- dzienniki budowy
- eklektyczne
- ekogroszek
- ekologiczne
- elektryczność
- elewacje zewnętrzne
- fasada
- firany
- fontanny ścienne
- fundament
- fundamenty
- fundamenty i piwnice
- garaż
- garaże
- gaz
- gres
- grupy budujące
- hyde park cegła
- instalacje
- inteligentne instalacje
- izolacja
- izolacje
- kaskady
- klimatyzacja
- kominki
- kominy
- koszenie trawników
- kotły
- legallet
- lista płac wykonawców
- materiał
- miedź
- mieszkanie
- my z mieszkań
- nieruchomości
- o oblicówkach
- ogród
- ogrody
- ogrodzenia
- ogrzewanie
- ogłoszenia drobne
- okna
- osb
- oświetlenie
- pilawa
- piwnica
- plan
- poddasze
- podjazdy
- podłoga
- podłogi
- podłogówka
- pokój
- pompa ciepła
- pompy ciepła
- powierzchnia działki
- prąd
- projekt
- projektant
- projekty
- przemyślany
- przyłącza
- pustak
- rekuperacja
- schemat
- schody
- ściany
- ściany wodne
- ścieki
- solary
- sswin
- stodo 12
- stropy
- taras
- thermobel
- tynki
- wentylacja
- więźba
- wizualizacja
- wnętrza
- woda
- współczynnik
- wykończenie ścian
- wymiana doświadczeń
- zasłony
- zewnętrzne
- znowu
- zużycie prądu
- ławy
-
Legalett - doświaczenia mieszkańców
ohara1719506238 odpowiedział Maco → na topic → Fundamenty i piwnice
Nad pompa ciepla juz sie zastanawialam, duzo czytalam i pytalam fachowca gdy bylam przy okazji w Niemczech. Dowiedzialam sie, ze nie jest to warte ceny jaka teraz kosztuje i za 20 lat bedzie duzo tansze (chyba to samo mozna powiedziec o L). Co do bezopslugowosci - zasobniki sa pojemne, piec czysci sie sam, a popiol wyrzuca sie raz na miesiac - nie przesadzajmy ze to jest uciazliwe a troche ruchu przeciez nie zaszkodzi. Gdyby istnial zloty srodek... Nie chce miec wodnej podlogowki ani elektrycznej wiec pozostaje mi powietrzna.- 4 892 odpowiedzi
-
- abc instalacji
- alarmy
-
(i 107 więcej)
Oznaczone tagami:
- abc instalacji
- alarmy
- antywłamaniowe
- architektura
- beton
- bezpieczeństwo
- bojler
- bramy
- bramy garażowe
- budowa
- cwu
- cyrkulacja
- dachy
- dom
- dom bez granic
- domek letniskowy
- domy drewniane
- drenaż
- drzwi
- działka budowlana
- dzienniki budowy
- eklektyczne
- ekogroszek
- ekologiczne
- elektryczność
- elewacje zewnętrzne
- fasada
- firany
- fontanny ścienne
- fundament
- fundamenty
- fundamenty i piwnice
- garaż
- garaże
- gaz
- gres
- grupy budujące
- hyde park cegła
- instalacje
- inteligentne instalacje
- izolacja
- izolacje
- kaskady
- klimatyzacja
- kominki
- kominy
- koszenie trawników
- kotły
- legallet
- lista płac wykonawców
- materiał
- miedź
- mieszkanie
- my z mieszkań
- nieruchomości
- o oblicówkach
- ogród
- ogrody
- ogrodzenia
- ogrzewanie
- ogłoszenia drobne
- okna
- osb
- oświetlenie
- pilawa
- piwnica
- plan
- poddasze
- podjazdy
- podłoga
- podłogi
- podłogówka
- pokój
- pompa ciepła
- pompy ciepła
- powierzchnia działki
- prąd
- projekt
- projektant
- projekty
- przemyślany
- przyłącza
- pustak
- rekuperacja
- schemat
- schody
- ściany
- ściany wodne
- ścieki
- solary
- sswin
- stodo 12
- stropy
- taras
- thermobel
- tynki
- wentylacja
- więźba
- wizualizacja
- wnętrza
- woda
- współczynnik
- wykończenie ścian
- wymiana doświadczeń
- zasłony
- zewnętrzne
- znowu
- zużycie prądu
- ławy
-
Legalett - doświaczenia mieszkańców
ohara1719506238 odpowiedział Maco → na topic → Fundamenty i piwnice
Nie znam sie kompletnie na tym ale wiem ze wode taniej ogrzeje pelletem niz pradem. Natomiast dzieki temu ze plyta bedzie wolno sie wyziebiac nie bede miec problemu z moimi czestymi wyjazdami. No chyba, ze plyta sie tylko wolno ogrzewa a wyziebia znacznie szybciej. W kazdym badz razie mam nadzieje ze bedzie tak, ze podczas nie uruchamiania pieca przez 2-3 dni, woda w rurach nie zamarznie przy ujemnej temp. zewnetrznej...- 4 892 odpowiedzi
-
- abc instalacji
- alarmy
-
(i 107 więcej)
Oznaczone tagami:
- abc instalacji
- alarmy
- antywłamaniowe
- architektura
- beton
- bezpieczeństwo
- bojler
- bramy
- bramy garażowe
- budowa
- cwu
- cyrkulacja
- dachy
- dom
- dom bez granic
- domek letniskowy
- domy drewniane
- drenaż
- drzwi
- działka budowlana
- dzienniki budowy
- eklektyczne
- ekogroszek
- ekologiczne
- elektryczność
- elewacje zewnętrzne
- fasada
- firany
- fontanny ścienne
- fundament
- fundamenty
- fundamenty i piwnice
- garaż
- garaże
- gaz
- gres
- grupy budujące
- hyde park cegła
- instalacje
- inteligentne instalacje
- izolacja
- izolacje
- kaskady
- klimatyzacja
- kominki
- kominy
- koszenie trawników
- kotły
- legallet
- lista płac wykonawców
- materiał
- miedź
- mieszkanie
- my z mieszkań
- nieruchomości
- o oblicówkach
- ogród
- ogrody
- ogrodzenia
- ogrzewanie
- ogłoszenia drobne
- okna
- osb
- oświetlenie
- pilawa
- piwnica
- plan
- poddasze
- podjazdy
- podłoga
- podłogi
- podłogówka
- pokój
- pompa ciepła
- pompy ciepła
- powierzchnia działki
- prąd
- projekt
- projektant
- projekty
- przemyślany
- przyłącza
- pustak
- rekuperacja
- schemat
- schody
- ściany
- ściany wodne
- ścieki
- solary
- sswin
- stodo 12
- stropy
- taras
- thermobel
- tynki
- wentylacja
- więźba
- wizualizacja
- wnętrza
- woda
- współczynnik
- wykończenie ścian
- wymiana doświadczeń
- zasłony
- zewnętrzne
- znowu
- zużycie prądu
- ławy
-
Legalett - doświaczenia mieszkańców
ohara1719506238 odpowiedział Maco → na topic → Fundamenty i piwnice
tansze niz ogrzewanie pelletem?- 4 892 odpowiedzi
-
- abc instalacji
- alarmy
-
(i 107 więcej)
Oznaczone tagami:
- abc instalacji
- alarmy
- antywłamaniowe
- architektura
- beton
- bezpieczeństwo
- bojler
- bramy
- bramy garażowe
- budowa
- cwu
- cyrkulacja
- dachy
- dom
- dom bez granic
- domek letniskowy
- domy drewniane
- drenaż
- drzwi
- działka budowlana
- dzienniki budowy
- eklektyczne
- ekogroszek
- ekologiczne
- elektryczność
- elewacje zewnętrzne
- fasada
- firany
- fontanny ścienne
- fundament
- fundamenty
- fundamenty i piwnice
- garaż
- garaże
- gaz
- gres
- grupy budujące
- hyde park cegła
- instalacje
- inteligentne instalacje
- izolacja
- izolacje
- kaskady
- klimatyzacja
- kominki
- kominy
- koszenie trawników
- kotły
- legallet
- lista płac wykonawców
- materiał
- miedź
- mieszkanie
- my z mieszkań
- nieruchomości
- o oblicówkach
- ogród
- ogrody
- ogrodzenia
- ogrzewanie
- ogłoszenia drobne
- okna
- osb
- oświetlenie
- pilawa
- piwnica
- plan
- poddasze
- podjazdy
- podłoga
- podłogi
- podłogówka
- pokój
- pompa ciepła
- pompy ciepła
- powierzchnia działki
- prąd
- projekt
- projektant
- projekty
- przemyślany
- przyłącza
- pustak
- rekuperacja
- schemat
- schody
- ściany
- ściany wodne
- ścieki
- solary
- sswin
- stodo 12
- stropy
- taras
- thermobel
- tynki
- wentylacja
- więźba
- wizualizacja
- wnętrza
- woda
- współczynnik
- wykończenie ścian
- wymiana doświadczeń
- zasłony
- zewnętrzne
- znowu
- zużycie prądu
- ławy
-
Legalett - doświaczenia mieszkańców
ohara1719506238 odpowiedział Maco → na topic → Fundamenty i piwnice
Ja porownalam w zeszlym tygodniu wlasnie to o czym mowisz. Moj kolega z pracy zdecydowal sie na pompe ciepla i za pompe+odwierty+system ogrzewania wodnego podlogowego wyszlo mu cos wlasnie kolo 50 tys. Oczywiscie fundament nie jest w to wliczony. Rozmawialismy ze mi fundament Legalett wychodzi okolo 50 tys i do tego musze dokupic oczywiscie piec i postawic komin czyli + okolo 20 tys. Stwierdzilismy ze on za sam fundament zapewne bedzie musial zaplacic okolo 30 tys. Wiec jemu wyjdzie caly system okolo 10 tys wiecej lub moze wyjdzie na to samo. Wiec w zasadzie glebszych roznic dopiero sie bedziemy mogli doszukiwac podczas uzytkowania...- 4 892 odpowiedzi
-
- abc instalacji
- alarmy
-
(i 107 więcej)
Oznaczone tagami:
- abc instalacji
- alarmy
- antywłamaniowe
- architektura
- beton
- bezpieczeństwo
- bojler
- bramy
- bramy garażowe
- budowa
- cwu
- cyrkulacja
- dachy
- dom
- dom bez granic
- domek letniskowy
- domy drewniane
- drenaż
- drzwi
- działka budowlana
- dzienniki budowy
- eklektyczne
- ekogroszek
- ekologiczne
- elektryczność
- elewacje zewnętrzne
- fasada
- firany
- fontanny ścienne
- fundament
- fundamenty
- fundamenty i piwnice
- garaż
- garaże
- gaz
- gres
- grupy budujące
- hyde park cegła
- instalacje
- inteligentne instalacje
- izolacja
- izolacje
- kaskady
- klimatyzacja
- kominki
- kominy
- koszenie trawników
- kotły
- legallet
- lista płac wykonawców
- materiał
- miedź
- mieszkanie
- my z mieszkań
- nieruchomości
- o oblicówkach
- ogród
- ogrody
- ogrodzenia
- ogrzewanie
- ogłoszenia drobne
- okna
- osb
- oświetlenie
- pilawa
- piwnica
- plan
- poddasze
- podjazdy
- podłoga
- podłogi
- podłogówka
- pokój
- pompa ciepła
- pompy ciepła
- powierzchnia działki
- prąd
- projekt
- projektant
- projekty
- przemyślany
- przyłącza
- pustak
- rekuperacja
- schemat
- schody
- ściany
- ściany wodne
- ścieki
- solary
- sswin
- stodo 12
- stropy
- taras
- thermobel
- tynki
- wentylacja
- więźba
- wizualizacja
- wnętrza
- woda
- współczynnik
- wykończenie ścian
- wymiana doświadczeń
- zasłony
- zewnętrzne
- znowu
- zużycie prądu
- ławy
-
Legalett - doświaczenia mieszkańców
ohara1719506238 odpowiedział Maco → na topic → Fundamenty i piwnice
To jest wlasnie powod dla ktorego ja wybieram ten system... Znalezc dobrych fachowcow od fundamentow, dobrego hydraulika, nastepnie od systemu grzewczego, posadzka itd to jest dopiero osiagniecie! A jesli ktorys cos spiep... to potem wykreci sie, ze to wina tego drugiego i tak w kolo. To dla mnie duza zaleta, ze jesli cos bedzie przeciekalo, niegrzalo itp - ktos za to wezmie odpowiedzialnosc no i latwo jest ich znalezc - duzo latwiej niz jakiegos Pana Kowalskiego, ktorego poznalismy tylko z jego wlasnych opinii o sobie a po robocie zniknal i tyle go widzielismy. Ludzie, ktorzy znaja sie na rzeczy nie rozumieja rozterek tych ktorzy sie nie znaja. A za niewiedze sie placi - ja rowniez zarabiam na cudzej niewiedzy - przeciez tak wlasnie funkcjonuje swiat. Przypuscmy, ze zlecam kupno akcji komus kompetentnemu i operowanie nimi - place mu za podejmowane decyzje, ale rowniez ryzykuje bo nie zawsze jego decyzje musza byc dobre - rynek jest zmienny, ale zdecydowanie mniej ryzykuje powierzajac decyzje osobie doswiadczonej niz gdybym sama te decyzje mialabym podejmowac. Zgodze sie, ze taniej zawsze mozna - wystarczy, ze wezme lopate we wlasne rece i wykopie fundamenty, sama moge tez rozlozyc rury kanalizacyjne - przeciez nikt mi tego nie zabroni, no i kto wie - moze zrobie to super i w dodatku za darmo ALE - samo kopanie zajmie mi z rok (bo znam wlasne miesnie ) a za rok to ja zarobie w swojej pracy na ten wykop, wykonujac to co lubie i umiem, i wcale sie przy tym nie spoce i w miedzy czasie pojde pare razy do kina itp A jesli sa tu ludzie na tyle obeznani w tym temacie i potrafia dobrze zaplanowac prace budowlane oraz zatrudnic dobrych fachowcow i w dodatku za duzo nizsze ceny to moze powinni uzyskac certyfikat z kierowania budowa i ja wtedy kogos takiego chetnie zatrudnie bo wlasnie takiego kogos, operatywnego, obeznanego w temacie szukam - no i oczywiscie zaplace (bo wiedza/informacja jest w cenie)- 4 892 odpowiedzi
-
- abc instalacji
- alarmy
-
(i 107 więcej)
Oznaczone tagami:
- abc instalacji
- alarmy
- antywłamaniowe
- architektura
- beton
- bezpieczeństwo
- bojler
- bramy
- bramy garażowe
- budowa
- cwu
- cyrkulacja
- dachy
- dom
- dom bez granic
- domek letniskowy
- domy drewniane
- drenaż
- drzwi
- działka budowlana
- dzienniki budowy
- eklektyczne
- ekogroszek
- ekologiczne
- elektryczność
- elewacje zewnętrzne
- fasada
- firany
- fontanny ścienne
- fundament
- fundamenty
- fundamenty i piwnice
- garaż
- garaże
- gaz
- gres
- grupy budujące
- hyde park cegła
- instalacje
- inteligentne instalacje
- izolacja
- izolacje
- kaskady
- klimatyzacja
- kominki
- kominy
- koszenie trawników
- kotły
- legallet
- lista płac wykonawców
- materiał
- miedź
- mieszkanie
- my z mieszkań
- nieruchomości
- o oblicówkach
- ogród
- ogrody
- ogrodzenia
- ogrzewanie
- ogłoszenia drobne
- okna
- osb
- oświetlenie
- pilawa
- piwnica
- plan
- poddasze
- podjazdy
- podłoga
- podłogi
- podłogówka
- pokój
- pompa ciepła
- pompy ciepła
- powierzchnia działki
- prąd
- projekt
- projektant
- projekty
- przemyślany
- przyłącza
- pustak
- rekuperacja
- schemat
- schody
- ściany
- ściany wodne
- ścieki
- solary
- sswin
- stodo 12
- stropy
- taras
- thermobel
- tynki
- wentylacja
- więźba
- wizualizacja
- wnętrza
- woda
- współczynnik
- wykończenie ścian
- wymiana doświadczeń
- zasłony
- zewnętrzne
- znowu
- zużycie prądu
- ławy
-
Legalett - doświaczenia mieszkańców
ohara1719506238 odpowiedział Maco → na topic → Fundamenty i piwnice
Wlasnie potrzebuje szczegolow bo sie na budowaniu nie znam... Wobec tego widzee ze powinnam juz na etapie projektowania wiedziec gdzie dokladnie bedzie stal piec oraz jakich bedzie wymiarow. Czyli powinnam wybrac sie do sklepu... Zamierzam palic pelletem - mam nadzieje ze te piece sa kompatybilne z Legalettem. Ponadto zastanawiam sie co z wiszaca miska ustepowa. W oryginalnym projekcie mam ja na scianie nosnej zewnetrznej jednak niedawno stwierdzilam ze ja przeniose na przeciwlegla sciane ktora tez jest nosna ale znajduje sie wewnatrz domu. Widze teraz, ze te szczegoly musze dokladnie rozplanowac aby zostaly uwzglednione w projekcie plyty. Z rozmow jakie tu wyczytalam rozumiem ze powinnam sie cieszyc, ze dom bedzie w technologii lekkiej bo dzieki temu nie musze sie martwic o ten steropian...- 4 892 odpowiedzi
-
- abc instalacji
- alarmy
-
(i 107 więcej)
Oznaczone tagami:
- abc instalacji
- alarmy
- antywłamaniowe
- architektura
- beton
- bezpieczeństwo
- bojler
- bramy
- bramy garażowe
- budowa
- cwu
- cyrkulacja
- dachy
- dom
- dom bez granic
- domek letniskowy
- domy drewniane
- drenaż
- drzwi
- działka budowlana
- dzienniki budowy
- eklektyczne
- ekogroszek
- ekologiczne
- elektryczność
- elewacje zewnętrzne
- fasada
- firany
- fontanny ścienne
- fundament
- fundamenty
- fundamenty i piwnice
- garaż
- garaże
- gaz
- gres
- grupy budujące
- hyde park cegła
- instalacje
- inteligentne instalacje
- izolacja
- izolacje
- kaskady
- klimatyzacja
- kominki
- kominy
- koszenie trawników
- kotły
- legallet
- lista płac wykonawców
- materiał
- miedź
- mieszkanie
- my z mieszkań
- nieruchomości
- o oblicówkach
- ogród
- ogrody
- ogrodzenia
- ogrzewanie
- ogłoszenia drobne
- okna
- osb
- oświetlenie
- pilawa
- piwnica
- plan
- poddasze
- podjazdy
- podłoga
- podłogi
- podłogówka
- pokój
- pompa ciepła
- pompy ciepła
- powierzchnia działki
- prąd
- projekt
- projektant
- projekty
- przemyślany
- przyłącza
- pustak
- rekuperacja
- schemat
- schody
- ściany
- ściany wodne
- ścieki
- solary
- sswin
- stodo 12
- stropy
- taras
- thermobel
- tynki
- wentylacja
- więźba
- wizualizacja
- wnętrza
- woda
- współczynnik
- wykończenie ścian
- wymiana doświadczeń
- zasłony
- zewnętrzne
- znowu
- zużycie prądu
- ławy
-
Legalett - doświaczenia mieszkańców
ohara1719506238 odpowiedział Maco → na topic → Fundamenty i piwnice
Dziekuje za odpowiedz. Czy wobec tego, gdy Legalett przygotuje projekt fundamentu, to wtedy powinnam ten projekt zaniesc do projektanta, ktory projektowal mi dom? Czy moze projektant Legalettu to wszystko sprawdza?- 4 892 odpowiedzi
-
- abc instalacji
- alarmy
-
(i 107 więcej)
Oznaczone tagami:
- abc instalacji
- alarmy
- antywłamaniowe
- architektura
- beton
- bezpieczeństwo
- bojler
- bramy
- bramy garażowe
- budowa
- cwu
- cyrkulacja
- dachy
- dom
- dom bez granic
- domek letniskowy
- domy drewniane
- drenaż
- drzwi
- działka budowlana
- dzienniki budowy
- eklektyczne
- ekogroszek
- ekologiczne
- elektryczność
- elewacje zewnętrzne
- fasada
- firany
- fontanny ścienne
- fundament
- fundamenty
- fundamenty i piwnice
- garaż
- garaże
- gaz
- gres
- grupy budujące
- hyde park cegła
- instalacje
- inteligentne instalacje
- izolacja
- izolacje
- kaskady
- klimatyzacja
- kominki
- kominy
- koszenie trawników
- kotły
- legallet
- lista płac wykonawców
- materiał
- miedź
- mieszkanie
- my z mieszkań
- nieruchomości
- o oblicówkach
- ogród
- ogrody
- ogrodzenia
- ogrzewanie
- ogłoszenia drobne
- okna
- osb
- oświetlenie
- pilawa
- piwnica
- plan
- poddasze
- podjazdy
- podłoga
- podłogi
- podłogówka
- pokój
- pompa ciepła
- pompy ciepła
- powierzchnia działki
- prąd
- projekt
- projektant
- projekty
- przemyślany
- przyłącza
- pustak
- rekuperacja
- schemat
- schody
- ściany
- ściany wodne
- ścieki
- solary
- sswin
- stodo 12
- stropy
- taras
- thermobel
- tynki
- wentylacja
- więźba
- wizualizacja
- wnętrza
- woda
- współczynnik
- wykończenie ścian
- wymiana doświadczeń
- zasłony
- zewnętrzne
- znowu
- zużycie prądu
- ławy
-
Legalett - doświaczenia mieszkańców
ohara1719506238 odpowiedział Maco → na topic → Fundamenty i piwnice
witam, zdecydowalam sie na Legalett. Bede miec dom z polbala. Zastanawiam sie jak drewniane domy sa "zakotwiczane" w fundament? Czy sa wykonywane jakies metalowe wypusty? Zauwazylam ze jest tu sporo osob, ktore maja drewniane/prefabrykowane domy - jak u was ten problem zostal rozwiazany? W murowanym domu zapewne nie ma tego problemu bo sciany wiaze z plyta zaprawa. Kompletnie nie znam sie na budowaniu dlatego ide na latwizne -> fundament + kanalizacja+ogrzewanie w jednej firmie za jednym zamachem, potem reszta domu w drugiej firmie. Pozostanie mi zatem jeszcze zorganizowac elektrycznosc, wode, kominy (od kominka i od pieca na pellet) oraz przylacza. Plyta Legalett jest zarazem posadzka. Planuje podloge betonowa (moze zywiczna) na calym parterze wiec na gotowej posadzce latwo to bedzie wykonac. Bede wdzieczna za jakies informacje i wskazowki.- 4 892 odpowiedzi
-
- abc instalacji
- alarmy
-
(i 107 więcej)
Oznaczone tagami:
- abc instalacji
- alarmy
- antywłamaniowe
- architektura
- beton
- bezpieczeństwo
- bojler
- bramy
- bramy garażowe
- budowa
- cwu
- cyrkulacja
- dachy
- dom
- dom bez granic
- domek letniskowy
- domy drewniane
- drenaż
- drzwi
- działka budowlana
- dzienniki budowy
- eklektyczne
- ekogroszek
- ekologiczne
- elektryczność
- elewacje zewnętrzne
- fasada
- firany
- fontanny ścienne
- fundament
- fundamenty
- fundamenty i piwnice
- garaż
- garaże
- gaz
- gres
- grupy budujące
- hyde park cegła
- instalacje
- inteligentne instalacje
- izolacja
- izolacje
- kaskady
- klimatyzacja
- kominki
- kominy
- koszenie trawników
- kotły
- legallet
- lista płac wykonawców
- materiał
- miedź
- mieszkanie
- my z mieszkań
- nieruchomości
- o oblicówkach
- ogród
- ogrody
- ogrodzenia
- ogrzewanie
- ogłoszenia drobne
- okna
- osb
- oświetlenie
- pilawa
- piwnica
- plan
- poddasze
- podjazdy
- podłoga
- podłogi
- podłogówka
- pokój
- pompa ciepła
- pompy ciepła
- powierzchnia działki
- prąd
- projekt
- projektant
- projekty
- przemyślany
- przyłącza
- pustak
- rekuperacja
- schemat
- schody
- ściany
- ściany wodne
- ścieki
- solary
- sswin
- stodo 12
- stropy
- taras
- thermobel
- tynki
- wentylacja
- więźba
- wizualizacja
- wnętrza
- woda
- współczynnik
- wykończenie ścian
- wymiana doświadczeń
- zasłony
- zewnętrzne
- znowu
- zużycie prądu
- ławy
-
ja na razie jestem na etapie załatwiania formalności, papierzysk, firm... czekam wlasnie na projekt. za tydzien lece do polski i zamierzam sie umowic na fundamenty
-
Witam wszystkim. Wlasnie sie zarejestrowalam na tym forum bo rowniez zamierzam budować na odleglosc. Ja pracuje od 3 lat w Rosji i "od urodzenia" marze o wlasnym domu Pracuje tylko po to zeby miec dom i ogrodek. Swoim marzeniem tak zarazilam meza, ze on tez tylko o tym mysli Odkad sie poznalismy jest to nasz wspolny cel no i nareszcie udalo nam sie kupic dzialke a wraz z wiosna startujemy z papierkowa robota i umowa z firma. Mamy nadzieje wybudowac sie "przez internet" za rok. Gdybysmy nie wyjechali po studiach to zapewne nie mielibysmy jeszcze teraz nic (umysly scisle ale w specjalnosci nauczycielskiej) albo mielibysmy - tyle, ze z kredytem 30-to letnim na karku. Puki co staramy sie dobrze wykonywac swoja prace, podnosic kwalifikacje - douczac sie przez internet (chwala internetowi) i mamy nadzieje ze po powrocie bedziemy miec nie tylko dom ale i prace - marzenia sa osiagalne!!! Pozdrawiam wszystkich, ktorzy buduja na odleglosc a w szczegolnosci tych, ktorzy, mimo ze zostali zmuszeni do wyjazdu, nie obraziili sie na nasza sliczna Polske, ktora posiada i gory i morze i doliny i wyzyny, i zamierzaja w niej wlasnie rodzic, dozyc do emerytury i umrzec
