alicyja
Użytkownicy-
Liczba zawartości
1 139 -
Rejestracja
-
Wygrane w rankingu
4
Typ zawartości
Profile
Forum
Artykuły
Blogi
Pobrane
Sklep
Wydarzenia
Galeria
Zawartość dodana przez alicyja
-
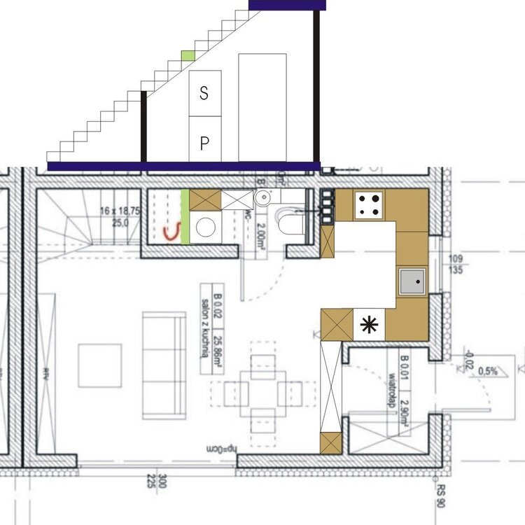
Pralka i suszarka w słupku powinny się zmieścić pod schodami a obok nich cargo ok.40cm. Miskę wc przesunęłabym w prawo, tak żeby było 20cm odstępu od ściany z drzwiami, co da po lewej miejsce na blat/szafkę ok.30cm. Umywalka w takim miejscu żeby nie przeszkadzała w wysuwaniu cargo. Niestety traci się przestrzeń w głębi łazienki. Łazienka ma jakieś 105cm szerokości czyli za mało na pralkę i suszarkę ustawione obok siebie w poprzek a przy ustawieniu wzdłuż zostałoby 40-50cm przed nimi - pewnie nawet drzwi pralki by się nie otworzyły nie mówiąc o kucnięciu albo schyleniu się w takiej ciasnocie. Z zabudową kuchenną można wyjechać trochę dalej niż na rzucie oryginalnym i zakręcić meblami na ścianę z drzwiami wiatrołapu. Na moim rysunku przykładowo jest szafka narożna 80x80cm, lodówka 60cm i słupek z piekarnikiem i mikrofalą 60cm - zabudowa wystaje na ok.40cm i takiej głębokości jest pawlacz nad drzwiami wiatrołapu i słupek meblowy po prawej. Wejście do kuchni ok. 94cm.
-
Dziwny układ - czy da się coś wymyślić ?
alicyja odpowiedział Konewka007 → na topic → Projektowanie wnętrz
Wyprostowałam rzut jakby ktoś miał ochotę porysować. Przydałoby się też choć kilka wymiarów, również wymiary okien i ich odległości od siebie i od rogów pomieszczenia. Ja tu nie bardzo widzę pełnoprawną sypialnię, raczej symbolicznie wydzieloną z salonu (i może części pokoju obok) alkowę z łóżkiem rodziców. -
Dziwny układ - czy da się coś wymyślić ?
alicyja odpowiedział Konewka007 → na topic → Projektowanie wnętrz
Zamieść ten poprzedni rzut - może jakoś dopasuję wymiary a na tym z grubymi ścianami nie ma co rysować. -
Dziwny układ - czy da się coś wymyślić ?
alicyja odpowiedział Konewka007 → na topic → Projektowanie wnętrz
Na poprzednim rzucie wszystkie ściany chyba były cienkie - nie wiem które można wywalić. -
mała sypialnia w dużym domu - jak powiększyć
alicyja odpowiedział frekas → na topic → Projektowanie wnętrz
Ściana z wejściem do sypialni przesunięta o 60cm, z włączeniem kawałka korytarza przy schodach. Pokoje dzieci - każdy ma więcej niż 12mkw, łóżko 90x200, szafy 180 i 150cm oraz biurko 150x60cm. Ściana między pokojem 5 a 6 przesunięta o 60-67cm ale do pokoju 6 dodana wnęka na szafę ok. 180x69cm kosztem pokoju 7, z którego kawałek też został zabrany na korzystniejsze umiejscowienie drzwi. Okna do przesunięcia tak, żeby nie kolidowały z łóżkami i biurkami - o ile razem z oknami na parterze nie zaburzy do wyglądu elewacji. -
Mieszkanie 72 m2 - aranżacja - czy da się jakoś sensownie "przemieścić" kuchnię?
alicyja odpowiedział distroia → na topic → Projektowanie wnętrz
3. Ściana przy której oryginalnie zaplanowana jest kuchnia jest chyba trochę grubsza niż pozostałe - jeśli trzeba ją zostawić to może da się przenieść kuchnię na drugą jej stronę, do pokoju obok. Wejście do gabinetu jest z korytarza ale można też zrobić z salonu (w kącie obok słupa) lub sypialni i zyskać większą szafę w przedpokoju. Układ tej części może też być jak w wersji 1B czyli z garderobą i wejście do gabinetu z sypialni lub salonu np. w kącie za stołem. Tyle, że jedna ze ścian łazienki też jest grubsza a właśnie ją warto przesunąć. -
Mieszkanie 72 m2 - aranżacja - czy da się jakoś sensownie "przemieścić" kuchnię?
alicyja odpowiedział distroia → na topic → Projektowanie wnętrz
1B) Zmodyfikowany układ 1. Gabinet zmniejszony ale bardziej ustawny, z wejściem z sypialni. Garderoba przearanżowana żeby była szafa dostępna z przedpokoju - można ją powiększyć o 30cm kosztem gabinetu i wstawić kolejną głęboką szafę zamiast płytkich półek. Ściana toalety cofnięta i jest na równo ze ścianą z drzwiami wejściowymi i zrobione szerokie dwuskrzydłowe lub łamane drzwi do nowo powstałej pralni/schowka. Kuchnia oddzielona od salonu półwyspem i częściowo wysoką ścianką na tv (z drugiej strony np. nablatowy bajzel kuchenny typu toster, krajalnica itp.) - odległość od głównego blatu 110-120cm. Przejścia z salonu do kuchni i przedpokoju min.90cm. -
Dziwny układ - czy da się coś wymyślić ?
alicyja odpowiedział Konewka007 → na topic → Projektowanie wnętrz
Bez wymiarów, w tym okien i ich rozmieszczenia, to nikt nie doradzi. Balkon jest zabudowany, włączony do mieszkania a ściana z oknem na balkon wyburzona? -
Mieszkanie 72 m2 - aranżacja - czy da się jakoś sensownie "przemieścić" kuchnię?
alicyja odpowiedział distroia → na topic → Projektowanie wnętrz
W moich projektach założyłam , że zlew da się podpiąć pod pion łazienkowy albo toalety. W wersji pierwszej można zrobić wyspę lub półwysep mniej więcej w miejscu stołu, bliżej ciągu kuchennego, a mniejszy stół dostawić na przedłużeniu tej wyspy. Jeśli zrezygnujecie z osobnej toalety (może zamiana na pralnię?) to nie trzeba będzie przysłaniać drzwi regałem lub kwietnikiem jak to narysowałam a można za to np. przedłużyć ścianę z tv. -
mała sypialnia w dużym domu - jak powiększyć
alicyja odpowiedział frekas → na topic → Projektowanie wnętrz
Sypialnia ma spoko wymiary i kształt - zmieści się duże łóżko z dostępem z trzech stron, stoliki nocne i może jakaś płytka komoda naprzeciwko. Co tam jeszcze chcesz wstawić? Pokój A1.5 ma bardzo sensowny układ i nawet ewentualne przesunięcie ściany o 30-60cm nie zmniejszy jego funkcjonalności (po przesunięciu też wejścia i okna). To pozostałe pokoje, łazienki i garderoba wymagają więcej uwagi bo meble i sprzęty jakoś tak przypadkowo poustawiane. -
Mieszkanie 72 m2 - aranżacja - czy da się jakoś sensownie "przemieścić" kuchnię?
alicyja odpowiedział distroia → na topic → Projektowanie wnętrz
-
Mieszkanie 72 m2 - aranżacja - czy da się jakoś sensownie "przemieścić" kuchnię?
alicyja odpowiedział distroia → na topic → Projektowanie wnętrz
A osobna kuchnia w pokoju przy łazience wchodzi grę? Łazienkę można spokojnie skrócić. 1. No i taka propozycja. -
- 3 odpowiedzi
-
- mieszkanie
- rozkład pomieszczeń
-
(i 1 więcej)
Oznaczone tagami:
-
Kosztem jednej łazienki. Nie wiem czy między zlewem a lodówką na oryginalnym rzucie jest słup czy tylko jakaś ciemna plama...
- 3 odpowiedzi
-
- mieszkanie
- rozkład pomieszczeń
-
(i 1 więcej)
Oznaczone tagami:
-
4) Ścianka na środku przedłużona aż do mniejszej łazienki która została nieco powiększona (wnęka na prysznic przy kominie 80cm), wejście do gabinetu/gościnnego przeniesione do korytarzyka (może być trudno wnosić większe meble). Niezależnie od tego jaki układ zastosujecie warto wziąć pod uwagę, że ubrania w garderobie nie powinny być wystawione na działanie światła dziennego więc jeśli nie planujecie zamykanych szaf to trzeba będzie powiesić zaciemniającą zasłonę na oknie albo może w połowie pomieszczenia. W pralni (lub blisko) dobrze jest mieć zlew - można coś namoczyć, przeprać ręcznie lub wymyć szufladę na proszek. [ATTACH=CONFIG]468779[/ATTACH]
-
3) Główne zmiany względem oryginalnego planu to wywalenie tej samotnej ścianki na środku i zamurowanie drzwi do środkowego pokoju/garderoby - nowe wejście z pokoju który wybierzecie na sypialnię. Dostawienie kawałka ścianki na granicy kuchni i salonu - ja tam narysowałam wnękę na lodówkę i z drugiej strony miejsce na tv. Dodatkowe wydzielenie przestrzeni i przysłonięcie wejścia do łazienki zapewniają regały ażurowe (bez pleców) np. z roślinami, ewentualnie inny rodzaj przegrody. Możecie sprawdzić w SH3D czy to wizualnie zagra z oryginalnym układem kuchni - ja chciałam choć trochę skrócić korytarz, pozbyłam się też mikro spiżarni a w części przy wejściu do mieszkania zaplanowałam łazienkę z prysznicem (razem z pralnią) bo wydaje mi się że taka jak na Waszym planie nr2 przy gabinecie wyjdzie trochę za ciasna. [ATTACH=CONFIG]468763[/ATTACH]
-
Pomoc w aranżacji kawalerki 30m2 w bloku
alicyja odpowiedział Catalyst → na topic → Projektowanie wnętrz
3) Do tego ustawienia trzeba przesunąć drzwi do kuchni. [ATTACH=CONFIG]468186[/ATTACH] [ATTACH=CONFIG]468187[/ATTACH] [ATTACH=CONFIG]468188[/ATTACH] [ATTACH=CONFIG]468189[/ATTACH] -
Pomoc w aranżacji kawalerki 30m2 w bloku
alicyja odpowiedział Catalyst → na topic → Projektowanie wnętrz
Homestyler renderuje całkiem przyjemne obrazki, bez zagłębiania się w skomplikowane ustawienia. Polecam bo jest imo łatwy do opanowania. 2) [ATTACH=CONFIG]468165[/ATTACH] [ATTACH=CONFIG]468166[/ATTACH] [ATTACH=CONFIG]468167[/ATTACH] [ATTACH=CONFIG]468168[/ATTACH] -
Pomoc w aranżacji kawalerki 30m2 w bloku
alicyja odpowiedział Catalyst → na topic → Projektowanie wnętrz
Nie stawiałabym sofy na środku pokoju - proponuję mały narożnik z funkcją spania przy oknie, tv na ścianie przy wejściu (dostawiona ażurowa ścianka) - z możliwością obracania. Albo w tym miejscu zabudowa meblowa po skosie. [ATTACH=CONFIG]468152[/ATTACH] [ATTACH=CONFIG]468153[/ATTACH] [ATTACH=CONFIG]468154[/ATTACH] [ATTACH=CONFIG]468155[/ATTACH] [ATTACH=CONFIG]468156[/ATTACH] -
Bawię się homestylerem od bardzo niedawna ale dzięki szybkiej próbie stwierdziłam, że takie czerwone linie to elementy które kolidują z meblem. Musisz mieć inne meble ukryte z poziomu View>...... [ATTACH=CONFIG]467914[/ATTACH]
-
1) [ATTACH=CONFIG]467902[/ATTACH] 2) [ATTACH=CONFIG]467911[/ATTACH]
-
2)Z mikro schowkiem (ok.1mx1m) niestety kuchnia też raczej mała - 320cm blatu + lodówka. Łazienka ok. 170x190cm. [ATTACH=CONFIG]467834[/ATTACH] 3) Próbowałam przerzucić schowek na stronę wiatrołapu żeby powiększyć kuchnię ale droga do niej od wejścia zrobiła się długa i na kominek przy ścianie łazienki zabrakło miejsca i wyszło jak wyszło. Kuchnia 310cm + lodówka + słupek. [ATTACH=CONFIG]467835[/ATTACH]
-
Tak czytam, że pomysł z wanną upadł ale już narysowałam tę wersję więc wrzucam jak jest. [ATTACH=CONFIG]467819[/ATTACH]
-
Salon z aneksem porady + mała łazienka
alicyja odpowiedział kubagda02 → na topic → Projektowanie wnętrz
Tu prawie dokładnie to co miałam na myśli tylko wydaje mi się, że bez brodzika byłoby ładniej. Czyli bez szyby od strony wanny i całkowicie składana szklana ścianka od przodu (na fotce jest część stała i drzwi). Może też być zasłonka. -
A rozważaliście przeniesienie kuchni do pokoju syna (bliżej łazienki - może dałoby się też zrobić przejście do salonu) i zaaranżowanie pokoju z "zabawkami" bliżej okna, może jakoś symbolicznie oddzielonego przeszklonymi drzwiami?
- 10 odpowiedzi
