Odysss
Użytkownicy-
Liczba zawartości
287 -
Rejestracja
Typ zawartości
Profile
Forum
Artykuły
Blogi
Pobrane
Sklep
Wydarzenia
Galeria
Zawartość dodana przez Odysss
-
A po wykonaniu wiezby tez murlata byla w powietrzu ? Czy podniesiona jest takze od zewnatrz?
-
U siebie zamiast tych podkladek na szpilkach, zastosowalem katownik przewiercony tak by dociskal na calosci murlate, raczej nie zaszkodzi
-
program bezplatny na stronie leroya, wybor mebli itd skromny, ja tak powrzucalem dla orientacji gdzie np biurko, tv by pociagnac instalacje
- 6 odpowiedzi
-
- mieszkaniu.
- starym
-
(i 1 więcej)
Oznaczone tagami:
-
Okno od południa w pokoju z łóżkiem podwójnym. A z miejscem do przechowywania... co byś ewentualnie proponowała ?
- 6 odpowiedzi
-
- mieszkaniu.
- starym
-
(i 1 więcej)
Oznaczone tagami:
-
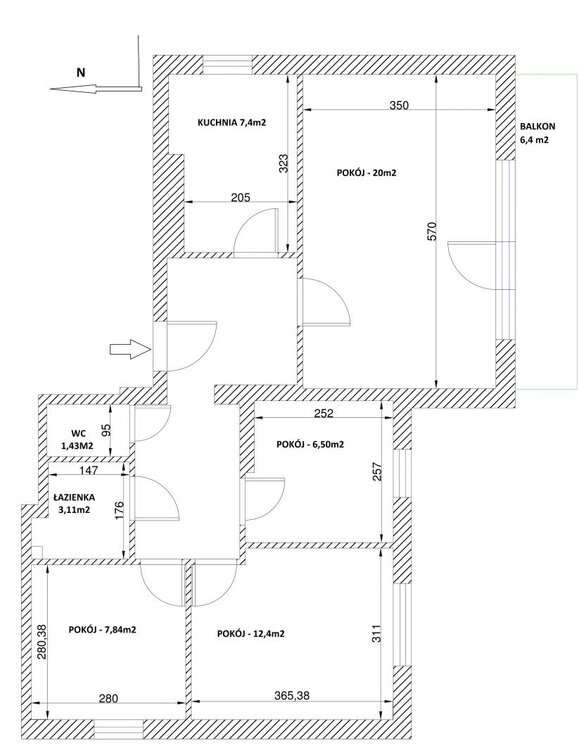
Witam, mieszkanko do remontu, co się Wam podoba a co nie w tym ustawieniu, może coś doradzicie ? 1. czy łożko podwojne po dobrej stronie czy lepiej przerzucic na druga (zimna sciana zewnetrzna) ? 2. czy wyburzenie calkowite scianki pomiedzy "salonem" a korytarzem to dobra opcja ? czy moze troche jej zostawic? 3. czy do kuchni poszerzyc otwor wejsciowy i zrobic do sufitu ? 4. kuchnia troche mala i jeszcze nie ma scianki prostej, moze pomozecie w ustawieniu sprzetu ? nie wiem czy kuchenka tak moze byc 5. lazienka wg pomyslu Elfir, wanne mozna zastapic prysznicem, jak to sie sprawdza w rodzinie z dziecmi malymi ? czy prysznic tez jest ok bo np dziecko sie w wanience kapie ? tam w rogu ida rurki od ogrzewania, dzis rozmawialem z hydraulikami ze mozna grzejnik gdzies pociagnac, moze cos zaproponujecie, gdzie ewentualnie go umiescic. Wszelkie sugestie mile widziane, Dziekuje
- 6 odpowiedzi
-
- mieszkaniu.
- starym
-
(i 1 więcej)
Oznaczone tagami:
-
Dziekuje, podoba mi sie koncepcja, powiedz tylko co zrobic z ta rura (grzejnik) w rogu, tam gdzie teoretycznie bylby prysznic ? zostawic pomalowana ? Ogolny uklad mieszkania:
-
Sprawdzilem, okno 145x145 roznica Uw=0,1 a w cenie 25zl netto
-
A moze w moim przypadku cos zasugerujecie. Zastanawiam sie nad remontem. Obecnie obok siebie znajduja sie dwa pomieszczenia, Lazienka i WC. Moze macie pomysly jak to ogarnac by bylo praktycznie i dobrze. Czy lepiej jest zostawic rozdzielone czy moze polaczyc ? z gory dziekuje. W zalaczeniu obecny rzut i fotki
-
Ta za doplata jest wykonana z PCV a standardowa z metalu/aluminium ? Przyznam ze sam nie wiem o co chodzi, dlatego zapytalem na forum.
-
Pytam bo te druga mam w standardzie a za pierwsza trzeba doplacac ! Za kawalek pcv i jeszcze doplata... Ktora polecacie ?
-
Witam, wybaczcie ze sie wcinam z pytaniem, ale moze znajdziecie czas odpowiedziec. Jak wyglada obecnie ciepla ramka? Takie cudo teraz nazywane jest ciepla ramka ?: Taka to juz nie jest ? :
-
Co byś zmienił(a), budując jeszcze raz
Odysss odpowiedział am → na topic → Doświadczenia i rady, tych którzy już zbudowali
Własnie uswiadomilem sobie, ze hydraulicy polozyli rury cieplej wody uzytkowej bezposrednio na posadzce... WTOPA Od CO mam w styropianie... -
Nasz domek na beczkach...
Odysss odpowiedział _arek_ → na topic → Jak wybudować dom samemu. KLUB SAMOROBÓW
A jaki material na sciany ? -
Wilgotna podstawa komina
Odysss odpowiedział Jochimm → na topic → Ściany, okna, stropy, kominy, garaże
ja posmarowalem lepikiem, ale przy okazji ocieplania zalozyli mi blache na wierzch. -
Brama segmentowa Wiśniowski - awaria
Odysss odpowiedział Brzeszczot_33 → na topic → Okna, okna dachowe, drzwi, bramy garażowe
Co powinno byc a co nie to wiadomo ze roznie w zyciu jest. U mnie na pewno lancuch w niektorych miejsach styka sie z metalowymi elementami prowadzenia, szyna? A polozenia krancowe potrafia sie same przestawiac. Pozycja dolna jakos ucieka mimo zaprogramowania. Ale to nie temat na przepychanki. Ja staram sie tylko pomoc koledze nie wysylajac go do serwisu. Brzeszczot wczesniej w poscie #19 napisalem i wkleilem kawalek instrukcji z programowania sterownika. Zrob to, przynajmniej zobaczysz czy ten zabierak sie przesuwa- 22 odpowiedzi
-
Brama segmentowa Wiśniowski - awaria
Odysss odpowiedział Brzeszczot_33 → na topic → Okna, okna dachowe, drzwi, bramy garażowe
Brzeszczot zajrzyj do instrukcji, ja w necie znalazlem ze chyba masz podobna konfiguracje sterownika zrob te kroki co sa, naciskasz set i przytrzymujesz. az sie pojawi jedynka,nic nie rob przyciskiem up, od razu nacisnij set i by na wyswietlaczu pojawila sie 2, wtedy przyciskiem down przesuniesz w dol ten elelement co wczesniej pisalem. Brame miej troche otwarta recznie i rygiel do gory. Wowczas ten element zalapac powinien. Jednakze bedziesz musial pozniej po sprzegniecu na nowo zaprogramowac brame by ustawiala sie w pozycji zamknietej i otwartej. Jesli nie umiesz tego robic, to wezwij kogos.- 22 odpowiedzi
-
Brama segmentowa Wiśniowski - awaria
Odysss odpowiedział Brzeszczot_33 → na topic → Okna, okna dachowe, drzwi, bramy garażowe
Nie smarujesz nie jedziesz to tak troche zartem i nie dotyczy to autora tematu. A lancuch tez jest plastikowy ?- 22 odpowiedzi
-
Brama segmentowa Wiśniowski - awaria
Odysss odpowiedział Brzeszczot_33 → na topic → Okna, okna dachowe, drzwi, bramy garażowe
Najpierw sprawdz cczy ten element przesuwa sie w kierunku od automatu do bramy i odwrotnie. Szukaj w instrukcji do napedu recznego sterowania. U mnie jest pozycja programowanie sterownika, otwieranie/zamykanie samouczenie. Jednak ja mam inny sterownik, nie wiem czy u Ciebie jest taka opcja. Nie masz sprzegnietej bramy z napedem ! Ten element powinien byc polaczony z lancuchem.- 22 odpowiedzi
-
Brama segmentowa Wiśniowski - awaria
Odysss odpowiedział Brzeszczot_33 → na topic → Okna, okna dachowe, drzwi, bramy garażowe
a ta czesc co w ramce, masz ja u siebie ? przy zamknietym ryglu przejechales po tym elemencie co zaznaczylem i brama sie nie zapiela ? jesli tak, no to serwis jak napisal OknoHouse- 22 odpowiedzi
-
Brama segmentowa Wiśniowski - awaria
Odysss odpowiedział Brzeszczot_33 → na topic → Okna, okna dachowe, drzwi, bramy garażowe
jak pociagnałes za sznureczek to byc moze trzeba ten rygiel (do ktorego jest przywiazany sznurek) wcisnac/przesunac do gory. Pokombinuj, moze to to.- 22 odpowiedzi
-
Nieśmiało i z ciekawości zapytam się dlaczego pióro -wpust ?
-
Po co chcesz przybijac po krokwiach ? Kontrlata docisnie i przytrzyma, nie ma powodu by bic tam gwozdzie. Dysperbit sie do tego nie stosuje, lepik sie nadaje. Pracy troche wiecej jest by go nalozyc w miejscu przybicia kontrlaty ale bedzie pewnosc.
-
ale to bylo w sierpniu.... jedyna mozliwosc to taka ze ten deszcz wciaz na nie leje....
-
Pytanie tylko czy faktycznie moze spac spokojnie ? Problemem sa 3-4 krokwie nie na calej dlugosci tylko w pewnych miejscach. Raczej drewno nie schnie wybiorczo? Wilgotnosc 45% to nie wiem czy zaraz po scieciu nie ma mniej.....
-
A rzuce jeszcze dwa pytanka: 1. okna dachowe sa wiekszosc czasu zaparowane/zaszronione. To znaczy ze maja lepsze pakiety? 2. Jedne okna teoretycznie z takim samym pakietem paruja, a drugie nie (w tym samym czasie). Co to oznacza ?
- 19 odpowiedzi
-
- całkowicie
- okna
-
(i 3 więcej)
Oznaczone tagami:
