Jakub_
Użytkownicy-
Liczba zawartości
34 -
Rejestracja
Typ zawartości
Profile
Forum
Artykuły
Blogi
Pobrane
Sklep
Wydarzenia
Galeria
Zawartość dodana przez Jakub_
-
Witam, Mam pytanie czy orientujecie się gdzie znajdę ten napis http://lcdn.wallstickersdecal.com/80A12A/wallstickersdecal/media/catalog/product/cache/1/image/9df78eab33525d08d6e5fb8d27136e95/k/i/kitchen_clean_english_lettering_quote_motto_wall_art.jpg Szukam ale nie znalazłem nigdzie. A przy okazji co lepiej naklejka czy z szablonu odmalowane ??
- 1 304 odpowiedzi
-
- >>>>
- 90x90
-
(i 370 więcej)
Oznaczone tagami:
- >>>>
- 90x90
- ????
- aluminiowej
- amerykańskich
- anthill
- antyrama.
- aranjues
- ażurowe
- bardzo
- baterie
- beton
- bezdystansowy
- biała
- białe
- biało-czarna
- biały
- biały półmat
- biały stół
- bidet
- bielsko biła
- biurko
- blacha miedziana
- blat
- blaty
- bloku
- brodzik
- brokatem
- century
- ceramiczne
- cross
- cudo
- czajnik
- czarne
- czarno
- czarno-białe
- czerwone
- czerwony
- czerwonych
- czyli
- dekoracyjny
- desert
- deski
- dobry
- dodatki
- dodatków
- domów?
- domu
- dostać
- dozownik
- drewniane
- drzwi
- drzwi caro
- drzwi szklane
- drzwiczki
- durasan
- dużą
- dywan
- dziecka
- dzwi
- elastyczna???
- elektryczny
- fajny
- flizelina
- flizelinowa
- flizelinowe
- folii
- fontanną.
- fotel
- fototapete
- fuga
- fuksja
- futon
- gdzie
- gdzie?
- gdzieś
- glazura
- gniecionej
- granitowy
- gres
- gres!
- grzejnik
- grzenik
- hokery!
- imitującyh
- jakie
- jasno
- jasnoszare
- jest
- jodelka
- kabina
- kabinę
- kabiny
- kalahari
- kanapa
- kanapy
- kloszy
- kolorze
- komora
- kontakty
- kraków
- kremowe
- krzesła
- krzesło
- ktokolwiek
- którym
- ktos
- kuchennej
- kuchennych
- kuchni
- kuchni-gdzie
- kuchniach
- kupić
- kupic?
- kupię
- kupię...?
- kupię?
- kupię???
- kupujecie
- lakierowane
- lampek
- larsus
- lateksowy?
- lazienka
- light
- listwa
- lustra
- lustra-ozdoba
- lustro
- massive
- materac
- mebelki???
- meble na wymiar
- meble łazienkowe
- meble?
- mebli
- meblowa
- meblu
- mieszkania
- miski
- mniejsza
- mocowane
- model?
- modułowe
- motyw
- mozaika
- możliiwie
- można
- muszelka
- mydło
- naczynia
- naklejka
- naklejki
- nakładki
- napis
- narożna
- narożnik
- naroznika
- narzuta
- nazwać
- niech
- niska wanna
- niskiej
- niż
- novabell
- nowoczesna
- nowoczesne
- nowych
- nóżki
- numerem
- ociekacz
- odpowiednika
- okapu
- okien
- okolice-
- okrągły
- oparciem
- oświetlenie
- otwierana
- panele
- pantograf
- parawan
- parkiet
- pastelowych
- pasy
- piasek
- pleksę
- plisy
- podobne
- podpowiedź
- podłoga
- podłogowe
- podłogowych
- podłokietniki
- podłoża.
- podłużne
- pojemnik ociekacz kuchnia
- pokój
- pokój dzienny
- poliwęglan-
- polke??
- polki
- pomarańczowych
- pomoc
- pomocy
- pomocy!
- pomocy!gdzie
- pomoże
- porcelanowe
- posiadanych
- poszukiwana
- poszukiwane
- poszukiwania
- poszukiwany
- poszukiwany!!!!
- poszukuję
- poznaniu
- półka
- półką...
- połysk
- prośba
- prostokątnej
- prostokątny
- prysznicowa
- prysznicowe?
- przedpokój krzesło
- przedpokoju
- pufki
- pufy
- płyte
- płytek
- płytka wanna
- płytki
- płytki.
- płytki?
- rattanu.
- retro
- retro panele ścienne lamperie
- roca
- rodzinka.pl
- rolety
- róż/fuksja
- różyczki
- rzymskie
- salonie
- salonu
- ściane
- ścianie
- ścienna
- sedesowej
- skąd?
- skandynawskich
- skośnego
- składane
- śmietankowe
- sofa
- sofy
- stare
- stelaż?
- stojącej
- stolikdo kawy
- stół
- stół 4 nogi
- styl angielski
- stylowa
- stylowe
- stylowe fronty
- stylowe wnętrza
- sufit
- suszarka
- świetlne
- swoich
- sypialni
- szablony-
- szafa
- szafa na wymiar
- szafę
- szafek
- szafka
- szafkami
- szafke
- szafki
- szare
- szare/srebrzyste
- szarych
- szczycie
- szeroki???
- szerokość
- szklana
- szklane stoliki
- szklanki
- sztucznego
- szukać
- szukam
- szukam...
- tabliczka
- taka
- taki
- takich
- takie
- tańszego
- tapeta
- tapete
- tapety
- tekstylia
- toledo
- turkusowa
- tylnym
- uchwyt
- uchwyty
- umywalkowa
- vives
- wanny
- warszawa
- wąskie
- wbudowanymi
- wentylacyjna
- wewnątrz
- widział
- wie
- wieszak
- wieszak uchylny
- wiszącej
- wkład
- wnękowa
- wnętrz-gdzie
- wnętrze
- wpust
- wpuszczane
- wyjściem.
- wykładzina
- wykładziny
- wymarzonego
- wyposażenie
- wysokim
- wyspy
- wzorem
- właczniki
- własnym
- zagubione
- zagłówkiem
- zakup
- żaluzja drewniana 35mm
- zamki
- zamowinie
- zaokrągloną
- zawiasów
- zbiornik
- zdjęcia
- zegar?
- zewnętrzne
- zielonych
- zlew
- zlew jedna komowa kuchnia
- zlewozmywak
- zlewu
- znajde
- znaleźć
- znaleźć?
- znaleznienu
- żółtych
- łazience
- łazienka
- łazienka grzejnik
- łazienki
- łazienki wnętrza
- łazienkowa
- łazienkowy
- łazienkowych
- łóżeczko
- łóżka
- łóżko
-
Aranżacja salon z aneksem kuchennym ok 26m2
Jakub_ odpowiedział Jakub_ → na topic → Projektowanie wnętrz
Alicyja_ Fajny pomysł wiem o co ci chodzi lecz nie da się wprowadzić tego w planerze ikei. Ana podoba mi się wersja z poziomymi szafkami ale nie widze takich w ikei. -
Aranżacja salon z aneksem kuchennym ok 26m2
Jakub_ odpowiedział Jakub_ → na topic → Projektowanie wnętrz
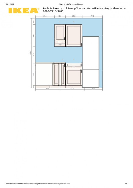
Ana, pomysł fajny dzięki za zdjęcia teraz widzę że tu błąd z tą wysoką zabudową. Ścianka będzie gipsowa malowana ciieńsza ze wzmocnieniem na tv wiszący ale nie z cegły. Ogólnie dodam/przypomne że całość planowana jest dla Singla więc nie wiem czy nie napchałem za dużo szafek jeszcze licze ile bedzie potrzebnych mniej więcje. Co do wiszących to nie będą pasować takie poziome przy moich frontach i uchwytach które wybrałem(ikea laxarby biała i uchwyty faglavik czarne) a pionowych nie chce witrynek itd tak więc wiszące odpadają. Może masz inną lepszą koncepcje jak by ustawić szafki, zawsze mile widziana. -
Aranżacja salon z aneksem kuchennym ok 26m2
Jakub_ odpowiedział Jakub_ → na topic → Projektowanie wnętrz
Witaj, Dziękuję za szybką odpowiedź, aneks oddzielony bedzie cczymś podobnym czyli ścianka przerwa scianka z tv i przerwa do okna. Lodówka napewno nie do zabudowy będzie wolnostojaca srebrna. Stół nie duży http://www.ikea.com/us/en/images/products/norden-gateleg-table-white__0104381_PE251365_S4.JPG taki pewnie w okolicach okna się ustawi. Jeżeli chodzi o wersje 2 to nie wyspa tylko oddzielenie by nie było tak masywnie i długiego ciągu. Wyspy nie chcę robić jedynie jak coś to tak przy ścianie jak na zdjęciu. -
Aranżacja salon z aneksem kuchennym ok 26m2
Jakub_ odpowiedział Jakub_ → na topic → Projektowanie wnętrz
Witam Troche zmian więc mam pytanie jak wam się widzą takie ustawenia szafek Koncepcja się zmieniła i nie chce dawać szafek wiszących. Chyba że macie jakieś inne sugestie kuchni dla singla, nie wiem czy nie zaduża będzie ta zabudowa. Mile widziane opinie i uwagi co jak itp -
Aranżacja salon z aneksem kuchennym ok 26m2
Jakub_ odpowiedział Jakub_ → na topic → Projektowanie wnętrz
No racja popracuje nad tym i zmienie. A jak lepiej bedzie praktycznie i wizualnie szafki wiszące słupek wysoki też dawać ?? Nie mam wizji jak to realnie będzie pierwszy raz aneks układam dotychczas osobną kuchnie miałem. -
Aranżacja salon z aneksem kuchennym ok 26m2
Jakub_ odpowiedział Jakub_ → na topic → Projektowanie wnętrz
A jak wam się widzi takie rozstawienie kuchni ? Wiadomo każdy woli inaczej ale inne spojrzenie zawsze mile widziane i inna opinia. -
Aranżacja salon z aneksem kuchennym ok 26m2
Jakub_ odpowiedział Jakub_ → na topic → Projektowanie wnętrz
@Kinka dziękuję za szybka odpowiedź. Jeśli ktoś ma jeszcze jakieś propozycje chętnie wezmę pod uwagę. -
Witam Wszystkich Proszę was o pomoc w aranżacji pokoju dziennego z aneksem, reszte pomieszczeń mam już rozplanowaną. Napewno meble kuchenne będą w tonacji biały/ jesion bielony, szary podłoga panel podobnie. O kolory nie pytam bo to kwestia gustu Tak więc nie będzie to pomniejszać pomieszczenia. Chciałbym zrobić kuchnie coś na wzór litery U/L (wyburzenia tej małej ścianki na razie nie brałem pod uwagę) i na końcu dać blat na szafkachach przy którym będzie można zjeść zamaist typowego stołu kuchennego. A propo szafek kuchennych nie wiem czy dawać szafki wiszące czy nie będą pomniejszać, czy przy tak jasnym pomieszczeniu nie ma to znaczenia. W załączonym rzucie widać wysuniętą ściankę kuchenną. W rzeczywistości ścianka w kuchni przedłużona jest o 80cm a tej 120cm nie ma. Wiadomo w pokoju dziennym będę spędzał czas dlatego też zastanawiam się nad tym gdzie powiesić telewizor i ustawić reszte sprzętu na szafce rtv (Gł/46,5 cm/Sz36,5 cm/W42 cm) . Nie wiem czy to moje złe przyzwyczjenienie czy jak ale lubie daleko siedzieć od tv. Do salonu zamierzam wstawić sofę 3osobową oraz 2 fotele. Jak macie jakieś pytania to jeszcze coś dopisze.
