 
        fabulous
Użytkownicy- 
                Liczba zawartości15
- 
                Rejestracja
Typ zawartości
Profile
Forum
Artykuły
Blogi
Pobrane
Sklep
Wydarzenia
Galeria
Zawartość dodana przez fabulous
- 
	Hej! My ciągle szukamy naszego gniazdka. Mamy 3 dni na podjęcie decyzji czy decydujemy się na jedno z tych mieszkań. Rodzina 2+2. Zależy mi na jak największej ilości szafek kuchennych, szaf, dwóch łazienkach. Super byłoby mieć małą saunę ale wiem że to raczej nierealne. Obawiam się pokoi dziecięcych 9m2. Macie jakieś pomysły na ciekawszy układ tych mieszkań? Które jest bardziej funkcjonalne? Mnie się wydaje, że to pierwsze, ale może jestem w błędzie?
- 
	Hej! Nasi sąsiedzi z mieszkania 2p planują je sprzedać. My mieszkamy w 3p, chcieliśmy zmienić na większe, ale lubimy tu mieszkać. Rozważamy zakup mieszkania od nich i połączenie. Na naszym osiedlu wiem o jednej takiej transakcji, była zgoda na połączenie lokali. Tylko zupełnie sobie nie wyobrażam nowego układu. Nie wiem czy gra w ogóle jest warta świeczki. Macie pomysl jak z tych dwóch mieszkań zrobić jedno ustawne? Zależy nam na sporej kuchni z salonem, sypialni, dwóch pokojach dziecięcych, dwóch łazienkach (1 z prysznicem, 2 z wanna). Dodatkowy „gabinet”, garderoby, spiżarnia, dużo szaf, baaaardzo miło widziane. Marzymy też o mini saunie w jednej z łazienek. Niestety póki co mam tylko taki plan, bez wymiarów dokładnych. Z góry baaardzo dziękujemy ❤️
- 
	Hej! Siostra jednak nie zdecydowała się na zakup poprzedniego mieszkania, teraz pojawiła się taka propozycja. Rodzina 2+2. Zależy nam na jak największej ilości szafek kuchennych, dużo szaf do przechowywania. Byłoby super gdyby obie łazienki miały wannę lub prysznic. Bardzo podoba nam się wizja garderoby. Mamy wrażenie, że ten długi korytarz to straszna strata miejsca. Macie może jakieś pomysły co zrobić, żeby zyskać na funkcjonalności? Za kilka dni mają spotkanie z deweloperem i zastanawiamy się czy to mieszkanie „to to”, czy szukać dalej Z góry wszystkim BARDZO dziękujemy ❤️❤️
- 
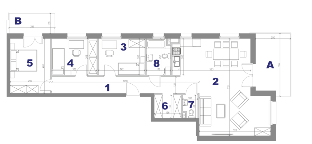
	Moja siostra stoi przed decyzją odnośnie zakupu mieszkania dla rodziny 2+2. Lokalizacja osiedla bardzo odpowiada jej rodzinie. Deweloper aktualnie posiada jedynie mieszkania o takim rozkładzie, który naszym zdaniem jest... kiepski. Olbrzymi korytarz, pokoje bardzo małe, kuchnia+ salon malutkie, mało miejsca na szafki kuchenne. Czy uważacie, że da się przestawić tak ściany, żeby mieszkanie zyskało na funkcjonalności? Najważniejsze dla nas jest powiększenie kuchni+ salonu.
- 3 odpowiedzi
- 
	
		- mieszkanie
- rozkład pomieszczeń
- 
					(i 1 więcej) 
					Oznaczone tagami: 
 
 
- 
	Układ funkcjonalny salonu z aneksemfabulous odpowiedział fabulous → na topic → Projektowanie wnętrz Elfir, jesteś GENIALNA! Jestem zachwycona! Wszystko bardzo mi się podoba, poza jedną rzeczą- zlew pod oknem. Mimo posiadania zmywarki, sporo zmywamy ręcznie, nie wyobrażam sobie życia bez suszarki w szafce nad zlewem. Masz pomysł jak to pogodzić? Bardzo Ci dziękuję za pomoc i poświęcony czas <3 PS Mamy jeszcze jedno, nieśmiałe marzenie… saunę w łazience. Najmniejsza jaką znalazłam to 110x110x190cm. Myślisz, że udałoby się ją gdzieś wcisnąć?
- 
	Układ funkcjonalny salonu z aneksemfabulous odpowiedział fabulous → na topic → Projektowanie wnętrz Cześć! Dzięki za pomysł! Obawiam się jednak, że ta kuchnia będzie za mała- ten ciąg szafek na ścianie od garderoby gdyby był wysoką zabudową to z blatu mam tylko wyspę, a gdzie zlew, płyta?
- 
	Hej! Proszę Was o pomoc w zaprojektowaniu salonu z kuchnią. Pomyślałam, ze postawimy ścianę w miejscu aneksu w projekcie i tym sposobem zyskam wymarzoną garderobę z oknem przy sypialni. Wtedy salon+ kuchnia byłby prostokątem o wymiarach 570x426cm. Bardzo zależy mi na jak największej ilości szafek, wysokiej zabudowie (min 3x60cm, chętnie 4x60cm), sporym blacie roboczym. Super gdyby zmieściła się wyspa/ półwysep, ale nie jest to must have. Ostatecznie jestem gotowa zrezygnować tez z garderoby. Czy macie pomysły jak to wszystko pomieścić? A może macie jakies pomysły jak inne ściany poprzesuwać, żeby mieszkanie było bardziej funkcjonalne? Jestesmy rodzinką 2+2, potrzebujemy tego dodatkowego pokoju na biuro/ pokoj godzinny wiec raczej nie chcielibyśmy zmniejszać ilości pomieszczeń Z góry Wam dziękuję za pomoc
- 
	Hej:) Ja szczęśliwie wykończyłam swoje mieszkanie, teraz pora na remont u mamy. Doradźcie proszę jak rozplanować szafki kuchenne tak, aby były najbardziej funkcjonalne (jak najwiecej miejsca do przechowywania). Ważne, żeby zlew nie był pod oknem (mama korzysta z ociekacza w szafce nad zlewem). Zależy nam tez na małym stoliku śniadaniowym i 3 krzesełkach w kuchni oraz na zmywarce 60cm. Niestety nie mam profesjonalnego rzutu kuchni, wiec pozwoliłam sobie ją narysować. Kuchnia od salonu oddzielona jest póki co wyspą 150cm. Będę wdzięczna za wszystkie porady <3
- 3 odpowiedzi
- 
	
		- aranżacja kuchni
- układ funkcjonalny
- 
					(i 1 więcej) 
					Oznaczone tagami: 
 
 
- 
	Stoimy przed wyborem stelaża wc. Zawsze wydawało mi się, że najlepsze są te geberita. Ostatnio jednak pani w Leroy Merlin przekonywała mnie, że lepsze są Grohe m.in. ze względu na przycisk pneumatyczny. Jak sądzicie, który wybrać? I drugie pytanie: czy to prawda, że lepiej kupić stelaż u zwykłego sprzedawcy, a nie w hipermarkecie budowlanym, bo znacząco różnią się jakością mimo tej samej marki?
- 
	Kochani! Pojawiła się opcja zamiany mieszkania: z tego powyżej które będzie gotowe dopiero we wrześniu na już oddane to. Deweloper jest gotowy dokonać drobnych zmian w układzie ścian tylko totalnie nie mam pomysłu jak to zrobić. Nadal chciałabym kuchnię w aneksie z salonem, sypialnię i dwa pokoiki dziecięce i sporo szaf do przechowywania. Nie podoba mi się tutaj w układzie niemal 10m2 hol, moim zdaniem to niepotrzebne marnowanie miejsca. Pomożecie?
- 
	Alicyja! Jestem absolutnie zachwycona Twoim projektem! Salon, sypialnia, ba!, pralnia! Jesteś genialna! BARDZO dziękuję! Zastanawiam się jeszcze nad tym, żeby tę małą łazienkę podzielić na dwa mniejsze pomieszczenia: wc z malutką umywalką i mini garderobę na ozdoby świąteczne, jakieś kurtki zimowe, wiadra, mopy, odkurzacz. Myślicie że jest sens dzielić i tak już małe pomieszczenie?
- 
	Właśnie kupiliśmy mieszkanie:) Ze względu na planowaną dwójkę dzieci chcielibyśmy kuchnię przenieść do salonu, a w jej miejsce zrobić pokój dziecięcy. Salon z aneksem ma powierzchnię 17,94. Chciałabym w miarę funkcjonalną kuchnię, stół dla 4 osób, jakiś mały regalik w salonie na książki, szkło itp. Czy to w ogóle może się udać? Kiedy sama projektowałam ustawiłam kuchnię tuż przy wejściu po lewej stronie w kształcie litery L, regalik z wiszącym telewizorem na ścianie po prawej stronie, naprzeciwko kanapę, pomiędzy stół i... wychodzi, że ciężko będzie się ruszyć. Nie chciałabym zagracić tego pomieszczenia, a jednocześnie lubię kiedy wszystko jest pochowane w szafkach.. Macie jakiś pomysł na zaaranżowanie tego pomieszczenia? Bardzo serdecznie dziękuję za każdą pomoc i załączam rzut (salon ma wymiar 375/482).

 
                     
                     
                     
                    .jpg.8558f98c1df93cee9785c8eedb4fce2d.jpg) 
                     
                     
                     
                    