Miesięcznik Murator ONLINE

Skocz do zawartości

Recommended Posts

no zeby dla jednej butelki oleju tyle kombinowac? ;) mozesz ta butelke rownie dobrze wsadzic do szafki wiszacej, albo do cargo kolo lodowki a na czas smazenia wyciagnac i postawic na blacie ;P :)
Odnośnik do komentarza
https://forum.murator.pl/topic/127930-projekt-kuchni-wizualizacje/page/411/#findComment-6119793
Udostępnij na innych stronach

  • Odpowiedzi 12,2k
  • Utworzony
  • Ostatnia odpowiedź

Najaktywniejsi w wątku

Najaktywniejsi w wątku

Dodane zdjęcia

mówię Wam oszaleje, a Wy przez moje marudzenie :D zobaczymy co projektantka odpisze na moje wątpliwości

Edit. Choć rzeczywiście skłaniam się ku opcji układu 14-28-28 dla wszystkich szafek

Edytowane przez AmelieJ
Odnośnik do komentarza
https://forum.murator.pl/topic/127930-projekt-kuchni-wizualizacje/page/411/#findComment-6119867
Udostępnij na innych stronach

forumowicze :) powiedzcie jak głęboka powinna być wnęka na lodówkę??

lodówka jest głęboka na 78,1cm - to powinno być 80cm czy więcej?? tak by się zlicowała ze ścianą, nic nie wystawała i nic nie była w głębi

Odnośnik do komentarza
https://forum.murator.pl/topic/127930-projekt-kuchni-wizualizacje/page/411/#findComment-6123555
Udostępnij na innych stronach

tez mi sie wlasnie to nie widzi- ale stolarz wlasnie stwierdzil ze tak jest ergonomicznie.

 

Zastanawialam sie aby stolik byl wlasnie w wykuszu a prawa strone zrobic takim klasycznym ciagiem.

 

 

Ten projekt tak wyglada bo wczesniej po prawej str ( wysoka zabudowa) byla spizarka, ktora zburzylam bo kuchnia byla mala i nie ustawna. chyba musze poprosic o inny projekt.

dzieki :>

Odnośnik do komentarza
https://forum.murator.pl/topic/127930-projekt-kuchni-wizualizacje/page/411/#findComment-6126593
Udostępnij na innych stronach

ponawiam :)

forumowicze :) powiedzcie jak głęboka powinna być wnęka na lodówkę??

lodówka jest głęboka na 78,1cm - to powinno być 80cm czy więcej?? tak by się zlicowała ze ścianą, nic nie wystawała i nic nie była w głębi

Odnośnik do komentarza
https://forum.murator.pl/topic/127930-projekt-kuchni-wizualizacje/page/411/#findComment-6126888
Udostępnij na innych stronach

Może tak:

 

http://images61.fotosik.pl/264/8ddf67ba61ed3b02.jpg

 

Od strony siedziska blat może byc wysuwany, by można było swobodnie usiąść.

Odnośnik do komentarza
https://forum.murator.pl/topic/127930-projekt-kuchni-wizualizacje/page/411/#findComment-6127356
Udostępnij na innych stronach

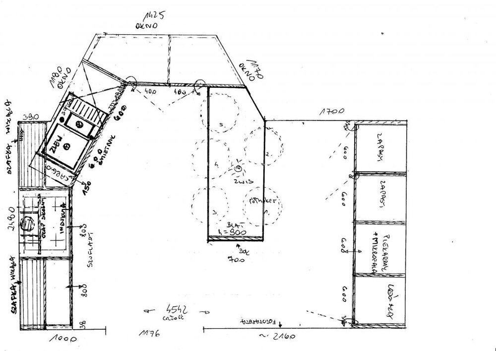
Agatomek wg mnie projekt nie jest funkcjonalny

- nie zabudowalabym wykusza to po 1 ......

- po 2 - rozumiem, ze woda jest na scianie prostej a nie juz w wykuszu ?? wtedy tam, gdzie kuchenka ze zlewem zrobic tylko ciag szafek ze zlewem (plus poziome wiszace, by bylo lekko)

- po 3 - wysoka zabudowa moze zostac tu gdzie jest ........

- po 4 :) plyte zrobilabym na wyspie, przy ktorej mozna umiescic np 3 szafki z plyta, a z drugiej strony w wyniku poszerzenia blatu wygospodarowac miejsce na 3 wyzsze krzesla

Odnośnik do komentarza
https://forum.murator.pl/topic/127930-projekt-kuchni-wizualizacje/page/411/#findComment-6127746
Udostępnij na innych stronach

Agatomek wg mnie projekt nie jest funkcjonalny

- nie zabudowalabym wykusza to po 1 ......

- po 2 - rozumiem, ze woda jest na scianie prostej a nie juz w wykuszu ?? wtedy tam, gdzie kuchenka ze zlewem zrobic tylko ciag szafek ze zlewem (plus poziome wiszace, by bylo lekko)

- po 3 - wysoka zabudowa moze zostac tu gdzie jest ........

- po 4 :) plyte zrobilabym na wyspie, przy ktorej mozna umiescic np 3 szafki z plyta, a z drugiej strony w wyniku poszerzenia blatu wygospodarowac miejsce na 3 wyzsze krzesla

 

Nam powiedzieli ze nasza kuchnia jest za mala na wyspe. A woda jest na prostej scianie i w wykuszu tez bo do zmywarki. I na tej scianie tez jest komin wentylacyjny.

Odnośnik do komentarza
https://forum.murator.pl/topic/127930-projekt-kuchni-wizualizacje/page/411/#findComment-6127844
Udostępnij na innych stronach

Nam powiedzieli ze nasza kuchnia jest za mala na wyspe. A woda jest na prostej scianie i w wykuszu tez bo do zmywarki. I na tej scianie tez jest komin wentylacyjny.

 

Wg rysynku wyliczylam, ze kuchnie masz dluga na niemal 4,8 m

zatem wyspe mozna ustawic prostopadle do zabudowy po prawej stronie, a tym samym do ciagu szafek ze zlewem po lewej stronie

wydaje mi sie, ze nawet taka wsypa 160x90 by sie zmiescila

okap moze byc w formie pochlaniacza z odpowiednim filtrem, podlaczany jedynie do pradu

wyciag w kominie wystarczy zakryc kratka, lub na suficie pociagnac zabudowane rury

 

szerokosc kuchni to ponad 2,4 m

od strony wykusza wyspa bylaby bez szafek, wiec przejscie moze byc wezsze

ale proponuje jak zawsze ustawic kartony lub styropian by zwizualizowac sobie cala dostepna przestrzen

 

 

Wersja druga - zabudowa i ciag szafek tylko ze zlewem, jak w wersji pierwszej, ale mozna zrobic polwysep na scianie zaraz za wykuszem

podobmie, jak w Twojej wersji umieszczono blat

ja jednak tam przenioslabym plyte, by nie robic dziwnych zlaman w kuchni

od strony zabudowy stalyby np 3 krzesla

Edytowane przez ~~slonko~~
Odnośnik do komentarza
https://forum.murator.pl/topic/127930-projekt-kuchni-wizualizacje/page/411/#findComment-6128118
Udostępnij na innych stronach

4,5 m na 2,4 ma ta moja kuchnia;

 

od lewej str jest 1m wtedy wejscie 1,17 no i pozostala sciana 2,16

w takim razie przepraszam .... nie wiem, jak to liczylam ......:oops:

 

w tej sytuacji pasuje jedynie wersja II

Odnośnik do komentarza
https://forum.murator.pl/topic/127930-projekt-kuchni-wizualizacje/page/411/#findComment-6128723
Udostępnij na innych stronach

Dołącz do dyskusji

Możesz dodać zawartość już teraz a zarejestrować się później. Jeśli posiadasz już konto, zaloguj się aby dodać zawartość za jego pomocą.

Gość
Odpowiedz w tym wątku

×   Wklejono zawartość z formatowaniem.   Usuń formatowanie

  Dozwolonych jest tylko 75 emoji.

×   Odnośnik został automatycznie osadzony.   Przywróć wyświetlanie jako odnośnik

×   Przywrócono poprzednią zawartość.   Wyczyść edytor

×   Nie możesz bezpośrednio wkleić grafiki. Dodaj lub załącz grafiki z adresu URL.




×
×
  • Dodaj nową pozycję...