Miesięcznik Murator ONLINE

Skocz do zawartości

Recommended Posts

  • Odpowiedzi 12,2k
  • Utworzony
  • Ostatnia odpowiedź

Najaktywniejsi w wątku

Najaktywniejsi w wątku

Dodane zdjęcia

Gość Nataliago
to byla tylko propozycja, nie znam rozmieszczenia przylaczy ;) w takim razie twoj pomysl jest wersja ostateczna? a moze chociaz przeniesc lodowke na sciane na przeciwko drzwi? mialabys wowczas wiecej blatu kolo kuchenki?

 

jeśli chodzi o układ to wersja jest ostateczna :) interesują mnie tylko podpowiedzi na temat detali, koloru blatu, koloru osprzętu, cokołu, lakobelu itd :)

 

 

A gdyby jeszcze przesunąć drzwi, to można we wnęce zmieścić witryny z porcelaną stołową, lub zrobić szafki-spiżarki.Co do kolorystyki, to przy w miarę ciemnych meblach i czarnych blacie oraz sprzęcie, podłogę zrobiłabym jasną, podobnie jak ściany. Czyli tak, jak planuszesz.

 

takie zmiany nie wchodzą wogóle w grę... ściany nośne itd...

Odnośnik do komentarza
https://forum.murator.pl/topic/127930-projekt-kuchni-wizualizacje/page/415/#findComment-6142167
Udostępnij na innych stronach

moniss, w moim drugim wątku, który założyłam, ponieważ z niewiadomych przyczyn tutaj się nic nie chciało dodać odpisałaś mi, i zaproponowałaś takie rozwiązanie http://forum.muratordom.pl/attachment.php?attachmentid=219292&d=1382102119 i chyba najbardziej jestem skłonna polubić ten pomysł :yes: Komin jest dokładnie za kuchnią tym rozkłądzie. Na tej ścianie obok drzwi mam przyłącza do wody, do gazu i komin [nie wiem czy specjalnie dedykowany do okapu, nie znam się na tym, a dom był budowany około 20 lat temu, a w tym pomieszczeniu dotej pory nie było nic :)] i wydaje mi się że jeżeli płytę by się zrobiło na tej ścianie prostopadłej do okna, to byłby jednak problem z okapem, natomiast przenieśc przyłącza wody pewnie jest mniejszym problemem.

 

Elfir Właśnie ze względu na te przyłącza które tam już istnieją ścisnęłam tak zlew i płytę. :) jakoś nie jestem sobie w stanie wyobrazić zlewu obok okna, Nie wiem dlaczego jakoś do mnie to nie trafia :p

 

annNS2 Dziękuję za 3cią wizualizację, szaleństwo, wszystko się zmieściło i jeszcze witrynka doszła :p

 

Pomyślałam jeszcze żeby zamiast lodówki obudowanej + zamrażalnik [będą to już dośc duże koszty] obudować lodówkę side by side w tym miejscu co pierwotnie planowałam. Wyobrażam sobie to mniej wiecej tak : http://www.homebook.pl/inspiracje/kuchnia/29375_lodowka-side-by-side-w-zabudowie-kuchnia-styl-nowoczesny . Mniej więcej, bo wiadomo że u mnie to nie jest we wnęce. dwa takie słupki [sądze że fajnym pomysłem są słupki wysokie cargo] mogłyby pełnić rolę takiej mini spiżarni.

Odnośnik do komentarza
https://forum.murator.pl/topic/127930-projekt-kuchni-wizualizacje/page/415/#findComment-6142175
Udostępnij na innych stronach

No niby wiem że daleko, odsunięta od blatów, ale jendak stół to też blat , na którym można ustawić coś co się wyjmie z lodówki :) Na tej kominowej ścianie są też przyłącza od wody, ale dośc blisko narożnika,

 

rzut.jpgwizu.jpgwizu2.jpgwizu3.jpg

 

zrobiłam taką małą wizualizację. Okap umieściłam w tym miejscu, bo dokładnie 110 cm od brzegu jest otwór w kominie, dlatego wydaje mi się, że jezeli na kominowej ścianie nie będzie szafek, to okap musi być dokładnie w miejscu tego otworu? Czy może się mylę?

Odnośnik do komentarza
https://forum.murator.pl/topic/127930-projekt-kuchni-wizualizacje/page/415/#findComment-6143291
Udostępnij na innych stronach

moj plan.jpg

 

powiedzcie co myslicie o takim ukladzie? moje takie przemyslenia.

 

prawdobodobnie beda to lakierowane fronty magnolia albo wanilia z czyms pomieszane- jeszcze nie wiem. bo nie che zwyklej plyty wiorowej.

Odnośnik do komentarza
https://forum.murator.pl/topic/127930-projekt-kuchni-wizualizacje/page/415/#findComment-6144282
Udostępnij na innych stronach

Mam inne zdanie. Na razie mieszkajac u rodzicow pracujemy w podobnym ukladzie i jest dobrze. Na zywo wyglada to tez inaczej- bo nie jest to duza kuchnia-lodowka jest pokazana np. Bo moze bedzie w drugim koncu zabudowy. Ten stol to tez nie ostatecznosc-fajnie jakby gdzies w kuchni bylo miejsce na posilek ale jak sie nie da to zrobimy w salonie. No to dus ratuj. Masz inny pomysl?
Odnośnik do komentarza
https://forum.murator.pl/topic/127930-projekt-kuchni-wizualizacje/page/415/#findComment-6144477
Udostępnij na innych stronach

agatomek5, czy naprawdę potrzebujecie aż tyle szafek w wysokiej zabudowie? Gdyby dało się zmniejszyć ich ilość można do Waszej kuchni wstawić stół kuchenny zamiast jego niewygodnej namiastki.

 

Jeśli dałoby się podciagnąć nieco dalej jedno ujęcie wody i kanalizację, to byłoby także wygoniej ze zlewem i zmywarką (podpięcie zlewu i zmywarki poprzez trójnik, a odpływ ze zmywarki do syfonu zlewu - taki z dodatkowym odgałęzieniem)A do tego można mieć oko na to co dzieje się na zewnątrz.

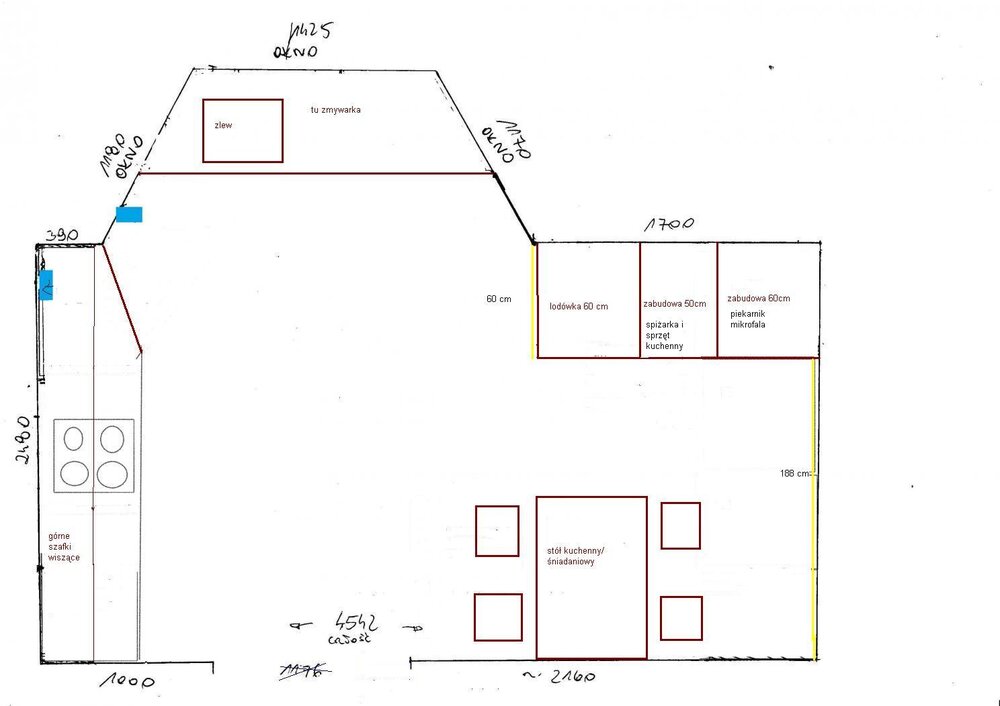
Przeniosłam lodówkę aby była bardziej pod ręką. W tym samym rzędzie okrojonej wysokiej zabudowy, umiejscowiłam też piekarnik i mikrofalówkę, dzięki czemu będzie więcej blatu roboczego przy kuchence (np. do panierowania przed smażeniem oraz wykańczania potraw po ich przyrządzeniu).

 

agatomek5_plan kuchni1.jpg

Edytowane przez moniss
Odnośnik do komentarza
https://forum.murator.pl/topic/127930-projekt-kuchni-wizualizacje/page/415/#findComment-6144730
Udostępnij na innych stronach

Zabudowa pod sufit bo nie ma spizarki a zlew wstepnie planuje przesunac do okna w wykuszu. Poza tym w aranzacji DUSI i w mojej droga od zlewu do lodowki jest prawie ta sama

 

 

Najbardziej pdoba mi się pomysł Dusi ze stolikiem w wykuszu. Lecz jeśli nie możecie całkiem zmnienić umiejscowienia instalacji, to trudno.... :(

Skoro i tak będą instalacje lekko przesuwane, to przesuń całkiem pod środkowe okno.

 

Jeśli potrzebujesz więcej miejsca do przechowywania wiktuałów, to wrzuciłam słupek z piekarnikiem pomownie na starą lokalizację.

A jeśli chodzi o szafki-spiżarki, to najwygodniej jest korzystać z szuflad (ja mam zwykłe szafki i cieżko coś tam znaleźć, bo trzeba powyjmować wszystko co stoi z przodu, aby siegnąć do produktów z tyłu).

agatomek5_plan kuchni.jpg

 

CIEKAWOSTKA:

Gdy moja znajoma ostatnio przymierzała się do remontu kuchni, rozryswała sobie na kartce wszystkie potrzebne szafki i pozaznaczałą gdzie co będzie trzymałą: gdzie kubki a gdze talerze, gdzie sztućce stołowe, a gdzie wszelkie mieszadła, gdzie garki i gdzie sprzęty kuchenne typu frytownica, czy robot kuchenny. Wszystko umieszczone zostało tak, aby było pod ręką tam gdzie zwykle się z tego korzysta (mieszadła przy płycie gazowej, kubki nad ekspresem do kawy itp.). Ona kilka razy w tygodniu używa piekarnika, więc ustawiła go w słupku, dokłądnie na wysokości oczu. Ja z kolei piekarnika używam sporadycznie, więc u mnie jest pod płytą. A jak u Was, czy często korzystacie z tego urządzenia? Jeśli nie, to może lepiej umieścić go pod palnikami, a słupek zlikwidować, lub umieścić w nim na odpowiedniej wysokości jakieś sprzęty, z których korzystacie częściej (np. talerze, misy, robot kuchenny).

Warto zrobić taką rozpiskę. Przemyślicie przed zamówieniem mebli, co mozecie trzymać w najwyższych szafkach słupków, bo jeśli mają być puste, to lepiej z nich zrezygnować - wyjdzie taniej. Może się też okazać, że wcale nie potrzebujecie tak wielu szafek, albo wręcz przeciwnie - potrzebujecie ich tak dużo że nawet barek się nie zmieści ;)

Edytowane przez moniss
Okrutnie dużo liter zjadam
Odnośnik do komentarza
https://forum.murator.pl/topic/127930-projekt-kuchni-wizualizacje/page/415/#findComment-6145435
Udostępnij na innych stronach

ja robilam dokladnie taka sama rozpiske

;) od poczatku wiedzialam gdzie co mam ;) gorzej jak przybywa nowych rzeczy a zal starych sie pozbyc :)

 

Hehe, to tak jak i u mnie. Przybywa zwłaszcza misek, miseczek, talerzy, talerzyków, kubków, filiżanek i czajniczków do herbaty :p

 

W nowym domu będę musiała zrobić specjalne miejsce na wszelką porcelanę - szafkę od podłogi po sufit ;)

Odnośnik do komentarza
https://forum.murator.pl/topic/127930-projekt-kuchni-wizualizacje/page/415/#findComment-6145833
Udostępnij na innych stronach

skoro taki niefajny widok, to tym bardziej - po co robić tam główny blat roboczy, przy którym będziesz spędzać większość czasu w ciągu dnia?

 

ale żeby nie odwracać kota ogonem - ja cię nawracać do mojej propozycji nie będę, bo to twoja kuchnia i twoje decyzje, i to ty będziesz się borykać z tymi problemami, które ci tu wytykamy przez kolejnych kilka-kilkanaście-kilkadziesiąt lat.

wskazuje dość istotne mankamenty - przede wszystkim absolutnie niefunkcjonalne dziwne narożniki i brak ergonomii na liniach płyta-zlew-lodówka (albo jedno na drugim, albo bieg z przeszkodami). inne są mniej istotne, ale te - moim zdaniem kluczowe. prawdą jest, że na forum zajrzałaś za późno - trzeba było rozważać jak się zmieni układ funkcjonalny pomieszczenia wtedy, gdy przesuwaliście ściany. teraz przebudowy są utrudnione i kosztowne. niemniej jednak - ja bym je rozważyła i przekalkulowała. z przyczyn, o których napisałam powyżej i w poprzednich postach.

choć jeśli mam być szczera - odnoszę wrażenie, że decyzje są już przez ciebie podjęte i trochę poszukujesz "klepnięcia" twojego zamysłu. przykro mi - nie dostrzegam w nim żadnego +.

Odnośnik do komentarza
https://forum.murator.pl/topic/127930-projekt-kuchni-wizualizacje/page/415/#findComment-6146577
Udostępnij na innych stronach

Nie szukam zaklepania to raz , a dwa- nie przesuwamy scian tylko robimy kuchnie w nowowybudowanym domu. W czasie gdy byly przylacza robione- bylam w szpitalu a maz sugerowal sie projektem zrobionym dla wersji ze spizarka. Wrzucilam wizualizacje aby poznac opinie i polaczyc ewentualne pomysly . Wiadomo ze wykonczeniowka zzera wiec troche mamy ograniczenia finansowei czasowe aby calkiem przerabiac przylacza- musimy jakos wybrnac :-) ale dzieki
Odnośnik do komentarza
https://forum.murator.pl/topic/127930-projekt-kuchni-wizualizacje/page/415/#findComment-6146679
Udostępnij na innych stronach

Wiem Dus ze wykusz jest malo ustawny dlatego glownie stawiam na zabudowe wysoka i po to zastanawiam sie czy ten piekarnik wlasnie dac po lewej stronie zamiast w zabudowie po prawej z lodowka. Tez jestem ciekawa co wyjdzie- pod wieczor dam znac
Odnośnik do komentarza
https://forum.murator.pl/topic/127930-projekt-kuchni-wizualizacje/page/415/#findComment-6147380
Udostępnij na innych stronach

Dołącz do dyskusji

Możesz dodać zawartość już teraz a zarejestrować się później. Jeśli posiadasz już konto, zaloguj się aby dodać zawartość za jego pomocą.

Gość
Odpowiedz w tym wątku

×   Wklejono zawartość z formatowaniem.   Usuń formatowanie

  Dozwolonych jest tylko 75 emoji.

×   Odnośnik został automatycznie osadzony.   Przywróć wyświetlanie jako odnośnik

×   Przywrócono poprzednią zawartość.   Wyczyść edytor

×   Nie możesz bezpośrednio wkleić grafiki. Dodaj lub załącz grafiki z adresu URL.




×
×
  • Dodaj nową pozycję...