Miesięcznik Murator ONLINE

Skocz do zawartości

Recommended Posts

wielka kuchnia :)

wywaliłabym półkę koło okapu a zlew dała pod oknem

ale jak zlew pod okno to przesunełabym jeszcze płytę do gotowania na prawo, żeby blatu roboczego między zlewem, a płytą było więcej

Odnośnik do komentarza
https://forum.murator.pl/topic/127930-projekt-kuchni-wizualizacje/page/83/#findComment-4319485
Udostępnij na innych stronach

  • Odpowiedzi 12,2k
  • Utworzony
  • Ostatnia odpowiedź

Najaktywniejsi w wątku

Najaktywniejsi w wątku

Dodane zdjęcia

ja bym plyty nie ruszala bo okap wejdzie na okno a blatu imho jest wystarczająco - przecież nie trzeba koniecznie przy piecu szatkować - chodzi o to żeby tam coś odłożyć
Odnośnik do komentarza
https://forum.murator.pl/topic/127930-projekt-kuchni-wizualizacje/page/83/#findComment-4319513
Udostępnij na innych stronach

@ psosin

Możesz podać wymiary kuchni? Rozkład i koncepcja b. podobna do mojej, tylko u mnie oba okna są w narożniku.Najbardziej interesują mnie słupki. Te 3 od lewej to 45, a potem dwa 60?

Odnośnik do komentarza
https://forum.murator.pl/topic/127930-projekt-kuchni-wizualizacje/page/83/#findComment-4320424
Udostępnij na innych stronach

tak 60 bo musi wejsc piekarnik.. wymiary dokładne musze poszukac..

http://lh3.ggpht.com/_ixzsC0gDalg/TH4fRiRaVeI/AAAAAAAAAKg/VidMVkeRapc/S%20kuchnia%20rzut%20z%20g%C3%B3ry.jpg

tutaj jeszcze troche widac...

ale dokładne wymiary musze sprawdzic.

Odnośnik do komentarza
https://forum.murator.pl/topic/127930-projekt-kuchni-wizualizacje/page/83/#findComment-4320427
Udostępnij na innych stronach

piekarnika nie mozemy przesunac bo juz jest dziura i rury w podwieszanym suficie do wyciagu, a zlew? jak przesune to sie okno przez kran nie otworzy?

piekarnik jest chyba okej? no sama nie wiem...

 

psosin miliony osób mają zlew pod oknem :) bo to ładne, bo to przyjemne tak myjąc gary oglądać świat... dlatego producenci baterii wymyślili baterie kuchenne podokienne które sie składają. kiedyś to były jednostkowe przypadki ale teraz wybór idzie w setki. nie słyszałaś o nich?

Odnośnik do komentarza
https://forum.murator.pl/topic/127930-projekt-kuchni-wizualizacje/page/83/#findComment-4320538
Udostępnij na innych stronach

dziewczyny, czy ja jeszcze mogę pomarudzić, bo muszę podjąć decyzję co do kuchni a jakoś weny brakło :(

jedna opcja jest taka, zabudowa L, zlew musi być umieszczony "prawie "pod oknem z lekkim przesunięciem, bo tak mam poprowadzone instalacje, a nie chcę już oglądać hydraulika:evil:, schody będą ażurowe całkiem otwarte

widok od przedpokoju

http://lh6.ggpht.com/_FbzN384BaQM/TKjbPypqChI/AAAAAAAACC0/F-y4niqaOtM/projkuchciemna.jpg

widok od salonu

http://lh4.ggpht.com/_FbzN384BaQM/TKjbQASjgAI/AAAAAAAACC4/Er6c1B6wPwM/projkuchciemna2.jpg

i w bieli

http://lh3.ggpht.com/_FbzN384BaQM/TKjbO_ADB6I/AAAAAAAACCs/1VdbNWCKKnA/projkuch1.jpg

http://lh6.ggpht.com/_FbzN384BaQM/TKjbPWdcWtI/AAAAAAAACCw/m_HYrtwSd74/projkuch2.jpg

druga opcja to zakręcona wysoka zabudowa plecami na schody, tak jakoś tak chciałam się od schodów trochę odciąć( niepokoi mnie ta ich bliskość przy kuchni) a młodzież marzy o barku ;)

http://lh3.ggpht.com/_FbzN384BaQM/TKj1nD_mKOI/AAAAAAAACDY/W73FVyvUgcg/s640/barek.jpg

http://lh3.ggpht.com/_FbzN384BaQM/TKj1pC3GUOI/AAAAAAAACDc/w0JI00ZVVI0/s640/barek2.jpg

 

mogę prosić o Wasze opinie?

w sumie to sprawa ustawienia jest otwarta ale niestety już mało czasu mi zostało, wymiar kuchni 3,10m ściana pełna, 3,8 ściana z oknem do miejsca gdzie stoi komin (w centrum mieszkania), a zabudowa może być do 4,3ok

Odnośnik do komentarza
https://forum.murator.pl/topic/127930-projekt-kuchni-wizualizacje/page/83/#findComment-4320637
Udostępnij na innych stronach

http://forum.muratordom.pl/attachment.php?attachmentid=

 

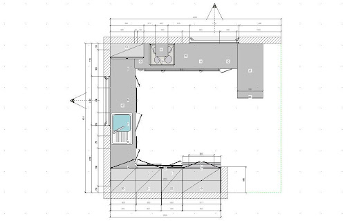
Witajcie, to mój projekt kuchni, sama już nic więcej nie wymyślę:) czy możecie mi podpowiedzieć co jescze można w niej udoskonalić? Wiem, że mam dużo wymiarów szafek, ale nie mam pomysłu jak to ujednolicić nie tracąc przy tym cennego miejsca. A moze rzucą wam się jakies uwagi krytyczne- chętnie je przyjmę:)

dzięki

Odnośnik do komentarza
https://forum.murator.pl/topic/127930-projekt-kuchni-wizualizacje/page/83/#findComment-4320868
Udostępnij na innych stronach

Dzięki psosin, to mi wystarczy.

U mnie będzie od lewej: lodówka w zabudowie, słupek z piekarnikiem i mikrofalą, słupek, roleta. 4 x po 60cm. Ale przy szerszej lodówce pewnie byłoby tak samo jak u Ciebie.

Odnośnik do komentarza
https://forum.murator.pl/topic/127930-projekt-kuchni-wizualizacje/page/83/#findComment-4320898
Udostępnij na innych stronach

Witajcie,

przepraszam,ale cś zdjęcie nie chciało sie załadować:)

to mój projekt kuchni, sama już nic więcej nie wymyślę czy możecie mi podpowiedzieć co jescze można w niej udoskonalić? Wiem, że mam dużo wymiarów szafek, ale nie mam pomysłu jak to ujednolicić nie tracąc przy tym cennego miejsca. A moze rzucą wam się jakies uwagi krytyczne- chętnie je przyjmę

dzięki

http://img259.imageshack.us/img259/6346/projektkuchni1b.jpg

Odnośnik do komentarza
https://forum.murator.pl/topic/127930-projekt-kuchni-wizualizacje/page/83/#findComment-4320904
Udostępnij na innych stronach

Zgadzam się z efilo. Poza tym można zawsze dać ciut wyżej okno, tak zeby nie chlapać okna itp.

 

nie ma opcji chlapania okna. przecież ono jest we wnęce - woda nie doleci do niego chyba że ktoś zakłada prysznic w zlewie ;)

Odnośnik do komentarza
https://forum.murator.pl/topic/127930-projekt-kuchni-wizualizacje/page/83/#findComment-4321042
Udostępnij na innych stronach

a co sądzicie o tym projekcie? kolor frontów będzie bardzo podobny do tego z porzedniego projektu, taki błyszczący bordo.

boki mebli będą szare, a blat prawie czarny granit.

 

http://img543.imageshack.us/img543/2459/projektkuchni2str2.png

 

http://img843.imageshack.us/img843/9104/projektkuchni2str1.png

Odnośnik do komentarza
https://forum.murator.pl/topic/127930-projekt-kuchni-wizualizacje/page/83/#findComment-4321330
Udostępnij na innych stronach

dziewczyny, czy ja jeszcze mogę pomarudzić, bo muszę podjąć decyzję co do kuchni a jakoś weny brakło :(

jedna opcja jest taka, zabudowa L, zlew musi być umieszczony "prawie "pod oknem z lekkim przesunięciem, bo tak mam poprowadzone instalacje, a nie chcę już oglądać hydraulika:evil:, schody będą ażurowe całkiem otwarte

widok od przedpokoju

http://lh6.ggpht.com/_FbzN384BaQM/TKjbPypqChI/AAAAAAAACC0/F-y4niqaOtM/projkuchciemna.jpg

widok od salonu

http://lh4.ggpht.com/_FbzN384BaQM/TKjbQASjgAI/AAAAAAAACC4/Er6c1B6wPwM/projkuchciemna2.jpg

i w bieli

http://lh3.ggpht.com/_FbzN384BaQM/TKjbO_ADB6I/AAAAAAAACCs/1VdbNWCKKnA/projkuch1.jpg

http://lh6.ggpht.com/_FbzN384BaQM/TKjbPWdcWtI/AAAAAAAACCw/m_HYrtwSd74/projkuch2.jpg

druga opcja to zakręcona wysoka zabudowa plecami na schody, tak jakoś tak chciałam się od schodów trochę odciąć( niepokoi mnie ta ich bliskość przy kuchni) a młodzież marzy o barku ;)

http://lh3.ggpht.com/_FbzN384BaQM/TKj1nD_mKOI/AAAAAAAACDY/W73FVyvUgcg/s640/barek.jpg

http://lh3.ggpht.com/_FbzN384BaQM/TKj1pC3GUOI/AAAAAAAACDc/w0JI00ZVVI0/s640/barek2.jpg

 

mogę prosić o Wasze opinie?

w sumie to sprawa ustawienia jest otwarta ale niestety już mało czasu mi zostało, wymiar kuchni 3,10m ściana pełna, 3,8 ściana z oknem do miejsca gdzie stoi komin (w centrum mieszkania), a zabudowa może być do 4,3ok

 

hej, jak dla mnie opcja druga jest ciekawsza. Masz zachowaną symetrię szafkową i stół / część jadalną w przestronnym miejscu. Poza tym fajnie jednaj jest widzieć choć kawałek kominka jedząc uroczyste kolacyjki ;)

Odnośnik do komentarza
https://forum.murator.pl/topic/127930-projekt-kuchni-wizualizacje/page/83/#findComment-4322057
Udostępnij na innych stronach

a co sądzicie o tym projekcie? kolor frontów będzie bardzo podobny do tego z porzedniego projektu, taki błyszczący bordo.

boki mebli będą szare, a blat prawie czarny granit.

 

http://img543.imageshack.us/img543/2459/projektkuchni2str2.png

 

http://img843.imageshack.us/img843/9104/projektkuchni2str1.png

 

A ten stolik nie będzie utrudniał otwieranie zamrażalnika? Ja bym zamieniła roletę miejscami z tymi półeczkami, byłoby bardziej symetrycznie moim zdaniem (nie wiem, co mnie dziś naszło z tą symetrią haha), ale chyba lepiej by to wizulanie wyglądało, jakbyś roletę "wsadziła" w kąt moim skromnym zdaniem. A tak, projekt jest super :)

Edytowane przez Róża
Odnośnik do komentarza
https://forum.murator.pl/topic/127930-projekt-kuchni-wizualizacje/page/83/#findComment-4322059
Udostępnij na innych stronach

Dzięki Róża

otóż tak naprawde to bym chciała miec tą rolete na całą szerokośc tej przerwy i nie miec tych polek zeby uniknąc bałaganu [juz te 2 mleczne szyby to dużo], ale chodzi o to że w rogu za tymi połkami jest wystający komin 20x20cm a w salonie kuchni nie mieli szerszych tych szafek z roletami. W ogóle w tym salonie to ta szafka z roletą nie jest zbyt głęboka.

w pierwszej wersji tam po prostu była zaślepka.

Ale pomysł rozważe, to czego się boję to że jak wcisnę szafkę zbyt głęboko to będzie ciężej dostac się do górnych półek.

 

 

A stolik nie powienien, poniewaz on będzie miał tylko 90cm szerokości, ściete boki i jest na tyle daleko od ściany że spokojnie drzwi od lodówki można otworzyc, więc chyba podobnie będzie z zamrażarnikiem

 

Dzięki za opinie.

 

Jeśli ktoś ma pomysł jaka podłoga to będę wdzieczna.

Ściany będa wyłożone płytka - jasny paradyż chyba, podobnie ściany, jasny, prawie wpadający w biel kolorek.

Edytowane przez nicol21
Odnośnik do komentarza
https://forum.murator.pl/topic/127930-projekt-kuchni-wizualizacje/page/83/#findComment-4322165
Udostępnij na innych stronach

Dołącz do dyskusji

Możesz dodać zawartość już teraz a zarejestrować się później. Jeśli posiadasz już konto, zaloguj się aby dodać zawartość za jego pomocą.

Gość
Odpowiedz w tym wątku

×   Wklejono zawartość z formatowaniem.   Usuń formatowanie

  Dozwolonych jest tylko 75 emoji.

×   Odnośnik został automatycznie osadzony.   Przywróć wyświetlanie jako odnośnik

×   Przywrócono poprzednią zawartość.   Wyczyść edytor

×   Nie możesz bezpośrednio wkleić grafiki. Dodaj lub załącz grafiki z adresu URL.




×
×
  • Dodaj nową pozycję...