Afera86 26.11.2013 09:49 Autor Zgłoś naruszenie Udostępnij Napisano 26 Listopada 2013 Ktoś coś ? Cytuj Odnośnik do komentarza https://forum.murator.pl/topic/183841-salon-z-jadalni%C4%85-kuchnia/page/2/#findComment-6202670 Udostępnij na innych stronach Więcej opcji udostępniania
Afera86 26.11.2014 17:14 Autor Zgłoś naruszenie Udostępnij Napisano 26 Listopada 2014 Witam ponownie Drodzy forumowicze bardzo proszę raz jeszcze o pomoc w rozplanowaniu parteru mieszkania. Nie potrafię sama z tym dojść do porozumienia Ścianę dzielącą salon i kuchnie mogę wyburzyć. Dodaje rzut i bardzo proszę was o pomoc. Pozdrawiam, A. Cytuj Odnośnik do komentarza https://forum.murator.pl/topic/183841-salon-z-jadalni%C4%85-kuchnia/page/2/#findComment-6653961 Udostępnij na innych stronach Więcej opcji udostępniania
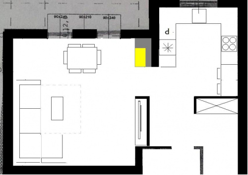
Afera86 16.05.2015 10:06 Autor Zgłoś naruszenie Udostępnij Napisano 16 Maja 2015 Rozrysowałam w ten sposób Może ktoś pomoże bo nie wiem jak z wymiarami, mile widziane wszystkie propozycje co zmienić żeby było bardziej funkcjonalnie. Boję się czy stól nie za blisko kominka bo chciałabym zeby miał 140 lub 160 cm dlugości a ten na rysunku chyba jest mniejszy. Narożnik 200x280 lub mniejszy 200x260. Cytuj Odnośnik do komentarza https://forum.murator.pl/topic/183841-salon-z-jadalni%C4%85-kuchnia/page/2/#findComment-6832859 Udostępnij na innych stronach Więcej opcji udostępniania
kinka 16.05.2015 11:46 Zgłoś naruszenie Udostępnij Napisano 16 Maja 2015 (edytowane) Ta ściana jest nośna,czy na pewno możesz ją wyburzyć..........? Stół w przejściu i siedzenie tyłem do kominka to kiepski pomysł.http://images67.fotosik.pl/893/03d971f6944146c0med.jpg Edytowane 16 Maja 2015 przez kinka Cytuj Odnośnik do komentarza https://forum.murator.pl/topic/183841-salon-z-jadalni%C4%85-kuchnia/page/2/#findComment-6832903 Udostępnij na innych stronach Więcej opcji udostępniania
Afera86 16.05.2015 12:25 Autor Zgłoś naruszenie Udostępnij Napisano 16 Maja 2015 (edytowane) Będzie musiał zostać podciąg nie może zostać wyburzona całkowicie do samej góry. Chce się jej pozbyć żeby było więcej miejsca. Tam gdzie teraz narysowałaś stół jest okno tarasowe przesuwne. Myślisz, że nie będzie kolidować ? Mi by narawde odowiadał ten układ co zaproponowalas, wystarczyło by przenieść wejście. Problem jest taki, że mój mąż chce sciane z tv chociaż 3 m Ten projekt mnie wykończy, za 2 tyg zaczynamy wykończenie a ja nadal nie wiem co z czym A moze w ten sposób żeby stół pod sciane dać tylko czy nie będzie to uciążliwe omijać go jak się idzie z korytarza Edytowane 16 Maja 2015 przez Afera86 Cytuj Odnośnik do komentarza https://forum.murator.pl/topic/183841-salon-z-jadalni%C4%85-kuchnia/page/2/#findComment-6832915 Udostępnij na innych stronach Więcej opcji udostępniania
Elfir 16.05.2015 14:28 Zgłoś naruszenie Udostępnij Napisano 16 Maja 2015 IMHO wysoką zabudowę i blat do jedzenia w kuchni zamienić miejscami. Cytuj Odnośnik do komentarza https://forum.murator.pl/topic/183841-salon-z-jadalni%C4%85-kuchnia/page/2/#findComment-6832954 Udostępnij na innych stronach Więcej opcji udostępniania
Afera86 16.05.2015 14:44 Autor Zgłoś naruszenie Udostępnij Napisano 16 Maja 2015 (edytowane) IMHO wysoką zabudowę i blat do jedzenia w kuchni zamienić miejscami. Why ? ze względu na bliskość płyty ? Edytowane 16 Maja 2015 przez Afera86 Cytuj Odnośnik do komentarza https://forum.murator.pl/topic/183841-salon-z-jadalni%C4%85-kuchnia/page/2/#findComment-6832961 Udostępnij na innych stronach Więcej opcji udostępniania
kinka 16.05.2015 16:41 Zgłoś naruszenie Udostępnij Napisano 16 Maja 2015 (edytowane) Może jeszcze tak:http://static.pokazywarka.pl/i/5876348/908871/guiiu.jpg Edytowane 17 Maja 2015 przez kinka Cytuj Odnośnik do komentarza https://forum.murator.pl/topic/183841-salon-z-jadalni%C4%85-kuchnia/page/2/#findComment-6833014 Udostępnij na innych stronach Więcej opcji udostępniania
Afera86 16.05.2015 17:17 Autor Zgłoś naruszenie Udostępnij Napisano 16 Maja 2015 (edytowane) Ten na prawde interesujący, tylko myslę czy wcześniejszej szafy nie zostawić po staremu bo boje się kolejnych kosztów przeróbek. Wtedy miałabym dwie szafy czego też do końca nie potrzebuje. Z drugiej strony schowków nigdy za wiele. A jakiś inny pomysl na tą wnękę niż szafa ? Zostały mi 2 tygodnie na podjęcie decyzji a ja nie wiem jeszcze nic I wytłumaczcie proszę czemu lepiej barek po tamtej stronie Edytowane 16 Maja 2015 przez Afera86 Cytuj Odnośnik do komentarza https://forum.murator.pl/topic/183841-salon-z-jadalni%C4%85-kuchnia/page/2/#findComment-6833029 Udostępnij na innych stronach Więcej opcji udostępniania
arek570 16.05.2015 20:13 Zgłoś naruszenie Udostępnij Napisano 16 Maja 2015 Uważam, że nie warto robić kuchni w kształcie litery G na takiej powierzchni, w mieszkaniu zdecydowanie bardziej przyda się dodatkowa szafa, chyba, że właścicielka jest zapaloną kucharką Stolik zostawałbym zgodnie z początkowymi pomysłami, osoby siedzące nie będą przeszkadzać w pracach kuchennych gospodyni. Cytuj Odnośnik do komentarza https://forum.murator.pl/topic/183841-salon-z-jadalni%C4%85-kuchnia/page/2/#findComment-6833122 Udostępnij na innych stronach Więcej opcji udostępniania
Afera86 16.05.2015 20:23 Autor Zgłoś naruszenie Udostępnij Napisano 16 Maja 2015 (edytowane) Uważam, że nie warto robić kuchni w kształcie litery G na takiej powierzchni, w mieszkaniu zdecydowanie bardziej przyda się dodatkowa szafa, chyba, że właścicielka jest zapaloną kucharką Stolik zostawałbym zgodnie z początkowymi pomysłami, osoby siedzące nie będą przeszkadzać w pracach kuchennych gospodyni. Dzięki wszystkim za odzew. Arek wlaśnie też dlatego tam zaplanowałam ten barek. Trochę boję się tych dwóch szaf, że ten hol zrobi sie ciemny jak bunkier Edytowane 16 Maja 2015 przez Afera86 Cytuj Odnośnik do komentarza https://forum.murator.pl/topic/183841-salon-z-jadalni%C4%85-kuchnia/page/2/#findComment-6833135 Udostępnij na innych stronach Więcej opcji udostępniania
Elfir 16.05.2015 20:26 Zgłoś naruszenie Udostępnij Napisano 16 Maja 2015 Why ? ze względu na bliskość płyty ? Żeby na osi widokowej nie stały wysokie sprzęty Cytuj Odnośnik do komentarza https://forum.murator.pl/topic/183841-salon-z-jadalni%C4%85-kuchnia/page/2/#findComment-6833140 Udostępnij na innych stronach Więcej opcji udostępniania
arek570 17.05.2015 07:47 Zgłoś naruszenie Udostępnij Napisano 17 Maja 2015 Dzięki wszystkim za odzew. Arek wlaśnie też dlatego tam zaplanowałam ten barek. Trochę boję się tych dwóch szaf, że ten hol zrobi sie ciemny jak bunkier [ATTACH=CONFIG]317360[/ATTACH] Odpowiedni dobór kolorów oraz materiałów pomoże rozwiązać problem. Cytuj Odnośnik do komentarza https://forum.murator.pl/topic/183841-salon-z-jadalni%C4%85-kuchnia/page/2/#findComment-6833275 Udostępnij na innych stronach Więcej opcji udostępniania
Afera86 17.05.2015 08:09 Autor Zgłoś naruszenie Udostępnij Napisano 17 Maja 2015 Z założenia mieszkanie ma być jasne, zabudowy pewnie białe, podłoga jasno szara lub też biała. Myślicie że moja koncepcja ze stołem na środku nie sprawdzi się ? Będzie zbyt mało miejsca na przejście ? Cytuj Odnośnik do komentarza https://forum.murator.pl/topic/183841-salon-z-jadalni%C4%85-kuchnia/page/2/#findComment-6833288 Udostępnij na innych stronach Więcej opcji udostępniania
arek570 17.05.2015 12:04 Zgłoś naruszenie Udostępnij Napisano 17 Maja 2015 (edytowane) Myślicie że moja koncepcja ze stołem na środku nie sprawdzi się ? Będzie zbyt mało miejsca na przejście ? http://images68.fotosik.pl/894/2e55479168824b2cgen.jpg Stół (160x90) 55cm od ściany, od stołu do krawędzi narożnika (260x200) masz niecale 65cm, dodaj krzesło... tak to wygląda:no:. Pomieszczenie wyrysowałem 515x490 starałem się trzymać proporcje, ale nie są 100% zgodne. Może warto zamienić ściankę z tv oraz narożnik. Pomieszczenie optycznie powiększy się, na stół będzie więcej miejsca. Edytowane 17 Maja 2015 przez arek570 Cytuj Odnośnik do komentarza https://forum.murator.pl/topic/183841-salon-z-jadalni%C4%85-kuchnia/page/2/#findComment-6833413 Udostępnij na innych stronach Więcej opcji udostępniania
Afera86 17.05.2015 12:51 Autor Zgłoś naruszenie Udostępnij Napisano 17 Maja 2015 (edytowane) arek570 dziękuje, boje się troche takiego zamkniętego salonu i do tego dochodzi mi taki zabudowany hol Jeden z forumowiczów pomógł mi rozrysować moją pierwotną wersje, może jednak pozostać przy tym Tylko z koleji martwi mnie przejscie przy stole czy nie będzie zbyt wąsko. Mogę jeszcze dać stół do boku, ale czy nie będzie przeszkadzał w wejściu z korytarza i czy nie będzie z koleji zbyt blisko drzwi do łazienki. Kanape mogę skrócić wtedy do 260 cm długości. Edytowane 17 Maja 2015 przez Afera86 Cytuj Odnośnik do komentarza https://forum.murator.pl/topic/183841-salon-z-jadalni%C4%85-kuchnia/page/2/#findComment-6833442 Udostępnij na innych stronach Więcej opcji udostępniania
arek570 18.05.2015 19:21 Zgłoś naruszenie Udostępnij Napisano 18 Maja 2015 Na takim metrażu darowałbym sobie stół na środku pomieszczenia, jego ciągłe omijanie szybko może stać się irytujące. Niewykorzystane miejsce za kanapą też razi. Dalej jestem za tym aby zamienić kanapę oraz tv, zauważyłem, że kinka już wyrysowała taką propozycję, wg mnie najlepsza opcja. Cytuj Odnośnik do komentarza https://forum.murator.pl/topic/183841-salon-z-jadalni%C4%85-kuchnia/page/2/#findComment-6834571 Udostępnij na innych stronach Więcej opcji udostępniania
Afera86 19.05.2015 11:59 Autor Zgłoś naruszenie Udostępnij Napisano 19 Maja 2015 Na takim metrażu darowałbym sobie stół na środku pomieszczenia, jego ciągłe omijanie szybko może stać się irytujące. Niewykorzystane miejsce za kanapą też razi. Dalej jestem za tym aby zamienić kanapę oraz tv, zauważyłem, że kinka już wyrysowała taką propozycję, wg mnie najlepsza opcja. Z chęcią też bym na nią przystała ale dla mojego męża ściana z tv jest wtedy za krótka bo on chce dlugą szafkę na rtv, po bokach kolumny i z tym nie wygram nigdy. Może stół i kominek w drugą strone: Cytuj Odnośnik do komentarza https://forum.murator.pl/topic/183841-salon-z-jadalni%C4%85-kuchnia/page/2/#findComment-6834979 Udostępnij na innych stronach Więcej opcji udostępniania
Recommended Posts
Dołącz do dyskusji
Możesz dodać zawartość już teraz a zarejestrować się później. Jeśli posiadasz już konto, zaloguj się aby dodać zawartość za jego pomocą.