cristoteles 18.06.2017 15:26 Zgłoś naruszenie Udostępnij Napisano 18 Czerwca 2017 Witam, Planuję zrobić WM korzystając z usług firmy wentylacyjnej. Mam wstępny projekt rozprowadzenia instalacji. Rury do rozprowadzenia na strychu mają być* spiro, natomiast kanały na poziomie podłogi poddasza mają być prostokątne (styropian na podłodze ma 5 cm). W instalacji mają się pojawić przepustnice oraz tłumik. Rekuperator dobrany to Bartosz Vena siler plus 350. Czy ktoś mógłby zerknąć na ten projekt i podpowiedzieć czy firma wentylacyjna odpowiednio zaplanowała instalację. Cała instalację mam wyceniona na blisko 18000 zł z pisemną umową. Teoretycznie mogę spać spokojnie, ale licho nie śpi , więc wolę dopytać się na forum. Strych https://drive.google.com/file/d/0B0MIOwYJhYyZZjNra1lsdXZoS3c/view?usp=drivesdk Poddasze https://drive.google.com/file/d/0B0MIOwYJhYyZYWQyRXpaN3l4Tm8/view?usp=drivesdk Parter https://drive.google.com/file/d/0B0MIOwYJhYyZVU1oUXk5c3RxUlk/view?usp=drivesdk Odnośnik do komentarza https://forum.murator.pl/topic/185805-sam-robi%C4%99-wentylacj%C4%99/page/128/#findComment-7367346 Udostępnij na innych stronach Więcej opcji udostępniania
oszczednyGrześ 19.06.2017 08:33 Zgłoś naruszenie Udostępnij Napisano 19 Czerwca 2017 Witam, Planuję zrobić WM korzystając z usług firmy wentylacyjnej. Mam wstępny projekt rozprowadzenia instalacji. Rury do rozprowadzenia na strychu mają być* spiro, natomiast kanały na poziomie podłogi poddasza mają być prostokątne (styropian na podłodze ma 5 cm). W instalacji mają się pojawić przepustnice oraz tłumik. Rekuperator dobrany to Bartosz Vena siler plus 350. Czy ktoś mógłby zerknąć na ten projekt i podpowiedzieć czy firma wentylacyjna odpowiednio zaplanowała instalację. Cała instalację mam wyceniona na blisko 18000 zł z pisemną umową. Teoretycznie mogę spać spokojnie, ale licho nie śpi , więc wolę dopytać się na forum. Strych https://drive.google.com/file/d/0B0MIOwYJhYyZZjNra1lsdXZoS3c/view?usp=drivesdk Poddasze https://drive.google.com/file/d/0B0MIOwYJhYyZYWQyRXpaN3l4Tm8/view?usp=drivesdk Parter https://drive.google.com/file/d/0B0MIOwYJhYyZVU1oUXk5c3RxUlk/view?usp=drivesdk Żadne spiro i nie ta cena. Na resztę popatrze później i dam znać. Odnośnik do komentarza https://forum.murator.pl/topic/185805-sam-robi%C4%99-wentylacj%C4%99/page/128/#findComment-7367588 Udostępnij na innych stronach Więcej opcji udostępniania
cristoteles 19.06.2017 20:15 Zgłoś naruszenie Udostępnij Napisano 19 Czerwca 2017 Żadne spiro i nie ta cena. Na resztę popatrze później i dam znać. Będę bardzo wdzięczny za wszelkie uwagi Odnośnik do komentarza https://forum.murator.pl/topic/185805-sam-robi%C4%99-wentylacj%C4%99/page/128/#findComment-7367884 Udostępnij na innych stronach Więcej opcji udostępniania
oszczednyGrześ 19.06.2017 20:24 Zgłoś naruszenie Udostępnij Napisano 19 Czerwca 2017 Będę bardzo wdzięczny za wszelkie uwagi Wentylację zrobić na flexach antybakteryjnych i rozdzielaczach oraz skrzynkach rozprężnych to raz. Dwa nie pchać się w żadne bartosze tylko wybrać solidny rekuperator powiedzmy airpack od thessli green. Kolega z okolic Nowego Sącza? Odnośnik do komentarza https://forum.murator.pl/topic/185805-sam-robi%C4%99-wentylacj%C4%99/page/128/#findComment-7367893 Udostępnij na innych stronach Więcej opcji udostępniania
cristoteles 19.06.2017 22:06 Zgłoś naruszenie Udostępnij Napisano 19 Czerwca 2017 Wentylację zrobić na flexach antybakteryjnych i rozdzielaczach oraz skrzynkach rozprężnych to raz. Dwa nie pchać się w żadne bartosze tylko wybrać solidny rekuperator powiedzmy airpack od thessli green. Kolega z okolic Nowego Sącza? Obecnie na ścianach mam tynki, oraz wylewkę na strychu, wylewki nie ma narazie jedynie na podłodze poddasza. Niestety grubość styropianu na poddaszu to 5 cm. Oprócz w ścianach położone są instalacje. Na początku budowy nie przewidywałem WM i stąd ta sytuacja. Czy flexy mają w takim przypadku rację bytu? Na upartego mogę powycinać kanały na flexy w wylewce na strychu. A czy rekuperator Bartosza to niezbyt trafiony wybór? Dom buduje pod Sączem. Odnośnik do komentarza https://forum.murator.pl/topic/185805-sam-robi%C4%99-wentylacj%C4%99/page/128/#findComment-7367951 Udostępnij na innych stronach Więcej opcji udostępniania
mate166gmail.com 20.06.2017 07:31 Zgłoś naruszenie Udostępnij Napisano 20 Czerwca 2017 Jakiś czas temu podszedłem do tematu WM i z pomocą forumowego Grzesia udało się wszystko skompletować i wstępnie zamontować. Efekt poniżej na fotkach. Montowałem sam, a przy skrzynkach u góry z pomocą Taty. Samemu cholernie ciężko byłoby wpasować taką ilość rur do skrzynek. Odnośnik do komentarza https://forum.murator.pl/topic/185805-sam-robi%C4%99-wentylacj%C4%99/page/128/#findComment-7368023 Udostępnij na innych stronach Więcej opcji udostępniania
asolt 20.06.2017 11:13 Zgłoś naruszenie Udostępnij Napisano 20 Czerwca 2017 Wentylację zrobić na flexach antybakteryjnych i rozdzielaczach oraz skrzynkach rozprężnych to raz. Dwa nie pchać się w żadne bartosze tylko wybrać solidny rekuperator powiedzmy airpack od thessli green. Kolega z okolic Nowego Sącza? Mozesz podac wady bartosza i zalety theslii green? Odnośnik do komentarza https://forum.murator.pl/topic/185805-sam-robi%C4%99-wentylacj%C4%99/page/128/#findComment-7368171 Udostępnij na innych stronach Więcej opcji udostępniania
kicaj222 20.06.2017 17:23 Zgłoś naruszenie Udostępnij Napisano 20 Czerwca 2017 (edytowane) Nie wiem jak rozdzielić wentylację pomiędzy górą a dołem oto dwa scenariusze który będzie lepszy?rekuperator umieszczony na parterzeOpcja 1nawiew: rekuperator> trójnik Y180/2x125 z trójnika > > przewód 125 np spiro > skrzynka rozdzielcza wejście 1x125 > wyjście 4x rura peflex 75 mm,fi wewn.63mm parter > przewód 125 np spiro > skrzynka rozdzielcza wejście 1x125 > wyjście 4x rura peflex 75 mm,fi wewn.63mm piętro Wyciąg: rekuperator> trójnik Y180/2x125 z trójnika idzie>> przewód 125 np spiro > skrzynka rozdzielcza wejście 1x125 > wyjście 4x rura peflex 75 mm,fi wewn.63mm parter > przewód 125 np spiro > skrzynka rozdzielcza wejście 1x125 > wyjście 4x rura peflex 75 mm,fi wewn.63mm piętro Opcja 2 nawiew: rekuperator> kanał180 > skrzynka rozdzielcza > 8x rura peflex 75 mm,fi wewn.63mm przewody rozprowadzić po parterze i piętrze Wyciąg: rekuperator> kanał180 > skrzynka rozdzielcza > 8x rura peflex 75 mm,fi wewn.63mm przewody rozprowadzić po parterze i piętrze Edytowane 20 Czerwca 2017 przez kicaj222 Odnośnik do komentarza https://forum.murator.pl/topic/185805-sam-robi%C4%99-wentylacj%C4%99/page/128/#findComment-7368328 Udostępnij na innych stronach Więcej opcji udostępniania
oszczednyGrześ 20.06.2017 20:20 Zgłoś naruszenie Udostępnij Napisano 20 Czerwca 2017 Obecnie na ścianach mam tynki, oraz wylewkę na strychu, wylewki nie ma narazie jedynie na podłodze poddasza. Niestety grubość styropianu na poddaszu to 5 cm. Oprócz w ścianach położone są instalacje. Na początku budowy nie przewidywałem WM i stąd ta sytuacja. Czy flexy mają w takim przypadku rację bytu? Na upartego mogę powycinać kanały na flexy w wylewce na strychu. A czy rekuperator Bartosza to niezbyt trafiony wybór? Dom buduje pod Sączem. Jaki to ten Bartosz? Odnośnik do komentarza https://forum.murator.pl/topic/185805-sam-robi%C4%99-wentylacj%C4%99/page/128/#findComment-7368460 Udostępnij na innych stronach Więcej opcji udostępniania
cristoteles 21.06.2017 05:30 Zgłoś naruszenie Udostępnij Napisano 21 Czerwca 2017 Jaki to ten Bartosz? Centrala wentylacyjna VENA Silver Plus VS.P.3EC z automatyką sterująca STW-2 /EC /EC-B. A jak ma się sprawa dobranych przekrojów rur? Czy będą one prawidłowe, aby ta instalacja była cicha? Czy obligatoryjne wstawienie tłumika ma na celu wybaczyć błędy montażowe czy też projektowe? Przeglądałem forum i wydaje mi się, że taki tłumik akustyczny pojawia się w instalacjach domowych bardzo rzadko. Odnośnik do komentarza https://forum.murator.pl/topic/185805-sam-robi%C4%99-wentylacj%C4%99/page/128/#findComment-7368560 Udostępnij na innych stronach Więcej opcji udostępniania
oszczednyGrześ 21.06.2017 05:59 Zgłoś naruszenie Udostępnij Napisano 21 Czerwca 2017 Centrala wentylacyjna VENA Silver Plus VS.P.3EC z automatyką sterująca STW-2 /EC /EC-B. A jak ma się sprawa dobranych przekrojów rur? Czy będą one prawidłowe, aby ta instalacja była cicha? Czy obligatoryjne wstawienie tłumika ma na celu wybaczyć błędy montażowe czy też projektowe? Przeglądałem forum i wydaje mi się, że taki tłumik akustyczny pojawia się w instalacjach domowych bardzo rzadko. Ja nie wrzucam w domu żadnych dedykowanych tłumików. Ale robiąc na blaszanych to się zdarza. Tak jak pisałem, z blaszanych zrezygnować. Odnośnik do komentarza https://forum.murator.pl/topic/185805-sam-robi%C4%99-wentylacj%C4%99/page/128/#findComment-7368579 Udostępnij na innych stronach Więcej opcji udostępniania
marek222 21.06.2017 10:17 Zgłoś naruszenie Udostępnij Napisano 21 Czerwca 2017 Witam Serdecznie, Mam pytanie do Pana Grzegorza jak i do innych szanownych forumowiczów. Chodzi mi konkretnie o rodzaj rur od reku do skrzynek rozdzielczych. Na oku mam nierdzewne spiro, skrzynki nierdzewne i flexy. Czy rury sztywne nierdzewne będą miały jakieś wady oprócz swojej ceny? Czy na odcinku gdzie będę posiadał Spiro 4m (fi200) - skrzynka - flex3m(fi70) hałas może być słyszalny? Co będzie lepsze jeżeli popatrzymy przez pryzmat cichej pracy wentylacji? Zaizolowane wełną spiro, czy kanały elastyczne? Oprócz tego pytanie z innej beczki do użytkowników Airpacka 400, czy w czasie nocy gdy reku pracuje na 40%, to czy nic nie szumi? Odnośnik do komentarza https://forum.murator.pl/topic/185805-sam-robi%C4%99-wentylacj%C4%99/page/128/#findComment-7368702 Udostępnij na innych stronach Więcej opcji udostępniania
oszczednyGrześ 21.06.2017 13:06 Zgłoś naruszenie Udostępnij Napisano 21 Czerwca 2017 Witam Serdecznie, Mam pytanie do Pana Grzegorza jak i do innych szanownych forumowiczów. Chodzi mi konkretnie o rodzaj rur od reku do skrzynek rozdzielczych. Na oku mam nierdzewne spiro, skrzynki nierdzewne i flexy. Czy rury sztywne nierdzewne będą miały jakieś wady oprócz swojej ceny? Czy na odcinku gdzie będę posiadał Spiro 4m (fi200) - skrzynka - flex3m(fi70) hałas może być słyszalny? Co będzie lepsze jeżeli popatrzymy przez pryzmat cichej pracy wentylacji? Zaizolowane wełną spiro, czy kanały elastyczne? Oprócz tego pytanie z innej beczki do użytkowników Airpacka 400, czy w czasie nocy gdy reku pracuje na 40%, to czy nic nie szumi? Połączenie do reku zalecane jest robić na kanałach elastycznych. Oczywiście kanały elastyczne są bardziej "ciche". Ja często na nawiew polecam elastyczny antybakteryjny izolowany. Wywiew może być na zwykłym lub spiro ale bezpośrednie połączenia z reku robić na elastykach. te 40% to ile m3/h? Odnośnik do komentarza https://forum.murator.pl/topic/185805-sam-robi%C4%99-wentylacj%C4%99/page/128/#findComment-7368802 Udostępnij na innych stronach Więcej opcji udostępniania
marek222 21.06.2017 16:03 Zgłoś naruszenie Udostępnij Napisano 21 Czerwca 2017 Te 40% to jakieś 150m3/h... w zależności od oporów, ciśnienia statycznego... bo jakie duże może być na małej instalacji 100Pa? W sumie czy te 150m3 wystarczy dla 103m2 domu? Za dużo? Za mało? Panie Grzegorzu czy będzie jakaś znacząca różnica, jeżeli instalacje wykonam na spiro? Rekuperator będę miał w kotłowni, jakieś 7 metrów rur porozwieszanych w kątach. Nie ukrywam, że lepiej byłoby to ogarnąć w sztywnych i solidnych rurach. Elastyczne będą wyglądały nieco nieestetycznie i będą bardziej podatne na uszkodzenia. Odnośnik do komentarza https://forum.murator.pl/topic/185805-sam-robi%C4%99-wentylacj%C4%99/page/128/#findComment-7368835 Udostępnij na innych stronach Więcej opcji udostępniania
Michalgosc 21.06.2017 18:28 Zgłoś naruszenie Udostępnij Napisano 21 Czerwca 2017 (edytowane) Ja też robię sam tzn z pomocą forum:) rury elastyczne łatwo sie układa i wyglądają estetyczne, mimo ze są ładne zdecydowałem sie ukryć je w suficie podwieszanym. reku bedzie na ocieplonym stryszku centralny punkt w domu kanały są w miarę równej długości od 6 do 8 metrów, ale mam pytanie jaka moze byc minimalna odległość od reku do skrzynki rozdzielczej? ?? Edytowane 21 Czerwca 2017 przez Michalgosc Odnośnik do komentarza https://forum.murator.pl/topic/185805-sam-robi%C4%99-wentylacj%C4%99/page/128/#findComment-7368883 Udostępnij na innych stronach Więcej opcji udostępniania
Stermaj 21.06.2017 19:07 Zgłoś naruszenie Udostępnij Napisano 21 Czerwca 2017 Tak z ciekawości, widzę zapewne nawiew nad oknem, czy nie za blisko ściany. Wypływające powietrze będzie odbijać się od ściany. Czy nie lepiej trochę dalej od okna. Marek Odnośnik do komentarza https://forum.murator.pl/topic/185805-sam-robi%C4%99-wentylacj%C4%99/page/128/#findComment-7368899 Udostępnij na innych stronach Więcej opcji udostępniania
Michalgosc 21.06.2017 19:17 Zgłoś naruszenie Udostępnij Napisano 21 Czerwca 2017 To jest wyciąg z kuchni. Odnośnik do komentarza https://forum.murator.pl/topic/185805-sam-robi%C4%99-wentylacj%C4%99/page/128/#findComment-7368904 Udostępnij na innych stronach Więcej opcji udostępniania
bartm71 07.07.2017 16:59 Zgłoś naruszenie Udostępnij Napisano 7 Lipca 2017 Witam wszystkich.W przyszłym tygodniu będę robił wentylacje u siebie w domku, zastanawiam się czy robić wywiew w pomieszczeni technicznym jest dosyć spore będzie tam kocioł kondensacyjny, pralka, reku, mały warsztacik w którym będę spędzał sporo czasu, oraz pewnie będzie się tam suszyć pranie w zimę. Proszę doradźcie czy robić czy nie?Pozdrawiam Odnośnik do komentarza https://forum.murator.pl/topic/185805-sam-robi%C4%99-wentylacj%C4%99/page/128/#findComment-7376316 Udostępnij na innych stronach Więcej opcji udostępniania
oszczednyGrześ 07.07.2017 17:48 Zgłoś naruszenie Udostępnij Napisano 7 Lipca 2017 Witam wszystkich. W przyszłym tygodniu będę robił wentylacje u siebie w domku, zastanawiam się czy robić wywiew w pomieszczeni technicznym jest dosyć spore będzie tam kocioł kondensacyjny, pralka, reku, mały warsztacik w którym będę spędzał sporo czasu, oraz pewnie będzie się tam suszyć pranie w zimę. Proszę doradźcie czy robić czy nie? Pozdrawiam Powiadasz że będzie tam kondensat a zatem Wentylacja musi się tam znaleźć. Odnośnik do komentarza https://forum.murator.pl/topic/185805-sam-robi%C4%99-wentylacj%C4%99/page/128/#findComment-7376324 Udostępnij na innych stronach Więcej opcji udostępniania
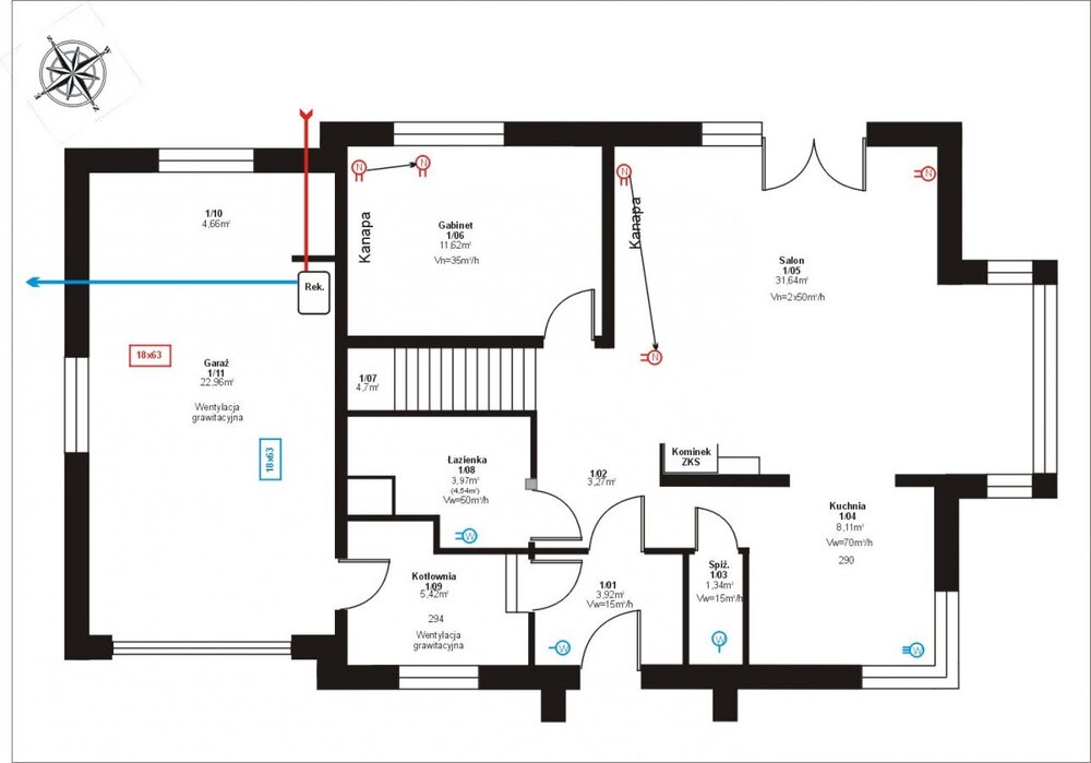
Hardy 08.07.2017 14:37 Zgłoś naruszenie Udostępnij Napisano 8 Lipca 2017 Witam serdecznie, jestem na etapie fundamentów ale chciałem zaplanować prace związane z wentylacją mechaniczną. Wklejam zrobione projekty i proszę o sugestie. Projekt wentylacji kupiony z projektem domu, ale mam kilka wątpliwości. W projekcie: AERIS 350 (prawy) - raczej takiego nie kupię z uwagi na cenę. Przewody R-VENT 63mm Skrzynki rozprężne 3x63 L350mm z anemostatem An i Aw 125mm 2 kolektory główne 18x63 3 tłumiki akustyczne okrągłe.... to tak z grubsza Kotłownia, piec gazowy kondensacyjny - tu nie zaprojektowano nawiewu - słusznie?. Na parterze przesunąłem anemostaty znad tapczanów w inne miejsce. W wiatrołapie zostaje wywiew moim zdaniem z uwagi na eliminację zapachów (z zewnątrz, ubrań, butów!) i korzystny wpływ na cyrkulację powietrza. Prawdopodobnie w pokoju nad garażem nie będzie garderoby i zostanie zlikwidowany Aw i może dodany jedenkanał w łazience. Na rysunku ilość kresek oznacza ilość kanałów 63mm do skrzynek rozprężnych. Vn=Vw - 295m3/h Wentylacja grawitacyjna i tak będzie wykonana - tylko pozostanie zaślepiona gdzie trzeba. Proszę zwróćcie uwagę na lokalizację czerpni/wyrzutni (wschód/południe) - czy jest ok? Kominek z zamkniętą komorą spalania i tu nie wiem czy płaszcz wodny, czy jakoś da radę DGP zrobić czy ciepło z kominka zostanie rozprowadzone tylko wentylacją. Dół poza garażem podłogówka, na piętrze grzejniki poza łazienką gdzie to i to. Będę wdzięczy za wszelkie sugestie. Odnośnik do komentarza https://forum.murator.pl/topic/185805-sam-robi%C4%99-wentylacj%C4%99/page/128/#findComment-7376503 Udostępnij na innych stronach Więcej opcji udostępniania
Recommended Posts
Jeśli chcesz dodać odpowiedź, zaloguj się lub zarejestruj nowe konto
Jedynie zarejestrowani użytkownicy mogą komentować zawartość tej strony.
Zarejestruj nowe konto
Załóż nowe konto. To bardzo proste!
Zarejestruj sięZaloguj się
Posiadasz już konto? Zaloguj się poniżej.
Zaloguj się