franco78 19.03.2015 10:10 Zgłoś naruszenie Udostępnij Napisano 19 Marca 2015 Korzystam z takich wyrzutni, izolowany kanał idzie do samego końca, a cały przewód kończy się ładną, metalową wyrzutnią Warto pamiętać, żeby wyrzutnie dachową izolować do samego końca przewodu. [ATTACH=CONFIG]309311[/ATTACH] Dzięki, tylko wszytkie dachóki są już założone, brakuje tylko wentylacyjnych, które trzeba wymienić za zwykłe. Teraz chyba za póżno na wstawienie takiej wyrzutni... Cytuj Odnośnik do komentarza https://forum.murator.pl/topic/185805-sam-robi%C4%99-wentylacj%C4%99/page/26/#findComment-6783133 Udostępnij na innych stronach Więcej opcji udostępniania
Andrzej5101 19.03.2015 13:50 Zgłoś naruszenie Udostępnij Napisano 19 Marca 2015 Eleganckie Wyrzutnie - w różnych rozmiarach Cytuj Odnośnik do komentarza https://forum.murator.pl/topic/185805-sam-robi%C4%99-wentylacj%C4%99/page/26/#findComment-6783397 Udostępnij na innych stronach Więcej opcji udostępniania
JandJ 19.03.2015 15:07 Zgłoś naruszenie Udostępnij Napisano 19 Marca 2015 (edytowane) Witam, i ja chcę zrobić wentylację mechaniczną sam. Czy ktoś mógł by się wypowiedzieć na temat mojego projektu? wszystkie kanały pe-flex fi50 prowadzone w posadzce parteru widoczne rozgałęzienia to rozgałęzienie typu Y skrzynka 1 - wchodzi kanał z reku fi250 -wychodzi 6xfi50 i fi225 (na parter) skrzynka 2 - wchodzi kanał z reku fi250 - wychodzi 5xfi50 i fi225 (na parter) wszystkie kanały to pe-flex fi 75 poprowadzone w posadzce poddasza wszytskie rozgałęzienia są typu Y skrzynka 1 - wejście fi225 - wyjście 10xfi75 - fi150 na poddasze skrzynka 2 - wejście fi225 -wyjście 8xfi75 i fi150 na poddasze reku chcę umieścić w piwnicy. Czy rozmieszczenie i proporcja instalacji jest wmiarę dobrze? co warto przemyśleć? poprawić? Edytowane 19 Marca 2015 przez JandJ słaba czytelność Cytuj Odnośnik do komentarza https://forum.murator.pl/topic/185805-sam-robi%C4%99-wentylacj%C4%99/page/26/#findComment-6783456 Udostępnij na innych stronach Więcej opcji udostępniania
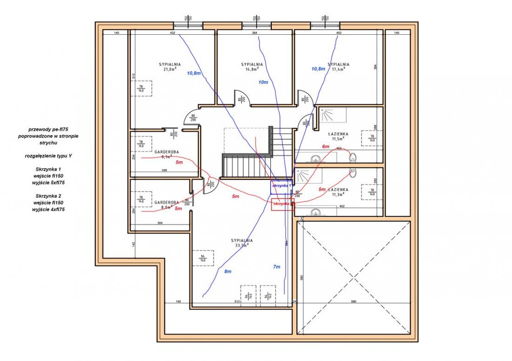
JandJ 19.03.2015 15:13 Zgłoś naruszenie Udostępnij Napisano 19 Marca 2015 (edytowane) i jeszcze poddasze przewody pe-fi75 poprowadzone w stronpie strychu rozgałęzienie typu Y Skrzynka 1 wejście fi150 wyjście 5xfi75 Skrzynka 2 wejście fi150 wyjście 4xfi75 Edytowane 19 Marca 2015 przez JandJ słaba czytelność Cytuj Odnośnik do komentarza https://forum.murator.pl/topic/185805-sam-robi%C4%99-wentylacj%C4%99/page/26/#findComment-6783461 Udostępnij na innych stronach Więcej opcji udostępniania
Pablo1206 22.03.2015 12:01 Zgłoś naruszenie Udostępnij Napisano 22 Marca 2015 Witam Potrzebuję pomocy w doborze elementów do samodzielnego wykonania wentylacji mechanicznej w mieszkaniu o pow. ok. 60 m2 na I piętrze budynku mieszkalnego. Budynek został ocieplony i pomimo tego, że w łazience i w kuchni są kratki wentylacyjne, na oknach skrapla się woda. W kuchni, oprócz kuchenki gazowej, zamontowany jest również piec gazowy dwufunkcyjny (ciepła woda i ogrzewanie mieszkania). Z mieszkania korzystają 4 osoby. Do budynku została dobudowana klatka schodowa, która chociaż zbudowana ze ścian warstwowych, nie jest ogrzewana (w załączeniu rzut kondygnacji). Bardzo proszę Panie Tomaszu o dobranie elementów wentylacji do takiego mieszkania ? (jaki rekuperator - ew. jego nazwa, jakie przewody byłyby najkorzystniejsze oraz ile anemostatów muszę zamontować) Przewody mogę poprowadzić w suficie podwieszonym (wysokość piętra to 2,70 m), natomiast gdzie umieścić rekuperator ? Nad drzwiami wejściowymi do mieszkania, czy na klatce schodowej przed drzwiami, podwiesić i ew. ocieplić ? Na którą ścianę wyprowadzić przewody nawiewne i wywiewne do rekuperatora ? Z góry bardzo dziękuję za pomoc Cytuj Odnośnik do komentarza https://forum.murator.pl/topic/185805-sam-robi%C4%99-wentylacj%C4%99/page/26/#findComment-6786060 Udostępnij na innych stronach Więcej opcji udostępniania
Tomasz Brzęczkowski 23.03.2015 11:33 Autor Zgłoś naruszenie Udostępnij Napisano 23 Marca 2015 Najprościej centralę dać w łazience lub we wnęce sąsiadującej z łazienką. Sufitów nie trzeba opuszczać. Można opuścić tylko w przedpokoju lub zabudować w taki sposób Centralę radził bym cichą np drem 200. Cytuj Odnośnik do komentarza https://forum.murator.pl/topic/185805-sam-robi%C4%99-wentylacj%C4%99/page/26/#findComment-6787315 Udostępnij na innych stronach Więcej opcji udostępniania
xxrafalxx 24.03.2015 21:19 Zgłoś naruszenie Udostępnij Napisano 24 Marca 2015 Witam!Zamierzam zrobić rekuperację. Założenia:5 osóbRozdzielacze 8x63/160mm PARTER: Nawiew:Salon - 16m2 - 1kanałSypialnia 1 - 15m2 - 2kanałySypialnia 2 – 16m2 - 2kanały Wywiew:Łazienka - 4,5m2 - 3 kanałyKuchnia - 12m2 - 2 kanały Poddasze: - będzie robione w przyszłościNawiew:Pokój 1 – 16m2 - 1kanałPokój 2 – 16m2 - 1kanałPokój 3 - 16m2 - 1kanał Wywiew:Łazienka 6m2 – 3 kanały Co o tym sądzicie?Ewentualnie mogę dodać jeden wywiew w wiatrołapie.Jaką wydajność musi mieć moja centrala? Cytuj Odnośnik do komentarza https://forum.murator.pl/topic/185805-sam-robi%C4%99-wentylacj%C4%99/page/26/#findComment-6788751 Udostępnij na innych stronach Więcej opcji udostępniania
Tomasz Brzęczkowski 25.03.2015 06:02 Autor Zgłoś naruszenie Udostępnij Napisano 25 Marca 2015 Witam! Zamierzam zrobić rekuperację. Założenia: 5 osób Rozdzielacze 8x63/160mm PARTER: Nawiew: Salon - 16m2 - 1kanał Sypialnia 1 - 15m2 - 2kanały Sypialnia 2 – 16m2 - 2kanały Wywiew: Łazienka - 4,5m2 - 3 kanały Kuchnia - 12m2 - 2 kanały Poddasze: - będzie robione w przyszłości Nawiew: Pokój 1 – 16m2 - 1kanał Pokój 2 – 16m2 - 1kanał Pokój 3 - 16m2 - 1kanał Wywiew: Łazienka 6m2 – 3 kanały Co o tym sądzicie? Ewentualnie mogę dodać jeden wywiew w wiatrołapie. Jaką wydajność musi mieć moja centrala? Radziłbym zacząć od centrali. Na 8 wyjść centrala ma 160mm . Na 5 osób może taką na 10-12 wyjść (200mm) aż się prosi dołożyć do salonu. Cytuj Odnośnik do komentarza https://forum.murator.pl/topic/185805-sam-robi%C4%99-wentylacj%C4%99/page/26/#findComment-6788850 Udostępnij na innych stronach Więcej opcji udostępniania
xxrafalxx 25.03.2015 08:07 Zgłoś naruszenie Udostępnij Napisano 25 Marca 2015 Do sypilni 1 przechodzi się się przez salon więc wydaje mi się że tam i tak będzie dobra wymiana.A centrale będę składał sam. Tylko jeszcze niewiem jaki dobrać wymiennik i wentylatory Cytuj Odnośnik do komentarza https://forum.murator.pl/topic/185805-sam-robi%C4%99-wentylacj%C4%99/page/26/#findComment-6788936 Udostępnij na innych stronach Więcej opcji udostępniania
Tomasz Brzęczkowski 25.03.2015 08:25 Autor Zgłoś naruszenie Udostępnij Napisano 25 Marca 2015 Do sypilni 1 przechodzi się się przez salon więc wydaje mi się że tam i tak będzie dobra wymiana. A centrale będę składał sam. Tylko jeszcze niewiem jaki dobrać wymiennik i wentylatory Opłaca się Panu? Liczyłem ile trzeba dziś wydać i nijak się nie opłaca. Nie zmieści się Pan w 4000zł brutto 23% Cytuj Odnośnik do komentarza https://forum.murator.pl/topic/185805-sam-robi%C4%99-wentylacj%C4%99/page/26/#findComment-6788948 Udostępnij na innych stronach Więcej opcji udostępniania
Martin5 25.03.2015 08:41 Zgłoś naruszenie Udostępnij Napisano 25 Marca 2015 A jaki rekuperator w cenie do 4 tys zł Pan poleci?Te najlepsze o wydajności około 300 m3 dochodzą do 7 tys zł. Cytuj Odnośnik do komentarza https://forum.murator.pl/topic/185805-sam-robi%C4%99-wentylacj%C4%99/page/26/#findComment-6788961 Udostępnij na innych stronach Więcej opcji udostępniania
Tomasz Brzęczkowski 25.03.2015 09:13 Autor Zgłoś naruszenie Udostępnij Napisano 25 Marca 2015 A jaki rekuperator w cenie do 4 tys zł Pan poleci? Te najlepsze o wydajności około 300 m3 dochodzą do 7 tys zł. Ja Panu podałem cenę kompletu, brutto 23% nie samej centrali. Cytuj Odnośnik do komentarza https://forum.murator.pl/topic/185805-sam-robi%C4%99-wentylacj%C4%99/page/26/#findComment-6788991 Udostępnij na innych stronach Więcej opcji udostępniania
xxrafalxx 25.03.2015 10:16 Zgłoś naruszenie Udostępnij Napisano 25 Marca 2015 Myślę że samą centrale za ok 2000 złoże Cytuj Odnośnik do komentarza https://forum.murator.pl/topic/185805-sam-robi%C4%99-wentylacj%C4%99/page/26/#findComment-6789041 Udostępnij na innych stronach Więcej opcji udostępniania
kamihi 25.03.2015 10:29 Zgłoś naruszenie Udostępnij Napisano 25 Marca 2015 A coś bliżej jakich wentylatorów i wymiennika chcesz użyć bo roważam podobny dylemat ?? Choć wstępmnie na lunę się zdecydowałem Cytuj Odnośnik do komentarza https://forum.murator.pl/topic/185805-sam-robi%C4%99-wentylacj%C4%99/page/26/#findComment-6789057 Udostępnij na innych stronach Więcej opcji udostępniania
Tomasz Brzęczkowski 25.03.2015 11:31 Autor Zgłoś naruszenie Udostępnij Napisano 25 Marca 2015 Myślę że samą centrale za ok 2000 złoże Na kanałach 75mm przy Pana projekcie , nie da rady. 3500 zł minimum na lunie. A nie lepszego Pan nie złoży. Cytuj Odnośnik do komentarza https://forum.murator.pl/topic/185805-sam-robi%C4%99-wentylacj%C4%99/page/26/#findComment-6789104 Udostępnij na innych stronach Więcej opcji udostępniania
xxrafalxx 25.03.2015 13:59 Zgłoś naruszenie Udostępnij Napisano 25 Marca 2015 Ale czy na wymienniku Klingenburga i wentylatorach ebm nie będzie dużo lepszy od Luny? Cytuj Odnośnik do komentarza https://forum.murator.pl/topic/185805-sam-robi%C4%99-wentylacj%C4%99/page/26/#findComment-6789248 Udostępnij na innych stronach Więcej opcji udostępniania
Tomasz Brzęczkowski 25.03.2015 14:05 Autor Zgłoś naruszenie Udostępnij Napisano 25 Marca 2015 (edytowane) Ale czy na wymienniku Klingenburga i wentylatorach ebm nie będzie dużo lepszy od Luny? Luna ma wentylatory Ziehl-Abegg ( zdjęcie pomyliłem) Które wentylatory i co znaczy lepszy? Edytowane 25 Marca 2015 przez Tomasz Brzęczkowski Cytuj Odnośnik do komentarza https://forum.murator.pl/topic/185805-sam-robi%C4%99-wentylacj%C4%99/page/26/#findComment-6789250 Udostępnij na innych stronach Więcej opcji udostępniania
xxrafalxx 25.03.2015 14:39 Zgłoś naruszenie Udostępnij Napisano 25 Marca 2015 Wolałbym wentylatory dc Cytuj Odnośnik do komentarza https://forum.murator.pl/topic/185805-sam-robi%C4%99-wentylacj%C4%99/page/26/#findComment-6789281 Udostępnij na innych stronach Więcej opcji udostępniania
xxrafalxx 25.03.2015 14:49 Zgłoś naruszenie Udostępnij Napisano 25 Marca 2015 Tylko potrzebuję żeby mi ktoś doradził jaki model wentylatorów i wymiennika Cytuj Odnośnik do komentarza https://forum.murator.pl/topic/185805-sam-robi%C4%99-wentylacj%C4%99/page/26/#findComment-6789287 Udostępnij na innych stronach Więcej opcji udostępniania
Tomasz Brzęczkowski 25.03.2015 14:54 Autor Zgłoś naruszenie Udostępnij Napisano 25 Marca 2015 A jaki rekuperator w cenie do 4 tys zł Pan poleci? Te najlepsze o wydajności około 300 m3 dochodzą do 7 tys zł. To Pan składa, bo... za 4000 nie da się z wentylatorami DC ... 5200 zł to minimum 100mb kanału 75mm dwie skrzynki 8x75 9 redukcji kątowych z anemostatami 10m kanału głównego izolowanego brookvent1.1 Cytuj Odnośnik do komentarza https://forum.murator.pl/topic/185805-sam-robi%C4%99-wentylacj%C4%99/page/26/#findComment-6789290 Udostępnij na innych stronach Więcej opcji udostępniania
Recommended Posts
Dołącz do dyskusji
Możesz dodać zawartość już teraz a zarejestrować się później. Jeśli posiadasz już konto, zaloguj się aby dodać zawartość za jego pomocą.