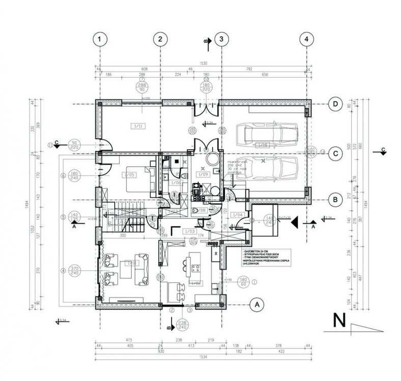
pawloslaw 22.12.2014 17:32 Zgłoś naruszenie Udostępnij Napisano 22 Grudnia 2014 (edytowane) Czesc, Forum przegladam od dluzszego czasu, jednak w koncu nadszedl czas na ruszenie z wlasna twierdza Projekt indywidualny - jako ze oboje pracujemy na budowie nie powinno byc z tym problemu. Instalacje wrysuje sobie sam, projekt chcemy jedynie oddac do jakiegos fachowca od konstrukcji zeby nie bylo w przyszlosci niespodzianek. W chwili obecnej mamy dzialke 50 arów pod lasem, wstepny projekt i duzo samozaparcia. W pierwszej polowie 2015 chcialbym zalatwic cala papierologie, natomiast z budowa ruszyc jakos za rok. No ale wiadomo, przemyslany projekt to podstawa. Najprawodpodobniej zastosujemy plyte fundamentowa dla parteru i pietra ze scianka kolankowa na wysokosci 1,8m. Caly domek jest osadzony na podstawie 11x9m, na gruncie piaszczystym. Kat nachylenia dachu 30', co da nam pomieszczenie na strychu o wymiarach ok. 2x3m (poziom +2). Garaz budujemy oddzielnie - nie jest to najwazniejszy element budowy, dlatego na poczatku bedzie to pewnie zwykla wiata Zaczynajac nasza przeprawe chcialbym sie pochwalic naszym projektem i jednoczesnie poprosic o sugestie bardziej doswiadczonych na tym forum. Boje sie ze porojektujemy w niewiedzy o czyms, co zmusi nas do zmiany projektu. Ponizej rzut parteru i poddasza, oraz plan sytuacyjny (wszystko wykonane wlasnorecznie ). Najbardziej martwi nas ustawienie domu - czy nie bedzie problemu z wybudowaniem domu ktory nie jest ustawiony prostopadle do drogi (no, polnej drozki)? Warunki techniczne nic o tym nie mowia... dzialka jest polozona w szczerym polu, wiec plan jako takiego zagospodarowania nie istnieje. Czy nie bedzie to problem? Czekam na opinie i sugestie, za wszelkie rady bedziemy niezmiernie wdzieczni! 5.10.2016: Po wielu namyslach ostateczny projekt wyglada tak: [ATTACH=CONFIG]361320[/ATTACH] [ATTACH=CONFIG]361319[/ATTACH] Edytowane 5 Października 2016 przez pawloslaw Odnośnik do komentarza https://forum.murator.pl/topic/196331-indywidualny-domek-w-szczerym-polu/ Udostępnij na innych stronach Więcej opcji udostępniania
Przemek Kardyś 22.12.2014 19:14 Zgłoś naruszenie Udostępnij Napisano 22 Grudnia 2014 Cześć! Gratuluję decyzji, bo własny dom to wspaniała sprawa. A tym bardziej zrobiony własnoręcznie, to satysfakcja i pomnik swojej pracowitości, pomysłowości i gustu. Tyle tytułem wstępu. Nie wiem co oznaczają warunki techniczne, ale musisz mieć Warunki Zabudowy, które wydaje Urząd Gminy, bo to chyba działka poza miastem. Do tego będą Ci potrzebne zapewnienia z rejonu energetycznego, gazowni, wodociągów i nawet od wywożących szambo, że jest możliwość dostarczenia czy tam odebrania tego wszystkiego czym oni się zajmują. Dopiero na tej podstawie, oraz na podstawie Twojego zapytania o konkretny obiekt gmina zadecyduje, czy możesz go tam wybudować, czy nie. Niestety schodzi z tym minimum 65 dni, bo tyle wynoszą okresy uprawomocnienia się poszczególnych etapów podejmowania decyzji. Możesz robić za listonosza, to będzie ciut szybciej, ale pewnych spraw nie przeskoczysz.W Warunkach Zabudowy będziesz miał napisane jaki budynek może być wysoki, jaki ma mieć dach, ile możesz procentowo zabudować działki, jaka ma być linia zabudowy, jak zorientowany budynek względem drogi. Jeśli już to masz, to OK, bo może właśnie to są te warunki techniczne. Jeśli tak, to niczego innego nie będzie. Jeśli nie - czeka cię powyższa procedura. Sam projekt ma całkiem sensownie rozmieszczone pokoje, bo większość jest od strony nasłonecznionej. Poza tym są schody, a tych nie lubię i wszyscy którzy mnie znają o tym wiedzą. Uważam, że dom piętrowy to zło - tym bardziej jeśli masz tak dużą działkę. Podoba mi się za to pomysł płyty fundamentowej. Odnośnik do komentarza https://forum.murator.pl/topic/196331-indywidualny-domek-w-szczerym-polu/#findComment-6682551 Udostępnij na innych stronach Więcej opcji udostępniania
Kac-Per 27.12.2014 16:45 Zgłoś naruszenie Udostępnij Napisano 27 Grudnia 2014 Zacznij od warunków zabudowy to może trwać nawet ponad rok wiec warto składać wniosek jak na szybciej. Do wniosku o wydanie warunków warto dołączyć swój projekt gmina powinna być przychylna np jeśli chodzi o kont dachu lub własną oczyszczalnie w ogrodzie. Zorientuj sie czy twoja działka nie leży na terenach Parku narodowego lub jakiś obszarów chronionych np Natura 2000. To też dużo utrudnia procedury. Odnośnik do komentarza https://forum.murator.pl/topic/196331-indywidualny-domek-w-szczerym-polu/#findComment-6685541 Udostępnij na innych stronach Więcej opcji udostępniania
robert skitek 27.12.2014 17:16 Zgłoś naruszenie Udostępnij Napisano 27 Grudnia 2014 Jak pisali przedmówcy, tzw wz-ka mówi o tym jak możesz dom ustawić, jakie ma mieć gabaryty, kształt dachu, a czasem nawet kolor dachówki i tynku...Są to warunki zabudowy, w odróżnieniu od warunków technicznych, które są określone w rozporządzeniu i mówią m.in. o minimalnych odległościach od granic działek.Pytasz o projekt, to odpowiem - najdelikatniej jak potrafię.Widzę, że jesteś bardzo dumny z tego, że zrobiłeś go sam, a architekta w zasadzie nie potrzebujesz. Nie wiem skąd ta moda na forum. Jestem pewien, że z architektem mógłbyś znacznie praktyczniej zaprojektować swój dom. Nie będę wyliczał błędów, bo możesz to odebrać jako atak.W każdym razie powodzenia. Odnośnik do komentarza https://forum.murator.pl/topic/196331-indywidualny-domek-w-szczerym-polu/#findComment-6685576 Udostępnij na innych stronach Więcej opcji udostępniania
Gość grend 27.12.2014 17:34 Zgłoś naruszenie Udostępnij Napisano 27 Grudnia 2014 (edytowane) Witam wśród samorobów.Projekt - z takim obrysem i kopertowym dachem wchodzisz w słupy na poddaszu. Nie analizowałem tego dachu ale bedę zgadywać słupy bedą w takim miejscu gdzie nie masz pod spodem ścian. 2 sprawa jezeli chcesz mieć Terivę to jakos nie widzę możliwosci rozłozenia belek chyba ze wejdziesz w jakieś długie podciagi ... Projekt funkcjonalny szczególnie brak okien i wgladu do kuchni przy wejściu do budynku - mania 90% gotowców. Brak kominów, wentylacji - dobrze zgrupowani "odbiorcy" kanalizy. Ścianka kolankowa 1,8 cm to podstawa funkcjonalnosci poddasza - chociaż jakoby na zewnatrz dom źle wyglada. Dobrze zgrupowane pomieszczenia i prawie kwadrat który dobrze naswietla i mozna ominąć okna dachowe. Tak szczerze ci powiem że mam baaaaaaardzo podobne rozwiazania życzę powodzenia Edytowane 27 Grudnia 2014 przez grend Odnośnik do komentarza https://forum.murator.pl/topic/196331-indywidualny-domek-w-szczerym-polu/#findComment-6685587 Udostępnij na innych stronach Więcej opcji udostępniania
pawloslaw 28.12.2014 18:53 Autor Zgłoś naruszenie Udostępnij Napisano 28 Grudnia 2014 Nie wiem co oznaczają warunki techniczne, ale musisz mieć Warunki Zabudowy, które wydaje Urząd Gminy, bo to chyba działka poza miastem. Do tego będą Ci potrzebne zapewnienia z rejonu energetycznego, gazowni, wodociągów i nawet od wywożących szambo, że jest możliwość dostarczenia czy tam odebrania tego wszystkiego czym oni się zajmują. Dopiero na tej podstawie, oraz na podstawie Twojego zapytania o konkretny obiekt gmina zadecyduje, czy możesz go tam wybudować, czy nie. Niestety schodzi z tym minimum 65 dni, bo tyle wynoszą okresy uprawomocnienia się poszczególnych etapów podejmowania decyzji. Możesz robić za listonosza, to będzie ciut szybciej, ale pewnych spraw nie przeskoczysz. W Warunkach Zabudowy będziesz miał napisane jaki budynek może być wysoki, jaki ma mieć dach, ile możesz procentowo zabudować działki, jaka ma być linia zabudowy, jak zorientowany budynek względem drogi. Jeśli już to masz, to OK, bo może właśnie to są te warunki techniczne. Jeśli tak, to niczego innego nie będzie. Jeśli nie - czeka cię powyższa procedura. Sam projekt ma całkiem sensownie rozmieszczone pokoje, bo większość jest od strony nasłonecznionej. Poza tym są schody, a tych nie lubię i wszyscy którzy mnie znają o tym wiedzą. Uważam, że dom piętrowy to zło - tym bardziej jeśli masz tak dużą działkę. Podoba mi się za to pomysł płyty fundamentowej. Dzieki za wskazowki - warunki techniczne to te, o ktorych mowa w rozporzadzeniu. Jednak z tego co widze to najwiecej jest w warunkach zabudowy. Natomiast domek parterowy rozwazamy, z mozliwoscia zagospodarowania poddasza. Prawdopodobnie tak sie stanie z uwagi na wielkosc dzialki (chlop z miasta mysli raczej kategoriami miejskimi ). Kac-per, dziekuje za informacje, z tego co wiem to nie jest to zaden park ani obszar chroniony. To zwykle pole Vtej kategorii, a co do oczyszczalni przydomowej to chyba sie nad tym zastanowie mocno (na kanalizacje nie ma co liczyc poki co) - nie ma do tego jakichs doplat? robert skitek Z tego co widze wiekszosc Twoich postow sprowadza sie do polecania uslug architekta; takie skrzywienie zawodowe? Oboje skonczylismy budowlane studia wiec 'jakies' pojecie o budowaniu mamy. A mysle ze sami najlepiej powiemy jaki dom chcemy miec - skoro potrafie zrobic wszystko sam, to dlaczego mam wydawac pieniadze na uslugi kogos, kogo de facto nie potrzebuje? Wiesz dobrze, ze budujac dom kazdy grosz sie liczy. Taki jest nasz wybor i zadnej modzie tu nie ulegamy. Jesli widzisz jakies bledy, lub masz cos konstruktywnego do powiedzenia, to bardzo chetnie poczytam grend Wszystko bylo ukladane pod strop monoliotyczny, z zalozeniem kilku podciagow stalowych. Brak kominow i wentylacji to kwestia czasu - jak omwilem, instalacje wrysuje sobie sam, bo od tego wlasnie jestem inzynierem Stad tez zalozenie kanalizacji skupionej w jednym rogu. Boje sie jednak ze przy ewentualnej zmianie projektu na parterowke juz nie uda nam sie tego tak ladnie ulozyc. Odnośnik do komentarza https://forum.murator.pl/topic/196331-indywidualny-domek-w-szczerym-polu/#findComment-6686418 Udostępnij na innych stronach Więcej opcji udostępniania
robert skitek 29.12.2014 20:42 Zgłoś naruszenie Udostępnij Napisano 29 Grudnia 2014 robert skitek Z tego co widze wiekszosc Twoich postow sprowadza sie do polecania uslug architekta; takie skrzywienie zawodowe? Oboje skonczylismy budowlane studia wiec 'jakies' pojecie o budowaniu mamy. A mysle ze sami najlepiej powiemy jaki dom chcemy miec - skoro potrafie zrobic wszystko sam, to dlaczego mam wydawac pieniadze na uslugi kogos, kogo de facto nie potrzebuje? Wiesz dobrze, ze budujac dom kazdy grosz sie liczy. Taki jest nasz wybor i zadnej modzie tu nie ulegamy. Jesli widzisz jakies bledy, lub masz cos konstruktywnego do powiedzenia, to bardzo chetnie poczytam . Nie, żadne skrzywienie. Chciałem dobrze. Jak piszesz, sami wiecie czego chcecie i nie macie zamiaru współpracować z architektem. Moje uwagi wciąż wyglądałyby w Twoich oczach jako czepialstwo. Powodzenia. Odnośnik do komentarza https://forum.murator.pl/topic/196331-indywidualny-domek-w-szczerym-polu/#findComment-6687617 Udostępnij na innych stronach Więcej opcji udostępniania
Przemek Kardyś 30.12.2014 09:22 Zgłoś naruszenie Udostępnij Napisano 30 Grudnia 2014 Nie, żadne skrzywienie. Chciałem dobrze. Jak piszesz, sami wiecie czego chcecie i nie macie zamiaru współpracować z architektem. Moje uwagi wciąż wyglądałyby w Twoich oczach jako czepialstwo. Powodzenia. Po prostu chłopu doradź. Odnośnik do komentarza https://forum.murator.pl/topic/196331-indywidualny-domek-w-szczerym-polu/#findComment-6688100 Udostępnij na innych stronach Więcej opcji udostępniania
kamilb1987b 16.01.2015 21:06 Zgłoś naruszenie Udostępnij Napisano 16 Stycznia 2015 Jak chcecie ściankę kolankową tej wysokości o lepiej zrobić dwie pełne kondygnacje i dać wiązary na dach. Skoro nie potrzebujecie architekta tzn że sam nim jesteś? Pisałeś że jesteś inżynierem i domyślam się że budownictwa ale nie wiedziałem że inżynier może sam zrobić projekt do PnB. A jakbyś się znał dobrze to byś nie pytał o zdanie tylko stwierdzał że zrobisz tak i tak itp więc domyślam się że sam robisz sobie układ pomieszczeń, z grubsza wymiary a projekt i tak musi zrobić architekt z uprawnieniami więc i tak za projekt trzeba zapłacić i nie licz na niższe pieniądze za to. Ja też sam sobie zaprojektowałem dom, opisałem co i jak chce zrobić a mimo to ceny za projekt potrafiły być od 10tys wzwyż. Ale min to z 6k na indywidualny trzeba liczyć. Sam wygląd to jest chyba najmniejszy problem dla architekta bo jak kto mądry to pewnie na rozmowie z klientem zrobi na szybko szkice na których się będzie opierać przy projektowaniu. Czasem w cenie jest kilka jakby wizji bo może się coś zmienić w guście czy coś takiego. Sam tego nie rozumiem bo jednak jak się na tacy dostaje gotowe od klienta który wie co chce to architekt powinien wrzucić to w swój program i resztę zrobi konstruktor licząc wszystko. Nie wiem ile to trwa ale też nie wiem skąd takie ceny za projekty. Przecież to nie jest siódma filozofia czy jakaś kosmiczna. W ciemno bez tego zbudowałbym swój dom który huragan wytrzyma i nawet przy tym nie pierdnie. Swoją drogą to powinna być taka możliwość aby zbudować dom według własnego projektu z oświadczeniem że robi się to na własną odpowiedzialność i że w razie zawalenia się domu to się bierze za to pełną odpowiedzialność. Z drugiej strony koszt projektu w porównaniu do całego domu to jest mały procent i trzeba byłoby się dobrze zastanowić te parę tyś jest tego warte. Z tego co czytałem dziś to ponoć szybciej ma się dostać PnB i nie trzeba tyle dokumentów przy tym składać więc ma być lepiej. Odnośnik do komentarza https://forum.murator.pl/topic/196331-indywidualny-domek-w-szczerym-polu/#findComment-6708289 Udostępnij na innych stronach Więcej opcji udostępniania
pawloslaw 15.07.2016 12:28 Autor Zgłoś naruszenie Udostępnij Napisano 15 Lipca 2016 Czesc, Odkopuje temat, bo wiele kwestii sie wyklarowalo. Projekt ulegl sporym zmianom z zachowaniem pierwotnych pomysłow i potrzeb. Zrezygnowalismy z płyty fundamentowej, ścianka kolankowa będzie miała 1,2m oraz kąt nachylenia 40'. Podstawa domu nadal 11x9, plus garaz dwustanowiskowy przylegly. Po kolei postaram sie prowadzic koszty i opisac formalnosci jakie pochlonie cale zamierzenie budowlane. Tak jak mowiłem na początku, projekt(y) wyrysowałem samodzielnie. Koszt poszczegolnych projektow wyniosl nas nastepujaco: Architektura, PZT - 300 zł Konstrukcja - 100 zł - w sumie to nic, ale przysłowiową flaszke kupilem. Sanitarka - 0 zł w ramach własnej branzy Elektryka - jak przy konstrukcji Branża drogowa (zjazd)- jak przy konstrukcji Dodatkowo koszty poniesione na rzecz projektu: 1. Wypis i wyrys z rejestru gruntów - 50zł 2. Mapa do celów opiniodawczych - 54 zł 3. Mapa do celów projektowych, 3 szt - 800zł Razem 1500 zl za projekty przyłączy, zjazdów, pzt, PB itd. Ogółem cała papierologia i projektowanie do momentu uzyskania PNB. Czas oczekiwania na dokumenty i uzgodnienia: - Warunki zabudowy - niecałe 2 miesiące - Warunki/zezwolenie na zjazd - 1 miesiąc - mapa do celów projektowych - 2 miesiące - mapa do celów opiniodawczych - 2-3 dni - wypis i wyrys - 2-3 dni - rysowanie, zastanawianie sie itp - 2 lata Do końca wakacji zamierzam zawalczyc o PNB i wbic lopate w nablizszym mozliwym terminie. Pewnie wypadnie to na wiosnę. We wrzesniu za to ogrodzenie i jakies pierwsze nasadzenia Dla ciekawych jakie zmiany zaszly: Odnośnik do komentarza https://forum.murator.pl/topic/196331-indywidualny-domek-w-szczerym-polu/#findComment-7136904 Udostępnij na innych stronach Więcej opcji udostępniania
pawloslaw 09.12.2016 11:48 Autor Zgłoś naruszenie Udostępnij Napisano 9 Grudnia 2016 Jest PNB! Calosc zachodu trwala 115 dni z przerwa na przygotowanie operatu wodnoprawnego i pozyskanie pozwolenia na przebudowe saczkow. W ostatecznej wersji jeszcze kilka rzeczy zmieniłem. Na dniach postaram się wrzucić zdjęcia działki i opisać szczegóły projektu. Tymczasem idziemy świętować Odnośnik do komentarza https://forum.murator.pl/topic/196331-indywidualny-domek-w-szczerym-polu/#findComment-7242130 Udostępnij na innych stronach Więcej opcji udostępniania
B_i_U 20.12.2016 15:24 Zgłoś naruszenie Udostępnij Napisano 20 Grudnia 2016 Witam. Cóż spowodowało decyzję o rezygnacji z płyty fundamentowej? Odnośnik do komentarza https://forum.murator.pl/topic/196331-indywidualny-domek-w-szczerym-polu/#findComment-7250141 Udostępnij na innych stronach Więcej opcji udostępniania
pawloslaw 03.01.2017 10:52 Autor Zgłoś naruszenie Udostępnij Napisano 3 Stycznia 2017 Pomimo niewątpliwych zalet płyty zdecydowaliśmy się na tradycyjne fundamenty przede wszystkim z powodu wygody. Chciałbym mieć możliwość ewentualnej zmiany tego co w podłodze, przeróbek itp. W płycie jest to praktycznie niemożliwe. Korzystne warunki gruntowe i duża powierzchnia zabudowy parteru także miały wpływ na decyzję. W przeliczeniu płyta kosztowałaby nas ok. 50 tys. Fundamenty tradycyjne w skrajnym wariancie to max 35 tys (kosztorysowo). Nie licząc projektu który trzeba by było zlecić zaufanemu projektantowi - zresztą jak robiłem rozeznanie to często spotykałem się z opinią "a po co to liczyć? Wystarczy więcej zbrojenia dać". Więc wole tradycyjne rozwiązanie i pewność ze jest zrobione dobrze Jeszcze w starym roku odebrałem opisany dziennik budowy ze Starostwa. Plan na najbliższe dni to przewalczenie z PINB możliwości objęcia przeze mnie funkcji KB (teoretycznie mogę, praktycznie zależy), postawienie szopki/warsztatu roboczego i zdjęcie humusu wraz z geodezją. Strzelam że zacznę te roboty w połowie lutego/na początku marca. Zmianie względem pierwszego planu uległo wiele, a w zasadzie wszystko. Nawet działka. Udało nam się pozyskać działkę co prawda mniejszą (20a), ale bliżej drogi gminnej, ze znacznie większą szansą na kanalizację w przyszłości. Tak to wyglądało w grudniu 2016: Niestety nie zdążyliśmy z siatką. Pojawi się ona na dniach (tygodniach), z racji ze poki co budujemy zdalnie, weekendowo. Jeśli chodzi technologie wykonania, to tak wyglądają przekroje: http://www.oznakowania.pl/murator/aa.png http://www.oznakowania.pl/murator/bb.png Odnośnik do komentarza https://forum.murator.pl/topic/196331-indywidualny-domek-w-szczerym-polu/#findComment-7258616 Udostępnij na innych stronach Więcej opcji udostępniania
pawloslaw 29.03.2017 12:59 Autor Zgłoś naruszenie Udostępnij Napisano 29 Marca 2017 No to aktualizuję: Zdjęcie humusu - niestety okazało się że nasz koparkowy to typowy "posiadacz koparki" a nie operator. Rozjezdzil nam calosc, ale z uwagi na to ze nam sie nie spieszy to nie jest wielki problem. Koszt sciągniecia humusu ok. 250 zł. Wytyczenie 500 zł. Obecnie wiazemy zbrojenie - zdecydowalismy sie na prefabrykowane strzemiona. 1zł/szt 24x24 fi6 żebrowane. Po przeliczeniu kosztów materiału i czasu na gięcie doszliśmy do wniosku że lepszym wyjściem będzie zamówienie gotowych. Zbrojenie ławy: Póki co tona stali - według moich obliczeń w fundamenty pojdzie ok 430 mb prętów fi12. W przeliczeniu na złotówki wychodzi jakoś 1500zł ze strzemionami. Dla pewności zrobiłem kilka odkrywek w osiach - oczom ukazał się piasek i brak wody. Jeśli nie będzie padać to jest szansa zalać ławę przed świętami Wykopy i zalewanie planujemy za dwa tygodnie - do tego czasu chyba damy radę wywiązać całe zbrojenie. Odnośnik do komentarza https://forum.murator.pl/topic/196331-indywidualny-domek-w-szczerym-polu/#findComment-7325601 Udostępnij na innych stronach Więcej opcji udostępniania
pawloslaw 09.04.2017 17:08 Autor Zgłoś naruszenie Udostępnij Napisano 9 Kwietnia 2017 (edytowane) Biorąc pod uwagę ogromne zainteresowanie tematem, aktualizuję: Czwartek, po kopaniu i wrzuceniu zbrojenia: Oraz piątek - zalewanie. Beton B30, 22 m3. Ławę wygładziłem pacą styropianowa z wierzchu. Mierzona do niwelatora - największa odchyłka od poziomu ok. 0,7 cm. Teraz damy jej dwa tygodnie i po swietach zaczniemy murowanie scian fundamentowych Swoją drogą, na koniec stanęło najważniejsze: Edytowane 9 Kwietnia 2017 przez pawloslaw Odnośnik do komentarza https://forum.murator.pl/topic/196331-indywidualny-domek-w-szczerym-polu/#findComment-7331885 Udostępnij na innych stronach Więcej opcji udostępniania
aiki 09.04.2017 17:22 Zgłoś naruszenie Udostępnij Napisano 9 Kwietnia 2017 jak nie bedziesz szalał z tempem murowania to możesz szybciej. narożniki sobie choć wyprowadź. Odnośnik do komentarza https://forum.murator.pl/topic/196331-indywidualny-domek-w-szczerym-polu/#findComment-7331891 Udostępnij na innych stronach Więcej opcji udostępniania
pawloslaw 04.05.2017 10:35 Autor Zgłoś naruszenie Udostępnij Napisano 4 Maja 2017 Dziwna aura w tym roku - od świąt mieliśmy praktycznie dwa dni kiedy dało się cokolwiek robić. Tak to wiatr, deszcz i rzucanie żabami - masakra. W planie na majówkę miałem skończyć fundament, otulić go i zasypać. W rzeczywistości wybierałem wodę z wykopu, bo ulewne deszcze przykryły pierwszą warstwę bloczków fundamentowych O_O. Wykop tworzy niemal szczelną glinianą nieckę, a na dodatek sączki polne naciągają wodę i wypychają mi ją w fundamencie. Błędne koło aż do lipca, gdy przestanie padac. Obecnie wygląda to tak: Dzisiaj rano miałem już dość, bo po całym weekendzie walki z wodą w nocy znow nam ten grajdół zalało x_x Jutro zabieram się za drenaż, bo bez porządnego odwodnienia nigdy tego nie skonczę :/ Odnośnik do komentarza https://forum.murator.pl/topic/196331-indywidualny-domek-w-szczerym-polu/#findComment-7346474 Udostępnij na innych stronach Więcej opcji udostępniania
pawloslaw 12.05.2017 10:59 Autor Zgłoś naruszenie Udostępnij Napisano 12 Maja 2017 Pogoda dopisuje, dlatego pojawiły się postępy: Drenaż wykonam po otuleniu ścian styropianem. Otulimy tylko z zewnątrz, bo wewnątrz uważam za zbędny luksus. Zresztą tak jak i malowanie dysperbitem - może skuszę się na zewnętrzne malowanie po styropianie. Czas pokaze. Pojawiła się też nowa zabawka: http://www.hierrostorrent.com.ar/wp-content/uploads/2012/10/steb70quick.jpg Zabawka posłużyła do cięcia więźby na szopkę: i spisała się wzorowo Niestety wkrętarka się buntuje, dlatego w tygodniu będę testował serwis gwarancyjny Jutro postaram się położyć styropian. Zdecydowaliśmy się na klej w piance - zobaczymy jak to wyjdzie Generalnie bardzo dużo czerpię od tego pana: Fajnie to wszystko pokazuje, choć nie ze wszystkim się zgadzam - w każdym razie buduje z BK, krok po kroku mamy wszystko pięknie pokazane. Oby tylko pogoda się utrzymała Odnośnik do komentarza https://forum.murator.pl/topic/196331-indywidualny-domek-w-szczerym-polu/#findComment-7351538 Udostępnij na innych stronach Więcej opcji udostępniania
rafhi 12.05.2017 12:24 Zgłoś naruszenie Udostępnij Napisano 12 Maja 2017 Hej przywitam się w dzienniku fajnie że masz pogodę to nadgonisz co do dysperbitu ja bym nie rezygnował a co do styro to już są różne teorie powodzenia w murowaniu. Odnośnik do komentarza https://forum.murator.pl/topic/196331-indywidualny-domek-w-szczerym-polu/#findComment-7351582 Udostępnij na innych stronach Więcej opcji udostępniania
pawloslaw 15.05.2017 09:30 Autor Zgłoś naruszenie Udostępnij Napisano 15 Maja 2017 Myślę że dysperbit nie ma sensu - poziom wód gruntowych sięga połowy wysokości ławy, a wyżej jest drenaż który grawitacyjnie będzie kierował nadwyżki wody do rowu. Musiałaby być mega powódź żeby woda się podniosła, a w wilgoć przenikającą z gruntu nie wierzę. Dom będzie miał opaskę żwirową która odetnie grunt od fundamentu. Styropian zaciągnięty klejem + folia kubełkowa wystarczą. Zdaję sobie sprawę z funkcji folii kubełkowej i mam świadomość że izolacja przeciwwilgociowa z niej żadna W weekend była super pogoda - nabawiłem się paru oparzeń słonecznych, odcisków i rąk do ziemi. Ale efekt jest - udało się skończyć fundament, wykleić połowę styropianu i przekopać 30 m drenażu: Zdecydowaliśmy się na drenaż w podwójnej flizelinie - miał być kokos, ale cena odstraszyła. Materiał na 100mb drenażu fi80 kosztował mnie ok. 650 zł - portal aukcyjny nie zawiódł Skrobanie i równanie zaprawy przed klejeniem: Efekt klejenia. Wybrałem klej w piance - gorąco polecam wszystkim którzy się zastanawiają między klejem z wora a pianą. Puszka kosztowała mnie 22zł + pistolet 35 zł. Jedna puszka wystarczyła na 15 m2 klejenia bez specjalnej oszczędności. Inwestor po robocie, w bramie garażowej. Widać profesjonalne szalowanie słupów pod podciąg bramy I docinka styropianu - sfrajerowałem się, bo trzeba to bylo robić płatnicą, a ja zaopatrzyłem się w nóż do izolacji. Nie chciałem już wracać po to, bo w niedzielę miałem tylko dwie godziny. Efekt jak niżej. Teraz przelecę to tarą, a ubytki wypełnię pianką. Ścinki styropianu posłużą do wypełnień w późniejszym czasie. W przyszły weekend lecę z drugą stroną. Powinno pójść szybciej, bo tu była zbita glina - z drugiej strony mam piaseczek Jak się uda wszystko sprawnie ogarnąć to przystąpię do folii kubełkowej i wykopu pod kanał w garażu. Teraz jak widzę zarys domu i wiem, że to już nie jest tylko rysunek na papierze, to kurna cieszy michę Bardzo. Odnośnik do komentarza https://forum.murator.pl/topic/196331-indywidualny-domek-w-szczerym-polu/#findComment-7352876 Udostępnij na innych stronach Więcej opcji udostępniania
Recommended Posts
Jeśli chcesz dodać odpowiedź, zaloguj się lub zarejestruj nowe konto
Jedynie zarejestrowani użytkownicy mogą komentować zawartość tej strony.
Zarejestruj nowe konto
Załóż nowe konto. To bardzo proste!
Zarejestruj sięZaloguj się
Posiadasz już konto? Zaloguj się poniżej.
Zaloguj się