Kierowniczka 08.03.2013 09:00 Zgłoś naruszenie Udostępnij Napisano 8 Marca 2013 Witam wszystkich Zwracam się z uprzejmą prośbą o uwagi - to bardzo wstępny projekt rozmieszczenia instalacji w mojej łazience. Na razie z rzeczy wybranych mam tylko płytki - będzie to gres tarasowy z paradyża torro http://www.paradyz.com/plytki/tarasowe-salon/torro (na podłodze ciemniejszy na ścianach jaśniejszy) jeżeli chodzi o dekory (tylko mozaika) to będzie pasek na blacie (wysokość blatu - 2 kwadraty mozaiki) pasek na scianie obudowującej wanne (też wysokość na 2 kwadraty)... I tu mi się skończyły pomysły Cytuj Odnośnik do komentarza https://forum.murator.pl/topic/201803-projektowanie-%C5%82azienki/page/228/#findComment-5822380 Udostępnij na innych stronach Więcej opcji udostępniania
duś1719506024 08.03.2013 12:11 Zgłoś naruszenie Udostępnij Napisano 8 Marca 2013 Ze względu na wilgoć. Niby wentylację powinniśmy mieć tam dobrą, ale wydaje mi się, że w małych łazienkach jakoś zawsze tej wilgoci jest więcej. Ale poprzyglądam się żaluzom drewnianym - na pewno zajmie mi to sporo czasu, bo to znowu wchodzi problem - jak dokładnie dobrać drewno do drewna... ramy okienne mamy białe hmmm... nie słyszałam, aby ktokolwiek miał problem z żaluzjami i wilgocią, ale temat trzeba zbadać. alternatywą mogłyby być ewentualnie żaluzje alumioniowe - te współczesne są znacznie ładniejsze niż znane z dawnych lat (a któraś babeczka zrobiła je w kuchni (gdzieś w Pochwalcie się swoimi kuchniami na bank znajdziesz) i muszę przyznać, że efekt przeszedł moje naśmielsze przypuszczenia) a propos koloru - cokolwiek nie wybierzesz, ja bym dobierała do okiennej ramy, czyli w tej sytuacji biel Cytuj Odnośnik do komentarza https://forum.murator.pl/topic/201803-projektowanie-%C5%82azienki/page/228/#findComment-5822755 Udostępnij na innych stronach Więcej opcji udostępniania
bettka 10.03.2013 03:03 Zgłoś naruszenie Udostępnij Napisano 10 Marca 2013 monia_ dzięki za odzew, długo się zastanwiałam nad prysznicem pod oknem, ale tam chyba tylko wanna by pasowała. Okno jest PCV w orzechu awnęka obok okna jest wąska ok 60 cm, za mało na prysznic. Cytuj Odnośnik do komentarza https://forum.murator.pl/topic/201803-projektowanie-%C5%82azienki/page/228/#findComment-5825564 Udostępnij na innych stronach Więcej opcji udostępniania
bettka 10.03.2013 03:14 Zgłoś naruszenie Udostępnij Napisano 10 Marca 2013 bettka, podoba mi się twój układ. Boczne ścianki prysznica zrobiłabym z przezroczystych luxferów (pustaków szklanych), aby nie było zbyt mrocznie. Drzwi, jeśli się da, to przesunęłabym w prawo, aby było więcej miejsca przed umywalką. [ATTACH=CONFIG]174296[/ATTACH] Wymiary kabiny na wizualizacji wraz z bocznymi ściankami z luxferow to 120x82cm. Drzwi mogą być przesuwne lub otwierane, jak wolisz Moniss, dziekuję za wizualkę, ale jednak chyba nie luksfery na rzecz prostego przezroczystego szkła. Ile może kosztować kabina robiona w tym wypadku na wymiar (2 boki i drzwi przesuwne)? Obecnie użytkuję tylko wanne, czy taka kabina bardzo się brudzi? Nie wiem, czy nie przydałoby się więcej miejsca na przechowywanie różności. I nie wiem, co zrobić na ścianie przeciwległej do ciągu łazienkowego. Płytki czy farba? Cytuj Odnośnik do komentarza https://forum.murator.pl/topic/201803-projektowanie-%C5%82azienki/page/228/#findComment-5825565 Udostępnij na innych stronach Więcej opcji udostępniania
czarnaola 10.03.2013 16:09 Zgłoś naruszenie Udostępnij Napisano 10 Marca 2013 Witam serdecznie. Poniżej przedstawiam projekt mojej łazienki. Byłabym wdzięczna za wszelkie uwagi i sugestie, gdyż sama go zrobiłam - a jest to mój pierwszy projekt . Cytuj Odnośnik do komentarza https://forum.murator.pl/topic/201803-projektowanie-%C5%82azienki/page/228/#findComment-5826334 Udostępnij na innych stronach Więcej opcji udostępniania
duś1719506024 10.03.2013 16:44 Zgłoś naruszenie Udostępnij Napisano 10 Marca 2013 a co to ma być to ponad wanną? obrazek? dekor? Cytuj Odnośnik do komentarza https://forum.murator.pl/topic/201803-projektowanie-%C5%82azienki/page/228/#findComment-5826380 Udostępnij na innych stronach Więcej opcji udostępniania
czarnaola 10.03.2013 17:40 Zgłoś naruszenie Udostępnij Napisano 10 Marca 2013 a co to ma być to ponad wanną? obrazek? dekor? Bliżej nieokreślony obrazek. Próbowałam coś wykombinować z fototapetą (taką żeby wydawało się że za tą wanną jest niezmierzona przestrzeń), ale żadna z moich koncepcji mi się nie podobała i został obrazek - jak się znudzi można wymienić na inny. Jak tak przyglądam się temu projektowi to nie podoba mi się, że płytki są do sufitu a tak sie już teraz nie robi) - tylko że nie mam na razie innego pomysłu. Poza tym płytki za wanną i za kaloryferem zrobię chyba w kolorze podłogi. Planowane przeze mnie płytki to Arkesia (grys i grafit) Paradyża. Cytuj Odnośnik do komentarza https://forum.murator.pl/topic/201803-projektowanie-%C5%82azienki/page/228/#findComment-5826445 Udostępnij na innych stronach Więcej opcji udostępniania
duś1719506024 10.03.2013 19:26 Zgłoś naruszenie Udostępnij Napisano 10 Marca 2013 Bliżej nieokreślony obrazek. Próbowałam coś wykombinować z fototapetą (taką żeby wydawało się że za tą wanną jest niezmierzona przestrzeń), ale żadna z moich koncepcji mi się nie podobała i został obrazek - jak się znudzi można wymienić na inny. weź tylko poprawkę na to, że to jest wanna, w wannie się chlapie, a wstawanie po kąpieli, żeby opłukać ciało może delikatnie mówiąc skończyć się zamoczeniem obrazka. Jak tak przyglądam się temu projektowi to nie podoba mi się, że płytki są do sufitu a tak sie już teraz nie robi) - tylko że nie mam na razie innego pomysłu. jasne, że się robi. iluż zwolenników, tyluż przeciwników. zdania podzielone pół na pół Cytuj Odnośnik do komentarza https://forum.murator.pl/topic/201803-projektowanie-%C5%82azienki/page/228/#findComment-5826631 Udostępnij na innych stronach Więcej opcji udostępniania
albireo 10.03.2013 21:34 Zgłoś naruszenie Udostępnij Napisano 10 Marca 2013 Witam serdecznie. Poniżej przedstawiam projekt mojej łazienki. Byłabym wdzięczna za wszelkie uwagi i sugestie, gdyż sama go zrobiłam - a jest to mój pierwszy projekt . [ATTACH=CONFIG]175656[/ATTACH][ATTACH=CONFIG]175657[/ATTACH][ATTACH=CONFIG]175658[/ATTACH][ATTACH=CONFIG]175659[/ATTACH][ATTACH=CONFIG]175660[/ATTACH] Na tej ścianie z okem, nie ma płytek, prawda? Wydaje mi się, że to dosyć ciekawie może wyglądać i spokojnie możesz zostawić płytki na pozostałych ścianach. Kilka pytań - zabudowa sedesu - na pewni da się równo ze ścianą? Weź to pod uwagę, gdyż może się okazać, że będzie ona wystawać - wtedy musisz pomyśleć, co zrobić z przestrzenią nad nią. Masz stosunkowo mało przestrzeni magazynowej - pomyśl, czy nie potrzebujesz ciut więcej. Cytuj Odnośnik do komentarza https://forum.murator.pl/topic/201803-projektowanie-%C5%82azienki/page/228/#findComment-5826959 Udostępnij na innych stronach Więcej opcji udostępniania
moniss 10.03.2013 22:29 Zgłoś naruszenie Udostępnij Napisano 10 Marca 2013 (edytowane) czarnaolaZgadzam sie z albireo, ładnie wyglądają te dwie wypłytkowane aż do sufitu ściany . Ładnie kontrastują z tymi tylko pomalowanymi. Pas płytek grafitowych za drabinką też jest OK.Jeśli nie uda się stelaża wc całkowicie zabudować w ścianie, to płytki aż po sufit + wystajcy stelaż...to może być już za dużo i wówczas, prawdopodobnie trzeba by przynajmniej na tej jednej ścianie obniżyć linię płytek.Te płytki na wizualizacji są bardzo ładne. bettkana drugiej ścianie pomyśl może o fototapecie: coś co wprowadzi iluzję wielkiej przestrzeni, tajemniczego ogrodu itp.Przy prysznicu proponowałam luxfery ze względu na łatwiejsze utrzymanie czystości, a poza tym szafkę umywalki będzie można dosunąć aż do samej ścianki (przy kabinach szklanych raczej zostawia się odstęp aby móc je wyczyścić) Edytowane 10 Marca 2013 przez moniss Cytuj Odnośnik do komentarza https://forum.murator.pl/topic/201803-projektowanie-%C5%82azienki/page/228/#findComment-5827088 Udostępnij na innych stronach Więcej opcji udostępniania
kasik6 11.03.2013 07:35 Zgłoś naruszenie Udostępnij Napisano 11 Marca 2013 Cześć potrzebuję pomocy: chcę zrobić żółto (lub pomarańczowo) białą łazienkę z podłogą żółtą lub pomarańczową nie chcę białej ze względu na wygodę (mniej walki z białymi fugami:rolleyes: ) czy widzieliście jakieś fajne płytki lub już gotowe łazienki? Cytuj Odnośnik do komentarza https://forum.murator.pl/topic/201803-projektowanie-%C5%82azienki/page/228/#findComment-5827231 Udostępnij na innych stronach Więcej opcji udostępniania
Gosiek33 11.03.2013 07:45 Zgłoś naruszenie Udostępnij Napisano 11 Marca 2013 wystarczy trochę pogooglać http://urzadzone.pl/zolta-lazienka-galeria,artykul.html?material_id=4e2d5c22fbaedd9857020000 http://arch.blox.pl/2008/11/CIEKAWE-PROJEKTY-DOMOW.html http://forum.muratordom.pl/showthread.php?144565-%C5%81azienka-Darujcie-sobie-uprzejmo%C5%9B%C4%87-potrzebna-krytyka!! http://projektyarchiko.blogspot.com/2012_05_01_archive.html Cytuj Odnośnik do komentarza https://forum.murator.pl/topic/201803-projektowanie-%C5%82azienki/page/228/#findComment-5827250 Udostępnij na innych stronach Więcej opcji udostępniania
kasik6 11.03.2013 08:17 Zgłoś naruszenie Udostępnij Napisano 11 Marca 2013 Dzięki, dużo oglądam i nic jakoś do głowy mi nie przychodzi muszę chyba wrzucić swoją łazienkę i poprosić o pomoc w poukładaniu całości.: Cytuj Odnośnik do komentarza https://forum.murator.pl/topic/201803-projektowanie-%C5%82azienki/page/228/#findComment-5827297 Udostępnij na innych stronach Więcej opcji udostępniania
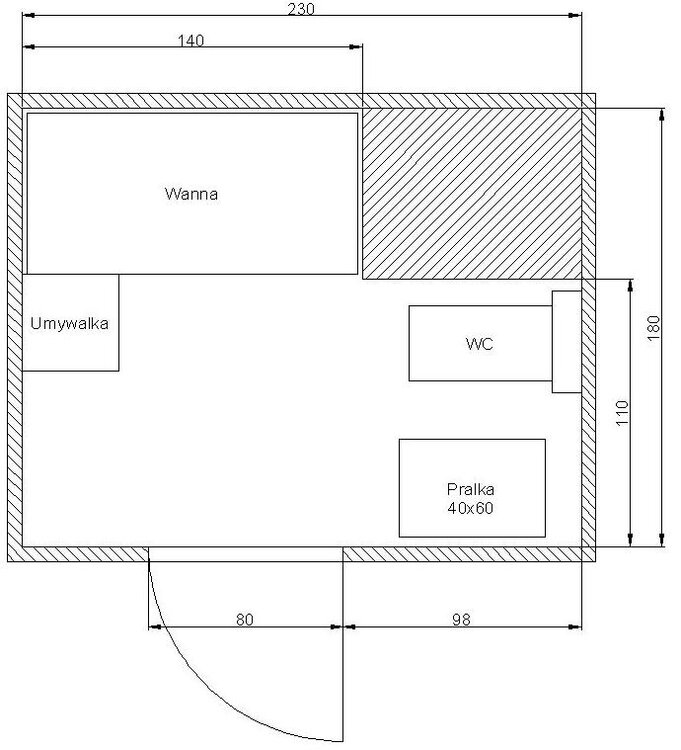
Datkap 11.03.2013 11:56 Zgłoś naruszenie Udostępnij Napisano 11 Marca 2013 Witam W niedługiej przyszłości będę robić remont łazienki i przedpokoju ale martwi mnie właśnie łazienka mam malutką i jeszcze dodatkowo z kominem. Proszę o pomoc w aranżacji. Musi być wanna najlepiej z prysznicem. Pralki nie będę wymieniać jednak wszystko inne idzie do wymiany. Załączam schemat obecny łazienki. Bardzo proszę o pomoc. Cytuj Odnośnik do komentarza https://forum.murator.pl/topic/201803-projektowanie-%C5%82azienki/page/228/#findComment-5827748 Udostępnij na innych stronach Więcej opcji udostępniania
bettka 11.03.2013 13:23 Zgłoś naruszenie Udostępnij Napisano 11 Marca 2013 Moniss, dzięki za radę. Jak to właściwie jest z utrzymaniem czystości kabiny? Bo ja do tej pory miałam tylko wanny Czy nawet jak jest szkło z powłoką to osadza się kamień i osad z mydła? I trzeba polerowac po kazdym użyciu? Cytuj Odnośnik do komentarza https://forum.murator.pl/topic/201803-projektowanie-%C5%82azienki/page/228/#findComment-5827943 Udostępnij na innych stronach Więcej opcji udostępniania
Gosiek33 11.03.2013 13:58 Zgłoś naruszenie Udostępnij Napisano 11 Marca 2013 Osad zależy od twardości wody i częstości użytkowania. Na szkle z powłoką też się osadza, choc nie tak jak na zwykłym - powłoka zasadniczo przyspiesza spływanie kropli wody Cytuj Odnośnik do komentarza https://forum.murator.pl/topic/201803-projektowanie-%C5%82azienki/page/228/#findComment-5828015 Udostępnij na innych stronach Więcej opcji udostępniania
Sniper 11.03.2013 23:17 Zgłoś naruszenie Udostępnij Napisano 11 Marca 2013 Witam, Jestem na etapie projektowania łazienki. Zależy mi, żeby na powierzchni 5,2 m2 zmieścić wygodną wannę, szeroką umywalkę (80-100 cm), WC, bidet i jakieś szafeczki na drobiazgi. Pralkę przeniosę do garderoby obok. Czy mogę prosić o opinie dot. poniższego projektu? Czy ma ręce i nogi? Co można zmienić, żeby to usprawnić? http://strony.aster.pl/sniper/Mieszkanie/Projekt%2030A.jpg http://strony.aster.pl/sniper/Mieszkanie/Projekt%2030B.jpg http://strony.aster.pl/sniper/Mieszkanie/Projekt%2030W.jpg Dodam, że wszystkie przyłącza i odpływy zaprojektowane są dokładnie tam, gdzie umieściłem urządzenia. Jedynie w miejscu wiszących szafeczek developer przewidział pralkę, ale jak wspomniałem, wywędruje do pomieszczenia obok. Cytuj Odnośnik do komentarza https://forum.murator.pl/topic/201803-projektowanie-%C5%82azienki/page/228/#findComment-5829362 Udostępnij na innych stronach Więcej opcji udostępniania
Sniper 12.03.2013 03:08 Zgłoś naruszenie Udostępnij Napisano 12 Marca 2013 te szafeczki się nie otworzą, będą haczyć o bidet.Fakt, mogą haczyć. Ale gdyby dolna szafka była w formie uchylnego cargo, problem byłby mniejszy. Ewentualnie możemy poszukać/zamówić szafki o głębokości 20 cm, tylko czy takie maleństwa mają sens? Zapomniałem dodać, że wymiary podałem w stanie surowym. Ile powinienem odjąć na gresy? 3,5 cm wystarczy? Moglibyśmy dosunąć WC do ściany na 20 cm zamiast 23,5 cm. Nie będzie za ciasno? Bidetu w stronę WC już chyba nie mogę przesunąć? Obecne 25 cm to nawet mniej niż zalecane... Jest jakakolwiek szansa, żeby jeszcze ugrać tam jeszcze parę cm, żeby zyskać na ergonomii? Może inną ceramikę? Wybraliśmy Villeroy & Boch Subway 2.0 o szerokości 37,5 cm. Dla porównania Koło Ego ma 35 cm. Na dwóch urządzeniach to już 5 cm różnicy, ale nie mamy przekonania do tej firmy. Może jest jakiś alternatywny, zbliżony designem zestaw dobrej firmy? czy bidetta wchodzi w grę? Bierzemy z żoną takie rozwiązanie pod uwagę, ale trochę mniej nas to przekonuje. Zdania na forum też są podzielone i chyba jakoś bardziej ciągnie nas w stronę bidetu. Mamy nawet taki projekt: http://strony.aster.pl/sniper/Mieszkanie/Projekt%2027A.jpg Po obu stronach WC są szafki częściowo schowane w ścianie (zabudowie geberitu). Mają 35 cm głębokości i wystają 15 cm ponad obrys zabudowy. Brakuje tylko pomysłu gdzie zawiesić bidettę. Mimo wszystko szukamy alternatywy z bidetem. rozwiązaniem byłoby umieszczenie większej szafy obok bidetu (otwieranej na ścianę) - mam pewne wątpliwości czy to by ładnie wyglądało, ale przynajmniej byłby dostęp) To też jest jakiś pomysł. Spróbowałem coś takiego zaprojektować i niegłupio wyszło. Zrobiłem zabudowę geberitu na całej ścianie, jednocześnie ukrywając w niej szafkę o głęb. 35 cm, tak by wystawała 15 cm ponad obrys zabudowy (identycznie jak powyżej). Optycznie skróciła się łazienka, ale chyba lepiej wygląda niż taki słupek o wysokości 120 cm? http://strony.aster.pl/sniper/Mieszkanie/Projekt%2033A.jpg Jakoś nie pasują mi też szafki przy umywalce. Może je całkiem zlikwidować i zamiast szafki umywalkowej 80 cm dać 100 cm? Coś w tym stylu? http://strony.aster.pl/sniper/Mieszkanie/Projekt%2034A.jpg Cytuj Odnośnik do komentarza https://forum.murator.pl/topic/201803-projektowanie-%C5%82azienki/page/228/#findComment-5829414 Udostępnij na innych stronach Więcej opcji udostępniania
asiazett 12.03.2013 08:11 Zgłoś naruszenie Udostępnij Napisano 12 Marca 2013 Sniper moim subiektywnym zdaniem rozstawienie tych mebelków w kąt prosty i jeszcze wpuszczenie jednego w ścianę, a drugiego nie - jakoś psuje estetyką A nie można by ich połączyć w jedna bryłę w formie szafy z przesuwnymi drzwiami i problem otwierania półek byłby z głowy, a jednoczęsnie wszystko wyglądało by spójnie? pozdrawiam asiazett Cytuj Odnośnik do komentarza https://forum.murator.pl/topic/201803-projektowanie-%C5%82azienki/page/228/#findComment-5829574 Udostępnij na innych stronach Więcej opcji udostępniania
monia222b 12.03.2013 09:49 Zgłoś naruszenie Udostępnij Napisano 12 Marca 2013 Witam po projekcie kuchni przyszedł czas na łazienkę. pomieszczenie ma niewiele ponad 4,2 m kw, instalacja jest już podłączona wg projektu dewelopera i dlatego nie chcielibyśmy zbyt dużo zmieniać. Zamiast wanny zdecydowaliśmy się na prysznic, swoje stałe miejsce ma tez WC oraz umywalka, która ma się znajdować na blacie z płytek. Tematem spornym jest nadal pralka oraz bidet. Jesli nie byłoby bidetu, zyskalibyśmy miejsce na dodatkową szafkę, oraz zmieściłaby się w łazience standardowa pralka. Jesli pralka mialabaly stac kolo prysznica, to bedzie ladowana od gory Poniżej zamieszczam wstępne projekty i proszę Was bardzo o poradępozdrawiam! Chciałam dodać, że mam problem z dobraniem płytek, ponieważ zauważyłam, że ostatnio standardem stała się płytka 20x60 lub 30x60, a w tak małej łazience nie wyglądałoby to korzystnie... Co o tym myslicie? łazienka ma byc nowoczesna, ale w stonowanych kolorach - beże, szarości itp. Może macie jakies fajne pomysły? chcę ją powiększyć duzym lustrem na szerokosc blatu i ładnym oswietleniem. Cytuj Odnośnik do komentarza https://forum.murator.pl/topic/201803-projektowanie-%C5%82azienki/page/228/#findComment-5829836 Udostępnij na innych stronach Więcej opcji udostępniania
Recommended Posts
Dołącz do dyskusji
Możesz dodać zawartość już teraz a zarejestrować się później. Jeśli posiadasz już konto, zaloguj się aby dodać zawartość za jego pomocą.