potoczka 05.04.2013 20:26 Zgłoś naruszenie Udostępnij Napisano 5 Kwietnia 2013 (edytowane) https://picasaweb.google.com/112685260796053834995/OstatnioZaktualizowane?authkey=Gv1sRgCOGG9IHZue731QE#5847129627083593042 witam potrzebuje pomocy maz chce robic chudziak a ja nie wiem jak ma puscic rury do kanalizacji macie moze jakies propozycje? a tak dokładnie to mówie o 4 a drzwi to narazie nie wiem jak beda moze blizej sciany do 5 bo tam przejscia do garazu juz nie ma jest tak poprostu nasza sypialnia powiekszona. musi tam byc brodzik chcialam na poczatku wanne alle nie mam za duzo miejsca a musze zmiescic jak narazie tam pralke bo nie wiem kiedy zaczniemy myslec o uzytkowym poddaszu zeby go urzadzac. Edytowane 5 Kwietnia 2013 przez potoczka Cytuj Odnośnik do komentarza https://forum.murator.pl/topic/201803-projektowanie-%C5%82azienki/page/244/#findComment-5875296 Udostępnij na innych stronach Więcej opcji udostępniania
asiazett 05.04.2013 21:12 Zgłoś naruszenie Udostępnij Napisano 5 Kwietnia 2013 BubuEcierecie mogę wrzucić jedno z Twoich zdjęć na tamat obok "ŁAZIENKI NASZE !!!!!!"? Cytuj Odnośnik do komentarza https://forum.murator.pl/topic/201803-projektowanie-%C5%82azienki/page/244/#findComment-5875427 Udostępnij na innych stronach Więcej opcji udostępniania
moniss 05.04.2013 21:34 Zgłoś naruszenie Udostępnij Napisano 5 Kwietnia 2013 (edytowane) potoczka Jeśli bardzo chcesz to zmieści się też i wanna (150-160cm), najlepsza by była asymetryczna. Do tego prysznic 90-tka (jak na załączonym obrazku) i wc kompakt narożne lub standardowe ze stelażem. Pralka schowana w wysokiej szafce, gdzie zmieści się jeszcze cała chemia godpodarcza. Rzuciłam też okiem na inne fotki na Picasa Web i zauważyłam wprowadzane kolorem zmiany Jeśli mogę dorzucić swoje 2 grosze: Garderoba i spiżarka podzieliłam na spiżarkę (o szer. 120cm) i szafę wnękową Wejście do spiżarki bym zostawiła tam gdzie oryginalnie i w kuchni zrobiłabym zabudowę dwurzędową. Moim zdaniem jest bardziej funkcjonalna niż U (np. brak szafek narożnych, jeden rząd można zamienić na wysoką zabudowę). Popieram zrobienie wejścia do wc z przedsionka/sieni, a nie salonu. Salon zostawiłabym bez zmian, tylko przeniosłabym drzwi tarasowe blizej kuchni. Dzięki temu mamy miejsce na TV naprzeciwko kanapy. A poza tym, zawsze to bliżej z kuchni na taras aby wypić poranną kawę LEGENDA: Pomarańczowe - zabudowa kuchni Niebieskie - szafka z telewizorem itp. Brązowe - wypoczynek Oliwkowy - szafa wnękowa P.S. Wejście do kuchni zmniejszyłabym ze 160 na 150, dzięki temu po prawej stronie mamy 66cm na szafki. Ocalony pokój - pokój gościnny, gabinet, biblioteka, pokój hobby itp. EDYTOWANO W ŚRODKU NOCY: Przesunięte wejscie do spiżarni. Zabudowa kuchni w kształcie U z "przerywnikiem" Edytowane 5 Kwietnia 2013 przez moniss Cytuj Odnośnik do komentarza https://forum.murator.pl/topic/201803-projektowanie-%C5%82azienki/page/244/#findComment-5875488 Udostępnij na innych stronach Więcej opcji udostępniania
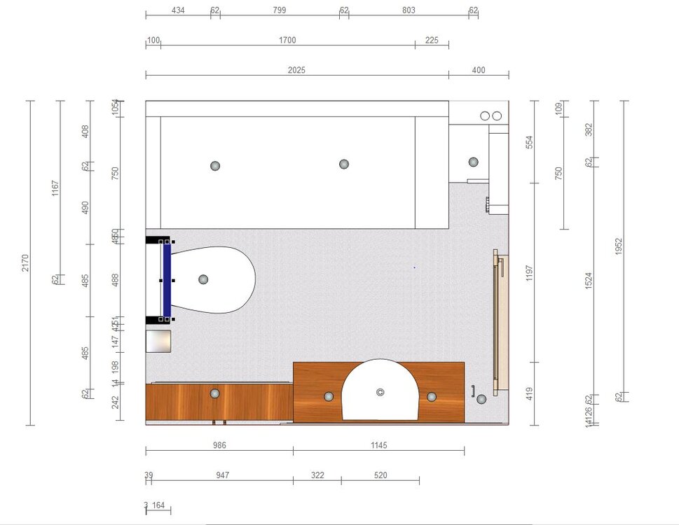
potoczka 06.04.2013 13:01 Zgłoś naruszenie Udostępnij Napisano 6 Kwietnia 2013 to jest rzut po zminach ktore mamy zrobione Cytuj Odnośnik do komentarza https://forum.murator.pl/topic/201803-projektowanie-%C5%82azienki/page/244/#findComment-5876147 Udostępnij na innych stronach Więcej opcji udostępniania
moniss 06.04.2013 14:25 Zgłoś naruszenie Udostępnij Napisano 6 Kwietnia 2013 [ATTACH=CONFIG]181792[/ATTACH] to jest rzut po zminach ktore mamy zrobione Tak, wiem, widziałam Ale to na papierze, czy już w realu? Salon mimo, że ogromny, wydaje się mało ustawny. A co powiesz na ustawienia sprzętów w Waszej łazience? Cytuj Odnośnik do komentarza https://forum.murator.pl/topic/201803-projektowanie-%C5%82azienki/page/244/#findComment-5876287 Udostępnij na innych stronach Więcej opcji udostępniania
potoczka 06.04.2013 17:08 Zgłoś naruszenie Udostępnij Napisano 6 Kwietnia 2013 (edytowane) moris dziekuje za szybka odpowiedz ale wydaje mi sie ze jednak bez wanny bedzie bardziej ustawnie w tej malej lazience tylko jeszcze nie wymyslilam jak? juz w realu jest tak zmienione bo mury po 10 pustaków juz stoją szykujemy sie do stropu ale musimy zrobic chudziak i puscic rury pod kanalizacje. w salonie przy oknie bedzie prawdopodobnie stół z krzesłami a na srodku naroznik tylko jeszcze nie wiem jaki a ale do tego to jeszcze daleko pierwsza łazienka i oczywiście kuchnia moje królestwo:) Edytowane 7 Kwietnia 2013 przez joliska Cytuj Odnośnik do komentarza https://forum.murator.pl/topic/201803-projektowanie-%C5%82azienki/page/244/#findComment-5876607 Udostępnij na innych stronach Więcej opcji udostępniania
BubuEcierecie 06.04.2013 18:25 Zgłoś naruszenie Udostępnij Napisano 6 Kwietnia 2013 BubuEcierecie mogę wrzucić jedno z Twoich zdjęć na tamat obok "ŁAZIENKI NASZE !!!!!!"? tak, pewnie Cytuj Odnośnik do komentarza https://forum.murator.pl/topic/201803-projektowanie-%C5%82azienki/page/244/#findComment-5876786 Udostępnij na innych stronach Więcej opcji udostępniania
moniss 07.04.2013 07:41 Zgłoś naruszenie Udostępnij Napisano 7 Kwietnia 2013 (edytowane) potoczka, wersje bez wanny: Wersja 4 ze ścianką prysznica z luxferów Edytowane 7 Kwietnia 2013 przez moniss Cytuj Odnośnik do komentarza https://forum.murator.pl/topic/201803-projektowanie-%C5%82azienki/page/244/#findComment-5877783 Udostępnij na innych stronach Więcej opcji udostępniania
potoczka 07.04.2013 17:23 Zgłoś naruszenie Udostępnij Napisano 7 Kwietnia 2013 moriss najbardziej podoba mi sie propozycja 1 dziekuje za propozycje Cytuj Odnośnik do komentarza https://forum.murator.pl/topic/201803-projektowanie-%C5%82azienki/page/244/#findComment-5878758 Udostępnij na innych stronach Więcej opcji udostępniania
moniss 07.04.2013 18:59 Zgłoś naruszenie Udostępnij Napisano 7 Kwietnia 2013 (edytowane) moriss najbardziej podoba mi sie propozycja 1 dziekuje za propozycje Moim faworytem jest nr 2 - jest najwięcej przestrzeni. Tu inna kolorystyka wersji 2 z grzejnikiem łazienkowym na ścianie. Akurat nr 1 najmniej mi odpowiada, gdyż na samym wejściu jest trochę klaustrofobicznie. No wiesz, z jednej strony prysznic, z drugiej wysoka zabudowa pralki... jak w tunelu Wersja 1 z grzejnikiem łazienkowym przy umywalce: Wejście do łazienki w wersji 1: Dla porównania widok od wejścia wersji 2: Wersja 5 łazienki, czyli alternatywa dla wersji 1: Po lewej stronie od wejścia wc, a po prawej zabudowa pralki. A to co najładniejsze na wprost wchodzącego Edytowane 7 Kwietnia 2013 przez moniss Cytuj Odnośnik do komentarza https://forum.murator.pl/topic/201803-projektowanie-%C5%82azienki/page/244/#findComment-5878969 Udostępnij na innych stronach Więcej opcji udostępniania
monia_ 08.04.2013 11:30 Zgłoś naruszenie Udostępnij Napisano 8 Kwietnia 2013 Nie zaglądałam na forum a to taki projektowy szał Widzę że wiosna i pomysłów mnóstwo;) Nasz projekt już w fazie końcowej:lol2: Chciałam Was zapytać o 2 szczegóły: wanna- z mozajką po całości czy tylko przód oraz prysznic- drewniany pas Jak lepiej? Cytuj Odnośnik do komentarza https://forum.murator.pl/topic/201803-projektowanie-%C5%82azienki/page/244/#findComment-5880101 Udostępnij na innych stronach Więcej opcji udostępniania
asiazett 08.04.2013 11:44 Zgłoś naruszenie Udostępnij Napisano 8 Kwietnia 2013 monia_ ja obstawiam wersję z mozaiką tylko na froncie, ale jesli chodzi o pas pod prysznicem to już nie doradzę - nie wiem! Cytuj Odnośnik do komentarza https://forum.murator.pl/topic/201803-projektowanie-%C5%82azienki/page/244/#findComment-5880134 Udostępnij na innych stronach Więcej opcji udostępniania
mgocha 08.04.2013 12:07 Zgłoś naruszenie Udostępnij Napisano 8 Kwietnia 2013 Witam Mam do urządzenia 2 łazienki i nie wiem co z nimi zrobić tzn. rozmieszczenie sprzętów jest tylko nie mam wizji z płytkami. Zacznę od dolnej łazienki (łatwiejsza do rozrysowania:)): wanna 175/75, prysznic 90, umywalka 60 Do tej łazienki wybrałam płytki z kolekcji Tubądzin Elegant Natur z jasną podłogą (raczej bez mozaiki). Bardzo proszę o jakąś wizualizację Cytuj Odnośnik do komentarza https://forum.murator.pl/topic/201803-projektowanie-%C5%82azienki/page/244/#findComment-5880183 Udostępnij na innych stronach Więcej opcji udostępniania
moniss 08.04.2013 13:21 Zgłoś naruszenie Udostępnij Napisano 8 Kwietnia 2013 monia_, jak dla mnie to pas drewna pod prysznicem na prysznicowym panelu (czyli opcja 2). Co do wanny, to może w ogóle zrób ją na szaro bez mozaiki? Mozaiki wystarczy przy lustrze Cytuj Odnośnik do komentarza https://forum.murator.pl/topic/201803-projektowanie-%C5%82azienki/page/244/#findComment-5880325 Udostępnij na innych stronach Więcej opcji udostępniania
ewanz 08.04.2013 19:09 Zgłoś naruszenie Udostępnij Napisano 8 Kwietnia 2013 monia_ bardzo fajne sa Twoje wizki - łazienka pięknie sie zapowiada. Mozesz napisać jakie płytki masz zamiar uzyć ? Ja przymierzam się do Noce by my way ( ale równiez na podłodze) i NG Signum 12. Cytuj Odnośnik do komentarza https://forum.murator.pl/topic/201803-projektowanie-%C5%82azienki/page/244/#findComment-5880843 Udostępnij na innych stronach Więcej opcji udostępniania
Alicja 35 09.04.2013 11:01 Zgłoś naruszenie Udostępnij Napisano 9 Kwietnia 2013 Kochani od jakigoś czasu podczytuję ten wątek i jestem zachwycona waszymi pomysłami i niesamowitą wiedzą, zawsze myślałam że urządzenie własnej łazienki będzie dla mnie wspaniałym doświadczaniem a tu zonk . zrobiłam jakąs tam wizualizację w pro100 i szału nie ma moja łazienka ma 5 m2, ma wymiary 235 na 217, doradźcie proszę jakie kolory zastosować ( czy krem z czarnym czy szary z czarnym) no i jak urządzić ścianę z lustrem i umywalką zależny mi na szafkach żeby jak najwięcej w nich pochować bo nie lubię wystawek. marzy mi się prosta ale odważna łazienka a ta moja jakaś taka babcina mi wyszła Cytuj Odnośnik do komentarza https://forum.murator.pl/topic/201803-projektowanie-%C5%82azienki/page/244/#findComment-5882120 Udostępnij na innych stronach Więcej opcji udostępniania
asiazett 09.04.2013 11:22 Zgłoś naruszenie Udostępnij Napisano 9 Kwietnia 2013 Szary z czarnym mi brzmi w pierwszym wrażeniu - dość przytłaczająco, ale... przecież to wszystko zależy od tego jak się już poszczególne odcienie skomponują. Czy masz już upatrzone płytki? Bo jeśli nie masz to zaczęła bym od znalezienia takich, które Ci się podobają, a wtedy być może dylemat kolorów się rozwiąże. A jak ostatecznie zdecydujesz się na jedną z tych opcji to może się okazać, że dobierane przez Ciebie płytki niespecjalnie zgrywają się w zestawie... Cytuj Odnośnik do komentarza https://forum.murator.pl/topic/201803-projektowanie-%C5%82azienki/page/244/#findComment-5882170 Udostępnij na innych stronach Więcej opcji udostępniania
monia_ 09.04.2013 11:33 Zgłoś naruszenie Udostępnij Napisano 9 Kwietnia 2013 asiazett, moniss dzięki za odzew i opinie! Decyzja zapadła:yes: Pas drewniany będzie obok wc czyli na baterii prysznicowej. Wanna mozajka na froncie. Cała wanna w gładkiej płytce wydaje mi się zbyt smutna, no i chciałam jakoś nawiązać do tej mozajki spod lustra;) Został nam tylko wybór sanitarki, ale to już mam nadzieję na "żywo" w sklepie coś wpadnie w oko. Dziękuję wszystkim forumowiczom za rady i opinie. Wasza pomoc jest bezcenna! Szczególne ukłony dla moniss- bez Ciebie mój łazienkowy góru byłabym w ciemnej... Jesteś WIELKA! ewanz miło mi, że podoba Ci się projekt mojej łazienki:D Płytki to właśnie Nowa Gala Signum 12 oraz Woodentic Ochra Paradyż. Mam nadzieję, że w realu wyjdzie równie ładnie;) Cytuj Odnośnik do komentarza https://forum.murator.pl/topic/201803-projektowanie-%C5%82azienki/page/244/#findComment-5882202 Udostępnij na innych stronach Więcej opcji udostępniania
Alicja 35 09.04.2013 11:37 Zgłoś naruszenie Udostępnij Napisano 9 Kwietnia 2013 Wielki dzięki asiazett. o tak czarny z szarym brzmi nieco ciężko ale myślałam o drewnianych szafkach w ciepłym odcieniu, które ożywiły by całość. a co do tego szarego nie będę się upierać. płytki oglądałam ostatnio ale nic mi nie przypadło jeszcze do gustu Cytuj Odnośnik do komentarza https://forum.murator.pl/topic/201803-projektowanie-%C5%82azienki/page/244/#findComment-5882216 Udostępnij na innych stronach Więcej opcji udostępniania
moniss 09.04.2013 13:22 Zgłoś naruszenie Udostępnij Napisano 9 Kwietnia 2013 (edytowane) Alicja 35, może lepiej przestawić wc z centralnego miejsca na wprost drzwi, a w tym miejscu dać grzejnik-drabinkę. Na Twoim rysunku jest mało miejsca pomiędzy sedesem a wanną - powinno być ze 20cm. Poniżej przykłądowa wizualizacja Twojej łazienki z pralką w zabudowie i w przykłądowych kolorach szarym i czarnym: Przyjmijmy, że to turkusowe, to drabinka z powiesznym turkusowym ręcznikiem Edytowane 9 Kwietnia 2013 przez moniss Cytuj Odnośnik do komentarza https://forum.murator.pl/topic/201803-projektowanie-%C5%82azienki/page/244/#findComment-5882561 Udostępnij na innych stronach Więcej opcji udostępniania
Recommended Posts
Dołącz do dyskusji
Możesz dodać zawartość już teraz a zarejestrować się później. Jeśli posiadasz już konto, zaloguj się aby dodać zawartość za jego pomocą.