Alicja 35 05.05.2013 20:45 Zgłoś naruszenie Udostępnij Napisano 5 Maja 2013 Bardzo dziękuję program już zainstalowany, ale jakoś ciężko mi to przychodzi ( "bo jestem taką pierdołą że jakby wybierano największą pierdołę roku to zajęłabym 2 miejsce...dlaczego? bo taka ze mnie pierdoła" więc jeszcze pozostanę przy swoim "ubogim pro100 Cytuj Odnośnik do komentarza https://forum.murator.pl/topic/201803-projektowanie-%C5%82azienki/page/250/#findComment-5919461 Udostępnij na innych stronach Więcej opcji udostępniania
Alicja 35 05.05.2013 21:21 Zgłoś naruszenie Udostępnij Napisano 5 Maja 2013 A oto co wypociłam z programu pro100. proszę o sugestie i uwagi bo ciągle jeszcze nie czuję że jest idealnie, wiem że to malutka łazienka ustawienie sprzętów musi już takie pozostać ale możne macie jakieś propozycje albo widzielibyście to inaczej bo mi już brakuje weny... jeszcze ta wizualizacja jakoś mnie dołuje:eek:. Cytuj Odnośnik do komentarza https://forum.murator.pl/topic/201803-projektowanie-%C5%82azienki/page/250/#findComment-5919519 Udostępnij na innych stronach Więcej opcji udostępniania
Alicja 35 06.05.2013 10:57 Zgłoś naruszenie Udostępnij Napisano 6 Maja 2013 ta wizka jest jak najbardziej poprawna. zwracam tylko uwagę na kilka rzeczy. 1. pralka i grzejnik. skoro planujesz ładowaną z góry, grzejnik powieś na tyle wysoko, żeby ci się klapa swobodnie otworzyła. wiem, że wizka jest umowna, ale nie wiem czy zwróciłaś na to uwagę. jeśli by dało radę, to może warto by było powiesić grzejnik na tej ścianie "w wannie'? są termostaty do sfery morkej a tam i tak się pewnie znajdzie wieszak na ręcznik. 2. pod blatem masz zaplanowaną długą szafkę. odległość od wc wydaje się na tyle mała, że i tak od frontu dostępu tam nie będzie. jeśli nie ma nawyku stawiania pół miliarda pierdół na blacie i jesli jednocześnie chcecie trochę zainwestować w stolarza który to wykona na indywidualne zamówienie, to ja bym w ten średnio dostępny kąt wrzuciła zamykany od góry brudownik (u mojej znajomej fragment blatu w takim miejscu stanowi klapę pod którą w specjalnej szafce jest zawieszony worek na brudne skarpetki. można to łatwo wyciągnąć i do prania, a jednocześnie nie jest na widoku) 3. rozważ czy aby lustra i zabudowy nie dosunąć do szyby - parawanu nawannowego (mniemam, że taką planujesz). nie twierdzę, że kilkunastocm wnęka będzie wyglądać źle, ale z uwagi na bliskość wc i rozmiar robisz trudnodostępne miejsce na kurz i takie tam około toaletowe żyjątka. i od razu uwaga - jeśli planujesz tam postawić szczotkę kibelkową, to warto pomierzyć, ile szczotki, które planujesz mają szerokości. żeby się na bank mieściła duś jesteś kochana bardzo dziękuję za zainteresowanie i mega cenne uwagi od.1 grzejnik - właśnie jest ruchomy tzn jeszcze nie zdecydowaliśmy gdzie go umieścić, więc pewien masz rację, żeby go wrzucić nad pralkę. chciałam żeby był jak najmniej widoczny bo przy 4 osobowej rodzinie pewnie wieczorem będzie obwieszony ręcznikami ad2. jestem minimalistką i nie lubię żadnych wystawek stąd też długi blat i to zabudowane lustro z szafką nad geberitem (żeby wszytko było pochowane ) właśnie tak jak piszesz blat ma być długi ale podzielony tzn : 120 szafka z 2 szufladami a bliżej ściany blat unoszony do góry i tam kosz na brudną bieliznę . w sumie nie spotkałam się z takim rozwiązaniem w praktyce, czy u tej koleżanki jest to duże czy mieści się tam więcej prania niż tylko skarpetki. myślałam o jakimś koszu wyciąganym ale nie mam tu jeszcze sprecyzowanej koncepcji, jak by to technicznie miało wyglądać. a propos tej zabudowanej szafki z lustrem mam pytanie czy kupować szafkę z lustrem czy moze same drzwi z przyklejonym lustrem bo i tak bedzie to wszystko zabudowane karon-gipsem a w sumie to zawsze kilka cm szafki więcej ? ad3 ta wnęka przy toalecie to faktycznie może być nie wypał , wiec ściankę pociągniemy do wanny, a szczotka do wc będzie jakaś podwieszana. jeszcze raz bardzo dziękuję Cytuj Odnośnik do komentarza https://forum.murator.pl/topic/201803-projektowanie-%C5%82azienki/page/250/#findComment-5920030 Udostępnij na innych stronach Więcej opcji udostępniania
R4di 06.05.2013 13:13 Zgłoś naruszenie Udostępnij Napisano 6 Maja 2013 (edytowane) To i ja się pochwalę koncepcją małej łazienki... niecałem 3 m2 renderowanie się jeszcze nie skończyło...jak wygładzi krawędzie będzie ładny obrazek Edytowane 6 Maja 2013 przez R4di Cytuj Odnośnik do komentarza https://forum.murator.pl/topic/201803-projektowanie-%C5%82azienki/page/250/#findComment-5920194 Udostępnij na innych stronach Więcej opcji udostępniania
Alicja 35 07.05.2013 13:18 Zgłoś naruszenie Udostępnij Napisano 7 Maja 2013 u mojej znajomej brudownik jest schowany w szafce 50 lub 60 (wyznacza to tak naprawdę wielkość kibelka), przy czym szafka jest do ziemi. w środku są haczyki/uchwyty, na których "wiszą" ucha wielkiego worka na brudną bieliznę (jak znam życie sama go uszyła, bo ona z tych manualnie uzdolnionych). wydaje mi się, że worek jest lepszym rozwiązaniem niż kosz, bo wyobraź sobie jak ty to potem będziesz wyciągać, gdy się zapełni. no i jak coś śmierdzącego tam czasem zląduje za sprawą szanownych pociech, to taki worek wrzucasz do pralki i po smrodku. wyciąganie kosza za każdym praniem, zwłaszcza, gdy tam ten kibelek jest, będzie mniej wygodne. co do wielkości - absolutnie wystarczające choć oczywiście wiele zależy od indywidualnych potrzeb. kumpel ma na brudy kosz-szufladę o wymiarach 50 x 40 x 35 cm i też wszystko się tam bezproblemowo mieści. (zresztą mój wydaje mi się, że mój stojący kosz ma całkiem podobny gabaryt) co do szafki - u mnie we wnęce jest szafka "bez wnętrza". nie brudzi się to jakoś bardziej, natomiast wymaga, aby ściana była baaaaardzo prościutka, bo wszelkie niedokładności spowodują, że front nie będzie przylegał idealnie. duś bo sie w tobie zakocham, a mam męża i 2 dzieci, taka jesteś kochana zajebiste te rozwianie u znajomej i faktycznie worek to lepsze rozwiązanie niż ten mój druciany kosz. w sumie pranie robię prawie co dziennie, wiec aż taki ogromy kosz mi nie jest potrzebny ale jak to przy 4 osobowej rodzinie bywa nie chcę żeby po 3 dniach nie prania, sterty ciuszków leżały na półce( bo sie nie zmieszczą ) pólka szuflada super pomysł ale u mnie niestety odpada że względu na gabaryty łazienki. Cytuj Odnośnik do komentarza https://forum.murator.pl/topic/201803-projektowanie-%C5%82azienki/page/250/#findComment-5921591 Udostępnij na innych stronach Więcej opcji udostępniania
duś1719506024 07.05.2013 13:37 Zgłoś naruszenie Udostępnij Napisano 7 Maja 2013 ależ proszę cię uprzejmie Cytuj Odnośnik do komentarza https://forum.murator.pl/topic/201803-projektowanie-%C5%82azienki/page/250/#findComment-5921612 Udostępnij na innych stronach Więcej opcji udostępniania
Sylwia_LBN 07.05.2013 15:24 Zgłoś naruszenie Udostępnij Napisano 7 Maja 2013 [ATTACH=CONFIG]187092[/ATTACH] [ATTACH=CONFIG]187093[/ATTACH] [ATTACH=CONFIG]187094[/ATTACH] [ATTACH=CONFIG]187095[/ATTACH] [ATTACH=CONFIG]187096[/ATTACH] Bardzo Was proszę o pomoc przy górnej łazience - brak pomysłu na wysokość układania płytek Opcja nr 1 - ścianę z geberitami "zapłytkuję" do pełnej wysokości, ścianę z drzwiami chyba do wysokości drzwi, a ścianę z oknem? Opcja nr 2 - geberity j.w. a reszta do sufitu? Doradźcie proszę. Kochani - czy naprawdę nikt nie ma pomysłu jak to ugryźć? Cytuj Odnośnik do komentarza https://forum.murator.pl/topic/201803-projektowanie-%C5%82azienki/page/250/#findComment-5921688 Udostępnij na innych stronach Więcej opcji udostępniania
rafstraz 08.05.2013 10:28 Zgłoś naruszenie Udostępnij Napisano 8 Maja 2013 Kochani - czy naprawdę nikt nie ma pomysłu jak to ugryźć? Kochani forumowicze pochylcie sie nad aranzacją mojej łazienki, prosze o rady Cytuj Odnośnik do komentarza https://forum.murator.pl/topic/201803-projektowanie-%C5%82azienki/page/250/#findComment-5922660 Udostępnij na innych stronach Więcej opcji udostępniania
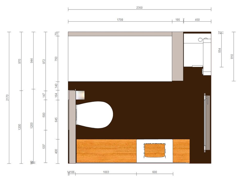
asiazett 09.05.2013 05:36 Zgłoś naruszenie Udostępnij Napisano 9 Maja 2013 Witam Kochani forumowicze, Bardzo prosze doradzcie mi jak najbardziej otymalnie wykorzystać pomieszczenie moja łazienka. sama nie potrafie zaplanowac rozkładu urzadzeń. Czytałam, ze są tutaj dobre duszyczki ktore pomagają w aranżacji. co do moich preferencji to podobają mi sie kolory beż, brąz,,(jasna podloga), (metalikbraz +bez OPOCZONO, seria DELICATE , czy inne kolekcje z Paradyża, przegladając forum, natknęłam sie na miskę EGO, firmy KOŁO - super, wannę chciałabym narożną fajnie fantazyjnie opłytkowaną. co do kabiny chyba zrezygnujemy. W tej łazience powinna znalężć sie też duża podblatowa umywalka a pod nią szerodkie szuflady, no i pralka ładnie wkomponowana. Myslałam na jednej scianie umiejscowic własnie takie rozwiazanie pralka szeroka umywalka i jakasz szafka, ciągiem, ale nie wiem czy to dobrze. nie mam jeszcze żadnych podłaczeeń stąd dowlone ustawienie - jak najbardziej otymalne wskazane. proszę też jesli można o zaprojektowanie oswietlenie i ewentualnych wnek odświetlanych. W zalaczeniu rzut projektanta i preferencyjna kolorystyka . rosze o każda uwagę, za każdą bedę wdzieczna, jak WY widzielibyście to pomieszczenie??? Dziękuję Obok jest też WC, też nie mam na nie pomysłu http://images47.fotosik.pl/1808/a33f5b279135bdd9m.jpg http://images47.fotosik.pl/1808/c0f69d1b83e68511m.jpg rafstraz, spróbuję sie wykazać - przynajmniej zainteresowanie, bo nie obsługuję niestety żadnego programu do projektowania... w zasadzie to dużo masz już ustalone i chyba jedynie potrzeba Ci potwierdzenie tego co masz, ewentualnie wizualki. Ja bym się zatrzymała na tej propozycji, która jest na rzucie. Wychodzi mi tylko tyle z różnic, że rezygnujesz z prysznica (choć to dla mnie niezrozumiałe ), więc żeby zwiększyć przestrzeń z umywalkami, przerzuciłabym WC w miejsce prysznica. Wadą było by to, że tron stał by centralnie na przeciwko wejścia, ale zaletą było by to, że mogłabyś we wnęce ukryć stelaż WC... Wanna w projekcie jest fajnie wmontowana we wnękę. Może skoro chciałaś narożną to coś takiego Ci spasuje: http://img834.imageshack.us/img834/3886/bettewannabettebambino.jpg Cytuj Odnośnik do komentarza https://forum.murator.pl/topic/201803-projektowanie-%C5%82azienki/page/250/#findComment-5923476 Udostępnij na innych stronach Więcej opcji udostępniania
rafstraz 09.05.2013 06:44 Zgłoś naruszenie Udostępnij Napisano 9 Maja 2013 Dziękuję Ci Asiazett, czyli uważasz ze dobry plan, wiesz co bo stwierdziłam ze i tak w jednej łazience dwie osoby na raz nie będą korzystać i z prysznica i wanny, ale może jeszcze to przemyślę...Wiesz myślałam, żeby na jednej ścianie dać taki długi blat gdzie w jednym ciągu będzie szeroka umywalka, jakaś szafka i zabudowana pralka, nie wiem na której to by pasowało(przy załażeniu, ze jednak wyrzucimy kabinę), o do narożnej wanny to może faktycznie prosta wanna lepsza...sama nie wiem, zupełnie nie mam pomysłu. Faktycznie liczyłam, ze ktoś może zechciałby zrobić nawet najprostsza wizualizację....Asiazett gdybyś miała zdjęcia takiej jednorodnej zabudowy na całej ścianę -podeślij linki.Dziękuję za każda radę.... Cytuj Odnośnik do komentarza https://forum.murator.pl/topic/201803-projektowanie-%C5%82azienki/page/250/#findComment-5923544 Udostępnij na innych stronach Więcej opcji udostępniania
asiazett 09.05.2013 06:55 Zgłoś naruszenie Udostępnij Napisano 9 Maja 2013 Ok, wieczorem podeślę, bo teraz muszę zmykać. To ile ogólnie będzie łazienek w domu? Ewentualnie pryszniców? Cytuj Odnośnik do komentarza https://forum.murator.pl/topic/201803-projektowanie-%C5%82azienki/page/250/#findComment-5923563 Udostępnij na innych stronach Więcej opcji udostępniania
rafstraz 09.05.2013 07:26 Zgłoś naruszenie Udostępnij Napisano 9 Maja 2013 łazienki dwie, ale druga to tylko wc+umywalkaPozdrawiam Cytuj Odnośnik do komentarza https://forum.murator.pl/topic/201803-projektowanie-%C5%82azienki/page/250/#findComment-5923617 Udostępnij na innych stronach Więcej opcji udostępniania
lukasz69karolina 09.05.2013 09:01 Zgłoś naruszenie Udostępnij Napisano 9 Maja 2013 (edytowane) rafstraz a coś w tym stylu?? za wanną można postawić ściankę osłaniającą wc, przy pralce szafki na proszki, ręczniki i inne klamoty łazienkowe a nie myślicie by jakoś przerobić wc by tam wstawić prysznic?? by dwie osoby na raz mogły się kąpać?? np pomniejszając szafę na ścianie łazienki: albo tak: wnękę za wanną można wykorzystać na jakieś fajne wnękowe półeczki... z tyłu za wanną przy umywalkach jest też półka na odstawianie szamponów itp - można zamontować szybę na wannę i będzie pełniła też rolę prysznica i oddzielała jeszcze dodatkowo od umywalek... w lewym rogu na wejściu można zbudować wysoką szafę, w niej schować pralkę a na górze mieć proszki itd... lub wc inaczej: wizki takie na szybko, ale coś tam widać Edytowane 9 Maja 2013 przez lukasz69karolina Cytuj Odnośnik do komentarza https://forum.murator.pl/topic/201803-projektowanie-%C5%82azienki/page/250/#findComment-5923801 Udostępnij na innych stronach Więcej opcji udostępniania
asiazett 10.05.2013 08:19 Zgłoś naruszenie Udostępnij Napisano 10 Maja 2013 rafstaz, oczywiście wszystko zależy od Waszych preferencji. Wyrzucenie prysznica z łazienki nie wiązała bym z jednoczesną możliwością korzystania przez 2 osoby. Ale bardziej chodzi mi o możliwość wyboru pomiędzy "braniem szybkiego i wygodnego prysznica" a "braniem długiej relaksującej kąpieli". Dlatego pytałam o inne łazienki, ale skoro nigdzie indziej nie ma prysznica, to dziwi mnie, że jednak chcesz z niego zrezygnować. Nie myśl sobie, że oceniam, tylko jakoś wychodzi, że prysznic jest stawiany zwykle na pierwszym miejscu (i na podstawie opinii forumowiczów i na podstawie moich osobistych doświadczeń - mieszkam w swoim domu od grudnia. Wcześniej w żadnym miejscu, w którym mieszkałam nie było wanny, wszędzie miałam prysznic, a marzyło mi się mieć wannę. Jak na razie 4 x korzystałam z wanny! Mój mąż 3 x. Oczywiście wanny nie neguję - moje dziecko kąpie się w niej codziennie. I nawet jeśli mi częstotliwość korzystania z niej wypada 1 x na miesiąc to i tak chcę ją mieć. Mówię tylko o tym, żebyś zastanowiła się, czy faktycznie nie było by warto mieć obydwu tych "sprzętów" w domu... Tyle tytułem wstępu Obiecałam wstawić połączenie blatu umywalkowego z wmontowaną pod niego pralką. Wszystkie fotki pochodzą chyba z tego wątku, ale skoro jest taaaaki obfity, to chyba nie będzie nikomu przeszkadzało, że dla wygody się tu powtórzą? Tyle udało mi się nazbierać http://img689.imageshack.us/img689/9598/29a199ef6b95433amed.jpg http://img35.imageshack.us/img35/3073/aisa3.jpg http://img441.imageshack.us/img441/97/mar3f.jpg http://img341.imageshack.us/img341/8600/maroch2.jpg http://img16.imageshack.us/img16/5152/31582390.jpg lukasz69karolina zaproponowali wprawdzie rozdzielenie pralki od umywalek, ale jedno też mi sie w tym podoba - przedłużenie blatu z umywalki na wannę. Podsumowując - przemyśl rafstaz co dokładnie chcesz tam mieć i wtedy będziemy doradzać... Cytuj Odnośnik do komentarza https://forum.murator.pl/topic/201803-projektowanie-%C5%82azienki/page/250/#findComment-5925062 Udostępnij na innych stronach Więcej opcji udostępniania
asiazett 10.05.2013 08:49 Zgłoś naruszenie Udostępnij Napisano 10 Maja 2013 [ATTACH=CONFIG]187092[/ATTACH] [ATTACH=CONFIG]187093[/ATTACH] [ATTACH=CONFIG]187094[/ATTACH] [ATTACH=CONFIG]187095[/ATTACH] [ATTACH=CONFIG]187096[/ATTACH] Bardzo Was proszę o pomoc przy górnej łazience - brak pomysłu na wysokość układania płytek Opcja nr 1 - ścianę z geberitami "zapłytkuję" do pełnej wysokości, ścianę z drzwiami chyba do wysokości drzwi, a ścianę z oknem? Opcja nr 2 - geberity j.w. a reszta do sufitu? Doradźcie proszę. Sylwia, trochę mi trudno Tobie doradzić, bo żadna z opcji nie wydaje mi się idealna. Ja bym chyba pociągnęła całość płytek do sufitu. O ile do wysokości drzwi wygląda ok, na ścianie z oknem - urwane. Obawiam się z kolei, że pociągnięte do sufitu też trochę przytłoczy pomieszczenie... Ja z dwojga złego wybrała bym tą drugą opcję, ale to bardzo subiektywne, więc wcale nie musisz się tym sugerować... Coś faktycznie się tu w wątku "doradzacze" wysypali, ale może ktoś jeszcze się wypowie... Cytuj Odnośnik do komentarza https://forum.murator.pl/topic/201803-projektowanie-%C5%82azienki/page/250/#findComment-5925111 Udostępnij na innych stronach Więcej opcji udostępniania
moniss 10.05.2013 09:15 Zgłoś naruszenie Udostępnij Napisano 10 Maja 2013 rafstraz naprawdę nie wiem dlaczego chcesz coś zmieniać w układzie tej łazienki. To jest naprawdę dobry układ: przykrywasz pralkę tym samym blatem co szafki pod umywalką (chcesz jedną dużą podblatową, więc będzie pasować). Absolutnie bym nie wyrzucała prysznica: bardzo przydatny a miejsce na niego przecież posiadzasz. Wannę w tej wnęce dałabym prostokątną - moim zdaniem narożne i asymeryczne nie pasują do Twojej łazienki. Jedynie czym możesz żonglować to kibelek: możesz zostawić go w miejscu w którym jest obecnie lub zamienić miejscami z pralką. Chociaż lepsza moim zdaniem jest opcja z projektu, bo po wejściu nie rzuca się w oczy. Wracajac do sprawy prysznica... można go wydłużyć na całą szerokośc ścianki od WC (120cm) i zrobić z płaskim brodzikiem lub tylko z listwą odpływową. Jest tam też wnęka, która można przeznaczyc na ścienne półki wnękowe na kosmetyki. Muszę przyznać, że kształt Twojej łazienki jest idealny aby rozsądnie pomieścić wszystkie sprzęty Cytuj Odnośnik do komentarza https://forum.murator.pl/topic/201803-projektowanie-%C5%82azienki/page/250/#findComment-5925158 Udostępnij na innych stronach Więcej opcji udostępniania
moniss 10.05.2013 09:19 Zgłoś naruszenie Udostępnij Napisano 10 Maja 2013 R4di, bardzo fajna łazieneczka, ale ja bym układała płytki tylko do wysokości drzwi. Układanie ich do sufitu w tak małym pomieszczeniu przywodzi mi na myśl efekt studni. Cytuj Odnośnik do komentarza https://forum.murator.pl/topic/201803-projektowanie-%C5%82azienki/page/250/#findComment-5925161 Udostępnij na innych stronach Więcej opcji udostępniania
rafstraz 11.05.2013 21:45 Zgłoś naruszenie Udostępnij Napisano 11 Maja 2013 Dziewczynki jesteście kochane, wszystkim i Każdej z osobna dziekuje za odzew. Nie miałam mozliwosci wejść tu wcześniej a tu taka niesodzianka, tyle do przemyślenia. Faktycznie musze jeszcze przeanalizować "co ja narawde chcę miec" w tej łazienecze,i dopiero pytać.jutro to przegadam z małżem.... Moniss a co miałs na myśli pisząc:'Wracajac do sprawy prysznica... można go wydłużyć na całą szerokośc ścianki od WC (120cm) i zrobić z płaskim brodzikiem lub tylko z listwą odpływową. Jest tam też wnęka, która można przeznaczyc na ścienne półki wnękowe na kosmetyki. ' bo nie mogę sobie tego wyobrazić... Cytuj Odnośnik do komentarza https://forum.murator.pl/topic/201803-projektowanie-%C5%82azienki/page/250/#findComment-5926741 Udostępnij na innych stronach Więcej opcji udostępniania
moniss 12.05.2013 09:11 Zgłoś naruszenie Udostępnij Napisano 12 Maja 2013 (edytowane) Prysznic z brodzikiem 90 x 120cm. Płytki brodzik z Castoramy: Lub sama kabina z odpływem liniowym w podłodze: Masz przy prysznicu wnękę pomiędzy kominami a ścianą WC. Można tam zrobić półeczki gips-kartonowe oklejone płytkami. Przykład (halogenki niekonieczne): A tutaj instrukcja, jak zrobić takowe: http://ladnydom.pl/budowa/51,106586,4834600.html?i=2 Należy tylko pamiętać aby zrobić mały spadek, coby z nich woda spływała. Edytowane 12 Maja 2013 przez moniss Cytuj Odnośnik do komentarza https://forum.murator.pl/topic/201803-projektowanie-%C5%82azienki/page/250/#findComment-5927006 Udostępnij na innych stronach Więcej opcji udostępniania
tytusek 13.05.2013 16:15 Zgłoś naruszenie Udostępnij Napisano 13 Maja 2013 podpowiedzcie jak się wkleja zdjecia Cytuj Odnośnik do komentarza https://forum.murator.pl/topic/201803-projektowanie-%C5%82azienki/page/250/#findComment-5928994 Udostępnij na innych stronach Więcej opcji udostępniania
Recommended Posts
Dołącz do dyskusji
Możesz dodać zawartość już teraz a zarejestrować się później. Jeśli posiadasz już konto, zaloguj się aby dodać zawartość za jego pomocą.