julianna16 27.09.2011 18:04 Zgłoś naruszenie Udostępnij Napisano 27 Września 2011 kadm Korzystając z programu Paradyża trzeba niestety czasem uruchomić wyobraźnię - stąd skos trzeba sobie tu wyobrazić . Jest narzędziem pomocnym, ale nie profesjonalnym. Stworzyłam 3 łazienki w różnych układach - może się przydadzą w budowaniu koncepcji . Wymiary wanny to 180 x 80 x 80, prysznic 120 x 80 (lepiej pasował ). Wejście do prysznica od krótszej strony (niekoniecznie z drzwiami, może bez brodzika? - wstawiłam kabinę by symbolizowała funkcję). Ścianę ze skosem zaznaczyłam na biało od wysokości 95 cm. Kolory przypadkowe, sprzęty na ile program umożliwia . Żeby nie namieszać każdą wersję umieszczam osobno. nr 1 Plusem jest dostęp do okna i bardziej komfortowe korzystanie z wanny, bo nie jest cała pod skosem. Minusy z pewnością wskażą Forumowiczki/e Cytuj Odnośnik do komentarza https://forum.murator.pl/topic/201803-projektowanie-%C5%82azienki/page/72/#findComment-4886631 Udostępnij na innych stronach Więcej opcji udostępniania
julianna16 27.09.2011 18:07 Zgłoś naruszenie Udostępnij Napisano 27 Września 2011 nr 2 Cytuj Odnośnik do komentarza https://forum.murator.pl/topic/201803-projektowanie-%C5%82azienki/page/72/#findComment-4886640 Udostępnij na innych stronach Więcej opcji udostępniania
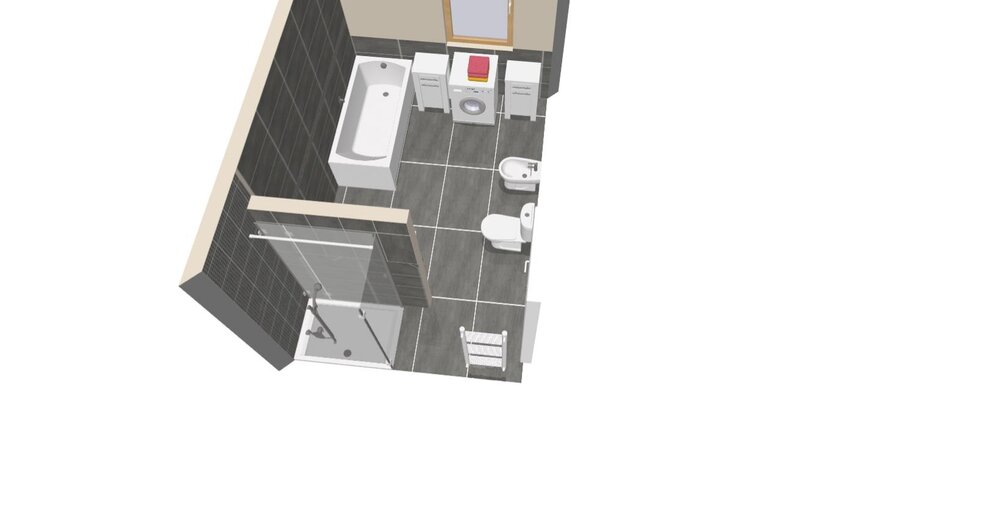
julianna16 27.09.2011 18:10 Zgłoś naruszenie Udostępnij Napisano 27 Września 2011 nr 3 Cytuj Odnośnik do komentarza https://forum.murator.pl/topic/201803-projektowanie-%C5%82azienki/page/72/#findComment-4886649 Udostępnij na innych stronach Więcej opcji udostępniania
AniaS79 27.09.2011 19:02 Zgłoś naruszenie Udostępnij Napisano 27 Września 2011 Julianna16 niezła jesteś w te klocki Program opanowany do perfekcji widzę Nie wiem co na to właściciel łazienki, ale mnie się podoba wersja 1. Wszystko się mieści, jest pralka, jest szafka i wszystko gra Może tylko podciągnęłabym już tę geberitową ściankę do góry i zrobiła tylko drzwi do wnęki prysznicowej. W wersji 2 należałoby zapewne odsunąć wannę od skosu, żeby móc z niej wygodnie korzystać, a jeśli z kolei przesunąć wc i bidet w stronę drzwi, może się zrobić ciasne przejście między wc a blatem. No i nie widzę miejsca dla szafki... Wersja 3 zbyt... zwyczajna Ponownie problem z odsunięciem wanny od ściany kolankowej i... brak miejsca na szafkę. Cytuj Odnośnik do komentarza https://forum.murator.pl/topic/201803-projektowanie-%C5%82azienki/page/72/#findComment-4886785 Udostępnij na innych stronach Więcej opcji udostępniania
danielw 27.09.2011 19:09 Zgłoś naruszenie Udostępnij Napisano 27 Września 2011 Wklejam wizualizacje w dwoch wersjach: 1) podłoga jasna kremowa (nie wiem dlaczego wydaje sie szara...) oraz 2) podłoga fiolet co sądzicie? dalej za wiele sie dzieje? no i jakie fugi? Cytuj Odnośnik do komentarza https://forum.murator.pl/topic/201803-projektowanie-%C5%82azienki/page/72/#findComment-4886801 Udostępnij na innych stronach Więcej opcji udostępniania
Lykke 27.09.2011 19:28 Zgłoś naruszenie Udostępnij Napisano 27 Września 2011 (edytowane) ananke, mmm, szarości i drewno - cudnie, mam nadzieje że umieścisz później zdjęcia! zerknij tutaj i tutaj - umieściłam tu moje inspiracje na później.. W przypadku Twojej łazienki drewno umieściłabym tylko na podłodze.. do tego szafka drewniania, naturalne dodatki, może masz drewniane drzwi - to też weź pod uwagę. Rozkład płytek jak najprościej, bez większej kombinacji..ew. jako podkreślenie obecnych już linii - wanny lub szafki na pralkę.. Pozdrawiam! Edytowane 27 Września 2011 przez Lykke Cytuj Odnośnik do komentarza https://forum.murator.pl/topic/201803-projektowanie-%C5%82azienki/page/72/#findComment-4886850 Udostępnij na innych stronach Więcej opcji udostępniania
Elfir 27.09.2011 19:51 Zgłoś naruszenie Udostępnij Napisano 27 Września 2011 [ Plusem jest dostęp do okna i bardziej komfortowe korzystanie z wanny, bo nie jest cała pod skosem. Minusy z pewnością wskażą Forumowiczki/e Jaka jest wysokość stropu nad pralką? Czy nie będzie tak, że do pralki można podejść jedynie schylonym? Poza tym dałabym umywalki na ścianie prysznica a kibelek i bidet tam gdzie umywalki - będą lepiej schowane Cytuj Odnośnik do komentarza https://forum.murator.pl/topic/201803-projektowanie-%C5%82azienki/page/72/#findComment-4886922 Udostępnij na innych stronach Więcej opcji udostępniania
julianna16 27.09.2011 20:19 Zgłoś naruszenie Udostępnij Napisano 27 Września 2011 Julianna16 niezła jesteś w te klocki Dziękuję, ale to tylko dla wprawki przed swoimi łazienkami - w ramach odstresowania po pracy Może tylko podciągnęłabym już tę geberitową ściankę do góry i zrobiła tylko drzwi do wnęki prysznicowej. Zabieg celowy, bo myślałam o doświetleniu natrysku, ale to oczywiście "jak kto woli" . W wersji 2 ... nie widzę miejsca dla szafki... W wersji 2 i 3 szafki są nad WC i bidetem Cytuj Odnośnik do komentarza https://forum.murator.pl/topic/201803-projektowanie-%C5%82azienki/page/72/#findComment-4887001 Udostępnij na innych stronach Więcej opcji udostępniania
julianna16 27.09.2011 20:32 Zgłoś naruszenie Udostępnij Napisano 27 Września 2011 Jaka jest wysokość stropu nad pralką? Czy nie będzie tak, że do pralki można podejść jedynie schylonym? Aż tak daleko moja wyobraźnia nie ogarnia . Przydałaby się wizualizacja z prawdziwego zdarzenia . Poza tym dałabym umywalki na ścianie prysznica a kibelek i bidet tam gdzie umywalki - będą lepiej schowane w taki sposób? W tym wariancie szafkami można zabudować przestrzeń pod skosem. zatem nr 4 Cytuj Odnośnik do komentarza https://forum.murator.pl/topic/201803-projektowanie-%C5%82azienki/page/72/#findComment-4887042 Udostępnij na innych stronach Więcej opcji udostępniania
ananke 29.09.2011 13:06 Zgłoś naruszenie Udostępnij Napisano 29 Września 2011 Oświećcie mnie, jak się wykańcza przy ścianie drewnianą podłogę w łazience? Listwami? A przy wannie? lykke - dzięki za inspiracje, zwłaszcza pierwsza do mnie przemówiła, bo widzę, że nacinane płytki są tam ułożone inaczej, niż sobie zaplanowałam - czyli w pionie. Wygląda to ciekawie, muszę jeszcze taką wizualkę przygotować . Cytuj Odnośnik do komentarza https://forum.murator.pl/topic/201803-projektowanie-%C5%82azienki/page/72/#findComment-4889633 Udostępnij na innych stronach Więcej opcji udostępniania
morelka1989 30.09.2011 07:04 Zgłoś naruszenie Udostępnij Napisano 30 Września 2011 danielw w Twojej łazience zdecydowanie za dużo się dzieje. Jak chcesz dać motywy liliowej mozaiki, to zrezygnuj z tych ornamentowych płytek z kwiatami. Po prostu nie będzie jednego motuwu przewodniego. Natomiast jeśli chodzi o fugę to najlepiej aby była w kolorze płytek, matowa, naturalna. Nie może być takiego przesycenia. I szczerze powiedziawszy ten obraz w ogóle tam nie pasuje. Cytuj Odnośnik do komentarza https://forum.murator.pl/topic/201803-projektowanie-%C5%82azienki/page/72/#findComment-4890784 Udostępnij na innych stronach Więcej opcji udostępniania
danielw 01.10.2011 06:09 Zgłoś naruszenie Udostępnij Napisano 1 Października 2011 morelka1989 OK , no to jeszcze inaczej, tym razem inne płytki REN Tubądzin, bez kwiatkow. Tak będzie lepiej? PS: Ten obraz na scianie to własciwie nie obraz tylko... okno ! Cytuj Odnośnik do komentarza https://forum.murator.pl/topic/201803-projektowanie-%C5%82azienki/page/72/#findComment-4892293 Udostępnij na innych stronach Więcej opcji udostępniania
olai 01.10.2011 16:53 Zgłoś naruszenie Udostępnij Napisano 1 Października 2011 Witam !Czy możecie polecić jakiś program do samodzielnego zaprojektowania łazienki?? Cytuj Odnośnik do komentarza https://forum.murator.pl/topic/201803-projektowanie-%C5%82azienki/page/72/#findComment-4892828 Udostępnij na innych stronach Więcej opcji udostępniania
julianna16 02.10.2011 12:23 Zgłoś naruszenie Udostępnij Napisano 2 Października 2011 Ten obraz na scianie to własciwie nie obraz tylko... okno ! Hi, hi - nie wpadłabym na to . Ja też sądziłam, że to widoczek zawieszony na ścianie. Bardzo rzuca się w oczy. A nie można zrobić "zwykłego" okna w tej wizualizacji? Nie będzie tak dominujące i pozwoli skupić się na reszcie . Cytuj Odnośnik do komentarza https://forum.murator.pl/topic/201803-projektowanie-%C5%82azienki/page/72/#findComment-4893884 Udostępnij na innych stronach Więcej opcji udostępniania
julianna16 02.10.2011 12:25 Zgłoś naruszenie Udostępnij Napisano 2 Października 2011 Witam ! Czy możecie polecić jakiś program do samodzielnego zaprojektowania łazienki?? Na stronie Paradyża jest bezpłatne narzędzie. Ma ograniczenia, ale pozwoli odzwierciedlić ogólny zamysł, układ itd. Cytuj Odnośnik do komentarza https://forum.murator.pl/topic/201803-projektowanie-%C5%82azienki/page/72/#findComment-4893886 Udostępnij na innych stronach Więcej opcji udostępniania
morelka1989 04.10.2011 12:12 Zgłoś naruszenie Udostępnij Napisano 4 Października 2011 morelka1989 OK , no to jeszcze inaczej, tym razem inne płytki REN Tubądzin, bez kwiatkow. Tak będzie lepiej? PS: Ten obraz na scianie to własciwie nie obraz tylko... okno ! HEhe nie pomyślałam, że to okno, sory;). W każdym razie bez tych płytek z kwiatami łazienka wygląda dużo lepiej. Tak przejrzyście i nie ma przeładowania. Cytuj Odnośnik do komentarza https://forum.murator.pl/topic/201803-projektowanie-%C5%82azienki/page/72/#findComment-4896711 Udostępnij na innych stronach Więcej opcji udostępniania
danielw 04.10.2011 20:34 Zgłoś naruszenie Udostępnij Napisano 4 Października 2011 no to jeszcze inne zmiany /obraz zdjęty więc skupcie sie / , mix opoczno orgazna (mozaika i podłoga) z opoczno capri jako reszta. Cytuj Odnośnik do komentarza https://forum.murator.pl/topic/201803-projektowanie-%C5%82azienki/page/72/#findComment-4897388 Udostępnij na innych stronach Więcej opcji udostępniania
morelka1989 05.10.2011 14:08 Zgłoś naruszenie Udostępnij Napisano 5 Października 2011 jak dla mnie wcześniejsza wersja jest lepsza. Tamten kolor dodawał ciekawego wyrazu łazience, a tutaj tak bez szczególnych rewelacji. Cytuj Odnośnik do komentarza https://forum.murator.pl/topic/201803-projektowanie-%C5%82azienki/page/72/#findComment-4898379 Udostępnij na innych stronach Więcej opcji udostępniania
mr6319 06.10.2011 10:38 Zgłoś naruszenie Udostępnij Napisano 6 Października 2011 Jestem również za pierwszą wersją. Cytuj Odnośnik do komentarza https://forum.murator.pl/topic/201803-projektowanie-%C5%82azienki/page/72/#findComment-4899916 Udostępnij na innych stronach Więcej opcji udostępniania
julianna16 06.10.2011 12:14 Zgłoś naruszenie Udostępnij Napisano 6 Października 2011 danielw Na forum pojawiły się 3 wersje. Do mnie przemawia nr 2 - z wykorzystaniem Tubądzin Ren (ta bez kwiatków). Jest najbardziej uniwersalna, nie opatrzy się szybko i łatwo można zmieniać ją dodatkami. Zmieniłabym szerokość mozaiki przy WC - poszerzając na szerokość okna. Wówczas będą zachowane proporcje (zakładając, że okno w wizualizacji odpowiada faktycznym wymiarom). Jeśli WC będzie podwieszane to pojawi się tam jeszcze prawdopodobnie zabudowa. I jeszcze kolor kafli - ja urządziłabym łazienkę w kolorach czarno-białym z przewagą białego. Co prawda wówczas stolarka okna i drzwi mogłaby nieco odstawać (jeśli na wizualizacji jest faktyczna), co jednak nie zniechęcałoby mnie, bo i taki element stolarki można by wpleść w urządzenie łazienki dodając jej elegancji . Cytuj Odnośnik do komentarza https://forum.murator.pl/topic/201803-projektowanie-%C5%82azienki/page/72/#findComment-4900094 Udostępnij na innych stronach Więcej opcji udostępniania
Recommended Posts
Dołącz do dyskusji
Możesz dodać zawartość już teraz a zarejestrować się później. Jeśli posiadasz już konto, zaloguj się aby dodać zawartość za jego pomocą.