Miesięcznik Murator ONLINE

Skocz do zawartości

Recommended Posts

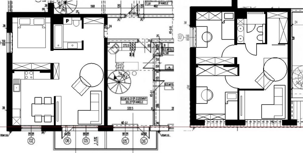
Na dole w łazience wanna, pralka, wc, umywalka.

Sypialnia standardowo podwójne łóżko, stoliki nocne i duża szafa za wejściem.

W kuchni odwróciłam ciąg. Kuchnia stała się w połowie otwarta, przesunięcie ściany pozwala na wstawienie większego stołu.

Po drugiej stronie robi się miejsce na szafkę RTV.

Kuchenka blisko komina, następnie zlew i na końcu lodówka z zabudową cargo.

W salonie zmieści się niewielki narożnik i jeśli uda się tak wkomponować schody, to będzie również miejsce na siedzenie pod schodami.

Schody minimalnie zmieniły swoje położenie.

 

Piętro:

dwa pokoje, pojedyncze łóżka, biurka z szafami. Pod skosem można wykorzystać przestrzeń na niskie szafki.

Łazienka przeznaczona dla dzieci. Prysznic, dwie umywalki i muszla z bidetem.

W rogu znalazła się niewielka garderoba, która może pełnić funkcję pomieszczenia gospodarczego.

 

Rzut mieszkania

ppp.jpg

 

Pokazanie przesunięć

pppp.jpg

Odnośnik do komentarza
https://forum.murator.pl/topic/206543-mieszkanie-dwupoziomowe/
Udostępnij na innych stronach

  • 2 weeks później...

Dołącz do dyskusji

Możesz dodać zawartość już teraz a zarejestrować się później. Jeśli posiadasz już konto, zaloguj się aby dodać zawartość za jego pomocą.

Gość
Odpowiedz w tym wątku

×   Wklejono zawartość z formatowaniem.   Usuń formatowanie

  Dozwolonych jest tylko 75 emoji.

×   Odnośnik został automatycznie osadzony.   Przywróć wyświetlanie jako odnośnik

×   Przywrócono poprzednią zawartość.   Wyczyść edytor

×   Nie możesz bezpośrednio wkleić grafiki. Dodaj lub załącz grafiki z adresu URL.



×
×
  • Dodaj nową pozycję...