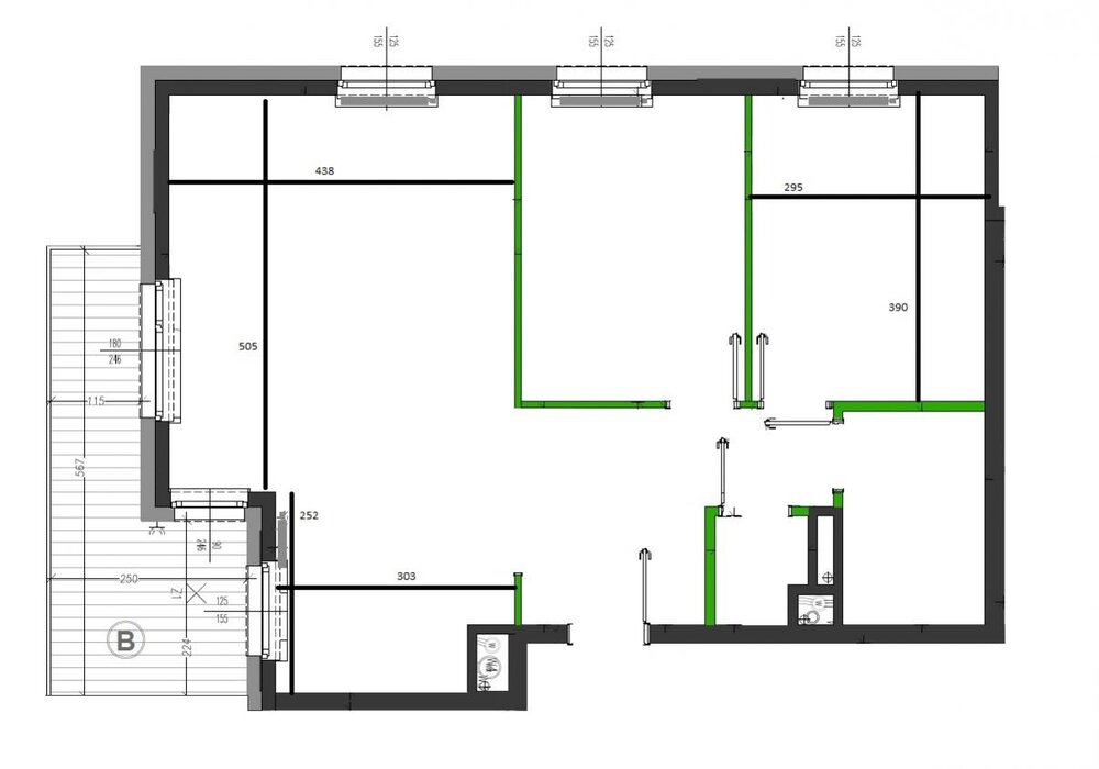
nazwa1 14.03.2016 22:49 Zgłoś naruszenie Udostępnij Napisano 14 Marca 2016 (edytowane) Hej, Poszukuję pomysłu na rozstawienie rzeczy w mieszkaniu. Rzut mieszkania z wymiarami niżej. W salonie (lewy górny róg szkicu) chcę ustawić kanapę, TV z dosyć dużym regałem RTV (150cm x 40cm) i zestaw kolumn, dodatkowo mały stolik "na kawe". W kuchni (lewy dolny róg) podstawowe elementy typu: stół, zlew, lodówka itd. W sypialni (prawy górny) chciałbym duża szafę, duże łóżko, biurko (tak wiem, biurko w sypialni..) i to by było w sumie tyle z podstawowych rzeczy które teraz przychodzą mi do głowy. Byłbym wdzięczny jakby ktoś rozrysował (nawet w paincie) jakby poszczególne rzeczy ustawił. Jakieś tam pomysłu rodzą się w mojej głowie ale wolałbym najpierw zobaczyć co ktoś inny wymyśli Edytowane 14 Marca 2016 przez nazwa1 Cytuj Odnośnik do komentarza https://forum.murator.pl/topic/209411-projekt-mieszkania/ Udostępnij na innych stronach Więcej opcji udostępniania
kinka 15.03.2016 07:38 Zgłoś naruszenie Udostępnij Napisano 15 Marca 2016 http://images77.fotosik.pl/421/39361ddc635aa868med.jpg Cytuj Odnośnik do komentarza https://forum.murator.pl/topic/209411-projekt-mieszkania/#findComment-7063611 Udostępnij na innych stronach Więcej opcji udostępniania
nazwa1 19.03.2016 10:43 Autor Zgłoś naruszenie Udostępnij Napisano 19 Marca 2016 kinka, w miejscu stołu będzie wyjście na balkon Więc takie ustawienie odpada. A reszta wygląda w sumie tak jak sobie to planowałem. Może jeszcze ktoś ma jakieś propozycje? Cytuj Odnośnik do komentarza https://forum.murator.pl/topic/209411-projekt-mieszkania/#findComment-7066872 Udostępnij na innych stronach Więcej opcji udostępniania
Elfir 19.03.2016 11:00 Zgłoś naruszenie Udostępnij Napisano 19 Marca 2016 to przesuń stół pod ścianę naprzeciw, albo dostaw do szafek kuchennych. Cytuj Odnośnik do komentarza https://forum.murator.pl/topic/209411-projekt-mieszkania/#findComment-7066875 Udostępnij na innych stronach Więcej opcji udostępniania
kinka 19.03.2016 16:45 Zgłoś naruszenie Udostępnij Napisano 19 Marca 2016 Tam jest wystarczająco miejsca na stół i otworzenie drzwi balkonowych,zresztą można dać krótszą kanapę i go przesunąć dalej. Cytuj Odnośnik do komentarza https://forum.murator.pl/topic/209411-projekt-mieszkania/#findComment-7067043 Udostępnij na innych stronach Więcej opcji udostępniania
Elfir 19.03.2016 20:27 Zgłoś naruszenie Udostępnij Napisano 19 Marca 2016 bardzo podobne wnętrze:http://images76.fotosik.pl/435/bb8ef8130996cfecgen.jpg http://img.shmbk.pl/rimgsph/10952_1f9c06a2-1fc2-442c-8d66-968ae4544fe0_max_900_1200_-kuchnia-styl-skandynawski.jpg Cytuj Odnośnik do komentarza https://forum.murator.pl/topic/209411-projekt-mieszkania/#findComment-7067177 Udostępnij na innych stronach Więcej opcji udostępniania
markens 20.03.2016 18:25 Zgłoś naruszenie Udostępnij Napisano 20 Marca 2016 (edytowane) Edytowane 20 Marca 2016 przez joliska Cytuj Odnośnik do komentarza https://forum.murator.pl/topic/209411-projekt-mieszkania/#findComment-7067806 Udostępnij na innych stronach Więcej opcji udostępniania
nazwa1 22.03.2016 20:20 Autor Zgłoś naruszenie Udostępnij Napisano 22 Marca 2016 albo dostaw do szafek kuchennych.O czymś takim myślałem. Tam jest wystarczająco miejsca na stół i otworzenie drzwi balkonowych,zresztą można dać krótszą kanapę i go przesunąć dalej.Się okaże, jak mieszkanie będzie do odebrania. Bo puki co z rzutu nie wygląda mi na to bardzo podobne wnętrze:]Dzięki za fotki, baaardzo się przydadzą, czegoś takiego szukałem ale nie trafiłem. Elfir jak masz więcej podobnych fotek to podrzuć, będę mega wdzięczny. Cytuj Odnośnik do komentarza https://forum.murator.pl/topic/209411-projekt-mieszkania/#findComment-7069819 Udostępnij na innych stronach Więcej opcji udostępniania
Elfir 22.03.2016 20:30 Zgłoś naruszenie Udostępnij Napisano 22 Marca 2016 polecam przejrzenie homeobooka czy podobnych zestawów inspiracyjnych. Cytuj Odnośnik do komentarza https://forum.murator.pl/topic/209411-projekt-mieszkania/#findComment-7069834 Udostępnij na innych stronach Więcej opcji udostępniania
Recommended Posts
Dołącz do dyskusji
Możesz dodać zawartość już teraz a zarejestrować się później. Jeśli posiadasz już konto, zaloguj się aby dodać zawartość za jego pomocą.