Brysia8 13.01.2017 17:49 Zgłoś naruszenie Udostępnij Napisano 13 Stycznia 2017 (edytowane) Proszę o pomoc, mam kuchnię częściowo otwartą na salon. Kuchnia ma wymiary 350x273cm. Jest w niej rogowe okno (200x55 – fix oraz 90x55cm – otwierane). Z kuchni jest też wyjście do małej spiżarni. Blat kuchenny będzie też parapetem. Chciałabym piekarnik w słupku. Pomóżcie proszę z ustawieniem sprzętu. Dokładam rzut kuchni wraz z salonem. Zapomniałam doda mój układ... ale nie podoba mi się Edytowane 13 Stycznia 2017 przez Brysia8 Cytuj Odnośnik do komentarza https://forum.murator.pl/topic/225822-kuchnia-%E2%80%93-jak-rozplanowa%C4%87-sprz%C4%99ty/ Udostępnij na innych stronach Więcej opcji udostępniania
Elfir 13.01.2017 19:22 Zgłoś naruszenie Udostępnij Napisano 13 Stycznia 2017 Cytuj Odnośnik do komentarza https://forum.murator.pl/topic/225822-kuchnia-%E2%80%93-jak-rozplanowa%C4%87-sprz%C4%99ty/#findComment-7268844 Udostępnij na innych stronach Więcej opcji udostępniania
Brysia8 13.01.2017 19:53 Autor Zgłoś naruszenie Udostępnij Napisano 13 Stycznia 2017 Dziękuję Elfir za plan, sugerujesz żeby zastawić część wejścia do kuchni piekarnikiem? Tam już mamy zrobioną wnękę, zrezygnowaliśmy z drzwi przesuwanych. Wrzucam lepszą jakość rzutu. Cytuj Odnośnik do komentarza https://forum.murator.pl/topic/225822-kuchnia-%E2%80%93-jak-rozplanowa%C4%87-sprz%C4%99ty/#findComment-7268874 Udostępnij na innych stronach Więcej opcji udostępniania
alicyja 13.01.2017 21:13 Zgłoś naruszenie Udostępnij Napisano 13 Stycznia 2017 1) 2) Cytuj Odnośnik do komentarza https://forum.murator.pl/topic/225822-kuchnia-%E2%80%93-jak-rozplanowa%C4%87-sprz%C4%99ty/#findComment-7268952 Udostępnij na innych stronach Więcej opcji udostępniania
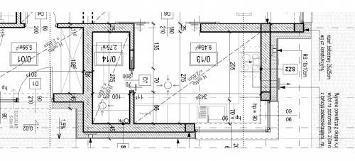
Elfir 14.01.2017 18:00 Zgłoś naruszenie Udostępnij Napisano 14 Stycznia 2017 podane wymiary kuchni niespecjalnie zgadzają się z wklejonym rzutem kuchni z planu domu Cytuj Odnośnik do komentarza https://forum.murator.pl/topic/225822-kuchnia-%E2%80%93-jak-rozplanowa%C4%87-sprz%C4%99ty/#findComment-7269499 Udostępnij na innych stronach Więcej opcji udostępniania
Brysia8 14.01.2017 19:06 Autor Zgłoś naruszenie Udostępnij Napisano 14 Stycznia 2017 Dziękuję za kolejne opcje,podoba mi się wersja pierwsza którą zaproponowała alicyja , nawet zlew jest schowany i niewidoczny z salonu. Przyłącze wody ii odpływ mam na ścianie z dłuższym oknem, myślicie że da się to jakoś podłączyć? Czy do indukcji muszę domurować trochę ściany? czy można ją przesunąć bliżej rogu? Elfir Co masz na myśli mówiąc że wymiary się nie zgrywają? Drzwi do spiżarni - tu racja, docelowo powinno być 70 cm, teraz zmierzyłam otwór jaki mamy - 80cm. Cytuj Odnośnik do komentarza https://forum.murator.pl/topic/225822-kuchnia-%E2%80%93-jak-rozplanowa%C4%87-sprz%C4%99ty/#findComment-7269571 Udostępnij na innych stronach Więcej opcji udostępniania
Elfir 14.01.2017 19:19 Zgłoś naruszenie Udostępnij Napisano 14 Stycznia 2017 Ano, że w rzucie z planu domu nijak kuchnia nie ma 2,7 m, najwyżej 2,2 m szerokości - wychodzi to z proporcji szafek kuchennych, które mają zawsze na planie 60 cm. Poza tym na planie napisano, że kuchnia ma 6,74 m2A ty podałaś wymiary: 2,73x3,5 m = 9,55 m2To bardzo duża różnica. I diametralnie zmienia możliwości ustawienia mebli. Dlatego Alicyja wrysowała ci kuchnię dla tych większych rozmiarów (które ty podałaś), ja dla tych mniejszych, wynikających z wklejonego planu Cytuj Odnośnik do komentarza https://forum.murator.pl/topic/225822-kuchnia-%E2%80%93-jak-rozplanowa%C4%87-sprz%C4%99ty/#findComment-7269585 Udostępnij na innych stronach Więcej opcji udostępniania
Brysia8 14.01.2017 19:33 Autor Zgłoś naruszenie Udostępnij Napisano 14 Stycznia 2017 (edytowane) Nie wiem skąd się tam ta powierzchnia kuchni wzięła - na pewno ma prawie 10m2 Reszta wymiarów podanych na planie się zgadza, wnęka wejściowa do kuchni ma 180 cm szerokości. Wymiary które podałam są realne. Znalazłam, nie wiem jakim cudem mi się zaplątała stara wersja projektu. Wrzucam prawidłowy rzut ! Edytowane 14 Stycznia 2017 przez Brysia8 błąd w rzucie Cytuj Odnośnik do komentarza https://forum.murator.pl/topic/225822-kuchnia-%E2%80%93-jak-rozplanowa%C4%87-sprz%C4%99ty/#findComment-7269599 Udostępnij na innych stronach Więcej opcji udostępniania
Elfir 14.01.2017 19:53 Zgłoś naruszenie Udostępnij Napisano 14 Stycznia 2017 No to faktycznie zrób zabudowę w U Cytuj Odnośnik do komentarza https://forum.murator.pl/topic/225822-kuchnia-%E2%80%93-jak-rozplanowa%C4%87-sprz%C4%99ty/#findComment-7269617 Udostępnij na innych stronach Więcej opcji udostępniania
Recommended Posts
Dołącz do dyskusji
Możesz dodać zawartość już teraz a zarejestrować się później. Jeśli posiadasz już konto, zaloguj się aby dodać zawartość za jego pomocą.