fukujin 09.02.2017 11:39 Zgłoś naruszenie Udostępnij Napisano 9 Lutego 2017 (edytowane) del Edytowane 14 Sierpnia 2020 przez fukujin Cytuj Odnośnik do komentarza https://forum.murator.pl/topic/226725-projekt-do-oceny/ Udostępnij na innych stronach Więcej opcji udostępniania
Elfir 09.02.2017 11:51 Zgłoś naruszenie Udostępnij Napisano 9 Lutego 2017 doświetl sobie małym okienkiem klatkę schodową.planujesz chyba dośc wysoką ściankę kolankową?Umebluj salon. Cytuj Odnośnik do komentarza https://forum.murator.pl/topic/226725-projekt-do-oceny/#findComment-7292921 Udostępnij na innych stronach Więcej opcji udostępniania
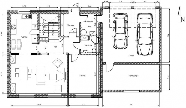
Marcin34_Śl 09.02.2017 12:16 Zgłoś naruszenie Udostępnij Napisano 9 Lutego 2017 Jak jedna łazienka wystarczy na piętrze to ok, doświetl klatkę schodową, ja bym zrobił drzwi w pomieszczeniu gospodarczym na ogród i pokombinował coś ze schodami, żeby by by spocznik w jednym poziomie. Przy garażu dwustanowiskowym zrobi się duży dach, około 250 m2. Planujesz w salonie większy stół (taki na 6-8 osób)? Cytuj Odnośnik do komentarza https://forum.murator.pl/topic/226725-projekt-do-oceny/#findComment-7292953 Udostępnij na innych stronach Więcej opcji udostępniania
alicyja 09.02.2017 12:22 Zgłoś naruszenie Udostępnij Napisano 9 Lutego 2017 Według mnie trochę za duży hol na piętrze. Zrobiłabym w miejscu sypialni łazienkę z oknem, z wejściem do pom.gosp./pralni a sypialnię z garderobą po drugiej stronie schodów. Otwór w stropie na schody można powiększyć a może i da się zrobić schody ze spocznikiem. Cytuj Odnośnik do komentarza https://forum.murator.pl/topic/226725-projekt-do-oceny/#findComment-7292960 Udostępnij na innych stronach Więcej opcji udostępniania
fukujin 09.02.2017 12:46 Autor Zgłoś naruszenie Udostępnij Napisano 9 Lutego 2017 (edytowane) del Edytowane 14 Sierpnia 2020 przez fukujin Cytuj Odnośnik do komentarza https://forum.murator.pl/topic/226725-projekt-do-oceny/#findComment-7292979 Udostępnij na innych stronach Więcej opcji udostępniania
alicyja 09.02.2017 13:10 Zgłoś naruszenie Udostępnij Napisano 9 Lutego 2017 Coś takiego miałam na myśli ale to tylko wstępny pomysł. Ściana z drzwiami do pokoi dzieci na równo ze słupkami, schody ze spocznikiem a z resztą pomieszczeń można pokombinować. IMHO szkoda miejsca na piętrze na duża graciarnię z oknem - jest duże pom.gosp przy garażu. Lepiej zamiast tego wygospodarować garderoby dla dzieci - w miejscu narysowanej przeze mnie łazienki rodziców i pralni. Cytuj Odnośnik do komentarza https://forum.murator.pl/topic/226725-projekt-do-oceny/#findComment-7292999 Udostępnij na innych stronach Więcej opcji udostępniania
Elfir 09.02.2017 13:41 Zgłoś naruszenie Udostępnij Napisano 9 Lutego 2017 Jak projektujesz dom, wyjdź od mebli, które chcesz zmieścić a nie od ścian.Przykładowo - chcesz łóżko 160x200 w sypialni małżeńskiej. Takie łóżko ze względu na ramę i zagłówek ma wymiary ok. 170x220 cm. Do tego min. 80 cm przejścia, żeby było wygodnie. I wychodzi ci w ten sposób minimalny wymiar sypialni. Podobnie salon - chcesz wstawić stół na 6 osób. Szukasz minimalnych wymiarów użytkowych np.:http://cdn8.urzadzamy.smcloud.net/t/photos/t/41365/jaki-stol-do-jadalni_2898869.jpgi już wiesz ile potrzebujesz miejsca w salonie na jadalnię. I tak kolejno z każdym pomieszczeniem. Na przykład kuchnię warto projektować jako wielokrotność podstawowej szafki 60 cm (+1,5 cm na tynk na ścianie) - co pozwoli na kupienie mebli w sklepie a nie zlecanie stolarzowi robienia kuchni na wymiar. Cytuj Odnośnik do komentarza https://forum.murator.pl/topic/226725-projekt-do-oceny/#findComment-7293019 Udostępnij na innych stronach Więcej opcji udostępniania
Elfir 09.02.2017 14:07 Zgłoś naruszenie Udostępnij Napisano 9 Lutego 2017 Na dole lepiej otworzyć salon na hol, będzie wizualnie przestronniej: Drzwi tarasowe na wysokości jadalni i fix na wysokości kanapy Cytuj Odnośnik do komentarza https://forum.murator.pl/topic/226725-projekt-do-oceny/#findComment-7293034 Udostępnij na innych stronach Więcej opcji udostępniania
Elfir 09.02.2017 16:14 Zgłoś naruszenie Udostępnij Napisano 9 Lutego 2017 albo iść w tym kierunku: Cytuj Odnośnik do komentarza https://forum.murator.pl/topic/226725-projekt-do-oceny/#findComment-7293142 Udostępnij na innych stronach Więcej opcji udostępniania
Marcin34_Śl 09.02.2017 19:15 Zgłoś naruszenie Udostępnij Napisano 9 Lutego 2017 Chodziło mi o schopdy ze spocznikiem na jednym poziomie jak narysowała ALicyja Cytuj Odnośnik do komentarza https://forum.murator.pl/topic/226725-projekt-do-oceny/#findComment-7293339 Udostępnij na innych stronach Więcej opcji udostępniania
fukujin 17.02.2017 08:40 Autor Zgłoś naruszenie Udostępnij Napisano 17 Lutego 2017 (edytowane) del Edytowane 14 Sierpnia 2020 przez fukujin Cytuj Odnośnik do komentarza https://forum.murator.pl/topic/226725-projekt-do-oceny/#findComment-7298671 Udostępnij na innych stronach Więcej opcji udostępniania
Elfir 17.02.2017 16:43 Zgłoś naruszenie Udostępnij Napisano 17 Lutego 2017 ta garderoba w sypialni będzie z samymi wąskimi półkami? Cytuj Odnośnik do komentarza https://forum.murator.pl/topic/226725-projekt-do-oceny/#findComment-7299031 Udostępnij na innych stronach Więcej opcji udostępniania
kinka 18.02.2017 19:03 Zgłoś naruszenie Udostępnij Napisano 18 Lutego 2017 Te wszystkie zmiany wyszły na niekorzyść,oryginalny układ jest o wiele lepszy. Pomniejszyliście cobie garderobę z dziwnym układzie ścian. Dodatkowa łazienka to dodatkowy koszt i fajne zapachy w sypialni po załatwieniu grubszej potrzeby. Kuchnia zamknięta i latanie z talerzami dookoła...........niepotrzebnie ogranicza przestrzeń 29m salonu z jadalnią wcale nie wydaję się dużo. Cytuj Odnośnik do komentarza https://forum.murator.pl/topic/226725-projekt-do-oceny/#findComment-7299720 Udostępnij na innych stronach Więcej opcji udostępniania
mayek 18.02.2017 19:41 Zgłoś naruszenie Udostępnij Napisano 18 Lutego 2017 Może jeszcze jakieś uwagi, spostrzeżenia? W miejscu pralni/suszarni zrobiłbym fajny salon kąpielowy zamiast tych dwóch malutkich i niewygodnych łazieneczek Cytuj Odnośnik do komentarza https://forum.murator.pl/topic/226725-projekt-do-oceny/#findComment-7299743 Udostępnij na innych stronach Więcej opcji udostępniania
Elfir 18.02.2017 22:27 Zgłoś naruszenie Udostępnij Napisano 18 Lutego 2017 kinka - rysujesz stół w drzwiach do spiżarki. i to stół który ma chyba 50 cm szerokości, patrząc proporcjonalnie do szafek kuchennych.Lodówka umieszczona za daleko względem zlewu - nie jest zachowany prawidłowy trójkąt roboczy. Cytuj Odnośnik do komentarza https://forum.murator.pl/topic/226725-projekt-do-oceny/#findComment-7299853 Udostępnij na innych stronach Więcej opcji udostępniania
kinka 19.02.2017 09:00 Zgłoś naruszenie Udostępnij Napisano 19 Lutego 2017 (edytowane) kinka - rysujesz stół w drzwiach do spiżarki. i to stół który ma chyba 50 cm szerokości, patrząc proporcjonalnie do szafek kuchennych. Lodówka umieszczona za daleko względem zlewu - nie jest zachowany prawidłowy trójkąt roboczy. Elfir powiększ sobie moje zdjęcie,stół ma 70x100cm według podanych wymiarów na rzucie,ściana do spiżarki też ma 100cm więc się zmieści.Trójkąt nie jest zachowany,lodówkę można przesunąć bliżej, a tak w ogóle to jakiej szerokości jest stół i kanapy,to się kupy nie trzyma na tym rzucie. Odnoście tego co pisałam wyżej,czy łazienka w sypialni to takie fajne rozwiązanie: Plusy: -blisko do toalety-wygoda (dla mnie lenistwo,bo parę kroków dalej można przejść do ogólnej łazienki,nikogo nie budząc i nie przeszkadzając) -problemy z pęcherzem i wstawanie w nocy (odgłos spuszczanej wody-pobudzi wszystkich) Minusy: -dodatkowy koszt -dobiegające z niej zapachy -jedno śpi a drugie spuszczając wodę go budzi (albo nie spuszcza celowo) fujjj -wstając rano i tak udajemy się na dół do kuchni,więc poranna toaleta może być w łazience ogólnej,lub na dole. W sypialni przebywamy głównie w nocy,więc łazienka jest mniej używana,niż ta na dole,gdzie spędzamy większość czasu.To dlaczego wc na dole odsuwamy najdalej od salonu,żeby nie słyszeć i wąchać co się tam dzieje,a w sypialni celowo robimy sobie tą " g............." potem w nocy wszystko wąchając.Czy to po prostu moda,bo ja nie wyobrażam sobie nasłuchiwać rano męża jak robi k...... czy puszcza bąki,a ja chce spać. Przepraszam autora wątku,ale musiałam to z siebie wyrzucić. Edytowane 19 Lutego 2017 przez kinka Cytuj Odnośnik do komentarza https://forum.murator.pl/topic/226725-projekt-do-oceny/#findComment-7299941 Udostępnij na innych stronach Więcej opcji udostępniania
Elfir 19.02.2017 13:57 Zgłoś naruszenie Udostępnij Napisano 19 Lutego 2017 krzesło jest w drzwiach spiżarki.Ja planowałam coś podobnego u siebie i nie zdało egzaminu kompletnie. stół po prostu zawadzał Cytuj Odnośnik do komentarza https://forum.murator.pl/topic/226725-projekt-do-oceny/#findComment-7300176 Udostępnij na innych stronach Więcej opcji udostępniania
fukujin 20.02.2017 08:41 Autor Zgłoś naruszenie Udostępnij Napisano 20 Lutego 2017 (edytowane) del Edytowane 14 Sierpnia 2020 przez fukujin Cytuj Odnośnik do komentarza https://forum.murator.pl/topic/226725-projekt-do-oceny/#findComment-7300770 Udostępnij na innych stronach Więcej opcji udostępniania
Elfir 20.02.2017 09:34 Zgłoś naruszenie Udostępnij Napisano 20 Lutego 2017 Polecam wyjście z kuchni na ogród. Cytuj Odnośnik do komentarza https://forum.murator.pl/topic/226725-projekt-do-oceny/#findComment-7300818 Udostępnij na innych stronach Więcej opcji udostępniania
ppppawel 15.02.2019 09:36 Zgłoś naruszenie Udostępnij Napisano 15 Lutego 2019 (edytowane) Nie wiem czy tu jeszcze ktoś zagląda, ale spróbuję. Początkowo rozważaliśmy parterówkę, ale ze względu na powierzchnię zabudowy odpadła. Ostatecznie wybraliśmy zx12 i mamy już projekt po adaptacji. Bardzo nam pomógł ten wątek jeśli chodzi o układ pomieszczeń na piętrze. Zrobiliśmy prawie tak jak radziła Elfir (jeśli kogoś by interesowało to wrzucę) Na parterze nie robiliśmy zmian w układzie, ale teraz mamy zamiar trochę zmienić kuchnię i spiżarkę. W kuchni miałaby być stół dla czterech osób i słupek z piekarnikiem i mikrofalą. W oryginalnym układzie nie ma wiele miejsca na wysoką zabudowę jak w kuchni ma być stół. Można np. zrobić układ taki jak na już był na rysunku w tym wątku z wejściem do spiżarki pomiędzy lodówką a słupkiem. Zastanawiamy się nad zmianą wejścia do spiżarki i takim układem: Czy Waszym zdaniem miałby sens taki układ kuchni?: Edytowane 15 Lutego 2019 przez ppppawel rys Cytuj Odnośnik do komentarza https://forum.murator.pl/topic/226725-projekt-do-oceny/#findComment-7652906 Udostępnij na innych stronach Więcej opcji udostępniania
Recommended Posts
Dołącz do dyskusji
Możesz dodać zawartość już teraz a zarejestrować się później. Jeśli posiadasz już konto, zaloguj się aby dodać zawartość za jego pomocą.